Món mì cay hấp dẫn thu hút những ai đam mê ẩm thực Hàn Quốc. Với mục tiêu mang lại trải nghiệm thú vị và mới lạ, thiết kế nhà hàng mì cay Seoul tinh tế sử dụng gam màu đỏ làm điểm nhấn nổi bật. Tìm hiểu chi tiết về phương án thiết kế nhà hàng này qua nội dung dưới đây.
.jpg)
Mặt tiền nhà hàng mì cay Seoul 7 cấp độ nổi bật với hệ thống biển bảng kích thước lớn. Từ biển chính đến biến bên hông đều có sự đồng điệu thiết kế, tăng nhận diện cho nhà hàng. Màu đỏ trắng đan xen rất nổi bật, thu hút mọi ánh nhìn của khách qua đường.
.jpg)
Nhà hàng gồm hai tầng dịch vụ, mỗi tầng được bố trí và thiết kế tối ưu hóa không gian và tạo cảm giác mới lạ cho khách hàng. Gam màu đỏ là lựa chọn chủ đạo của nhà hàng mì cay Seoul thể hiện sự nhiệt huyết, năng động và kích thích vị giác, tạo cảm giác hưng phấn cho khách hàng khi dùng bữa. Màu đỏ được sử dụng linh hoạt trên các mảng tường, bàn ghế, chi tiết trang trí, tạo nên sự ấn tượng ngay từ cái nhìn đầu tiên.
.png)
.png)
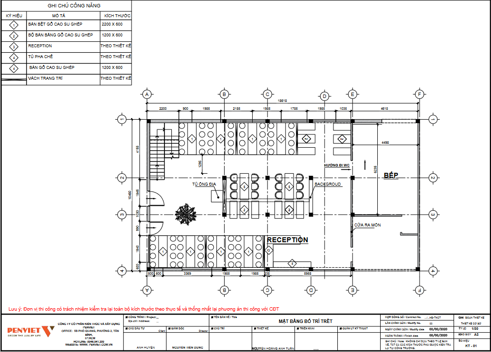
Mặt bằng công năng
.jpg)
.jpg)
Tuy nhiên, để tránh sự nặng nề các kiến trúc sư đã phối hợp khéo léo màu đỏ với các tông màu trung tính như trắng, xám, và đen. Những chi tiết trang trí bằng tranh tường mang đậm phong cách Hàn Quốc tạo nên không gian sinh động và gần gũi với khách hàng.
Tầng trệt của nhà hàng bao gồm khu vực tiếp khách và chế biến mì cay. Với không gian mở, khu vực bếp chế biến kết hợp quầy bar để khách hàng dễ quan sát quy trình làm món ăn. Từ đó thực khách có thể cảm nhận được sự tươi ngon của món ăn. Bếp được trang bị hệ thống hút mùi hiện đại tạo sự thông thoáng cho không gian, tránh ám mùi thực phẩm.
.jpg)
.jpg)
.jpg)
Khu vực bàn ghế tại tầng trệt được làm từ gỗ với màu sắc tươi sáng có kiểu dáng đơn giản, không lo lỗi mode. Bàn ghế được sắp xếp hợp lý để tối đa hóa không gian nhưng đảm bảo giữ khoảng cách vừa đủ để khách hàng thoải mái riêng tư khi dùng bữa. Đèn trang trí là đèn LED tạo hiệu ứng ánh sáng lung linh và hiện đại.
.jpg)
.jpg)
.jpg)
.jpg)
Các chi tiết trang trí, vách logo và cây xanh thêm điểm nhấn cho không gian.
.jpg)
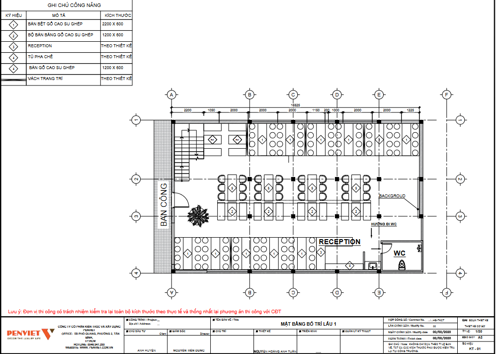
Tầng 1 của nhà hàng Mì Cay Seoul bố trí thành các khu vực ngồi riêng biệt, phù hợp cho các nhóm bạn, gia đình, cặp đôi. Tổng thể nội thất và cách sắp đặt tầng 1 khá giống với tầng trệt, tạo sự đồng điệu.
.jpg)
.jpg)
Màu đỏ tiếp tục là điểm nhấn chính trong thiết kế và được sử dụng khéo léo trên các mảng tường, đệm ghế. Các bức tường trang trí bằng tranh nghệ thuật mô tả văn hóa và ẩm thực Hàn Quốc tính thẩm mỹ cao.
.jpg)
Thiết kế ánh sáng không chỉ giúp tôn lên vẻ đẹp của nội thất mà còn kích thích vị giác, giúp khách hàng cảm thấy ngon miệng hơn. Vách tường, cây cảnh đều góp phần decor cho không gian thêm ấn tượng.
.jpg)
.jpg)
.jpg)
Phương án thiết kế nhà hàng Mì Cay Seoul mang đến trải nghiệm ẩm thực và văn hóa Hàn Quốc độc đáo. Sự kết hợp tinh tế giữa màu sắc, nội thất, ánh sáng là điểm nổi bật tạo không gian ấm cúng, đáp ứng mọi đối tượng khách hàng. Nếu bạn yêu thích phong cách thiết kế này, hãy liên hệ ngay với PenViet.







A. PenViet có hệ thống chi nhánh văn phòng và xưởng sản xuất ở nhiều nơi trên toàn quốc, nên giá thành sản phẩm là giá xuất xưởng, cạnh tranh nhằm đảm bảo chất lượng và dịch vụ phục vụ Khách hàng tốt nhất.
A: PenViet cung cấp dịch vụ tới mọi thành phần kinh tế, chúng tôi cung cấp dịch vụ thiết kế, thi công và bán lẻ các mặt hàng nội thất.
- Với các sản phẩm khách hàng đã có bản vẽ 2D hoặc 3D: PenViet sẽ phân tích bản vẽ và báo giá cạnh tranh.
- Với các sản phẩm cần thiết kế chi tiết: PenViet sẽ báo giá từ thiết kế đến thi công.
- Với những khách hàng mua hàng có sẵn với số lượng lớn: vui lòng liên hệ để nhận báo giá cạnh tranh.
- Đối với các Showroom có diện tích trưng bày sản phẩm rộng lớn: PenViet có khung giá phù hợp với ngân sách của khách hàng.