Mặt bằng 2 tầng được anh Tú đầu tư để mở chuỗi phòng khám thú y có tổng diện tích 65m2. Qua khảo sát, chúng tôi nhận thấy ngoài việc diện tích hạn chế, một nhược điểm nữa của cửa tiệm này chính là không được vuông vắn.
Bên cạnh đó, cơ sở kinh doanh này cũng đang trong tình trạng xuống cấp.

Hiện trạng mặt bằng kinh doanh
Do đó, để đảm bảo các tiêu chí về công năng sử dụng cũng như tính thẩm mỹ cho cơ sở kinh doanh này, các kiến trúc sư PenViet đã đưa ra giải pháp cải tạo lại cửa hàng như sơn sửa lại tường, lát sàn và phân chia không gian nhằm tạo ra các khu vực chức năng riêng biệt theo yêu cầu của chủ đầu tư.
Là một dự án nằm trong kế hoạch xây dựng chuỗi cửa hàng của khách hàng, PenViet đã tư vấn cho anh Tú giữ nguyên những nét đặc trưng trong nhận diện thương hiệu cho mẫu thiết kế phòng khám thú y này.
Theo đó, phong cách hiện đại cùng với sự kết hợp màu sắc ấn tượng cũng như cách sử dụng nội thất có nét tương đồng với cơ sở 1, tạo nên tính nhất quán cho toàn bộ hệ thống kinh doanh.

Ý tưởng setup phòng khám thú y tạo được sự nhất quán cho cả hệ thống
PenViet tập trung vào các giải pháp khắc phục hạn chế mặt bằng và phân chia không gian bằng cách lắp đặt các vách kính kết hợp với gỗ MDF phủ Melamine, khung sắt nhằm tạo sự xuyên suốt, thông thoáng cho toàn bộ cửa tiệm.

Thiết kế nội thất phòng khám thú y tập trung giải quyết những hạn chế mặt bằng



Phương án bố trí mặt bằng đã khắc phục được hạn chế về diện tích
Khu vực lưu bệnh trong thiết kế phòng khám thú cưng Audi Pet

Khu vực làm việc và sảnh chờ




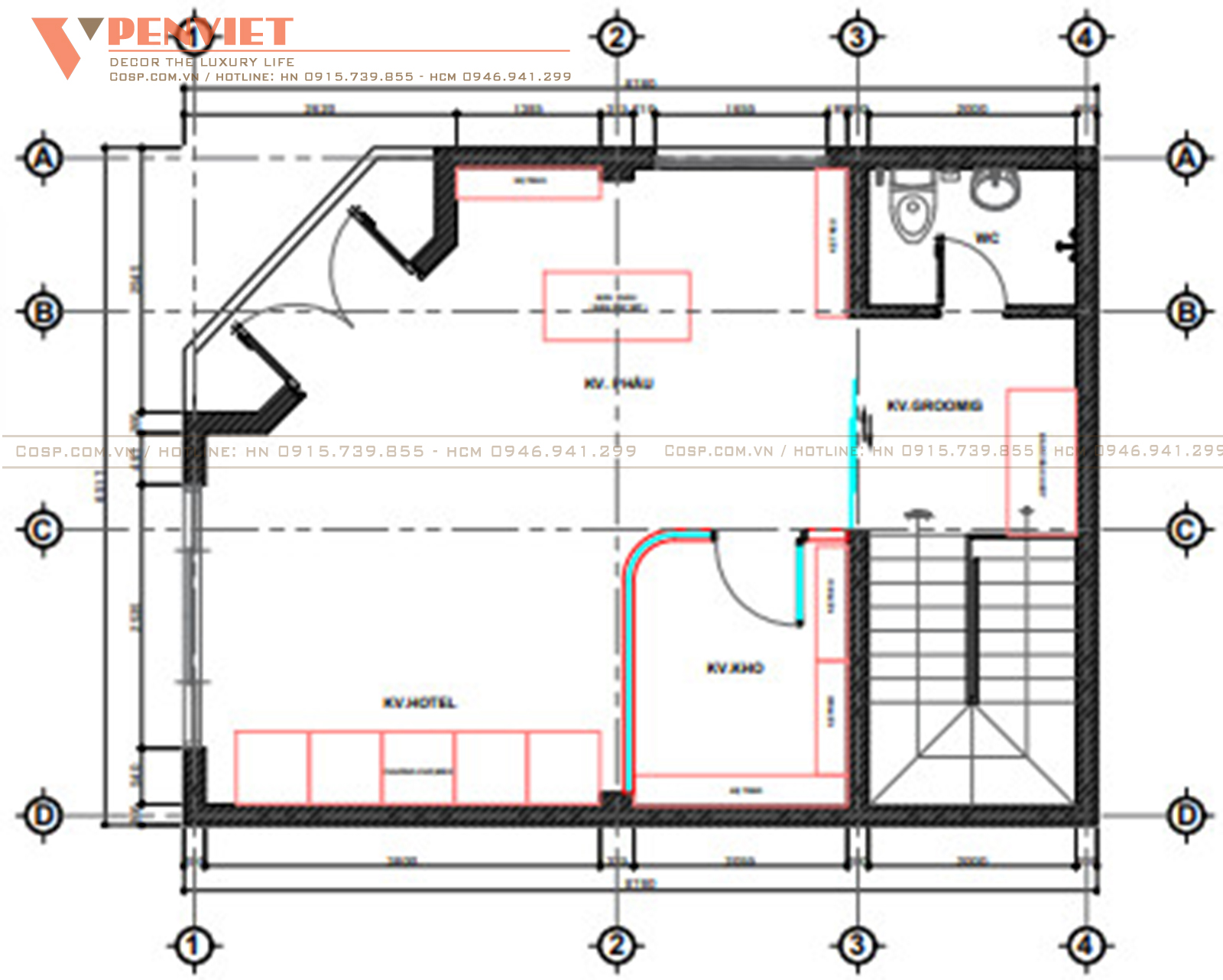
Bố trí mặt bằng tầng 1

Khu vực Hotel – Phẫu

Khu vực kho trong thiết kế nội thất phòng khám thú y Audi Pet

Khu vực Grooming

Bố trí nội thất khu vực Grooming
Có thể thấy, những giải pháp thiết kế phòng khám thú y Audi Pet – Cơ sở Lạc Long Quân đã giải quyết triệt để hạn chế mặt bằng. Chủ đầu tư cũng bày tỏ sự hài lòng về ý tưởng setup cho cơ sở thứ hai này.
Còn bạn, bạn đã có giải pháp nào cho không gian của mình chưa? Gọi ngay cho PenViet để được hỗ trợ nhé!







A. PenViet có hệ thống chi nhánh văn phòng và xưởng sản xuất ở nhiều nơi trên toàn quốc, nên giá thành sản phẩm là giá xuất xưởng, cạnh tranh nhằm đảm bảo chất lượng và dịch vụ phục vụ Khách hàng tốt nhất.
A: PenViet cung cấp dịch vụ tới mọi thành phần kinh tế, chúng tôi cung cấp dịch vụ thiết kế, thi công và bán lẻ các mặt hàng nội thất.
- Với các sản phẩm khách hàng đã có bản vẽ 2D hoặc 3D: PenViet sẽ phân tích bản vẽ và báo giá cạnh tranh.
- Với các sản phẩm cần thiết kế chi tiết: PenViet sẽ báo giá từ thiết kế đến thi công.
- Với những khách hàng mua hàng có sẵn với số lượng lớn: vui lòng liên hệ để nhận báo giá cạnh tranh.
- Đối với các Showroom có diện tích trưng bày sản phẩm rộng lớn: PenViet có khung giá phù hợp với ngân sách của khách hàng.