Thiết kế phòng khám nha khoa ngày nay không chỉ dừng lại ở việc bố trí máy móc, mà còn là cách tạo dựng cảm giác tin tưởng và thoải mái cho khách hàng. Với diện tích 150m2, dự án thiết kế phòng khám nha khoa HT Smile 2 tầng của chị Hương tại Vĩnh Phúc được thực hiện theo định hướng hiện đại, tinh gọn và đầy đủ công năng. Mỗi khu vực đều được triển khai theo tiêu chuẩn vận hành nha khoa thực tế, đảm bảo tối ưu trải nghiệm và nâng cao hiệu quả khám chữa. Đây là gợi ý hoàn hảo cho các chủ đầu tư đang tìm ý tưởng cải tạo hoặc xây dựng phòng khám nha khoa chuyên nghiệp.
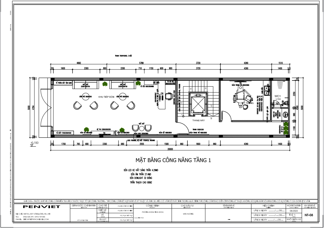
Mặt bằng công năng
.png)
.png)
Dự án phòng khám nha khoa của chị Hương được xây dựng theo triết lý “đơn giản, hiệu quả, sang trọng”. Toàn bộ không gian sử dụng gam màu trắng be làm chủ đạo nhằm tạo cảm giác sạch sẽ và chuyên nghiệp. Ánh sáng được bố trí mềm mại, giúp hạn chế căng thẳng cho khách đến điều trị.
Thiết kế của phòng khám hướng đến trải nghiệm khách hàng từ khi bước vào cửa cho đến khi rời đi. Mỗi không gian đều được sắp xếp theo đúng luồng di chuyển, thuận tiện cho vận hành. Bố trí nội thất đồng nhất tạo cảm giác liền mạch giữa các tầng.
Thông tin dự án
Chủ đầu tư: Chị Hương
Địa điểm: Vĩnh Phúc
Diện tích: 150m2
Nội dung: thiết kế phòng khám nha khoa.
Mặt tiền phòng khám được thiết kế gọn gàng theo phong cách hiện đại. Bảng hiệu sử dụng màu trắng vàng kim giúp hình ảnh thương hiệu trở nên nổi bật giữa khu vực đông dân cư. Logo răng được xử lý tinh tế, tạo cảm giác thân thiện và dễ ghi nhớ cho khách hàng.
.jpg)
Cửa kính lớn giúp mở rộng tầm nhìn vào không gian bên trong. Điều này giúp phòng khám trông rộng rãi hơn và tạo cảm giác tin tưởng ngay từ phía ngoài. Bố cục mặt tiền tập trung làm rõ các dịch vụ chính như nắn chỉnh răng, cấy ghép implant, từ đó định vị chuyên môn ngay trước khi khách bước vào.
Không gian lễ tân ở tầng 1 được thiết kế với phong cách tối giản nhưng sang trọng. Quầy lễ tân sử dụng đường nét mềm mại và ánh sáng vàng nhạt, mang đến cảm giác thân thiện khi khách hàng tiếp cận. Vật liệu bề mặt bóng giúp khu vực dễ lau chùi và giữ vẻ sạch sẽ.
.jpg)
.jpg)
Điểm mạnh của thiết kế là bố trí hợp lý giữa quầy lễ tân, khu trưng bày và lối di chuyển vào phòng nha. Khách đến phòng khám sẽ được đón tiếp trong không gian thoáng, không bị chật hay gò bó. Cách xử lý ánh sáng trần giúp nâng tầm trải nghiệm ngay từ những giây phút đầu tiên.
Hình ảnh thực tế cho thấy khu chờ rộng rãi, thoáng sáng và được phối màu rất hài hòa. Ghế ngồi bọc nỉ sáng màu kết hợp chân gỗ tạo cảm giác sang trọng nhưng vẫn dễ chịu. Các bàn trà nhỏ được bố trí vừa đủ, phù hợp với diện tích và giữ được sự gọn gàng.
.jpg)
Một điểm mạnh nổi bật là hệ thống tranh treo tường mang nội dung về chăm sóc răng miệng. Chúng giúp tạo sự kết nối giữa khách hàng và dịch vụ của phòng khám. Cây xanh và các chi tiết decor nhẹ nhàng khiến không gian thêm thân thiện, giảm cảm giác lo lắng thường gặp ở bệnh nhân nha khoa.
.jpg)
Phòng nha tầng 1 được thiết kế theo đúng tiêu chuẩn công năng của một phòng khám chuyên nghiệp. Ghế nha được đặt ở vị trí trung tâm, đảm bảo đủ không gian cho bác sĩ thao tác và di chuyển. Hệ thống đèn chiếu sáng và đèn điều trị bố trí cân đối giúp tăng hiệu quả khám chữa.
.jpg)
.jpg)
Tủ đồ và quầy thao tác chạy dọc theo một phía tường, tối ưu cho việc cất trữ vật dụng và tiệt trùng. Màu trắng chủ đạo kết hợp vân đá marble mang lại cảm giác sạch sẽ, phù hợp với tính chất đặc thù của ngành nha. Tường phía trước được nhấn bằng mảng đá lớn giúp không gian trở nên sang trọng mà không gây rối mắt.
.jpg)
Tầng 2 được bố trí thêm phòng nha nhằm đáp ứng nhu cầu lượng khách đông hơn. Thiết kế tương tự tầng 1 để đảm bảo sự đồng nhất trong nhận diện không gian. Các vật liệu, màu sắc và ánh sáng được giữ nguyên, tạo trải nghiệm liền mạch khi khách di chuyển giữa các tầng.
.jpg)
.jpg)
Không gian phòng khám tầng 2 chú trọng nhiều vào ánh sáng tự nhiên và sự gọn gàng của đồ nội thất. Hệ tủ treo tường giúp tiết kiệm diện tích và tạo môi trường làm việc chuyên nghiệp. Việc bố trí thêm ghế nha tại tầng 2 giúp tối ưu công suất khám, đặc biệt trong giờ cao điểm.
.jpg)
Ánh sáng là một trong những yếu tố tạo nên thành công cho dự án. Từ khu chờ đến phòng nha, ánh sáng trần đều được thiết kế mềm và không gây lóa. Điều này giúp khách hàng cảm thấy dễ chịu, hạn chế tâm lý căng thẳng.
.jpg)
.jpg)
Màu trắng be được sử dụng xuyên suốt toàn bộ công trình, mang lại cảm giác tinh khiết và chuyên nghiệp. Vật liệu đá và ánh sáng gián tiếp tạo nên chiều sâu, giúp không gian rộng hơn diện tích thực tế. Gam màu trung tính cũng giúp nội thất dễ phối hợp và bền vững theo thời gian.
Với diện tích 150m2, việc tối ưu công năng là yếu tố then chốt. Thiết kế chia 2 tầng giúp phân tách rõ ràng luồng khách và khu điều trị. Tầng 1 phục vụ tiếp đón và khám nhanh, tầng 2 dành cho điều trị chuyên sâu.
.jpg)
Cách bố trí tủ và bệ thao tác dọc tường tạo ra không gian trung tâm rộng rãi, giúp bác sĩ và kỹ thuật viên di chuyển thuận lợi. Hệ tủ kín ở khu chờ giúp lưu trữ đồ cá nhân, giữ cho tổng thể luôn gọn gàng. Mỗi chi tiết đều đáp ứng mục tiêu phục vụ vận hành trơn tru.
Dự án này là ví dụ điển hình cho các chủ đầu tư đang muốn cải tạo phòng khám với chi phí hợp lý nhưng hình ảnh chuyên nghiệp. Tận dụng gam màu sáng và bố trí tối giản giúp giảm chi phí hoàn thiện nhưng vẫn đạt hiệu ứng sang trọng. Vật liệu được lựa chọn kỹ nhằm đảm bảo độ bền, dễ vệ sinh và phù hợp với đặc thù ngành nha.
Không gian không quá cầu kỳ nhưng thể hiện sự chỉn chu trong từng chi tiết. Điều này giúp nâng cao giá trị thương hiệu và tăng thiện cảm khách hàng. Thiết kế mở cũng giúp phòng khám dễ cải tạo khi phát triển dịch vụ mới trong tương lai.
Thiết kế phòng khám nha khoa HT Smile 2 tầng của chị Hương tại Vĩnh Phúc giúp nâng tầm chất lượng dịch vụ. Từ khu chờ, phòng nha đến mặt tiền đều được xử lý tinh tế và phù hợp với vận hành thực tế. Đây là lựa chọn thiết kế đáng tham khảo dành cho các chủ đầu tư đang hướng đến sự chuyên nghiệp và bền vững.







A. PenViet có hệ thống chi nhánh văn phòng và xưởng sản xuất ở nhiều nơi trên toàn quốc, nên giá thành sản phẩm là giá xuất xưởng, cạnh tranh nhằm đảm bảo chất lượng và dịch vụ phục vụ Khách hàng tốt nhất.
A: PenViet cung cấp dịch vụ tới mọi thành phần kinh tế, chúng tôi cung cấp dịch vụ thiết kế, thi công và bán lẻ các mặt hàng nội thất.
- Với các sản phẩm khách hàng đã có bản vẽ 2D hoặc 3D: PenViet sẽ phân tích bản vẽ và báo giá cạnh tranh.
- Với các sản phẩm cần thiết kế chi tiết: PenViet sẽ báo giá từ thiết kế đến thi công.
- Với những khách hàng mua hàng có sẵn với số lượng lớn: vui lòng liên hệ để nhận báo giá cạnh tranh.
- Đối với các Showroom có diện tích trưng bày sản phẩm rộng lớn: PenViet có khung giá phù hợp với ngân sách của khách hàng.