Trong bối cảnh nhu cầu mua sắm trang sức ngày càng cao, việc nâng cấp hình ảnh cửa hàng trở thành yếu tố sống còn để cạnh tranh. Dự án cải tạo Tiệm vàng Cát Tường 2 của anh Toàn tại Bắc Ninh với không gian 45m2 được đổi mới hoàn toàn theo hướng hiện đại, sang trọng và tối ưu công năng. Với thiết kế chỉn chu, đồng bộ và tinh tế, cửa hàng không chỉ tăng trải nghiệm mua sắm mà còn củng cố vị thế thương hiệu trong khu vực.
Hiện trạng trước thiết kế
.jpg)
.jpg)
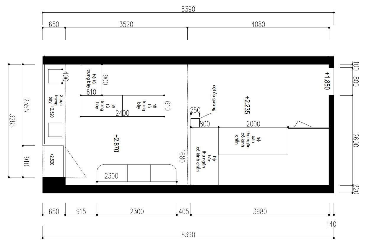
Mặt bằng công năng
.jpg)
Tiệm vàng Cát Tường 2 được định hướng trở thành cửa hàng trang sức chuẩn hình ảnh quốc tế, đáp ứng mọi tiêu chuẩn về thẩm mỹ, trưng bày và nhận diện thương hiệu. Diện tích 45m2 không quá lớn nhưng lại đòi hỏi bố trí khoa học để đảm bảo vừa đủ không gian trưng bày, vừa thoải mái cho khách hàng di chuyển.
.jpg)
Phong cách thiết kế hiện đại được chọn nhằm tạo ấn tượng về sự trẻ trung, sang trọng và chuyên nghiệp. Hệ màu đỏ nhận diện thương hiệu Phú Quý được sử dụng xuyên suốt làm điểm nhấn mạnh mẽ. Cách phối hợp màu sắc – ánh sáng – vật liệu được cân chỉnh để phù hợp với đặc thù kinh doanh vàng bạc, nơi mọi chi tiết đều phải tỏa sáng.
Thông tin dự án
Tên dự án : Tiệm vàng Cát Tường
Chủ đầu tư : anh Toàn
Địa chỉ : Bắc Ninh
Diện tích : 45m2
Phong cách thiết kế : hiện đại
Nhìn từ phía trước, mặt tiền tiệm vàng mang phong cách nổi bật với mảng biển đỏ kết hợp chữ nổi và hệ LED sáng mặt. Thiết kế này không chỉ nâng tầm thẩm mỹ mà còn giúp cửa hàng trở nên dễ nhận diện cả ngày lẫn đêm. Bố cục biển hiệu vuông vức, rõ ràng, toát lên sự chắc chắn và uy tín.
Logo và tên thương hiệu được đặt ở vị trí trung tâm, giúp khách qua đường có thể nhận diện ngay từ xa. Hệ viền inox và chân chữ phát sáng góp phần tăng độ sang trọng. Đây là một trong những điểm mạnh nổi bật của dự án, phù hợp với xu hướng mặt tiền hiện đại, chỉnh chu và thu hút khách hàng.
.jpg)
Bước vào bên trong, không gian khiến khách hàng ấn tượng nhờ sự sáng sủa, sạch sẽ và tinh tế. Tone trắng chủ đạo kết hợp với hệ viền vàng tạo cảm giác sang trọng vừa đủ, không phô trương nhưng vẫn mang vẻ đẳng cấp của ngành kim hoàn. Sàn gạch trắng bóng giúp mở rộng thị giác, phù hợp với diện tích 45m2.
.jpg)
Các tủ trưng bày được bố trí dọc theo không gian, đường nét vuông gọn, tinh tế, chất liệu kính cao cấp chống trầy. Bề mặt tủ có ánh phản quang nhẹ tạo hiệu ứng lấp lánh cho sản phẩm trưng bày. Đây là chi tiết quan trọng giúp nâng giá trị trang sức trong mắt khách hàng.
.jpg)
Ánh sáng là yếu tố sống còn đối với một tiệm vàng. Dự án đã sử dụng hệ thống đèn trần kết hợp spotlight để chiếu điểm vào từng khu vực trưng bày. Sự kết hợp này đảm bảo vàng bạc, đá quý luôn đạt hiệu ứng sáng đẹp nhất.
.jpg)
Đèn được bố trí đều, tạo cảm giác không gian rộng rãi và không bị tối cục bộ. Điều này giúp khách hàng quan sát sản phẩm chính xác hơn và nâng cao trải nghiệm khi thử trang sức. Hệ đèn LED tiết kiệm điện cũng là ưu điểm quan trọng, giảm chi phí vận hành.
Để tối ưu diện tích 45m2, thiết kế sử dụng gương ốp tường toàn phần dọc hai bên không gian. Việc này giúp tăng chiều sâu, khiến không gian rộng lớn hơn nhiều so với diện tích thật. Gương kết hợp ánh sáng tạo ra hiệu ứng phản chiếu sang trọng rất đặc trưng cho ngành trang sức.
Ngoài yếu tố thẩm mỹ, gương còn giúp nhân viên quan sát tốt hơn, đảm bảo an toàn cho hoạt động kinh doanh.
Khu vực chờ được bố trí ghế sofa dài với tone sáng nhẹ, tạo cảm giác thoải mái và lịch sự. Bố trí này rất phù hợp cho khách đi cùng gia đình, nhất là khi có người cần chờ lâu để lựa chọn sản phẩm.
Cây xanh được đặt hợp lý, tạo điểm nhấn cho thiết kế và tăng sự tươi mát. Điều này giúp cân bằng màu sắc trong không gian vốn sử dụng nhiều bề mặt kính và inox.
.jpg)
Dự án Tiệm vàng Cát Tường 2 sử dụng nhiều vật liệu chất lượng cao như:
Mica UV sáng mịn
Inox vàng gương chống xỉ
Kính cường lực dày
Gỗ MDF chống ẩm
Hệ đèn LED tiết kiệm điện
Những vật liệu này mang lại độ bền lâu dài, giữ vẻ đẹp và độ mới theo thời gian, vô cùng quan trọng trong môi trường kinh doanh đòi hỏi sự chỉn chu.
Hệ thống di chuyển trong cửa hàng được tính toán hợp lý. Lối đi rộng, sạch sẽ, không bị chật chội giúp khách hàng có trải nghiệm thoải mái. Nhân viên cũng dễ dàng thao tác, di chuyển và hỗ trợ khách, tăng hiệu quả bán hàng.
Bản thân cách bố trí tủ, ghế, quầy cũng theo một trục thẳng hiện đại, mang đến sự đồng bộ và rõ ràng trong thiết kế.
Một trong những ưu điểm nổi bật của dự án là sự thống nhất từ mặt tiền đến nội thất. Tone đỏ vàng thương hiệu Phú Quý được sử dụng xuyên suốt nhưng vẫn đảm bảo hài hòa và không gây chói mắt. Các bảng thông tin, poster sản phẩm và logo đều được thiết kế theo quy chuẩn, tăng sự chuyên nghiệp của cửa hàng.
Sự đồng bộ này giúp khách hàng dễ dàng nhận diện thương hiệu ngay từ lần đầu tiên bước qua.
Dự án Tiệm vàng Cát Tường 2 là minh chứng cho việc một không gian chỉ 45m2 vẫn có thể trở nên sang trọng và tối ưu nếu được thiết kế đúng. Những giải pháp áp dụng có thể là gợi ý giá trị cho các chủ đầu tư đang muốn nâng cấp cửa hàng.
Không gian mới của Tiệm vàng Cát Tường 2 đem đến trải nghiệm mua sắm thoải mái và đẳng cấp hơn. Khách hàng dễ dàng quan sát sản phẩm, có khu vực chờ tiện nghi và cảm nhận sự uy tín qua thiết kế cửa hàng.
Điều này giúp tăng thời gian khách nán lại, từ đó nâng cao tỷ lệ chuyển đổi mua hàng.
Với thị trường trang sức cạnh tranh cao, việc sở hữu không gian đẹp và chuyên nghiệp tạo nên sự khác biệt lớn. Thiết kế hiện đại giúp tiệm vàng dễ dàng tiếp cận nhóm khách hàng trẻ, là nhóm khách mua sắm ngày càng tăng.
Ngoài ra, một cửa hàng chỉn chu về hình ảnh còn nâng cao giá trị thương hiệu, giảm rủi ro “đánh đồng” với những cửa hàng nhỏ lẻ khác trên thị trường.
Thiết kế được thực hiện theo tiêu chuẩn ngành vàng bạc nhưng vẫn đủ linh hoạt để trưng bày nhiều dòng sản phẩm: vàng 24k, trang sức cưới, đá quý, nhẫn phong thủy và trang sức cao cấp. Quầy kính rộng, ngăn tủ chia hợp lý khiến hoạt động trưng bày luôn gọn gàng và thu hút.
Việc cải tạo theo mô hình trọn gói giúp chủ đầu tư tiết kiệm thời gian, kiểm soát tiến độ và chất lượng thi công. Từ thiết kế 3D đến hoàn thiện thực tế đều đảm bảo đồng nhất, ít phát sinh, phù hợp với mong muốn của anh Toàn khi nâng cấp tiệm.
Mẫu thiết kế tiệm vàng Cát Tường 2 tại Bắc Ninh mang lại diện mạo mới hiện đại, sáng sủa và nâng cao giá trị thương hiệu. Với diện tích 45m2, thiết kế thông minh đã tạo ra không gian kinh doanh đẳng cấp và hiệu quả. Đây là lựa chọn lý tưởng cho các chủ đầu tư đang muốn nâng cấp tiệm vàng theo phong cách hiện đại và chuyên nghiệp.







A. PenViet có hệ thống chi nhánh văn phòng và xưởng sản xuất ở nhiều nơi trên toàn quốc, nên giá thành sản phẩm là giá xuất xưởng, cạnh tranh nhằm đảm bảo chất lượng và dịch vụ phục vụ Khách hàng tốt nhất.
A: PenViet cung cấp dịch vụ tới mọi thành phần kinh tế, chúng tôi cung cấp dịch vụ thiết kế, thi công và bán lẻ các mặt hàng nội thất.
- Với các sản phẩm khách hàng đã có bản vẽ 2D hoặc 3D: PenViet sẽ phân tích bản vẽ và báo giá cạnh tranh.
- Với các sản phẩm cần thiết kế chi tiết: PenViet sẽ báo giá từ thiết kế đến thi công.
- Với những khách hàng mua hàng có sẵn với số lượng lớn: vui lòng liên hệ để nhận báo giá cạnh tranh.
- Đối với các Showroom có diện tích trưng bày sản phẩm rộng lớn: PenViet có khung giá phù hợp với ngân sách của khách hàng.