Với diện tích chỉ 18m2, việc cải tạo tiệm trang sức đòi hỏi giải pháp thiết kế gọn gàng và hiệu quả. Dự án tại Hà Nội tập trung làm rõ hình ảnh thương hiệu, tối ưu trưng bày và đảm bảo trải nghiệm mua bán chuyên nghiệp. Không gian nhỏ nhưng vẫn tạo cảm giác uy tín và dễ tiếp cận. Đây là mô hình phù hợp cho chủ đầu tư muốn nâng cấp cửa hàng trong thời gian ngắn.
Hiện trạng trước thiết kế
.jpg)
.jpg)
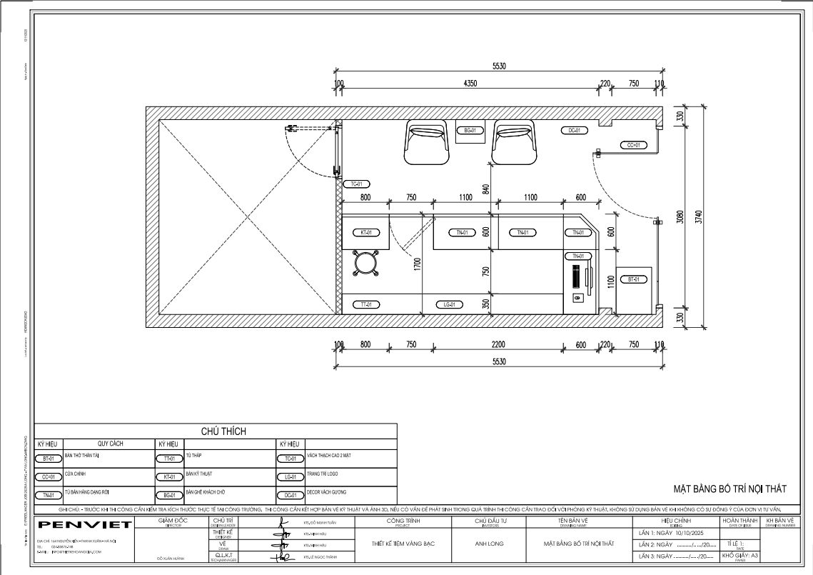
Mặt bằng công năng
.png)
Chủ đầu tư: Nguyễn Hoàng Long
Địa điểm: Hà Nội
Diện tích: 18m2
Nội dung: Thiết kế tiệm trang sức
Mặt tiền sử dụng gam đỏ chủ đạo, tạo ấn tượng mạnh và thu hút ánh nhìn từ xa. Bảng hiệu lớn, chữ nổi ánh kim giúp tăng độ nhận diện thương hiệu ngay trên tuyến phố đông người. Hệ đèn viền làm nổi khối kiến trúc, hỗ trợ hoạt động kinh doanh buổi tối. Cửa kính trong suốt giúp khách hàng quan sát không gian bên trong rõ ràng hơn.
.jpg)
Thiết kế mặt tiền hướng đến sự rõ ràng và trực diện. Chủ đầu tư có thể dễ dàng truyền tải thông tin mua bán vàng bạc ngay từ bên ngoài. Điều này đặc biệt quan trọng với cửa hàng diện tích nhỏ tại khu vực trung tâm Hà Nội.
Bên trong tiệm, hệ tủ trưng bày được bố trí theo dạng chữ U, tận dụng tối đa mặt bằng. Tủ kính thấp giúp không gian thông thoáng và thuận tiện cho giao dịch. Ánh sáng chiếu tập trung làm nổi bật sản phẩm, tăng giá trị cảm nhận khi quan sát. Lối đi giữa được giữ gọn, tránh cảm giác chật chội.
.jpg)
Giải pháp này phù hợp với các chủ tiệm đang cải tạo không gian nhỏ. Việc trưng bày khoa học giúp tăng số lượng sản phẩm mà không gây rối mắt. Nhân viên cũng dễ thao tác và kiểm soát quầy.
Khu vực giao dịch được đặt gần trung tâm, kết nối trực tiếp với các tủ trưng bày. Ghế chờ bố trí sát tường, đủ dùng nhưng không chiếm diện tích. Màn hình hiển thị giá vàng đặt cao, dễ quan sát và cập nhật liên tục. Cách tổ chức này giúp quá trình mua bán diễn ra nhanh và minh bạch.
.jpg)
Không gian tuy nhỏ nhưng vẫn đảm bảo tính chuyên nghiệp. Chủ đầu tư có thể vận hành hiệu quả mà không cần mở rộng mặt bằng. Đây là điểm mạnh rõ rệt của dự án.
.jpg)
Tông màu sáng kết hợp vật liệu bóng giúp không gian trông rộng hơn thực tế. Nội thất thiết kế đơn giản, dễ thi công và tiết kiệm chi phí. Hệ thống chiếu sáng được tính toán để vừa làm đẹp sản phẩm vừa giảm tiêu hao điện năng. Tổng thể phù hợp với các cửa hàng vàng bạc quy mô nhỏ tại đô thị.
.jpg)
Dự án mang tính ứng dụng cao cho những ai đang cần cải tạo tiệm trang sức diện tích hạn chế. Thiết kế dễ nâng cấp và linh hoạt theo từng giai đoạn kinh doanh.
Thiết kế tiệm trang sức 18m2 tại Hà Nội cho chủ đầu tư Nguyễn Hoàng Long là giải pháp tối ưu giữa thẩm mỹ và công năng. Không gian nhỏ nhưng rõ ràng, dễ vận hành và tạo được sự tin cậy cho khách hàng. Đây là gợi ý hiệu quả cho các chủ tiệm đang muốn cải tạo cửa hàng vàng bạc trong khu vực nội đô.







A. PenViet có hệ thống chi nhánh văn phòng và xưởng sản xuất ở nhiều nơi trên toàn quốc, nên giá thành sản phẩm là giá xuất xưởng, cạnh tranh nhằm đảm bảo chất lượng và dịch vụ phục vụ Khách hàng tốt nhất.
A: PenViet cung cấp dịch vụ tới mọi thành phần kinh tế, chúng tôi cung cấp dịch vụ thiết kế, thi công và bán lẻ các mặt hàng nội thất.
- Với các sản phẩm khách hàng đã có bản vẽ 2D hoặc 3D: PenViet sẽ phân tích bản vẽ và báo giá cạnh tranh.
- Với các sản phẩm cần thiết kế chi tiết: PenViet sẽ báo giá từ thiết kế đến thi công.
- Với những khách hàng mua hàng có sẵn với số lượng lớn: vui lòng liên hệ để nhận báo giá cạnh tranh.
- Đối với các Showroom có diện tích trưng bày sản phẩm rộng lớn: PenViet có khung giá phù hợp với ngân sách của khách hàng.