Trong bối cảnh mặt bằng kinh doanh ngày càng thu hẹp, việc cải tạo tiệm vàng diện tích nhỏ đòi hỏi tư duy thiết kế bài bản và có chiều sâu. Dự án thiết kế tiệm vàng Bảo Châu 34m² tại Tuyên Quang do Mrs Lê Lan làm chủ đầu tư là ví dụ rõ nét cho cách tổ chức không gian khoa học, sang trọng nhưng vẫn tối ưu trưng bày. Phương án thiết kế trọn gói 2D, 3D giúp chủ đầu tư hình dung rõ ràng trước khi thi công, hạn chế rủi ro và phát sinh. Bài viết phân tích các điểm mạnh nổi bật của dự án, hướng đến những chủ tiệm đang có nhu cầu cải tạo không gian kinh doanh vàng bạc, trang sức.
Hiện trạng trước thiết kế
.jpg)
.jpg)
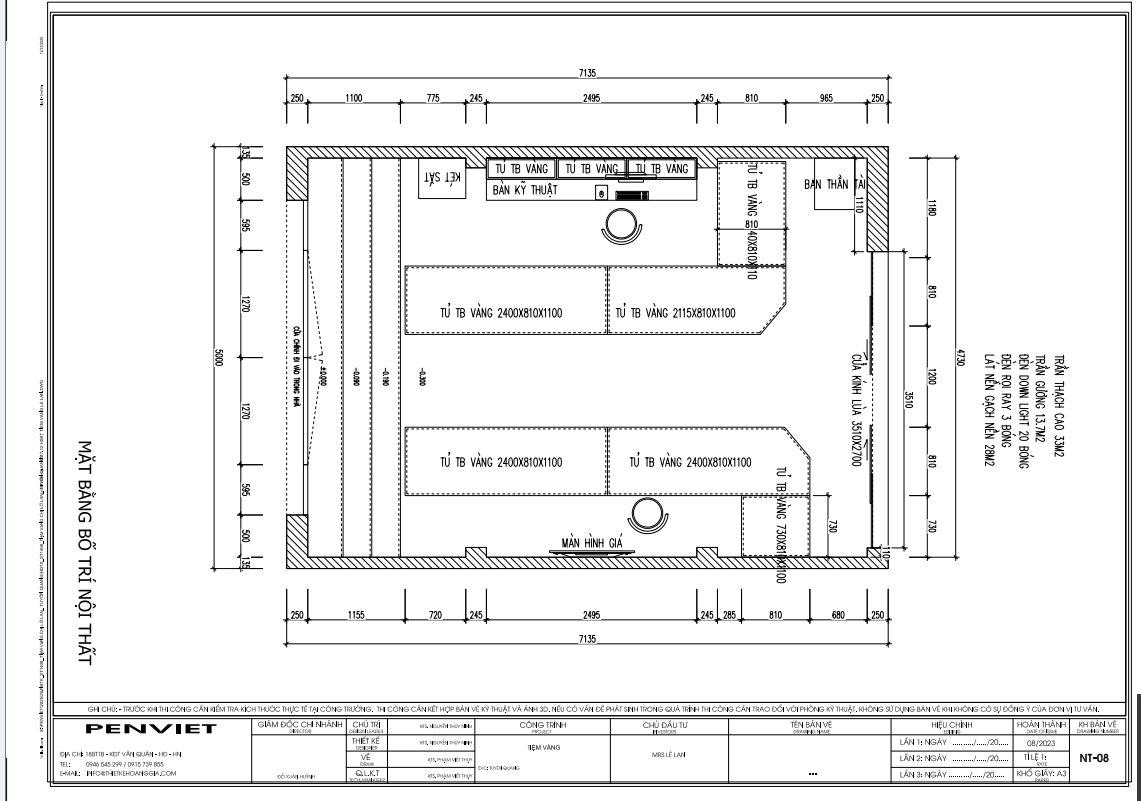
Mặt bằng công năng
.png)
Với diện tích 34m², bài toán lớn nhất là tổ chức lối đi và quầy trưng bày sao cho không gian không bị chật chội. Thiết kế lựa chọn bố cục quầy dạng chữ U mở, tạo cảm giác bao quanh nhưng vẫn thông thoáng. Các quầy được sắp xếp song song, giữ khoảng cách vừa đủ để khách di chuyển thoải mái và nhân viên dễ tư vấn. Cách bố trí này đặc biệt phù hợp với các chủ đầu tư đang cải tạo tiệm vàng mặt bằng nhỏ tại khu vực phố tỉnh.
.jpg)
Không gian trung tâm được ưu tiên cho các sản phẩm chủ lực, giúp khách dễ tiếp cận ngay khi bước vào. Lối đi thẳng, rõ ràng giúp kiểm soát tầm nhìn và an ninh tốt hơn. Đây là yếu tố rất quan trọng với tiệm vàng, nhất là những cửa hàng cải tạo từ nhà phố cũ. Bố cục mặt bằng cho thấy sự tính toán kỹ lưỡng ngay từ khâu thiết kế 2D.
Thông tin dự án
Chủ đầu tư: Mrs Lê Lan
Địa điểm: Tuyên Quang
Diện tích: 34m2 thiết kế trọn gói
Nội dung: thiết kế tiệm vàng
Hệ quầy trưng bày trong dự án được thiết kế đồng bộ về kích thước, chiều cao và vật liệu. Mặt kính trong suốt giúp phô bày sản phẩm một cách tinh tế, hạn chế cảm giác nặng nề cho không gian nhỏ. Phần thân quầy sử dụng gam trắng kết hợp chỉ kim loại ánh vàng, tạo cảm giác cao cấp và phù hợp với đặc thù ngành vàng bạc.
.jpg)
Cách chia ngăn trưng bày khoa học giúp mỗi bộ trang sức có không gian riêng, không bị rối mắt. Ánh sáng tích hợp bên trong quầy làm nổi bật màu sắc và độ tinh xảo của sản phẩm. Đây là điểm mạnh rõ rệt dành cho các chủ đầu tư muốn nâng tầm hình ảnh cửa hàng mà không cần mở rộng diện tích. Thiết kế quầy không chỉ để trưng bày mà còn góp phần tăng giá trị cảm nhận của sản phẩm.
.jpg)
Gam màu chủ đạo của tiệm vàng là trắng, kem và ánh kim, giúp không gian trở nên sáng và sạch sẽ. Sàn sử dụng vật liệu vân đá sáng màu, phản chiếu ánh sáng tốt và tạo hiệu ứng mở rộng diện tích. Tường được ốp các mảng phẳng kết hợp chi tiết kim loại mảnh, vừa hiện đại vừa không gây rối mắt.
.jpg)
Việc hạn chế quá nhiều màu sắc giúp tiệm vàng giữ được sự tập trung vào sản phẩm. Chất liệu kính, kim loại và đá được phối hợp hài hòa, phù hợp với xu hướng thiết kế tiệm vàng hiện nay. Đây là gợi ý đáng tham khảo cho những chủ tiệm đang cải tạo không gian cũ, thiếu ánh sáng và kém sang trọng. Thiết kế cho thấy chỉ cần lựa chọn đúng vật liệu, diện tích nhỏ vẫn có thể tạo ấn tượng mạnh.
Ánh sáng trong tiệm vàng được bố trí nhiều lớp, kết hợp giữa ánh sáng tổng thể và ánh sáng nhấn. Đèn trần cung cấp nguồn sáng đều, hạn chế bóng tối trong không gian nhỏ. Hệ đèn trong quầy và tủ tường giúp sản phẩm nổi bật hơn, đặc biệt là các chi tiết đá và kim loại quý.
.jpg)
Một số mảng tường được thiết kế làm khu vực trưng bày đứng, vừa tăng diện tích trưng bày vừa tạo chiều sâu cho không gian. Các chi tiết trang trí được tiết chế, không làm lu mờ sản phẩm chính. Với những chủ đầu tư đang cân nhắc cải tạo tiệm vàng cũ, cách xử lý ánh sáng này giúp thay đổi hoàn toàn cảm nhận không gian mà không cần can thiệp quá nhiều vào kết cấu. Đây là yếu tố mang lại hiệu quả cao trong kinh doanh trang sức.
.jpg)
Dự án được triển khai thiết kế trọn gói từ bản vẽ 2D đến phối cảnh 3D, giúp chủ đầu tư dễ dàng kiểm soát toàn bộ không gian trước khi thi công. Các phương án được thể hiện rõ ràng về bố cục, màu sắc và vật liệu, hạn chế tối đa sai lệch khi triển khai thực tế. Điều này đặc biệt quan trọng với tiệm vàng, nơi yêu cầu cao về thẩm mỹ và an ninh.
Thiết kế 3D giúp Mrs Lê Lan hình dung chính xác trải nghiệm khách hàng trong không gian 34m². Việc này giúp tiết kiệm chi phí chỉnh sửa và rút ngắn thời gian thi công. Với các chủ đầu tư tại Tuyên Quang và khu vực lân cận, giải pháp thiết kế trọn gói là lựa chọn phù hợp khi cải tạo hoặc mở mới tiệm vàng. Nó mang lại sự chủ động và an tâm trong suốt quá trình thực hiện.
Thiết kế tiệm vàng Bảo Châu 34m² tại Tuyên Quang là minh chứng cho việc cải tạo không gian nhỏ vẫn có thể đạt hiệu quả thẩm mỹ và kinh doanh cao. Bố cục khoa học, vật liệu tinh tế và ánh sáng hợp lý giúp cửa hàng trở nên sang trọng, chuyên nghiệp hơn. Đây là gợi ý đáng tham khảo cho các chủ đầu tư đang tìm giải pháp nâng cấp tiệm vàng hiện hữu mà không cần mở rộng diện tích.







A. PenViet có hệ thống chi nhánh văn phòng và xưởng sản xuất ở nhiều nơi trên toàn quốc, nên giá thành sản phẩm là giá xuất xưởng, cạnh tranh nhằm đảm bảo chất lượng và dịch vụ phục vụ Khách hàng tốt nhất.
A: PenViet cung cấp dịch vụ tới mọi thành phần kinh tế, chúng tôi cung cấp dịch vụ thiết kế, thi công và bán lẻ các mặt hàng nội thất.
- Với các sản phẩm khách hàng đã có bản vẽ 2D hoặc 3D: PenViet sẽ phân tích bản vẽ và báo giá cạnh tranh.
- Với các sản phẩm cần thiết kế chi tiết: PenViet sẽ báo giá từ thiết kế đến thi công.
- Với những khách hàng mua hàng có sẵn với số lượng lớn: vui lòng liên hệ để nhận báo giá cạnh tranh.
- Đối với các Showroom có diện tích trưng bày sản phẩm rộng lớn: PenViet có khung giá phù hợp với ngân sách của khách hàng.