Thiết kế tiệm vàng diện tích nhỏ luôn là thách thức lớn đối với chủ đầu tư. Không gian hạn chế đòi hỏi sự tinh chỉnh cẩn thận về ánh sáng, vật liệu, lối đi và khu trưng bày. Dự án thiết kế tiệm vàng Minh Trí tại Hà Nam, với diện tích chỉ 24m2, đã cho thấy cách bố trí thông minh có thể biến một mặt bằng nhỏ thành cửa hàng sang trọng và thu hút khách. Bài viết dưới đây phân tích chi tiết giải pháp thiết kế, giúp chủ đầu tư đang muốn cải tạo tiệm vàng có thêm góc nhìn thực tế và hiệu quả.
Hiện trạng trước thiết kế
.jpg)
.jpg)
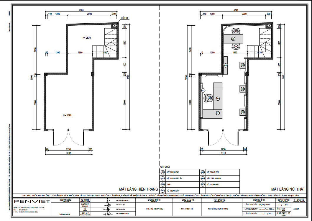
Mặt bằng công năng
.png)
Tiệm vàng Minh Trí được định hướng theo phong cách hiện đại, tối giản và sang trọng. Diện tích 24m2 được xử lý bằng cách chia các khu trưng bày theo chiều dọc, kết hợp ánh sáng vàng sang trọng để tạo cảm giác rộng và cao hơn.
.jpg)
Không gian sử dụng vật liệu chủ đạo là kính, kim loại mạ vàng, đá sáng và hệ ánh sáng led âm. Những lựa chọn này giúp tiệm vàng giữ được vẻ hiện đại và nổi bật, đồng thời phù hợp với diện tích nhỏ.
Tiệm được thiết kế với mục tiêu rõ ràng: làm nổi bật sản phẩm, tối ưu lối đi và tạo cảm giác chuyên nghiệp cho khách hàng ngay khi bước vào.
.jpg)
Thông tin dự án
Chủ đầu tư: Anh Minh trí
Địa điểm: Hà Nam
Diện tích: 24m2
Nội dung: Thiết kế tiệm vàng
Với 24m2, việc phân bổ từng khu vực được tính toán kỹ lưỡng để không gian không bị bí hay chật. Thiết kế chia thành ba phần rõ rệt:
Khu vực trưng bày chính
Hệ tủ đứng trưng bày hai bên
Khu bàn tư vấn ở cuối cửa hàng
Bố cục chạy dọc giúp khách hàng dễ quan sát sản phẩm và di chuyển thuận tiện. Hai bên tường bố trí tủ kính đứng, vừa tạo điểm nhấn, vừa giải phóng mặt bằng ở trung tâm. Đây là giải pháp lý tưởng với các tiệm vàng nhỏ vì đảm bảo được số lượng sản phẩm trưng bày mà vẫn giữ sự thông thoáng.
.jpg)
Khu vực tư vấn đặt cuối tiệm tạo sự riêng tư. Điều này rất phù hợp cho các giao dịch có giá trị cao, đòi hỏi không gian kín đáo.
Một trong những điểm mạnh dễ nhận thấy từ hình ảnh là mảng tường logo. Logo hình viên kim cương được chiếu sáng khéo léo, ánh sáng vàng chạy viền giúp thương hiệu nổi bật ngay lập tức.
.jpg)
Tông màu trung tính của phông tường kết hợp ánh sáng hắt nhẹ tạo cảm giác sang trọng nhưng vẫn tinh tế. Đối với chủ đầu tư muốn nâng cao hình ảnh thương hiệu, việc đầu tư vào khu vực logo như dự án này là rất quan trọng.
Logo sáng giúp tăng nhận diện, tạo ấn tượng tốt và giúp khách hàng dễ ghi nhớ thương hiệu hơn.
Điểm nhấn quan trọng nhất của tiệm vàng Minh Trí nằm ở hệ tủ trưng bày. Tủ kính sử dụng khung kim loại mạ vàng, kết hợp ánh sáng led chạy dọc theo khung. Ánh sáng này giúp sản phẩm trở nên lung linh và thu hút hơn.
.jpg)
Tủ đứng bố trí hai bên với chiều cao cân đối. Nhờ thiết kế bo góc, các cạnh tủ trở nên mềm mại, tránh tình trạng không gian bị “cứng”. Đây là ưu điểm lớn với các tiệm vàng nhỏ, giúp cải thiện cảm giác chật chội.
Tủ bàn trưng bày ở giữa được sắp xếp hợp lý. Mặt kính trong suốt cho phép khách quan sát sản phẩm từ nhiều góc khác nhau. Hệ khay trưng bày bên trong được chia ngăn rõ ràng, tạo sự gọn gàng và chuyên nghiệp.
Nhìn tổng thể, hệ tủ vừa giúp tối ưu công năng vừa thể hiện rõ tính thẩm mỹ của một cửa hàng trang sức cao cấp.
Ánh sáng là linh hồn của mọi tiệm vàng. Dự án thiết kế tiệm vàng Minh Trí sử dụng hai loại ánh sáng chính: ánh sáng vàng ấm cho không gian và ánh sáng trắng nhẹ cho sản phẩm.
Hệ đèn led âm trần bố trí đều, tạo ánh sáng dịu, không gây chói. Tủ trưng bày được bổ sung ánh sáng chiếu dọc, giúp vàng và trang sức có độ phản chiếu tốt. Điều này tạo hiệu ứng lấp lánh cho sản phẩm mà không cần ánh sáng quá mạnh.
.jpg)
Tiệm vàng Minh Trí sử dụng nhiều vật liệu chất lượng như:
Kính cường lực
Khung inox mạ PVD vàng
Đá trắng vân nhẹ
Gỗ công nghiệp phủ melamine
Sự kết hợp này không chỉ tạo nên vẻ cao cấp mà còn đảm bảo độ bền trong quá trình vận hành. Vật liệu sáng màu giúp mở rộng không gian. Bảng màu vàng, trắng, nâu tạo cảm giác ấm áp nhưng không kém phần hiện đại.
.jpg)
Đây là xu hướng phổ biến trong thiết kế tiệm vàng hiện nay. Chủ đầu tư có diện tích nhỏ đặc biệt nên sử dụng màu sáng để không gian rộng và thoáng hơn.
Khu tư vấn đặt cuối không gian mang lại sự yên tĩnh cần thiết. Bàn ghế được thiết kế tối giản, kiểu dáng thanh lịch. Tông màu trắng kết hợp các chi tiết mạ vàng tạo cảm giác đồng nhất với tổng thể.
Mảng tường sau bàn tư vấn sử dụng họa tiết hoa văn nhẹ, tăng chiều sâu thị giác. Điều này giúp khu tư vấn trở thành điểm nhấn mềm mại, mang đến cảm giác thoải mái khi khách lựa chọn sản phẩm.
Với diện tích nhỏ, bố trí khu tư vấn ở cuối tiệm là giải pháp tiện lợi và hiệu quả nhất. Chủ đầu tư có thể áp dụng để đảm bảo tính riêng tư cho khách hàng.
.jpg)
Một điểm mạnh khác của tiệm vàng Minh Trí là sự liền mạch trong bố cục. Từ tủ trưng bày, quầy đón tiếp, đến khu tư vấn đều được liên kết bằng cùng tông màu và vật liệu.
Khung mạ vàng chạy theo chiều dọc tường tạo thành đường dẫn thị giác. Điều này giúp không gian dài và sâu hơn. Đây là kỹ thuật thường được dùng trong các thiết kế cửa hàng cao cấp, đặc biệt hữu ích cho diện tích nhỏ như 24m2.
Sự liền mạch còn giúp khách hàng có trải nghiệm tốt hơn. Không gian trông chuyên nghiệp, chỉn chu và nhất quán.
Thiết kế tiệm vàng Minh Trí tại Hà Nam cho thấy diện tích 24m2 vẫn có thể trở thành một cửa hàng trang sức sang trọng nếu biết cách xử lý ánh sáng, vật liệu và bố trí không gian. Nhờ sự tinh gọn, hiện đại và tối ưu trong từng chi tiết, tiệm vàng mang lại trải nghiệm mua sắm cao cấp và thu hút. Đây là mẫu thiết kế phù hợp cho các chủ đầu tư đang muốn cải tạo lại cửa hàng của mình theo hướng sang trọng và hiệu quả hơn.







A. PenViet có hệ thống chi nhánh văn phòng và xưởng sản xuất ở nhiều nơi trên toàn quốc, nên giá thành sản phẩm là giá xuất xưởng, cạnh tranh nhằm đảm bảo chất lượng và dịch vụ phục vụ Khách hàng tốt nhất.
A: PenViet cung cấp dịch vụ tới mọi thành phần kinh tế, chúng tôi cung cấp dịch vụ thiết kế, thi công và bán lẻ các mặt hàng nội thất.
- Với các sản phẩm khách hàng đã có bản vẽ 2D hoặc 3D: PenViet sẽ phân tích bản vẽ và báo giá cạnh tranh.
- Với các sản phẩm cần thiết kế chi tiết: PenViet sẽ báo giá từ thiết kế đến thi công.
- Với những khách hàng mua hàng có sẵn với số lượng lớn: vui lòng liên hệ để nhận báo giá cạnh tranh.
- Đối với các Showroom có diện tích trưng bày sản phẩm rộng lớn: PenViet có khung giá phù hợp với ngân sách của khách hàng.