Một tiệm vàng muốn tạo dấu ấn cần mang lại cảm giác sang trọng, tin cậy và khác biệt ngay từ ánh nhìn đầu tiên. Dự án thiết kế tiệm vàng Phương Thúy của anh Tuấn tại Hải Phòng mang phong cách Luxury được ứng dụng đúng cách và hiệu quả. Không gian 55m2 được tổ chức khoa học, tinh tế và tạo nên trải nghiệm mua sắm cao cấp cho khách hàng.
Hiện trạng trước thiết kế
.jpg)
.jpg)
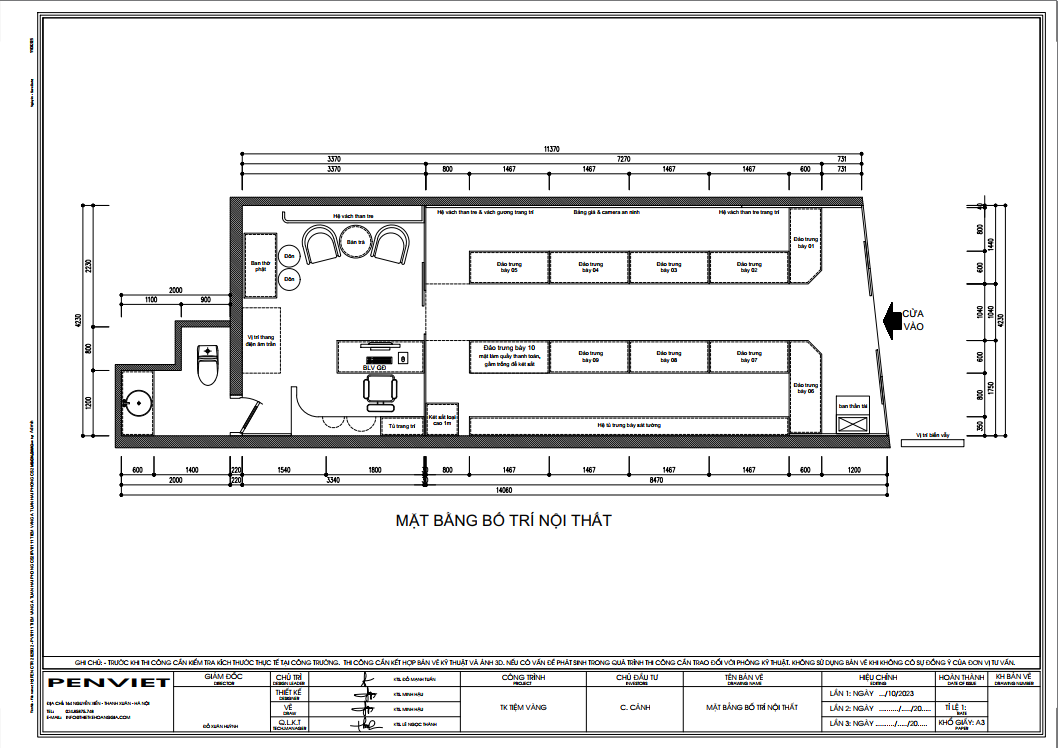
Mặt bằng công năng
.png)
Anh Tuấn hướng đến một không gian thể hiện đẳng cấp của thương hiệu trang sức. Thiết kế cần mang lại hình ảnh chuyên nghiệp, phù hợp để trưng bày vàng, kim cương và các sản phẩm cao cấp. Đồng thời, không gian phải đủ rộng rãi, không gây áp lực thị giác để khách hàng cảm thấy thoải mái khi lựa chọn.
.jpg)
Mục tiêu lớn nhất là tạo ra một tiệm vàng Luxury thật sự nổi bật giữa trung tâm Hải Phòng. Với diện tích 55m2, bài toán đặt ra là tối ưu hóa mặt sàn, đảm bảo sự sang trọng nhưng không gây cảm giác nặng nề hay choáng ngợp.
Thông tin dự án
1. Tên dự án: Tiệm vàng Phương Thúy - Vàng và kim cương
2: Chủ đầu tư: Anh Tuấn
3. Địa chỉ: Hải Phòng
4. Diện tích: 55 m2
5. Phong cách thiết kế : Luxury
Bảng hiệu trong nhà được thiết kế lớn, đặt ở vị trí trung tâm. Màu vàng ánh kim kết hợp chữ nổi tạo nên hiệu ứng sang trọng. Logo kim cương trở thành tâm điểm và khẳng định định vị thương hiệu cao cấp.
.jpg)
Vị trí này giúp cửa hàng dễ dàng ghi dấu trong tâm trí khách hàng. Đây cũng là yếu tố giúp tăng nhận diện và nâng cấp mức độ chuyên nghiệp của không gian.
Ngay khi bước vào không gian, khách hàng dễ dàng nhận diện thương hiệu Phương Thúy qua bảng tên lớn đặt tại trung tâm. Logo kim cương được đặt trên mảng tường trang trí nổi bật, vừa sáng tạo vừa tạo cảm giác cao cấp. Bố cục bảng hiệu được chăm chút kỹ lưỡng, thể hiện sự nghiêm túc trong việc xây dựng hình ảnh.
.jpg)
Tone màu ánh kim kết hợp nền trắng kem mang lại cảm giác tinh tế. Nhờ đó, không gian trưng bày trở thành phông nền lý tưởng giúp trang sức tỏa sáng. Đây là yếu tố cần thiết khi chủ đầu tư muốn nâng tầm giá trị sản phẩm trong mắt khách hàng.
.jpg)
Trần tiệm vàng là một trong những chi tiết ấn tượng nhất của dự án. Các mảng hoa văn kim loại ánh bạc được xử lý tinh tế, phủ dài theo toàn bộ chiều dài mặt bằng. Chúng tạo nên hiệu ứng phản chiếu sang trọng và góp phần mở rộng chiều cao thị giác.
.jpg)
Hệ đèn tracklight được bố trí chạy dọc theo vị trí quầy trưng bày. Điều này giúp chiếu sáng trực tiếp từng khu vực và làm nổi bật các mẫu trang sức. Trần có thiết kế cầu kỳ nhưng không gây rối, thể hiện rõ tinh thần Luxury mà anh Tuấn hướng đến.
Không gian được bố trí quầy trưng bày chạy liền mạch, tạo sự thống nhất về bố cục. Mỗi quầy có kích thước tiêu chuẩn, mặt kính rộng và chân quầy cao, giúp khách dễ quan sát sản phẩm mà không cần cúi người quá nhiều. Thiết kế chân quầy thanh thoát giúp không gian không bị bí.
.jpg)
Quầy được sắp theo chiều dọc, tận dụng tối đa diện tích 55m2 nhưng vẫn để lại lối đi rộng rãi. Khách hàng có thể di chuyển thuận tiện, nhân viên cũng dễ thao tác. Hình ảnh tiệm vàng vì vậy trở nên chuyên nghiệp và hệ thống hơn.
Chất liệu kính cường lực trong suốt giúp toàn bộ ánh sáng lan tỏa đều trong tiệm. Sàn đá marble sáng bóng phản chiếu ánh sáng, tạo chiều sâu và mang đến cảm giác sang trọng đặc trưng của phong cách Luxury. Màu vân đá nhẹ nhàng giúp tiệm vàng thêm phần hiện đại và sạch sẽ.
.jpg)
Chủ đầu tư có thể dễ dàng vệ sinh và bảo trì. Đây cũng là điểm mạnh lớn vì tiệm vàng luôn cần giữ hình ảnh hoàn hảo mỗi ngày. Sử dụng vật liệu cao cấp giúp tăng tuổi thọ công trình và giảm chi phí sửa chữa về sau.
Ánh sáng trắng trung tính được chọn làm chủ đạo. Ánh sáng này phù hợp với sản phẩm vàng và kim cương, giúp chúng nổi bật mà không làm thay đổi màu sắc thật. Hệ đèn LED âm trần kết hợp đèn chiếu điểm chạy dọc quầy giúp tạo nhiều lớp ánh sáng, tăng chiều sâu và vẻ lung linh cho không gian.
Sự kết hợp hài hòa giữa ánh sáng kỹ thuật và ánh sáng trang trí cho thấy sự tính toán kỹ càng của đơn vị thiết kế. Đây là yếu tố quan trọng khi chủ đầu tư muốn nâng cấp trải nghiệm thị giác.
.jpg)
Dù diện tích chỉ 55m2, tiệm vàng Phương Thúy vẫn mang lại cảm giác rộng thoáng. Thiết kế không sử dụng các vách ngăn đặc. Thay vào đó, không gian được mở hoàn toàn, tạo sự liền mạch thị giác từ cửa vào đến cuối cửa hàng.
Việc sử dụng tone sáng cùng mặt kính lớn càng tăng hiệu ứng thoáng rộng. Đây là giải pháp tối ưu cho các mặt bằng kinh doanh nhỏ nhưng yêu cầu độ sang trọng cao.
Hệ quầy cao tiêu chuẩn giúp bảo vệ sản phẩm bên trong nhưng vẫn giữ được tính thẩm mỹ. Các khu vực quan trọng được đặt ở vị trí dễ quan sát. Từ hình ảnh có thể thấy các lối đi được thiết kế hợp lý, thuận tiện cho kiểm soát an ninh.
Điều này đặc biệt quan trọng với cửa hàng vàng bạc, nơi vừa yêu cầu thẩm mỹ cao vừa đòi hỏi tính bảo mật nghiêm ngặt. Cách bố trí thông minh giúp duy trì an toàn mà không làm mất cảm giác sang trọng.
Với thương hiệu hướng đến vàng và kim cương, tiệm cần đủ vị trí để trưng bày các dòng sản phẩm khác nhau. Hình ảnh cho thấy quầy được phân chia từng khu vực rõ ràng. Các khay trưng bày được sắp xếp gọn gàng, giúp khách dễ tìm kiếm sản phẩm phù hợp.
Không gian cũng có các tủ đứng với ánh sáng chiếu riêng, dành cho trang sức đặc biệt hoặc bộ sưu tập cao cấp. Điểm này thể hiện sự tinh tế trong cách anh Tuấn xây dựng hình ảnh chuyên nghiệp cho cửa hàng.
Khu vực tiếp đón tư vấn khách
Phong cách Luxury không chỉ mang ý nghĩa về thẩm mỹ. Đây còn là cách nâng tầm giá trị sản phẩm và tạo sự tin tưởng cho khách hàng. Khi bước vào không gian sang trọng, khách hàng sẽ cảm nhận rõ sự uy tín và chất lượng của sản phẩm trong cửa hàng.
.jpg)
Đối với chủ đầu tư như anh Tuấn, thiết kế này không chỉ làm đẹp cửa hàng mà còn đóng góp trực tiếp vào doanh thu. Một tiệm vàng đẹp, cao cấp sẽ thu hút khách hàng tốt hơn, tăng sức cạnh tranh và tạo lợi thế bền vững.
.jpg)
Dự án thiết kế tiệm vàng Phương Thúy tại Hải Phòng là sự kết hợp hài hòa giữa thẩm mỹ Luxury và công năng trưng bày chuyên nghiệp. Không gian 55m2 được xử lý tinh tế, mở rộng và sang trọng hơn diện tích thực. Đây là lựa chọn đúng đắn cho chủ đầu tư đang tìm giải pháp cải tạo không gian kinh doanh trang sức theo hướng cao cấp, đồng bộ và hiệu quả.







A. PenViet có hệ thống chi nhánh văn phòng và xưởng sản xuất ở nhiều nơi trên toàn quốc, nên giá thành sản phẩm là giá xuất xưởng, cạnh tranh nhằm đảm bảo chất lượng và dịch vụ phục vụ Khách hàng tốt nhất.
A: PenViet cung cấp dịch vụ tới mọi thành phần kinh tế, chúng tôi cung cấp dịch vụ thiết kế, thi công và bán lẻ các mặt hàng nội thất.
- Với các sản phẩm khách hàng đã có bản vẽ 2D hoặc 3D: PenViet sẽ phân tích bản vẽ và báo giá cạnh tranh.
- Với các sản phẩm cần thiết kế chi tiết: PenViet sẽ báo giá từ thiết kế đến thi công.
- Với những khách hàng mua hàng có sẵn với số lượng lớn: vui lòng liên hệ để nhận báo giá cạnh tranh.
- Đối với các Showroom có diện tích trưng bày sản phẩm rộng lớn: PenViet có khung giá phù hợp với ngân sách của khách hàng.