Thiết kế tiệm vàng, Thiết kế cửa hàng trang sức, Thiết kế tiệm trang sức
Tên dự án: Thiết kế tiệm vàng Thanh Bình
Tên chủ đầu tư: Nguyễn Thị Loan
Diện tích: 110m2
Địa chỉ: Số 1B Đại Lộ 2, Phường Phước Bình, Thành phố Thủ Đức - Thành phố Hồ Chí Minh
Phong cách: Hiện đại, sang trọng
Tiệm vàng Thanh Bình có lợi thế mặt tiền lớn, vuông vức và rộng rãi ngay mặt đường Đại Lộ 2 nhưng hiện trạng mặt bằng cũ kỹ, lỗi thời đã không thể phát huy được thế mạnh này. Vì thế, chị Loan mong muốn sở hữu một mẫu thiết kế không gian theo hình chữ U và trang trí thêm phần gương để giúp mở rộng không gian, tủ trưng bày phân loại và sắp xếp khoa học để giúp khách hàng cơ được những trải nghiệm dịch vụ tốt nhất. Sau quá trình tìm hiểu giữa rất nhiều đơn vị, chị Loan đã tin tưởng và lựa chọn Penviet - Đơn vị hàng đầu trong lĩnh vực thiết kế tiệm vàng, cửa hàng, shop, spa chuyên nghiệp với những ý tưởng độc đáo, chất lượng được nhiều khách hàng khẳng định.

Diện tích mặt bằng rộng lớn nhưng vật chất của cửa tiệm còn thô sơ
Sau khi thực hiện khảo sát mặt bằng và lắng nghe ý kiến của khách hàng, các kiến trúc sư của Penviet đã tư vấn cho chị Loan lựa chọn phong cách hiện đại, sang trọng kết hợp với những giải pháp bố trí không gian khoa học nhằm mang đến một diện mạo hoàn toàn mới, vừa phát huy được thế mạnh mặt bằng, vừa làm tôn nét nét đẹp của mặt hàng trang sức và nâng cao giá trị thương hiệu tiệm vàng Thanh Bình.
Ý tưởng của các kiến trúc sư Penviet là sử dụng các vách logo hoa tiết vân đá kết hợp với vách ngăn, kệ tủ trưng bày vân gỗ mang đến vẻ đẹp sang trọng, quý phái, thể hiện sự đẳng cấp của thương hiệu vàng.

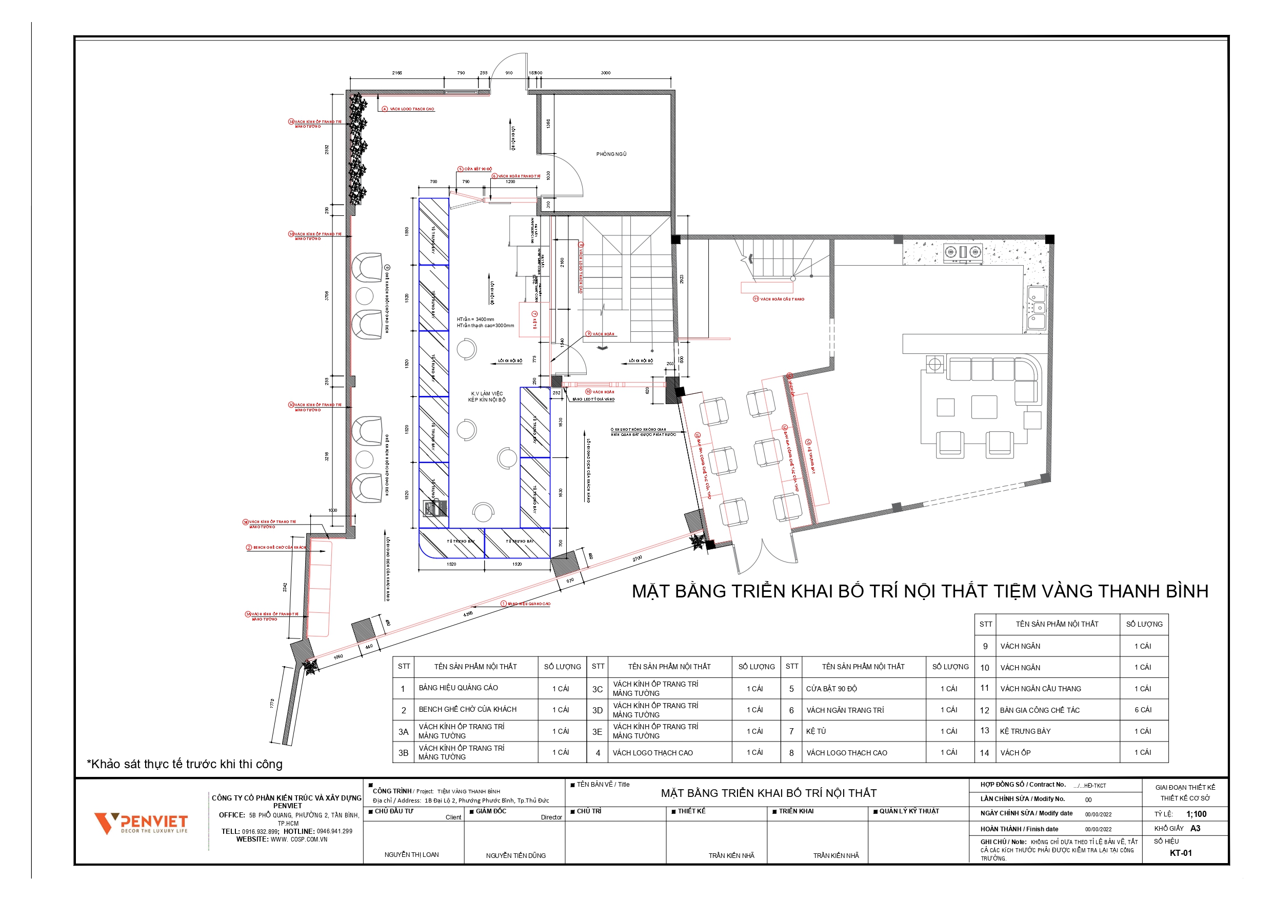
Bản vẽ mặt bằng thiết kế tiệm vàng Thanh Bình
Biển hiệu trong mẫu thiết kế tiệm vàng Thanh Bình được làm theo khuôn mẫu truyền thống với khung sắt và ốp Alu làm nổi bật tên công ty, thương hiệu và logo bằng mica phát sáng. Ngoài ra, toàn bộ biển hiệu còn tạo được điểm nhấn nhờ phần viền được nẹp inox mạ xi vàng bắt mắt.

Thiết kế tiệm vàng với biển hiệu truyền thống
Để lột tả được hết ý đồ thiết kế của kiến trúc sư và nâng cao vị thế thương hiệu vàng Thanh Bình, chúng tôi đã lựa chọn thiết kế phần vách logo với chất liệu gỗ MDF chống ẩm phủ melamine ốp vân đá vô cùng sang trọng. Từ đó cũng làm nổi bật bộ chữ inox mạ vàng sáng chân, cùng bộ logo hộp mica phát sáng.

Vách logo giúp làm sáng không gian tiệm vàng
Nét đẹp sang trọng của tiệm vàng tiếp tục tôn lên nhờ phần vách logo phía sau được thiết kế với thạch cao 2 mặt, nẹp chỉ Hàn Quốc, bộ chữ và logo phát sáng, qua đó cũng tạo được hiệu ứng thị giác mạnh mẽ với khách hàng.

Vách logo phía sau làm tôn lên bộ chữ mica phát sáng
Đa dạng và sáng tạo trong mẫu thiết kế tiệm vàng, Penviet đã tư vấn cho chị Loan sử dụng các vách ngăn cắt CNC cao cấp với chất liệu gỗ MDF phủ melamine họa tiết trang trí với các đường nét hoa văn tượng trưng cho sự khởi đầu may mắn, thịnh vượng.

Họa tiết hoa văn trang trí tượng trưng cho sự khởi đầu may mắn
Đặc biệt, phần vách ngăn phòng khách cũng được các kiến trúc sư với hệ lam gỗ MDF phủ melamine ốp tấm PVC họa tiết vân đá sang trọng, dễ vệ sinh đặc biệt lỗi thiết kế thời thượng này sẽ không bị lỗi thời.

Tủ trưng bày được đặt phía trước vách lam phòng khách
Phía sau được bố trí tủ trưng bày gỗ MDF với kính cường lực dày, khung nhôm xingfa kết hợp bộ đèn led hắt đợt làm tôn lên vẻ đẹp cho sản phẩm được trưng bày, đồng thời làm không gian tiệm vàng thêm ấm cúng, sang trọng, quyền quý.
Chính chủ đầu tư cũng tâm sự với Penviet rằng, giải pháp thiết kế này vừa giúp tối ưu không gian mặt bằng của tiệm, vừa tạo một bức tranh hài hòa cả về màu sắc, vật thể và phong thủy. Hy vọng sự thay đổi diện mạo này sẽ mang đến những điều may mắn cho tiệm vàng để chúng tôi tiếp tục mở rộng cơ sở kinh doanh và có cơ hội trở thành đối tác thân thiết của Penviet.

Không gian sang trọng nhờ giải pháp thiết kế khoa học
Thiết kế tiệm vàng trang sức Thanh Bình sử dụng kệ trưng bày gỗ MDF với các nan gỗ dọc song song, phần trung tâm được trang trí với tranh in PP cán formex vừa mang đến nét đẹp hiện đại, vừa có vẻ đẹp cổ điển tạo sự hài hòa, cuốn hút đặc biệt cho không gian này.

Tranh in trang trí mang đến nét đẹp hiện đại, pha nét cổ điển cho không gian
Với mong muốn khách hàng được tiếp đón nồng hậu nhất, trong giải pháp thiết kế tiệm trang sức này, chúng tôi cũng bố trí ghế bench chờ ngay gần lối vào cửa tiệm với khung gỗ MDF phủ melamine bọc nỉ êm ái, không chỉ mang đến sự thoải mái cho người dùng mà còn góp phần hoàn thiện sự đẳng cấp của mẫu thiết kế tiệm vàng này.

Ghế bench được thiết kế ngay lối ra vào giúp khách hàng cảm nhận được sự tận tâm
Sự kết hợp khéo léo của các vật liệu, sản phẩm nội thất được sử dụng trong thiết kế tiệm vàng đã mang đến một không gian sang trọng, tạo nên một bức tranh hoàn hảo vừa mang nét đẹp hiện đại, vừa có sự pha trộn của thiết kế tân cổ điển. Đây là những ý tưởng độc đáo được đội ngũ kiến trúc sư Penviet lên ý tưởng và thực hiện bản vẽ sau khi đã khảo sát mặt bằng và trao đổi với chị Loan - chủ đầu tư của dự án thiết kế tiệm vàng. Bạn thấy sao về mẫu thiết kế tiệm vàng Thanh Bình này? Có hài lòng như chủ đầu tư đã cảm nhận và chia sẻ với Penviet hay không?
Nếu bạn cũng muốn sở hữu cho mình một không gian ấn tượng, một cửa tiệm sang trọng thu hút khách hàng, hãy liên hệ với đội ngũ kiến trúc sư Penviet để được tư vấn và có giải pháp, ý tưởng thiết kế độ đáo bạn nhé!







A. PenViet có hệ thống chi nhánh văn phòng và xưởng sản xuất ở nhiều nơi trên toàn quốc, nên giá thành sản phẩm là giá xuất xưởng, cạnh tranh nhằm đảm bảo chất lượng và dịch vụ phục vụ Khách hàng tốt nhất.
A: PenViet cung cấp dịch vụ tới mọi thành phần kinh tế, chúng tôi cung cấp dịch vụ thiết kế, thi công và bán lẻ các mặt hàng nội thất.
- Với các sản phẩm khách hàng đã có bản vẽ 2D hoặc 3D: PenViet sẽ phân tích bản vẽ và báo giá cạnh tranh.
- Với các sản phẩm cần thiết kế chi tiết: PenViet sẽ báo giá từ thiết kế đến thi công.
- Với những khách hàng mua hàng có sẵn với số lượng lớn: vui lòng liên hệ để nhận báo giá cạnh tranh.
- Đối với các Showroom có diện tích trưng bày sản phẩm rộng lớn: PenViet có khung giá phù hợp với ngân sách của khách hàng.