Tổng quan
Thi công tiệm vàng cao cấp 150m2 tại Nghệ An
Chủ đầu tư: Chị Mỹ
Địa chỉ: Nghệ An
Diện tích: 150m2
Phong cách: Luxury
Chi phí: 478,600,000 vnđ
Hình ảnh thiết kế tiệm vàng cao cấp
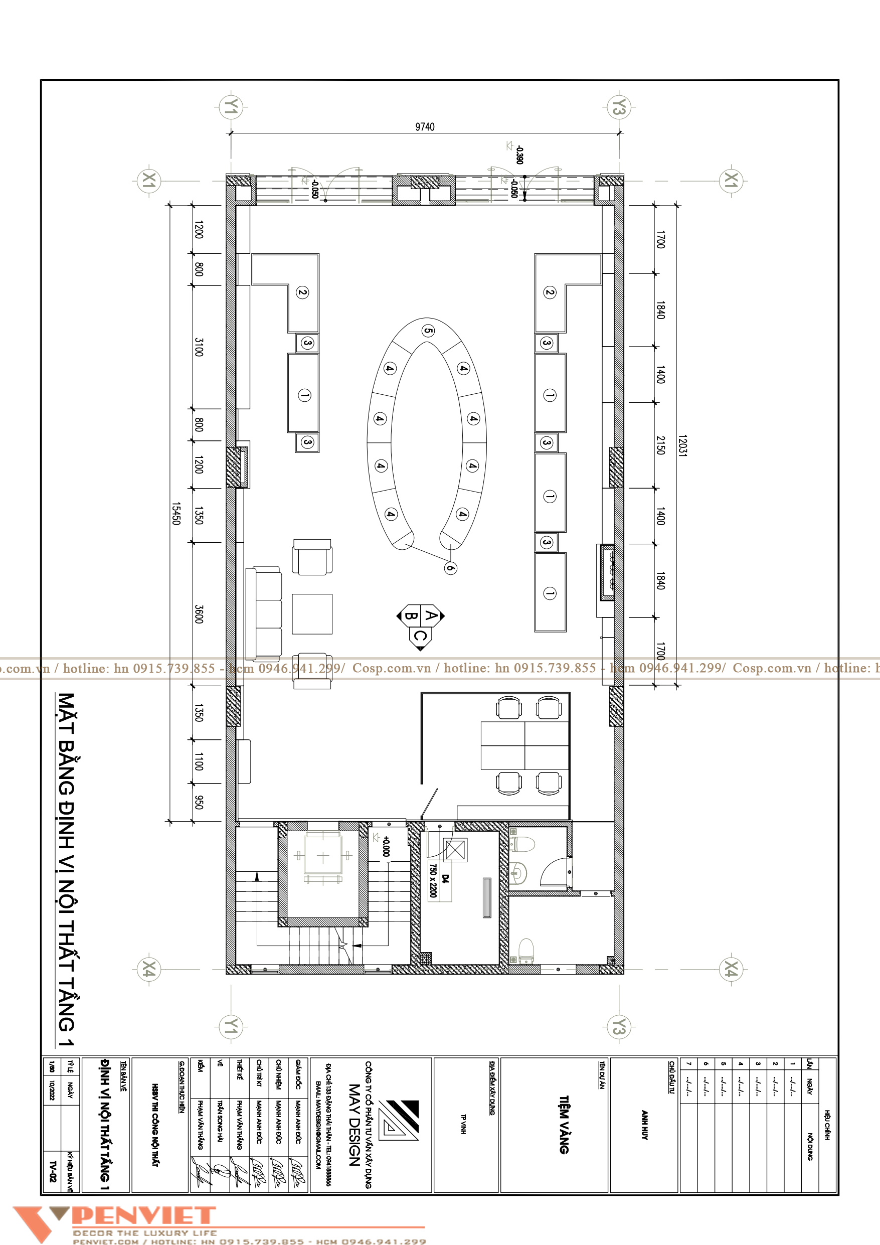
Mặt bằng công năng tiệm vàng

Thiết kế tiệm vàng phong cách luxury cao cấp đầy ấn tượng

Thiết kế tiệm vàng chú trọng vào cách bài trí không gian, sử dụng các vật liệu trang trí cao cấp nhằm toát lên vẻ đẹp sang trọng, lôi cuốn khiến khách hàng không thể không bị cuốn bởi vẻ đẹp này.

Bên trong cửa hàng sử dụng tone màu trung tính hài hòa. Vừa giản dị lại sang trọng rất hút ánh nhìn của khách hàng.

Hệ thống tủ quầy kệ của tiệm vàng được thiết kế với độ chế tác tinh xảo rất cao. Chất liệu gỗ MDF An Cường cốt xanh chống ẩm phủ lamilate kết hợp mặt kính cường lực 10mm, mặt đáy tủ ốp nỉ nhung, đèn led thanh chạy dọc 4 cạnh tủ vừa giúp tôn lên vẻ đẹp lung linh của mặt hàng trang sức, vừa đảm bảo an toàn tuyệt đối cho sản phẩm



Q: PenViet có nhận thiết kế và thi công trọn gói không hay chỉ chuyên về thiết kế?
A: PenViet nhận thiết kế và thi công trọn gói trên toàn quốc. Các văn phòng, chi nhánh của PenViet được đặt tại nhiều địa điểm nhằm cung cấp các dịch vụ không chỉ tại các trung tâm của cả nước mà còn phục vụ tới cả vùng biên giới, hải đảo xa xôi.
Q: Thời gian thiết kế và thi công bao lâu thì xong?
A: Vâng, đây là yếu tố được nhiều khách hàng quan tâm khi chuẩn bị thiết kế và thi công nội thất. Với những diện tích nhỏ thì thời gian thi công nhanh. Cụ thể như sau:
- Diện tích <100m2:
+ Thời gian thiết kế: từ 5 đến 7 ngày
+ Thời gian thi công: 10 đến 12 ngày
(Áp dụng trên toàn quốc)
- Diện tích >100m2:
+ Thời gian thiết kế: từ 7 đến 10 ngày
+ Thời gian thi công: 10 đến 15 ngày
(Áp dụng trên toàn quốc)
- Diện tích >500m2: Quý khách vui lòng liên hệ trực tiếp để biết thời gian thiết kế và thi công cụ thể.
Q: Giá thi công của PenViet cao hay thấp?
A. PenViet có hệ thống chi nhánh văn phòng và xưởng sản xuất ở nhiều nơi trên toàn quốc, nên giá thành sản phẩm là giá xuất xưởng, cạnh tranh nhằm đảm bảo chất lượng và dịch vụ phục vụ Khách hàng tốt nhất.
Q: PenViet thiết kế và thi công nội thất như thế nào?
A: PenViet cung cấp dịch vụ tới mọi thành phần kinh tế, chúng tôi cung cấp dịch vụ thiết kế, thi công và bán lẻ các mặt hàng nội thất.
- Với các sản phẩm khách hàng đã có bản vẽ 2D hoặc 3D: PenViet sẽ phân tích bản vẽ và báo giá cạnh tranh.
- Với các sản phẩm cần thiết kế chi tiết: PenViet sẽ báo giá từ thiết kế đến thi công.
- Với những khách hàng mua hàng có sẵn với số lượng lớn: vui lòng liên hệ để nhận báo giá cạnh tranh.
- Đối với các Showroom có diện tích trưng bày sản phẩm rộng lớn: PenViet có khung giá phù hợp với ngân sách của khách hàng.
Q: Khách hàng ở xa thì PenViet có nhận thiết kế và thi công không?
Q: PenViet nhận thiết kế và thi công trên toàn quốc. Ngoài ra, chúng tôi còn xuất khẩu cả sang thị trường nước ngoài.
Q: Chế độ bảo hành và bảo trì của PenViet thế nào?
A: Hầu hết các sản phẩm của PenViet được bảo hành từ 1 đến 2 năm (tùy chủng loại) và bảo trì vĩnh viễn (có tính phí khi thực hiện bảo trì).