Cửa hàng kinh doanh vàng bạc của bạn có diện tích nhỏ? Bạn mong muốn sở hữu không gian được tối ưu công năng, tiết kiệm chi phí đầu tư, nhưng vẫn đảm bảo sự hiện đại, sang trọng, có sức hút và quảng bá tốt nhất nhận diện thương hiệu của cửa hàng? Dưới đây là mô hình thực tế về giải pháp trang trí nội thất mà Penviet đã kiến tạo cho CĐT Anh Trường - Thiết kế tiệm vàng Đặng Trường.
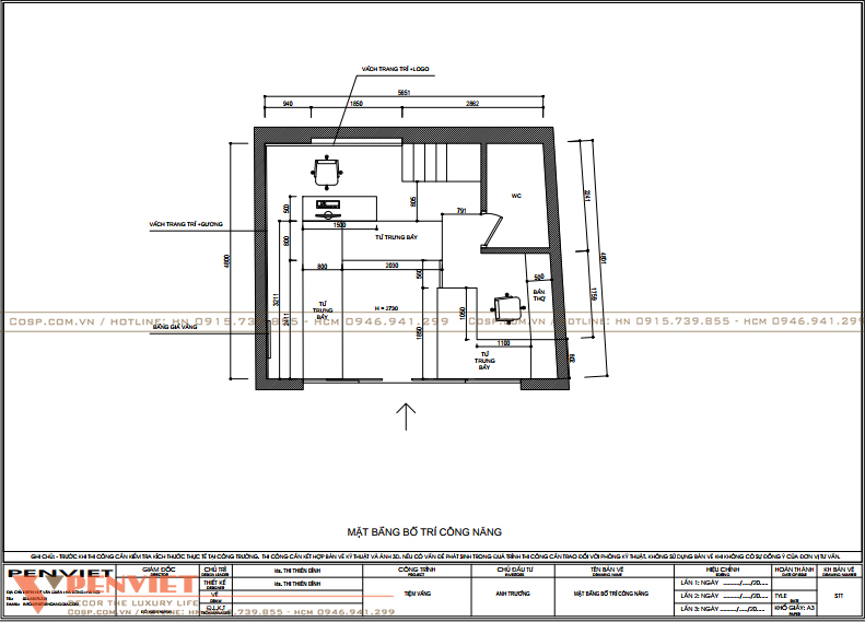
Tiệm vàng Đặng Trường có diện tích chỉ 28m2 nên được các kiến trúc sư của PenViet phân bố khu vực trưng bày khoa học, gọn gàng. Tổng thể diện tích được sử dụng để trưng bày trang sức với các hệ tủ giúp tiết kiệm không gian.

Mặt bằng bố trí công năng của tiệm vàng
Thấu hiểu mong muốn của chủ đầu tư anh Trường, PenViet đã đưa ra ý tưởng thiết kế bảng hiệu quảng cáo nổi bật với gam màu đỏ, vàng truyền thống. Đây là 2 gam màu đặc trưng mà nhiều thương hiệu vàng bạc sử dụng cho bộ nhận diện của mình.

Bảng hiệu nổi bật với gam màu vàng đỏ
Hệ thống biển hiệu làm từ khung sắt hộp ốp tấm hợp kim nhôm Alumium Alcorest dày bền bỉ, chịu điều kiện thời tiết tốt. Bên cạnh đó, bộ logo và chữ thương hiệu làm từ chân nhôm, mặt mica Đài Loan phát sáng ấn tượng. Khách hàng sẽ dễ dàng nhận ra cửa tiệm trang sức Đặng Trường khi đi từ xa.
Ngoài ra, còn có các loại biển vẫy, biển cột, biển led giúp nổi bật thêm thương hiệu cửa hàng vàng Đặng Trường trong mắt khách hàng.
Để tối ưu diện tích trưng bày, PenViet gợi ý khách hàng sử dụng tủ hình chữ U. Tủ vàng làm từ chất liệu gỗ MDF kết hợp kính cường lực giúp tô điểm thêm cho đồ trang sức.

Tủ trưng bày hình chữ U làm nới rộng không gian
Ngoài ra, PenViet còn sử dụng hệ thống vách kính trên tường để mở rộng không gian. Người mua hàng sẽ có cảm giác cửa tiệm rộng rãi, thông thoáng hơn, giúp kích thích nhu cầu mua sắm.

Hệ thống gương soi trên tường làm tăng diện tích cửa hàng
Ánh sáng hài hòa phía trên trần nhà kết hợp đèn LED trong tủ trưng bày giúp những bộ trang sức thêm lộng lẫy hơn.

Đồ trang sức trở nên lộng lẫy hơn nhờ ánh sáng hài hòa
PenViet sử dụng cửa kính cường lực cho tiệm vàng tạo nên không gian hiện đại, sang trọng tiếp đón khách hàng. Với diện tích khá nhỏ nhưng dưới bàn tay thiết kế của các kiến trúc sư PenViet, tiệm vàng Đặng Trường trở nên nổi bật và thu hút khách hàng.

Kính cường lực tạo nên không gian sang trọng cho cửa tiệm vàng
Trên đây là một số điểm nhấn trong mẫu thiết kế tiệm vàng Đặng Trường. Hy vọng bạn đã có cho mình thêm nhiều ý tưởng trang trí nội thất mới và độc đáo. Đừng quên liên hệ PenViet để được chúng tôi tư vấn thêm về nhiều mẫu thiết kế ấn tượng khác.







A. PenViet có hệ thống chi nhánh văn phòng và xưởng sản xuất ở nhiều nơi trên toàn quốc, nên giá thành sản phẩm là giá xuất xưởng, cạnh tranh nhằm đảm bảo chất lượng và dịch vụ phục vụ Khách hàng tốt nhất.
A: PenViet cung cấp dịch vụ tới mọi thành phần kinh tế, chúng tôi cung cấp dịch vụ thiết kế, thi công và bán lẻ các mặt hàng nội thất.
- Với các sản phẩm khách hàng đã có bản vẽ 2D hoặc 3D: PenViet sẽ phân tích bản vẽ và báo giá cạnh tranh.
- Với các sản phẩm cần thiết kế chi tiết: PenViet sẽ báo giá từ thiết kế đến thi công.
- Với những khách hàng mua hàng có sẵn với số lượng lớn: vui lòng liên hệ để nhận báo giá cạnh tranh.
- Đối với các Showroom có diện tích trưng bày sản phẩm rộng lớn: PenViet có khung giá phù hợp với ngân sách của khách hàng.