Mẫu thiết kế tiệm vàng Phúc Thắng được Công ty TNHH MTV Bất động sản Phúc Thắng Phú Quốc đầu tư xây dựng với mục đích trở thành showroom trưng bày quy mô và đẳng cấp hàng đầu tại thành phố Phú Quốc. Tìm đến với PenViet, khách hàng mong muốn được tư vấn những giải pháp xứng tầm. Chúng tôi đã làm thỏa mãn chủ đầu tư khó tính này như thế nào? Cùng khám phá ngay sau đây nhé!
Để chuẩn bị cho việc tạo dựng một showroom đẳng cấp bậc nhất trên địa bàn, chủ đầu tư đã tiến hành xây dựng cơ bản trên diện tích đất rộng 200m2. Trong quá trình này, PenViet cũng đã nhanh chóng tiến hành khảo sát hiện trạng cũng như lắng nghe những nguyện vọng của khách hàng để tìm kiếm những giải pháp thiết kế tiệm vàng sang trọng, đẳng cấp nhưng cũng không kém phần sáng tạo.
Sau khi hoàn thiện xây dựng cơ bản, mặt bằng này sẽ bao gồm 3 tầng. Trong đó, tầng 1 và 2 sẽ được setup thành showroom trưng bày sản phẩm; tầng 3 sẽ là không gian làm việc. Như vậy, bên cạnh mang đến những giải pháp không gian cho tiệm vàng, các kiến trúc sư PenViet sẽ cần có thêm phương án thiết kế văn phòng để tạo được sự nhất quán cho tổng thể dự án.

Hiện trạng mặt bằng được chủ đầu tư cải tạo, xây dựng
Ý tưởng được các kiến trúc sư PenViet tư vấn cho chủ đầu tư đó là setup cửa tiệm mang phong cách hiện đại, hướng đến sự sang trọng, phù hợp với đặc trưng sản phẩm tại showroom cũng như định hướng và nguyện vọng của khách hàng.
Chúng tôi lựa chọn gam màu nâu làm màu chủ đạo cho không gian kết hợp với những loại vật liệu cao cấp như gỗ óc chó, gỗ MDF chống ẩm An Cường phủ Laminate, kính cường lực siêu trong… nhằm làm toát lên tinh thần của mẫu thiết kế tiệm vàng Phúc Thắng. Các bề mặt có tính phản xạ ánh sáng tốt cũng sẽ khiến cho showroom trở nên lung linh, đẳng cấp, nâng tầm giá trị của những món trang sức được bày bán tại đây.

Showroom trưng bày sang trọng, đẳng cấp
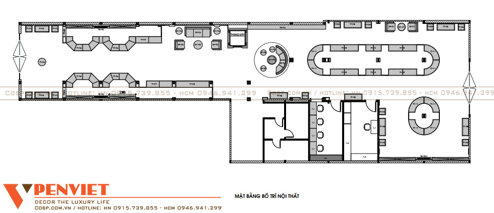
Mặc dù sở hữu diện tích lớn, song, mặt bằng cửa tiệm lại khá đặc biệt cùng với yêu cầu của chủ đầu tư về việc xây dựng một showroom bề thế, do đó, việc bố trí nội thất sao cho khoa học được các kiến trúc sư của chúng tôi hết sức lưu tâm nhằm đảm bảo công năng sử dụng cho dự án này.

Mặt bằng bố trí nội thất tầng 1

Phối cảnh 3D mặt bằng bố trí nội thất tầng 1

Mặt bằng bố trí nội thất tầng 2
Để phù hợp với các mục đích sử dụng, chúng tôi đã tiến hành xây dựng các vách thạch cao, lắp đặt vách, cửa kính để phân chia lại không gian.

Mặt bằng bố trí nội thất tầng 3
Để hiện thực hóa ý tưởng setup showroom, dựa vào những đặc điểm của mặt bằng và nhu cầu sử dụng của chủ đầu tư, tại tầng 1, ngoài không gian trưng bày sản phẩm, chúng tôi còn bố trí thêm các phòng chức năng bào gồm: phòng kỹ thuật – chế tác, phòng kho.

Bố trí mặt bằng tầng 1

Sắp xếp không gian dựa trên đặc điểm mặt bằng

Các phòng chức năng được bố trí đầy đủ đáp ứng yêu cầu sử dụng
Hệ thống tủ trưng bày lớn bằng gỗ MDF chống ẩm phủ Laminate kết hợp thép tròn sơn tĩnh điện, hậu và 2 bên ốp Alu gương được bố trí sát tường vừa giúp trưng bày được nhiều sản phẩm, vừa tối ưu không gian cho cửa tiệm. Chúng tôi còn thiết kế đèn led trong tủ nhằm tôn lên vẻ đẹp sang trọng của những sản phẩm nữ trang cao cấp tại đây.
Tủ trưng bày cao kịch trần cũng là gợi ý giúp hạn chế tình trạng bám bụi trên nóc tủ, khiến cho việc vệ sinh được dễ dàng.
PenViet giúp chủ đầu tư tăng cường nhận diện thương hiệu bằng cách lồng ghép tên cửa hàng bằng Inox mạ PVD vàng gương trên phần trán tủ.

Sử dụng tủ cao kịch trần để tối ưu công năng của nội thất
Thiết kế showroom vàng bạc Phúc Thắng sử dụng các tủ thấp bằng gỗ MDF An Cường chống ẩm phủ Laminate kết hợp với kính cường lực 10mm siêu trong. Các tủ này được sắp xếp để khéo léo giới hạn khu vực phục vụ của nhân viên với không gian dành cho khách tham quan, mua sắm. Điều này chẳng những mang đến sự thuận tiện cho người sử dụng mà còn nhằm đảm bảo sự an toàn cho sản phẩm.
Mẫu tủ này cũng được bọc nỉ nhung bên trong tủ màu trắng kem, trang trí e nhôm màu vàng đồng cùng đèn led dây, inox che dây điện mang đến sự thu hút cho khu vực trưng bày sản phẩm.
Bên cạnh đó, PenViet còn lựa chọn thêm các tủ làm từ gỗ MDF lõi xanh An Cường phủ Laminate vân đá, tủ thấp gỗ óc chó đã qua tẩm sấy chống cong vênh, mối mọt sơn PU kết hợp kính cường lực siêu trong 10mm, bọc nỉ nhung bên trong tủ màu trắng kem, đèn Led để phù hợp với việc giới thiệu từng loại mặt hàng.
Những mẫu tủ này đều được trang trí viền Inox mạ PVD vàng gương trang trí vòng ngoài tủ trên và dưới, khung Inox mạ PVD vàng gương che đèn led hắt sáng tủ tạo nên vẻ sang trongj cho thiết kế tiệm vàng này.

Các mẫu tủ trưng bày được sử dụng đa dạng
Chúng tôi cũng bố trí tủ cao bằng gỗ MDF An Cường phủ Laminate, đợt tủ được soi rãnh gắn đèn Led, nẹp Inox mạ PVD để bày bán các vật phẩm phong thủy, đồ trang trí, đáp ứng nhu cầu trưng bày đa dạng mặt hàng của cửa tiệm.

Sử dụng nội thất đáp ứng nhu cầu trưng bày đa dạng sản phẩm của chủ đầu tư
Phía cuối showroom, ngoài đặt các tủ cao làm từ gỗ MDF An Cường phủ Laminate vân đá, thép tròn sơn tĩnh điện, hậu và 2 bên hông ốp Alu gương, đèn Led dây…

Đặt tủ cao sát tường giúp bày bán được nhiều sản phẩm
…PenViet còn bố trí các tủ thấp gỗ MDF An Cường chống ẩm phủ Laminate, e nhôm màu vàng đồng, bánh xe lùa, lớp bọc nhựa giảm chấn cánh tủ lùa, bọc nỉ nhung bên trong tủ màu trắng kem, đèn led hắt kết hợp với kính cường lực siêu trọng 10mm uốn cong, nẹp inox mạ PVD ốp viền ngoài, khung inox mạ PVD vàng gương che đèn Led uốn cong ở trung tâm cửa tiệm để thu hút khách hàng chú ý đến những sản phẩm độc đáo tại đây.

Thiết kế tiệm vàng bố trí tủ thấp ở vị trí trung tâm giúp thu hút sự chú ý của khách hàng

Showroom trưng bày sản phẩm tại tầng 1
Những ghế sofa đơn sang trọng được làm từ khung gỗ sồi Nga đã qua tẩm sấy chống cong vênh, mối mọt sơn PU, chân inox mạ si vàng, đệm Kim Đan, nỉ Cỏ May nhập khẩu Singapore; sofa khung gỗ sồi Nga đã qua tẩm sấy chống cong vênh, mối mọt sơn PU, đệm Kim Đan, nỉ Cỏ May nhập khẩu Singapore không chỉ mang đến sự thoải mái cho người dùng mà còn góp phần hoàn thiện sự đẳng cấp của mẫu thiết kế tiệm vàng này.

Sử dụng sofa cao cấp mang đến sự thoải mái, dễ chịu cho người dùng
PenViet lựa chọn bàn trà mặt và chân bằng đá nhân tạo kết hợp thép tròn sơn tĩnh điện, nẹp viền Inox mạ PVD kiểu dáng đơn giản cho thấy sự nhất quán trong ý tưởng setup showroom vàng bạc Phúc Thắng.

Sự nhất quán trong ý tưởng thiết kế được kiến trúc sư thể hiện xuyên suốt
Việc setup khu vực tiếp khách này cũng được các kiến trúc sư của chúng tôi tính toán kỹ lưỡng sao cho vừa mang đến sự riêng tư cho khách hàng nhưng cũng khéo léo gây ấn tượng, tạo sự ghi nhớ về nhận diện thương hiệu. Đây chính là lý đo PenViet thiết kế vách logo gỗ An Cường phủ Laminate vân đá làm nổi bật tên cửa hàng bằng Inox gương vàng gấp mặt, chân mica trắng sữa kết hợp đèn led hắt sáng đôi diện sofa chờ.

Ý đồ tăng cường nhận diện thương hiệu của kiến trúc sư
Mẫu thiết kế nội thất tiệm vàng Phúc Thắng cũng sử dụng giải pháp không gian sáng tạo đó là dán gương thủy trà cao cấp trên nền gỗ MDF chống ẩm, bề mặt trang trí gỗ MDF An cường phủ Laminate, nẹp inox mạ PVD cho các cột trụ. Điều này chẳng những khéo léo che đi nhược điểm của không gian mà còn giúp chủ đầu tư tăng công năng sử dụng.
Có thể thấy, các kiến trúc sư của chúng tôi không chỉ muốn khắc phục nhược điểm này của mặt bằng mà còn muốn biến nó trở thành điểm nhấn độc đáo bằng cách bố trí lấy các cột làm trung tâm để bố trí hệ thống tủ trưng bày xung quanh.

Thiết kế showroom vàng bạc khéo léo biến nhược điểm mặt bằng thành điểm nhấn độc đáo
Ngoài ra, PenViet còn thực hiện thi công ốp xương gỗ thông tự nhiên ghép thanh, xử lý chống ẩm, chống cong vênh, bề mặt trang trí gỗ MDF An cường phủ Laminate, nẹp viền Inox mạ PVD vàng gương cho các cột; lắp đặt các vách gỗ An Cường phủ Laminate vân tạo sự nhất quán, đẳng cấp cho không gian.
Nhằm hoàn thiện dịch vụ của showroom trang sức bậc nhất tại Phú Quốc, trong mẫu thiết kế tiệm vàng này, PenViet đã tận dụng không gian để setup phòng chức năng với đầy đủ tiện nghi ngay tại tầng 1.

Không gian phòng kỹ thuật chế tác
Hạn chế về mặt diện tích được chúng tôi khắc phục bằng cách bố trí các bàn làm việc, tủ trưng bày làm từ gỗ MDF chống ẩm phủ Laminate vân óc chó sát tường.

Bố trí nội thất khoa học giúp khắc phục hạn chế diện tích mặt bằng
Không gian này được PenViet setup đơn giản, sử dụng tranh in PP hậu gỗ MDF chống ẩm và các thanh lam gỗ MDF chống ẩm phủ Laminate trang trí. Việc hạn chế những chi tiết quá cầu kỳ cũng là một giải pháp thiết kế tiệm vàng thường được áp dụng cho những không gian nhỏ.

Setup đơn giản phù hợp với những phòng chức năng với diện tích hạn chế

Khu vực kho tại showroom vàng bạc Phúc Thắng
Tại đây, chúng tôi bố trí hệ thống két an toàn cùng tủ trưng bày bằng gỗ MDF chống ẩm phủ Laminate để đáp ứng yêu cầu sử dụng của chủ đầu tư.

Bố trí nội thất đáp ứng nhu cầu sử dụng của chủ đầu tư
Bàn làm việc làm từ gỗ MDF chống ẩm phủ Laminate kết hợp với ghế chân xoay cũng được lựa chọn để mang lại sự thoải mái, tiện dụng cho nhân viên.

PenViet hướng đến việc mang lại trải nghiệm tuyệt vời cho người dùng
Chúng tôi tạo sự liên kết giữa các không gian trưng bày sản phẩm thông qua cách sử dụng màu sắc, vật liệu, kiểu dáng nội thất.

Tạo sự kết nối giữa các không gian thông qua màu sắc, chất liệu
Điều này chẳng những tạo sự nhất quán trong ý tưởng setup mà còn góp phần mang lại hình ảnh chuyên nghiệp cho showroom vàng bạc Phúc Thắng.

Lựa chọn tủ trưng bày có kiểu dáng tương đồng tại các khu vực trưng bày sản phẩm
Tuy nhiên, để mang đến cảm giác mới mẻ cho khách hàng, các kiến trúc sư PenViet thông qua những điểm nhấn độc đáo, riêng biệt cho từng khu vực.
Chẳng hạn như thiết kế tủ tháp bằng gỗ MDF An Cường chống ẩm phủ laminate kết hợp kính cường lực siêu trong 10mm, bọc nỉ nhung bên trong tủ màu trắng kem, e nhôm màu vàng đồng, bánh xe lùa, lớp bọc nhựa giảm chấn cánh tủ lùa, nẹp Inox mạ PVD ốp viền ngoài, khung Inox mạ PVD vàng gương che đèn led uốn cong; tủ tròn gỗ MDF An Cường phủ Laminate kết hợp Acrylic đúc, bọc nỉ nhung bên trong tủ màu trắng kem, đèn led, khung Inox mạ PVD gương bóng tạo sự đa dạng cho hệ thống tủ trưng bày.

Sử dụng da dạng các mẫu tủ trưng bày
Thiết kế nội thất showroom vàng bạc Phúc Thắng được setup vách gương hậu gỗ MDF chống ẩm, gương trà cao cấp với kích thước lớn, nẹp viền Inox mạ PVD vàng gương tạo sự thuận tiện cho khách hàng khi tới đây mua sắm. Đồng thời, nó cũng khéo léo mở rộng không gian, tạo sự thông thoáng cho cửa tiệm.

Setup vách gương giúp nhân đôi không gian

Không gian trưng bày sản phẩm

Showroom trưng bày sản phẩm tại tầng 2

Sử dụng nội thất có sự tương đồng với không gian tầng 1

Các mẫu tủ trưng bày được thiết kế đa dạng về kiểu dáng
PenViet tinh tế bố trí ghế đôn chờ cao cấp đệm Kim Đan, nỉ Cỏ May nhập khẩu Singapore giúp khách hàng thấy thoải mái trong khi mua sắm.

Bố trí đôn ngồi tiện dụng
Sofa cao cấp vẫn là lựa chọn ưu tiên của chúng tôi khi thiết kế nội thất tiệm vàng Phúc Thắng nhằm mang đến trải nghiệm hoàn hảo cho người tiêu dùng.

Sử dụng nội thất cao cấp cho showroom
Vách tường được setup ấn tượng với phần lam gỗ có nền bằng gỗ MDF An Cường sơn PU sẫm màu, làm bằng gỗ MDF An Cường phủ Laminate dày 12mm; gương Bỉ mài cạnh; nẹp U Inox mạ PVD cho thấy sự sang trọng, đẳng cấp của showroom.

Khu vực tiếp đón khách hàng tạo được sự lôi cuốn

Không quên tăng cường nhận diện thương hiệu
Phòng VIP được thiết kế nhằm mang lại một không gian riêng tư để gặp gỡ đối tác, thương thảo hợp đồng.

Không gian phòng khách VIP
Lối setup hiện đại, sang trọng tiếp tục được chúng tôi phát huy giúp khách hàng cảm nhận được sự trân trọng khi tới giao dịch tại showroom vàng bạc Phúc Thắng.

Phát huy lối setup hiện đại, đẳng cấp
Sofa khung gỗ Sồi nhập khẩu đã qua tẩm sấy chống cong vênh, mối mọt, nỉ nhập khẩu Cỏ May Singapore, chỉ khâu Singapore cùng bàn trà bằng gỗ óc chó sơn PU, chân kê bọc Inox mạ PVD cho thấy sự chăm chút tỉ mỉ của PenViet trong mẫu thiết kế nội thất tiệm vàng Phúc Thắng.

Nội thất được lựa chọn kỹ lưỡng để mang đến sự đẳng cấp cho không gian
Việc sử dụng vật liệu gỗ sồi sơn PU kết hợp với khung bằng gỗ MDF An Cường phủ Acrylic kết hợp gỗ tự nhiên soi rãnh sơn PU cũng góp phần thể hiện đẳng cấp của chủ đầu tư cũng như sự trân trọng với đối tác.

Phòng VIP trong thiết kế tiệm vàng Phúc Thắng mang lại sự riêng tư cho đối tác
Tại đây, chúng tôi cũng tư vấn cho chủ đầu tư đặt những tủ tháp trưng bày bằng gỗ MDF chống ẩm phủ Laminate kết hợp với kính cường lực siêu trong, bọc nỉ nhung bên trong tủ màu trắng kem, đèn led, E nhôm màu vàng đồng, bánh xe lùa, lớp bọc nhựa giảm chấn cánh tủ lùa để giới thiệu tới đối tác những sản phẩm ấn tượng của showroom.

Tận dụng không gian để đặt các tủ trưng bày nhằm giới thiệu sản phẩm tới đối tác

Phòng VIP được chăm chút tỉ mỉ từng chi tiết

Setup vách tường bằng gỗ MDF chống ẩm phủ Laminate vân gỗ óc chó và vân đá
Kho hàng được bố trí ngăn nắp với két và hệ thống tủ tạo thành những lối đi thuận tiện, giúp nhân viên di chuyển được dễ dàng.

Bố trí không gian ngăn nắp

Sắp xếp các tủ tạo thành lối đi thuận tiện

Không gian kho hàng
Với diện tích hạn chế, do đó, phòng máy chủ được chúng tôi bố trí các bàn làm việc bằng gỗ MDF An Cường phủ Melamine sát tường kết hợp với ghế chân xoay mang đến sự thoải mái cho người sử dụng.

Bố trí bàn làm việc sát tường nhằm tối ưu không gian

Sắp xếp khoa học mang tới giải pháp tối ưu cho mẫu thiết kế nội thất tiệm vàng
Với diện tích hạn chế, do đó, phòng máy chủ được chúng tôi bố trí các bàn làm việc bằng gỗ MDF An Cường phủ Melamine sát tường kết hợp với ghế chân xoay mang đến sự thoải mái cho người sử dụng.

Bố trí bàn làm việc sát tường nhằm tối ưu không gian

Sắp xếp khoa học mang tới giải pháp tối ưu cho mẫu thiết kế nội thất tiệm vàng
PenViet thiết kế hệ thống vách xương gỗ thông đã qua tẩm sấy chống cong vênh, mối mọt ghép thanh, gỗ MDF An Cường phủ Laminate vân óc chó kết hợp cùng lam gỗ nhựa, gương Indo mài xiết mang đến hình ảnh chuyên nghiệp cho không gian làm việc trong mẫu thiết kế showroom vàng bạc Phúc Thắng.
Quầy lễ tân bằng gỗ MDF An Cường phủ Laminate vân đá sang trọng được đặt ở vị trí thuận lợi giúp nhân viên dễ dàng bao quát toàn bộ không gian.
Phía sau quầy, chúng tôi setup vách logo gỗ MDF An Cường phủ Laminate vân đá tôn lên bộ nhận diện thương hiệu với mặt chữ inox gương vàng gấp mặt, chân chữ mi ca trắng sữa, led hắt chân tạo sự thu hút cho khu vực này.
Thiết kế văn phòng cũng được bố trí tủ pha chế bằng gỗ MDF An Cường phủ Melamine, ray kéo thép không gỉ Garrix để phục vụ đồ uống cho nhân viên, tạo sự thoải mái, thư giãn sau những giờ làm việc căng thẳng.

Quầy lễ tân
Khu vực này được bố trí các bàn làm việc bằng gỗ MDF chống ẩm An Cường phủ Melamine, chân sắt hộp sơn tĩnh điện ngăn nắp giúp tối ưu diện tích mặt bằng.

Tối ưu không gian nhờ bố trí các bàn làm việc ngăn nắp
Tủ đứng di động làm từ gỗ An Cường phủ Melamine màu khách chọn, tay nắm âm ivan được dùng trong thiết kế văn phòng để gia tăng không gian lưu trữ.

Sử dụng đa dạng giải pháp giúp tối ưu không gian
Để không gian phòng làm việc trở nên sinh động, tươi mới, chúng tôi thiết kế hộc đặt cây bằng gỗ MDF An Cường phủ Melamine. Điều này cũng mang đến sự tươi vui, thư thái cho nhân viên.

Cây xanh được sử dụng để tạo sự thông thoáng cho không gian
Tủ đựng hồ sơ bằng gỗ MDF An Cường phủ Melamine với đèn Led đợt soi âm bản cũng được bố trí sát tường để mở rộng khu vực lưu trữ cho phòng làm việc.

Bố trí tủ đựng hồ sơ sát tường

Hành lang thông thoáng bên ngoài phòng làm việc
Để phù hợp với yêu cầu sử dụng, ý tưởng của chúng tôi khi setup không gian này là mang đến hình ảnh trang trọng, chuyên nghiệp, lựa chọn bàn họp bằng gỗ An Cường phủ Laminate, dưới chân dán Inox gương vàng cùng ghế chân quỳ Hòa Phát mang đến sự thoải mái, dễ chịu cho người sử dụng.

Không gian phòng họp trong thiết kế nội thất tiệm vàng Phúc Thắng

Không gian toát lên sự trang trọng, chuyên nghiệp
Với yêu cầu của chủ đầu tư khi setup phòng giám đốc, ngoài việc đảm bảo vẻ đẹp trang nghiêm, lịch sự, PenViet còn cố gắng tạo sự liên kết giữa các khu vực chức năng, chẳng những trong thiết kế văn phòng mà còn thể hiện sự xuyên suốt, nhất quán về ý tưởng trong toàn bộ không gian của showroom vàng bạc Phúc Thắng.

Setup văn phòng sao cho thể hiện được sự xuyên suốt trong ý tưởng thiết kế tiệm vàng
Bàn giám đốc được chúng tôi lựa chọn làm từ gỗ An Cường phủ Laminate kết hợp sơn PU tạo cảm giác sang trọng, uy quyền, phía sau là tủ bằng gỗ An Cường phủ Melamine, đợt soi rãnh lắp đèn LED đựng hồ sơ mang đến sự thuận tiện cho người dùng.

Sử dụng màu đen làm điểm nhấn
Sofa cao cấp cùng bàn trà thiết kế hiện đại bằng gỗ An Cường phủ Veneer kết hợp sơn PU sẫm màu, khung đỡ bằng Inox mạ vàng PVD, mặt bàn bằng đá Marble nhập khẩu cũng góp phần hoàn thiện vẻ đẹp của phòng làm việc.

Không gian phòng giám đốc trong thiết kế nội thất tiệm vàng
Các phòng làm việc riêng của lãnh đạo được setup để đảm bảo đầy đủ công năng sử dụng cũng như tính thẩm mỹ.

Phòng phó giám đốc

Phòng phó giám đốc
Mặc dù diện tích có phần khiêm tốn, song, cách bài trí không gian khoa học lại giúp giải quyết triệt để hạn chế này cho phòng phó giám đốc và trưởng phòng kinh doanh. Nội thất với kích thước phù hợp giúp cho căn phòng trông rộng rãi hơn.
Bên cạnh đó, việc kết hợp các loại vật liệu cao cấp như Khung bằng gỗ sồi Nga đã qua tẩm sấy chống cong vênh, mối mọt kết hợp chân bằng Inox, Mút nệm Kim Đan, da bò Ý nhập khẩu, chỉ khâu Singapore cho sofa; gỗ An Cường phủ Veneer, khung đỡ bằng Inox mạ vàng PVD, mặt bàn bằng đá Marble nhập khẩu cũng phần nào thể hiện được sự đẳng cấp trong thiết kế nội thất văn phòng.

Phòng làm việc của trưởng phòng kinh doanh

Thiết kế tiệm vàng với không gian văn phòng đẳng cấp
Để đảm bảo sự riêng tư, tiện nghi cho phòng nghỉ của giám đốc, ngoài việc lựa chọn vị trí thích hợp, chúng tôi còn rất quan tâm đến trải nghiệm của người tiêu dùng thông qua việc sử dụng nội thất cao cấp.

Không gian phòng ngủ giám đốc
Giường ngủ khung gỗ An Cường phủ Laminate, dùng hệ nan cao cấp có chân chống giữa chịu lực lớp mút đệm cao cấp, da bò ý nhập khẩu chắc hẳn sẽ mang tới sự thoải mái và những giấc ngủ ngon cho người dùng.
Tab đầu giường đế chân Mạ Crom kết hợp da bò Ý nhập khẩu bọc xung quanh tab và trong lòng ngăn kéo kết hợp thêm lớp mút cao cấp, mặt tab phủ Laminate bóng giúp mở rộng không gian lưu trữ đồ.

Sử dụng giường ngủ cao cấp
Kệ tivi khung bằng gỗ MDF An Cường phủ Acrylic soi rãnh sơn PU, mặt cánh tủ bằng gỗ Laminate mặt giống bề mặt nỉ hoặc da của An Cường, chân bằng Inox mạ PVD kiểu dáng đơn giản tạo sự nhất quán với ý tưởng thiết kế nội thất tiệm vàng.
PenViet còn bố trí sofa đơn khung gỗ sồi Nga đã qua tẩm sấy chống cong vênh, mối mọt sơn PU, đệm Kim Đan, nỉ Cỏ May nhập khẩu Singapore và bàn khung gỗ sồi Nga đã qua tẩm sấy chống cong vênh, mối mọt sử dụng công nghệ sơn Inchem bóng mờ, bề mặt bàn được sơn 7 lớp để chống thấm xước và nước, lớp viền chân dán Laminate An Cường màu nỉ da mang đến vị trí lý tưởng để đọc sách, thưởng trà.
Ngoài ra, chúng tôi cũng đặt thêm tủ quần áo khung gỗ An Cường phủ Laminate màu khách chọn kết hợp sơn PU, khung cánh cửa nhôm sinfa, khung mạ Crom cao cấp Suốt treo, ke đỡ, phụ kiện hafele để hoàn thiện nội thất cho phòng ngủ

Không gian phòng ngủ

Nhà vệ sinh riêng trong phòng ngủ
Thiết bị vệ sinh cao cấp được lắp đặt cho toàn bộ nhà vệ sinh các tầng để tạo nên sự hoàn mỹ trong thiết kế showroom vàng bạc đẳng cấp bậc nhất tại Phú Quốc.

Khu vực vệ sinh hiện đại

Không gian khu vực vệ sinh

Sử dụng thiết bị vệ sinh cao cấp

Lắp đặt gương tạo sự thuận tiện cho người dùng

Lựa chọn vật liệu phù hợp với đặc điểm sử dụng

Nhà vệ sinh

Thiết kế đơn giản, hiện đại

Bố trí cây xanh tạo sự thông thoáng

Sảnh cầu thang rộng rãi

Thiết kế nội thất showroom vàng bạc Phúc Thắng toát lên sự đẳng cấp
Không gian đẳng cấp này thực sự khiến chúng ta cảm thấy ấn tượng phải không? Để sở hữu những ý tưởng thiết kế tiệm vàng độc nhất, đừng ngần ngại gọi ngay cho PenViet nhé!







A. PenViet có hệ thống chi nhánh văn phòng và xưởng sản xuất ở nhiều nơi trên toàn quốc, nên giá thành sản phẩm là giá xuất xưởng, cạnh tranh nhằm đảm bảo chất lượng và dịch vụ phục vụ Khách hàng tốt nhất.
A: PenViet cung cấp dịch vụ tới mọi thành phần kinh tế, chúng tôi cung cấp dịch vụ thiết kế, thi công và bán lẻ các mặt hàng nội thất.
- Với các sản phẩm khách hàng đã có bản vẽ 2D hoặc 3D: PenViet sẽ phân tích bản vẽ và báo giá cạnh tranh.
- Với các sản phẩm cần thiết kế chi tiết: PenViet sẽ báo giá từ thiết kế đến thi công.
- Với những khách hàng mua hàng có sẵn với số lượng lớn: vui lòng liên hệ để nhận báo giá cạnh tranh.
- Đối với các Showroom có diện tích trưng bày sản phẩm rộng lớn: PenViet có khung giá phù hợp với ngân sách của khách hàng.