Thiết kế nhà thuốc không chỉ đòi hỏi tính thẩm mỹ mà còn cần đáp ứng được công năng sử dụng cũng như những quy định của Bộ Y Tế. Cùng xem các kiến trúc sư Penviet đã giải quyết vấn đề này như thế nào với mặt bằng 17m2 của hiệu thuốc Minh Hồng nhé!
Dù hoạt động trong lĩnh vực kinh doanh dược phẩm, song, không phải dược sĩ nào cũng nắm được những quy định liên quan đến thiết kế nhà thuốc. Bởi vậy, việc tìm đến một đơn vị có kinh nghiệm, có chuyên môn là điều hết sức cần thiết. Đây cũng chính là lý do mà chủ đầu tư lựa chọn Penviet để trở thành người bạn đồng hành trong dự án lần này.
Sau khi tiếp nhận thông tin và lắng nghe những chia sẻ của khách hàng về mong muốn sở hữu một cửa tiệm khang trang, chuyên nghiệp, các kiến trúc sư của chúng tôi đã ngay lập tức bắt tay vào khảo sát hiện trạng mặt bằng để có thể đưa ra những giải pháp phù hợp cho không gian.
Thiết kế nhà thuốc mang phong cách hiện đại được Penviet cho chủ tư bởi sự tự do, phóng khoáng cũng như linh hoạt trong việc sử dụng màu sắc, vật liệu, phù hợp với đặc điểm của các cửa hàng sở hữu mặt bằng kinh doanh nhỏ.
Nhược điểm về diện tích được chúng tôi giải quyết bằng cách sử dụng màu trắng làm gam màu chủ đạo, khiến ánh sáng được luân chuyển và phản xạ tốt hơn, từ đó mang đến cảm giác rộng rãi không gian. Điều này cũng giúp làm tôn nên điểm nhấn màu xanh trong mẫu thiết kế nội thất nhà thuốc Minh Hồng.
Bên cạnh đó, phương án lắp đặt toàn bộ cửa kính cho mặt tiền cũng ta ra không gian mở, giúp khắc phục hạn chế nêu trên.
Kinh nghiệm của các kiến trúc sư Penviet được thể hiện ở việc sử dụng đa dạng các giải pháp không gian. Chúng tôi lựa chọn những mẫu quầy tủ tinh giản, vừa để giúp cửa tiệm trông gọn gàng, thông thoáng, vừa tạo nên sự nhất quán trong phong cách setup cửa hàng.

Sự hiện đại, chuyên nghiệp của nhà thuốc Minh Hồng
Mặt tiền cửa tiệm gây ấn tượng với khách hàng nhờ sự hiện đại cùng với biển quảng cáo kích thước lớn bằng Alu kết hợp khung sắt gia cố làm nổi bật tên và thông tin hiệu thuốc làm từ Mica Đài Loan chân Formex.
Các cột phía ngoài được chúng tôi ốp Alu giúp mang đến hình ảnh nhất quán, chuyên nghiệp.
Penviet sử dụng hệ thống đèn downlight âm trần dưới biển để mang đến diện mạo nổi bật và thu hút cho mẫu thiết kế nhà thuốc Minh Hồng.

Diện mạo nổi bật của cửa hàng
Việc setup hiệu thuốc được Penviet tuân thủ nghiêm ngặt Thông tư 02/2018/TT – BYT của Bộ Y Tế ban hành ngày 22/1/2018 Quy định về thực hành tốt cơ sở bán lẻ thuốc.
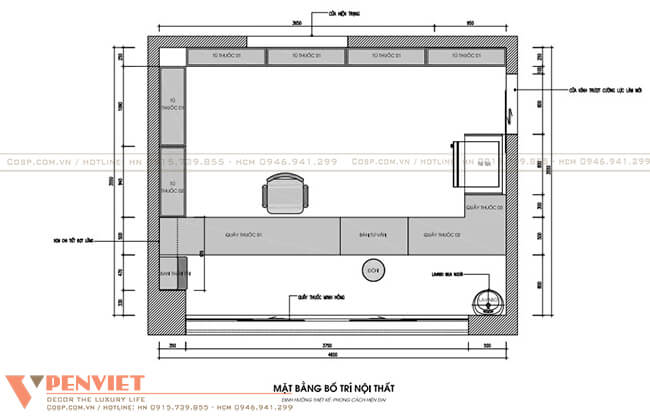
Theo đó, Penviet đã bố trí mặt bằng 17m2 một cách thông minh để đảm bảo được đầy đủ các khu vực chức năng như khu vực để trưng bày, bảo quản thuốc và khu vực để người mua thuốc tiếp xúc và trao đổi thông tin về việc sử dụng thuốc với người bán lẻ; khu vực ra lẻ các thuốc không còn bao bì tiếp xúc trực tiếp với thuốc để bán lẻ trực tiếp cho người bệnh; khu vực tư vấn riêng cho người mua thuốc/bệnh nhân theo Phụ lục I – 1a của thông tư. Sự sắp xếp này cũng mang đến sự thuận tiện cho nhân viên trong quá trình làm việc.

Bố trí không gian nhà thuốc
Hệ tủ làm từ gỗ MDF kết hợp với khung Inox và kính cường lực được Penviet tích hợp chức năng bày bán, giới thiệu sản phẩm và quầy thu ngân, mang đến giải pháp thiết kế nhà thuốc tối ưu. Để tận dụng triệt để mặt bằng, tủ trưng bày này cùng với bàn máy tính bằng gỗ MDF chống ẩm ốp PVC giả đá ngăn cách hoàn toàn khu vực làm việc của nhân viên với không gian đón khách, bởi vậy, giải pháp gắn các bánh xe sẽ giúp ích cho việc di chuyển khi cần thiết.
Chúng tôi khéo léo lồng ghép tên cửa hàng bằng Mica uốn nổi phía trước quầy nhằm tăng cường nhận diện thương hiệu và tạo sự ghi nhớ cho khách hàng.

Thiết kế nội thất thông minh

Nội thất cửa hàng được kết hợp vật liệu một cách linh hoạt
Mặt trong quầy, Penviet thiết kế các đợt tủ và ngăn kéo giúp gia tăng không gian lưu trữ cho nhà thuốc. Đây là một giải pháp tối ưu với những cửa tiệm có diện tích nhỏ.
Thiết kế nhà thuốc Minh Hồng sử dụng những tủ trưng bày cao kết hợp thùng tủ gỗ MDF chống ẩm dán Laminate, hậu tủ sơn trắng và kính cường lực, hệ cánh nẹp U trang trí bố trí sát tường giúp bày bán được nhiều mặt hàng.

Khu vực trưng bày thuốc
Chúng tôi cũng lựa chọn các bộ chữ bằng Mica cắt nổi cho phần trán tủ nhằm mang lại sự thuận tiện cho dược sĩ khi tư vấn, bán hàng. Thiết kế này giúp tạo thành hệ tủ kịch trần, hạn chế được tình trạng bám bụi trên nóc tủ, đảm bảo vệ sinh cho cửa tiệm và đáp ứng các yêu cầu về vệ sinh trong xây dựng nhà thuốc.
Nhằm mang đến sự sinh động cho không gian, Penviet còn lắp đặt các đợt gỗ trưng bày gắn tường giúp tiết kiệm diện tích.
Ngoài ra, chúng tôi cũng bố trí thêm khu vực rửa tay sử dụng thiết bị vệ sinh cao cấp và gương thủy khung gỗ mang lại sự thuận tiện cho người dùng.
Hệ thống chiếu sáng được Penviet đặc biệt lưu tâm trong thiết kế nhà thuốc Minh Hồng. Chúng tôi lắp đặt các đèn Plan nhằm đảm bảo ánh sáng cho việc vận hành cửa tiệm

Sử dụng các tủ kịch trần giúp đảm bảo vệ sinh cho cửa tiệm
Mẫu thiết kế nội thất nhà thuốc Minh Hồng chuẩn GPP này chắc hẳn sẽ là một gợi ý thú vị dành cho bạn khi setup cửa tiệm của mình phải không? Để được tư vấn và hỗ trợ những giải pháp không gian ưu việc, hãy liên hệ ngay với Penviet nhé!







A. PenViet có hệ thống chi nhánh văn phòng và xưởng sản xuất ở nhiều nơi trên toàn quốc, nên giá thành sản phẩm là giá xuất xưởng, cạnh tranh nhằm đảm bảo chất lượng và dịch vụ phục vụ Khách hàng tốt nhất.
A: PenViet cung cấp dịch vụ tới mọi thành phần kinh tế, chúng tôi cung cấp dịch vụ thiết kế, thi công và bán lẻ các mặt hàng nội thất.
- Với các sản phẩm khách hàng đã có bản vẽ 2D hoặc 3D: PenViet sẽ phân tích bản vẽ và báo giá cạnh tranh.
- Với các sản phẩm cần thiết kế chi tiết: PenViet sẽ báo giá từ thiết kế đến thi công.
- Với những khách hàng mua hàng có sẵn với số lượng lớn: vui lòng liên hệ để nhận báo giá cạnh tranh.
- Đối với các Showroom có diện tích trưng bày sản phẩm rộng lớn: PenViet có khung giá phù hợp với ngân sách của khách hàng.