PenViet đã triển khai khá nhiều dự án thiết kế phòng khám mang phong cách khác nhau trong thời gian qua. Trong đó, mẫu thiết kế phòng khám nhi khoa Từ Tâm là sản phẩm mà PenViet khá tâm đắc bởi cách bố trí nội thất cùng cách trang trí không gian hài hòa, dễ thương mang đến niềm vui, sự thích thú và xóa bỏ nỗi sợ cho các bạn nhỏ khi khám bệnh.
Thông tin dự án
Dự án phòng khám nhi khoa Từ Tâm
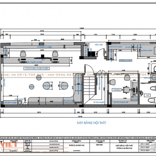
Sở hữu diện tích mặt bằng 70m2, chủ đầu tư phòng khám nhi khoa Từ Tâm mong muốn phân chia khu vực khám chữa bệnh hợp lý, đạt chuẩn. Thấu hiểu điều này, PenViet đã đưa ra phương án bố trí mặt bằng không gian gồm có các phòng chức năng sau:
Mặt bằng bố trí nội thất phòng khám nhi Từ Tâm
Phòng khám nhi Từ Tâm có lợi thế sở hữu 2 mặt tiền tạo ưu thế cho việc sử dụng biển bảng quảng cáo tăng độ nhận diện thương hiệu. Trong đó, PenViet đã sử dụng gam màu xanh lá cây chủ đạo khi thiết kế nội thất phòng khám.
Biển hiệu được khung sắt hộp ốp tấm hợp kim nhôm Aluminium Alcorest bền bỉ với điều kiện thời tiết ngoài trời. Trên biển hiệu là các bộ chữ: " Nhi khoa từ tâm" , “chuyên khoa nhi”, “ quầy thuốc Từ Tâm”, “ Nhi khoa Từ Tâm” bằng mica phát sáng màu trắng nổi bật.

Hệ thống biển bảng ấn tượng và thu hút người nhìn
Bên trong phòng khám nhi khoa Từ Tâm, PenViet sử dụng phong cách trang trí dễ thương, nổi bật để tạo sự thu hút cho bạn nhỏ, xóa tan nỗi lo sợ khám bệnh. Đối diện cửa ra vào chính là tấm vách thạch cao với bộ logo bằng mica phát sáng kết hợp đèn LED vòm tạo hiệu ứng nổi bật.

Hệ thống vách thạch cao logo nổi bật dưới đèn LED chiếu sáng
Bên phải cửa ra vào chính là khu vực ngồi chờ khám bệnh của bệnh nhân và người nhà. Bạn nhỏ sẽ vô cùng thích thú khi ngắm nhìn các họa tiết trang trí ngộ nghĩnh trên bức tường phòng khách hay trải nghiệm chiếc ghế ngồi hình thú đáng yêu.

Bàn ghế ngồi chờ cho bệnh nhân và người nhà
Phía bên trái cửa ra vào là khu vực trưng bày thuốc, thực phẩm chức năng của phòng khám Từ Tâm. Trong thiết kế phòng khám nhi khoa Từ Tâm sử dụng hệ thống tủ kệ trưng bày bằng gỗ MDF chống ẩm có đèn LED hắt sáng tạo sự nổi bật cho sản phẩm.

Tủ trưng bày thuốc và sản phẩm chức năng
Với gam màu trắng chủ đạo kết hợp đèn chiếu sáng âm trần giúp làm nới rộng thêm cho không gian phòng khách. Nhờ đó sẽ tạo cảm giác thoải mái cho bệnh nhân và người nhà khi đến khám chữa bệnh.

Không gian phòng tiếp đón bệnh nhân rộng rãi, thoải mái
Men theo lối đi, bạn sẽ đến với không gian phòng khám nhi dành cho bệnh nhân cần nằm nghỉ ngơi. Tại đây có bố trí đầy đủ giường nằm, tủ đựng đồ, lavabo rửa tay, ghế ngồi chờ với chất liệu tốt, màu sắc đồng điệu với tổng thể không gian.

Lối đi vào phòng khám nhi

Phòng khám nhi Từ Tâm bố trí giường nằm, ghế ngồi tạo sự thoải mái cho bệnh nhân
Để xua tan sự lo sợ và tạo sự thích thú cho trẻ, PenViet sử dụng các decor trang trí tường hình đồi, hình ô tô và đám mây bằng gỗ MDF cốt xanh chống ẩm cắt CNC. Họa tiết trang trí ấn tượng, đẹp mắt là điểm nhấn cho không gian nội thất phòng khám nhi Từ Tâm.

Họa tiết trang trí bằng gỗ MDF xanh chống ẩm
Không gian được sắp đặt nội thất và cách trang trí giống như phòng ngủ của trẻ để tạo sự gần gũi, thân thiện. Trẻ sẽ không còn cảm giác lạ lẫm, lo lắng khi nằm chờ khám bệnh khi đến với phòng khám Từ Tâm.

Nội thất phòng khám Từ Tâm tạo cảm giác gần gũi cho trẻ
Bước tiếp sang phòng kế bên là nơi khám bệnh chuyên khoa nhi. Tại đây, bác sĩ sẽ thăm khám bệnh cho các bạn nhỏ để có phương án điều trị hợp lý, đúng đắn. Để tạo sự gần gũi, thoải mái cho bệnh nhân, PenViet sử dụng các họa tiết trang trí hình động vật ngộ nghĩnh và đáng yêu. Bên cạnh đó là hệ cây trang trí và lưu trữ sách làm từ chất liệu gỗ MDF hiện đại, bền bỉ và đẹp mắt.

Các món đồ trang trí ấn tượng, thu hút cho không gian phòng khám nhi
Hai phòng khám bệnh được kết nối với nhau bởi vách ngăn kính trong suốt giúp bác sĩ thuận tiện khi theo dõi bệnh nhân.

Phòng khám kết nối bằng vách kính trong suốt giúp nới rộng không gian
Bài viết giới thiệu đến bạn đọc thông tin chi tiết về dự án thiết kế phòng khám nhi khoa Từ Tâm. Đây là dự án nội thất PenViet đã triển khai và nhận được đánh giá cao từ chủ đầu tư. Nếu quý khách có nhu cầu thiết kế nội thất phòng khám, bệnh viện, thiết kế spa chuyên nghiệp hãy liên hệ PenViet để được tư vấn cụ thể và chi tiết hơn.







A. PenViet có hệ thống chi nhánh văn phòng và xưởng sản xuất ở nhiều nơi trên toàn quốc, nên giá thành sản phẩm là giá xuất xưởng, cạnh tranh nhằm đảm bảo chất lượng và dịch vụ phục vụ Khách hàng tốt nhất.
A: PenViet cung cấp dịch vụ tới mọi thành phần kinh tế, chúng tôi cung cấp dịch vụ thiết kế, thi công và bán lẻ các mặt hàng nội thất.
- Với các sản phẩm khách hàng đã có bản vẽ 2D hoặc 3D: PenViet sẽ phân tích bản vẽ và báo giá cạnh tranh.
- Với các sản phẩm cần thiết kế chi tiết: PenViet sẽ báo giá từ thiết kế đến thi công.
- Với những khách hàng mua hàng có sẵn với số lượng lớn: vui lòng liên hệ để nhận báo giá cạnh tranh.
- Đối với các Showroom có diện tích trưng bày sản phẩm rộng lớn: PenViet có khung giá phù hợp với ngân sách của khách hàng.