Để sở hữu không gian khám chữa bệnh chuyên nghiệp đòi hỏi chủ đầu tư tìm kiếm được đơn vị thiết kế nội thất uy tín, giỏi. Trong đó, PenViet tự hào được nhiều khách hàng tin tưởng hợp tác. Phải kể đến như mẫu thiết kế phòng khám răng hàm mặt Hải Anh rộng 200m2 tại Tuyên Quang. Cùng điểm qua những nét độc đáo của mẫu thiết kế phòng khám này dưới đây.
PenViet lựa chọn tông màu xanh dương chủ đạo kết hợp màu trắng cho phòng khám răng hàm mặt Hải Anh. Hệ thống biển bảng có kích thước lớn làm từ khung sắt ốp Alu bền bỉ, chống chịu điều kiện ngoại cảnh rất tốt. Đây là phương án nhiều công trình sử dụng nhằm tiết kiệm chi phí, tăng tính thẩm mỹ. Trên biển có đầy đủ thông tin về dịch vụ của phòng khám, tăng thêm nhận diện cho khách hàng.

Mặt tiền của phòng khám răng hàm mặt nổi bật, thu hút
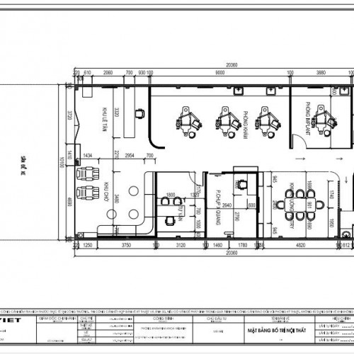
Mẫu thiết kế phòng khám răng hàm mặt Hải Anh bố trí nhiều phòng chức năng khác nhau đáp ứng nhu cầu chủ đầu tư. Trong đó bao gồm sảnh lễ tân, phòng tư vấn, phòng khám răng hàm mặt, phòng implant, phòng siêu âm, phòng ăn nhân viên, phòng nghỉ nhân viên, nhà vệ sinh và phòng tiệt trùng dụng cụ.

Mặt bằng bố trí công năng các khu vực
Đầu tiên, khi bước vào phòng khám là không gian sảnh lễ tân, đón tiếp khách hàng. Quầy lễ tân được thiết kế kiểu dáng góc cạnh rất cá tính, ốp mặt đá hoa cương sang trọng. Hơn nữa, quầy được trang trí với các chi tiết nẹp viền inox vàng gold sáng bóng, tăng điểm nhấn ấn tượng. Phía sau quầy là vách logo thương hiệu với các đường lam kẻ sọc hiệu ứng đẹp mắt. Bộ chữ và logo được thiết kế nổi bật, tăng ghi nhớ cho quý khách khi đến thăm khám.

Quầy lễ tân kiểu dáng hiện đại và sang trọng
Khu vực lễ tân được kết nối liền mạch với khu chờ của khách hàng đến thăm khám. Điều này tạo nên sự liên kết, giúp nhân viên có thể hỗ trợ khách hàng tốt nhất để đảm bảo sự hài lòng tối đa.

Khu lễ tân kết nối liền mạch khu chờ
Không gian khu vực chờ của khách hàng được setup bộ sofa dài kích thước lớn hình chữ L. Bên cạnh đó còn có các máy massage để phục vụ khách hàng nếu có nhu cầu. Đây chính là điểm mạnh của phòng khám Hải Anh, tinh tế phục vụ khách hàng tạo cảm giác thoải mái nhất. Bộ ghế sofa màu xanh dương đồng điệu màu sắc thương hiệu, thể hiện sự chuyên nghiệp trong từng chi tiết nhỏ.

Khu vực chờ của phòng khám Hải Anh
Lối đi vào bên trong phòng khám có thiết kế vừa vặn, tạo sự thoải mái cho việc di chuyển nhưng cũng tiết kiệm diện tích.

Hành lang di chuyển có diện tích hợp lý
Tiếp đến là không gian khu vực phòng khám răng hàm mặt được bố trí 3 ghế răng đáp ứng tiêu chuẩn Bộ Y Tế. Mỗi ghế răng sẽ đi kèm 1 tap đựng dụng cụ, thiết bị liên quan để hỗ trợ công việc hiệu quả hơn.

Phòng khám răng hàm mặt
PenViet sử dụng hệ tủ đựng dụng cụ kết hợp lavabo rửa tay sạch sẽ, gọn gàng. Tủ làm từ chất liệu gỗ MDF chống ẩm bền bỉ, có mẫu mã và kiểu dáng hiện đại. Với gam màu trắng tạo cảm giác sạch sẽ và đẹp mắt cho không gian.

Tủ đựng dụng cụ kết hợp lavabo hài hòa
Không gian phòng tư vấn cho khách hàng, bệnh nhân được thiết kế tách biệt tạo tính riêng tư. Tại đây, y bác sĩ sẽ tư vấn, giải đáp mọi thắc mắc của bệnh nhân về vấn đề liên quan răng hàm mặt.

Phòng tư vấn
Với hệ tủ đặt sát tường vừa kết hợp làm vách logo nhận diện thương hiệu vừa làm nơi trưng bày các kỷ niệm chương, bằng cấp rất hợp lý. Đây là cách quảng bá cực tế nhị về độ uy tín, tay nghề y bác sĩ tại phòng khám để bệnh nhân tin tưởng hơn.

Tủ trưng bày thiết kế đa năng
Khu vực chụp X quang có thiết kế khá đơn giản chỉ có bàn làm việc và máy chụp. Tuy nhiên không gian này đòi hỏi sự sạch sẽ, sắp xếp mọi thứ tối giản nhưng vấn thể hiện được sự đồng bộ về thương hiệu tổng thể để thể hiện tính chuyên nghiệp cao.

Phòng chụp X quang
Tiếp đến là khu vực phòng implant của phòng khám Hải Anh. Tại đây có bố trí 1 ghế răng với các máy móc thiết bị hỗ trợ. Sự chuyên nghiệp trong thao tác làm việc hay đồ dùng chất lượng cao cũng giúp khách hàng có đánh giá tốt về Hải Anh.

Phòng implant

Phòng ăn uống party có bố trí bộ bàn ghế kích thước lớn phục vụ được số đông người dùng. Đây vừa là không gian họp hành của nhân viên vừa là nơi giải tỏa căng thẳng, ăn uống nhẹ nhàng, giao lưu chia sẻ công việc.

Phòng ăn uống party

Khu vực tiệt trùng dụng cụ có hệ thống tủ trên và dưới với nhiều ngăn nhỏ khác nhau để bảo quản đồ dùng cần thiết. Tủ có chất lượng đảm bảo, tính thẩm mỹ cao nâng cao hiệu quả sử dụng.

Phòng tiệt trùng dụng cụ
Khu vực ngủ của nhân viên bố trí giường nằm êm ái, giúp nhân viên có giấc ngủ ngon hơn sau ngày dài làm việc. Đầu tư cho giấc ngủ của nhân viên là điều ưu tiên để có thể nâng cao hiệu suất làm việc.

Phòng ngủ của nhân viên
Nhà vệ sinh của phòng khám Hải Anh được chú trọng đầu tư nội thất hiện đại, tạo cảm giác thoải mái nhất cho khách hàng khi sử dụng. Hơn nữa, sạch sẽ cũng là yếu tố quan trọng đối với nhà vệ sinh của phòng khám.

Phòng vệ sinh

Trên đây là chi tiết thông tin về mẫu thiết kế phòng khám răng hàm mặt Hải Anh do PenViet triển khai. Nếu bạn có bất cứ thắc mắc nào cần giải đáp, hãy để lại bình luận dưới đây nhé!







A. PenViet có hệ thống chi nhánh văn phòng và xưởng sản xuất ở nhiều nơi trên toàn quốc, nên giá thành sản phẩm là giá xuất xưởng, cạnh tranh nhằm đảm bảo chất lượng và dịch vụ phục vụ Khách hàng tốt nhất.
A: PenViet cung cấp dịch vụ tới mọi thành phần kinh tế, chúng tôi cung cấp dịch vụ thiết kế, thi công và bán lẻ các mặt hàng nội thất.
- Với các sản phẩm khách hàng đã có bản vẽ 2D hoặc 3D: PenViet sẽ phân tích bản vẽ và báo giá cạnh tranh.
- Với các sản phẩm cần thiết kế chi tiết: PenViet sẽ báo giá từ thiết kế đến thi công.
- Với những khách hàng mua hàng có sẵn với số lượng lớn: vui lòng liên hệ để nhận báo giá cạnh tranh.
- Đối với các Showroom có diện tích trưng bày sản phẩm rộng lớn: PenViet có khung giá phù hợp với ngân sách của khách hàng.