Thiết kế nội thất phòng khám da liễu BS TIẾN mang phong cách hiện đại được tạo điểm nhấn bởi tone màu nâu gỗ. Với lối trang trí không gian này giúp phòng khám có được dấu ấn riêng, tăng sức cạnh tranh trên thị trường. Xin mời bạn đọc cùng PenViet tham khảo thêm một số điểm nổi bật của dự án này qua nội dung dưới đây.
Dựa theo mong muốn của chủ đầu tư, PenViet sử dụng tone màu sáng kèm màu nâu gỗ để tạo điểm nhấn cho nội thất. Bên cạnh đó, không gian còn được nhấn nhá thêm tone màu xanh lá vô cùng tươi mới.
Công trình phòng khám da liễu Bs Tiến tại Trà Vinh tọa lạc trên khu phố kinh doanh tấp nập nên có lợi thế về vị trí. Với mặt tiền rộng rãi thích hợp để khách hàng có thể thoải mái đậu xe đến thăm khám. Không gian trống chưa được trang trí gì cũng tạo điều kiện thuận lợi để các kiến trúc sư thiết kế, giúp gia chủ tiết kiệm chi phí khi phá dỡ nội thất cũ.

Hiện trạng công trình trước khi thi công

Không gian trống tạo thuận lợi để trang trí nội thất
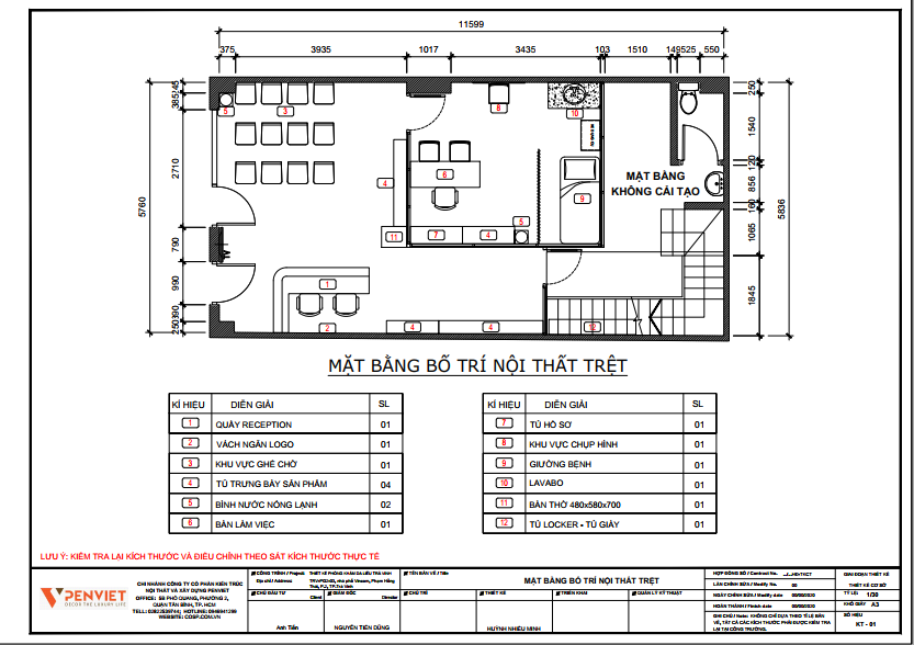
Trong thiết kế nội thất phòng khám da liễu BS TIẾN được PenViet phân chia thành 2 khu vực chức năng tầng trệt và tầng 1. Trong đó, tầng trệt gồm có khu vực quầy lễ tân, bàn ghế đón tiếp khách, khu trưng bày sản phẩm, phòng khám. Tầng 1 được thiết kế là khu vực chăm sóc da chuyên sâu với 5 giường phục vụ khách hàng.

Mặt bằng công năng tầng trệt

Mặt bằng công năng tầng 1
Mặt tiền phòng khám da liễu BS TIẾN tại Trà Vinh không quá cầu kỳ nhưng dễ nhận diện. Trong đó, PenViet sử dụng mẫu biển hiệu bằng khung sắt hàn liên kết ốp Alu trắng viền đen. Bộ logo mica đèn phát sáng chân, bộ chữ " PHÒNG KHÁM DA LIỄU THẨM MỸ DA " Mica đen phát sáng chân, bộ chữ " TRẦN HÀ VIỆT TIẾN " inox vàng gương phát sáng chân.

Biển hiệu quảng cáo phòng khám dễ nhận diện
Ngoài ra, trên bề mặt cửa kính cường lực của phòng khám còn được dán bộ chữ decal cung cấp thông tin cụ thể về thời gian khám bệnh cho khách hàng.
Đầu tiên, khi bước vào cửa phòng khám da liễu, khách hàng sẽ nhìn thấy phía bên phải là quầy thu ngân, bên trái là khu ghế chờ. Sự sắp xếp hai khu vực này đối diện nhau nhằm phục vụ, hỗ trợ tốt nhất cho bệnh nhân và người nhà đến khám chữa bệnh.

Khu vực ghế ngồi chờ và quầy thu ngân đối diện nhau hợp lý
Quầy thu ngân
Quầy thu ngân được làm từ vật liệu gỗ MDF phủ melamine quen thuộc với tính thẩm mỹ cao và bền bỉ. Sử dụng tone màu trắng kết hợp nâu gỗ sáng đồng nhất màu sắc thương hiệu thể hiện sự chuyên nghiệp của phòng khám.
Phía sau quầy thu ngân là vách logo làm từ thạch cao kết hợp lam gỗ độc đáo, làm tăng thêm sự nổi bật cho bộ nhận diện thương hiệu. Vách logo chính là điểm nhấn để thu hút mọi ánh nhìn của bệnh nhân, người nhà khi đến với phòng khám.

Quầy thu ngân nổi bật với mẫu mã thiết kế hiện đại
Khu vực trưng bày sản phẩm
Tủ trưng bày hàng hóa, sản phẩm chăm sóc da được bố trí kê sát tường nhằm tối ưu diện tích. Mẫu tủ này đặc biệt với hộp tranh in phát sáng trang trí cùng kính cường lực bền bỉ 8 ly. Sử dụng tủ giúp bảo quản, giới thiệu sản phẩm chăm sóc da đến khách hàng hiệu quả hơn, gia tăng doanh số bán hàng.

Tủ trưng bày sản phẩm kê sát tường tận dụng diện tích
Không gian phòng soi da
PenViet sử dụng vách ngăn nhôm xingfa trắng kết hợp kính cường lực dày 8mm, dán decal mờ tăng thêm sự riêng tư cho phòng soi da. Vách kính cũng tạo nên sự nhẹ nhàng, tránh cảm giác tù túng, chật hẹp khi xây tường bê tông.

Vách kính dán decal mờ tăng sự riêng tư cho khu vực chức năng
Khu vực phòng chức năng có đầy đủ các đồ nội thất đáp ứng yêu cầu công việc khám da liễu. Ví dụ như tủ trưng bày sản phẩm, bàn làm việc và tủ hồ sơ, giường bệnh, bồn rửa, tấm chụp ảnh, máy móc thiết bị hiện đại… Toàn bộ các đồ nội thất được bố trí hài hòa, tạo sự gọn gàng nhưng thuận tiện khi sử dụng.

Phòng soi da có đầy đủ dụng cụ phục vụ công việc
Bên ngoài phòng chức năng ở dưới chân cầu thang lối đi lên tầng 1 được PenViet bố trí tủ đựng dụng cụ, thiết bị. Tủ làm từ gỗ + đợt gỗ MDF phủ melamine chống ẩm gam màu trắng xanh hài hòa giúp phòng khám bảo quản vật dụng an toàn mà rất đẹp mắt.

Tủ đựng dụng cụ, thiết bị ngăn nắp
Tầng 1 là khu vực phòng chăm sóc da của phòng khám da liễu bs Tiến. Để tạo sự riêng tư, PenViet cũng sử dụng vách nhôm xingfa trắng kính cường lực đồng bộ vách ngăn tầng trệt.

Vách ngăn nhôm kính tạo sự riêng tư cho khu vực chăm sóc da
Cũng lấy gam màu nâu gỗ sáng và màu trắng làm chủ đạo, tổng thể không gian phòng chăm sóc da tươi trẻ, hiện đại và tạo sự dễ chịu cho khách hàng. Các mẫu tranh in được bố trí đan xen tạo điểm nhấn cho phòng chức năng thêm phần ấn tượng.

Phòng chăm sóc da lấy gam màu sáng và nâu gỗ chủ đạo
Tại đây được bố trí 5 giường chăm sóc da êm ái với các mành rèm ngăn cách nhẹ nhàng, tinh tế. Khách hàng sẽ được chăm sóc, trị liệu da bởi bàn tay chuyên nghiệp của nhân viên phòng khám.

Các giường chăm sóc da được bố trí hợp lý phục vụ khách hàng
Bên cạnh đó, PenViet còn setup ghế ngồi phục vụ cho khách hàng khi ngồi chờ hay nhận tư vấn của các chuyên gia. Sự chăm sóc tận tình, tư vấn chu đáo của nhân viên phòng khám da liễu Bs Tiến sẽ tạo nên sự an tâm, tin tưởng cho khách hàng.

Bàn ghế phục vụ tư vấn khách hàng đến chăm sóc da
Đặc biệt, để tạo sự an toàn khi chăm sóc da, PenViet còn sắp xếp bồn rửa ngay trong khu vực phòng khám. Bề mặt bồn rửa ốp đá trắng, kính bếp giúp đảm bảo sự sạch sẽ, vệ sinh khi sử dụng. Phía trên bồn rửa là khu vực để khăn sạch phục vụ việc chăm sóc da cho khách hàng.

Bồn rửa và tủ đựng khăn sạch phục vụ khách hàng
Trên đây là một số điểm ấn tượng của mẫu thiết kế nội thất phòng khám da liễu BS TIẾN do PenViet thi công. Thông qua cách trang trí không gian này hy vọng các bạn sẽ có thêm nhiều ý tưởng mới lạ. Đừng quên liên hệ PenViet để các kiến trúc sư thực hiện hóa ý tưởng của bạn nhé!







A. PenViet có hệ thống chi nhánh văn phòng và xưởng sản xuất ở nhiều nơi trên toàn quốc, nên giá thành sản phẩm là giá xuất xưởng, cạnh tranh nhằm đảm bảo chất lượng và dịch vụ phục vụ Khách hàng tốt nhất.
A: PenViet cung cấp dịch vụ tới mọi thành phần kinh tế, chúng tôi cung cấp dịch vụ thiết kế, thi công và bán lẻ các mặt hàng nội thất.
- Với các sản phẩm khách hàng đã có bản vẽ 2D hoặc 3D: PenViet sẽ phân tích bản vẽ và báo giá cạnh tranh.
- Với các sản phẩm cần thiết kế chi tiết: PenViet sẽ báo giá từ thiết kế đến thi công.
- Với những khách hàng mua hàng có sẵn với số lượng lớn: vui lòng liên hệ để nhận báo giá cạnh tranh.
- Đối với các Showroom có diện tích trưng bày sản phẩm rộng lớn: PenViet có khung giá phù hợp với ngân sách của khách hàng.