Tổng quan
Nhận thấy nhu cầu thăm khám bệnh ở những phòng khám tư nhân ngày càng nhiều, Anh Hùng mong muốn cải tạo lại căn nhà ở hiện tại của mình trở thành phòng khám gan mật, nhằm mang đến cho bệnh nhân một địa chỉ thăm khám uy tín, chuyên nghiệp.
Biết được việc xây dựng một cơ sở khám chữa bệnh chuyên khoa cần tuân thủ nghiêm ngặt các quy định của Chính Phủ và Bộ Y Tế, đồng thời phải đảm bảo cả công năng và tính thẩm mỹ. Bởi vậy, Anh Hùng đã tìm đến với Penviet – đơn vị dày dạn kinh nghiệm trong việc thiết kế phòng khám chuyên khoa, đa khoa, bệnh viện… để được tư vấn và hỗ trợ những giải pháp phù hợp.
Chủ đầu tư: Anh Hùng
Địa chỉ: Kim Liên, Đống Đa, Hà Nội
Quy mô: 56.5 m2
Phong cách, ý tưởng : hiện đại
Hạng mục:
- Thiết kế mặt tiền
- Thiết kế nội thất phòng khám gan mật
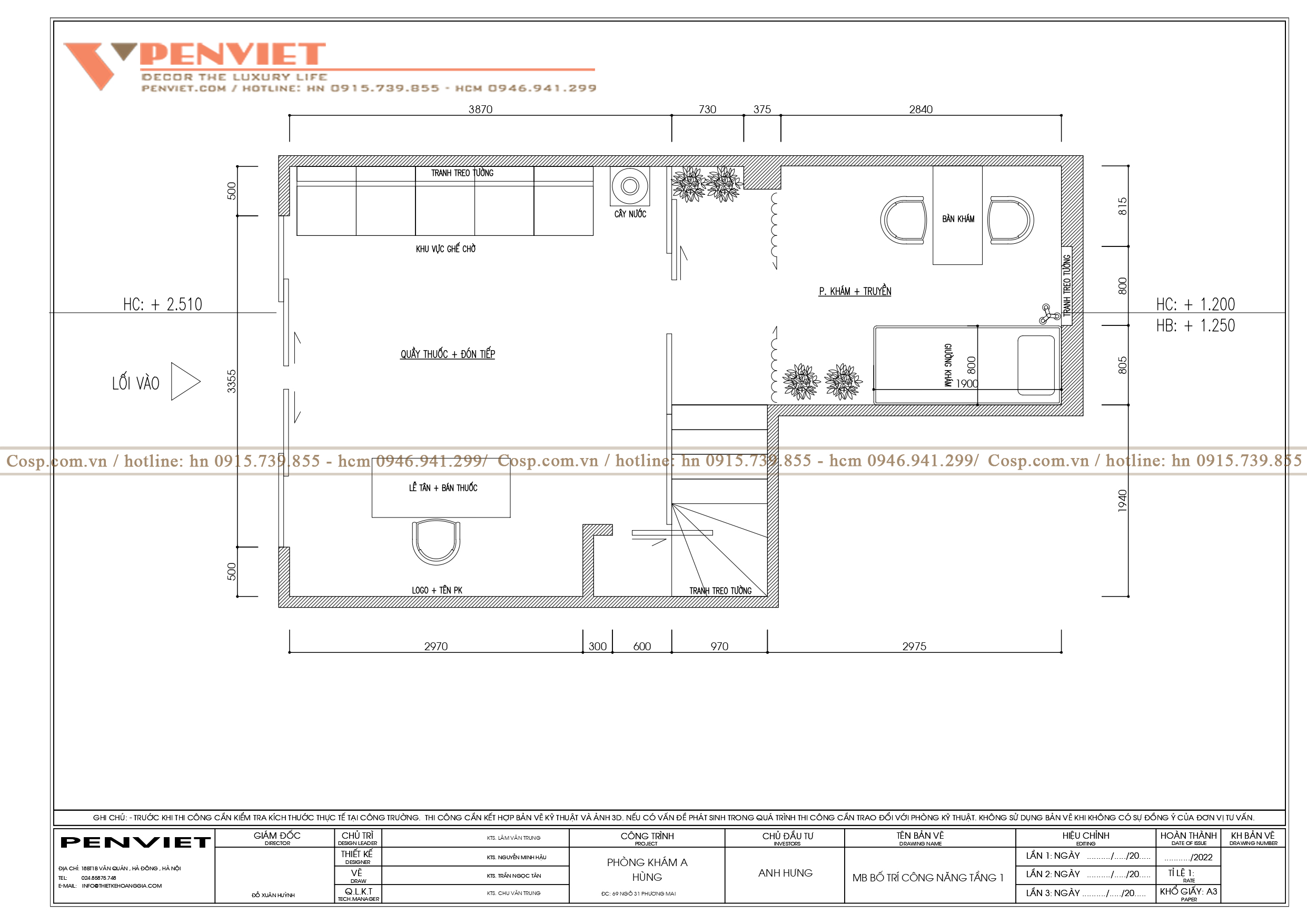
Hiện trạng mặt bằng trước thiết kế phòng khám gan mật
Mặt bằng phòng khám trước thiết kế là nhà ở gia đình. Mặt bằng đã cũ và không vuông vức khiến công việc thiết kế phòng khám đạt chuẩn và tối ưu gặp nhiều bất lợi.


Tuy nhiên kiến trúc sư Penviet với nhiều năm kinh nghiệm đã có những giải pháp thiết kế phòng khám mà chủ đầu tư ưng ý ngay từ lần đầu. Để thiết kế phòng khám này vừa đáp ứng tiêu chuẩn xây dựng và hoạt động của cơ sở y tế cũng như mang lại tính thẩm mỹ cho không gian. Chúng tôi đã tiến hành cải tạo lại mặt bằng toàn diện từ mặt tiền cho đến nội thất phòng khám.
Thiết kế phòng khám gan mật Tâm Minh
Sau khi khảo sát hiện trạng mặt bằng kết hợp với việc lắng nghe nguyện vọng của khách hàng, kiến trúc sư đã tư vấn cho chủ đầu tư thiết kế phòng khám gan mật theo phong cách hiện đại để phù hợp với đặc trưng ngành nghề.
Penviet lựa chọn màu trắng làm gam màu chủ đạo giúp liên kết các không gian, tạo sự nhất quán và chuyên nghiệp cho mẫu thiết kế phòng khám này. Ngoài ra, việc sử dụng màu trắng cũng giúp phòng khám trở nên rộng rãi và thông thoáng hơn so với diện tích thực tế
Mặt bằng bao gồm 2 tầng với tổng diện tích 56.5 m2 được bố trí một cách khoa học tạo thành các phòng và khu vực chức năng đáp ứng được các tiêu chuẩn y tế về xây dựng phòng khám chuyên khoa.


Thiết kế mặt tiền phòng khám gan mật Tâm Minh
Sở hữu 2 mặt tiền vuông vắn, vì vậy, chúng tôi đã tận dụng lợi thế này và sử dụng hoàn toàn bằng kính cường lực trong suốt dày 10mm kết hợp khung nhôm kính 2 lớp giúp không gian phòng khám tận dụng được nguồn ánh sáng tự nhiên chiếu sáng và khiến không gian trở nên rộng thoáng hơn.
Biển hiệu chính được dựng bằng khung sắt sơn tĩnh điện đảm bảo sự vững chắc theo thời gian, kể cả khi chịu nhiều ảnh hưởng từ thời tiết. Bảng hiệu cung cấp đến khách hàng đầy đủ những thông tin cơ bản về phòng khám như chuyên khoa, bác sĩ điều trị, địa chỉ, số điện thoại, lịch thăm khám…

Thiết kế nội thất phòng khám gan mật Tâm Minh
Thiết kế phòng khám nói chung, hay thiết kế phòng khám gan mật đều phải tuân thủ những tiêu chuẩn y tế hiện nay. Căn cứ theo Điều 26, Nghị định 109/2016/NĐ – CP của Chính Phủ ký ngày 01/07/2016 về Quy định cấp chứng chỉ hành nghề đối với người hành nghề và cấp giấy phép hoạt động đối với cơ sở khám bệnh, chữa bệnh. Theo đó, Khoản 1 điều này quy định: Phòng khám chuyên khoa phải có phòng khám bệnh, chữa bệnh có diện tích ít nhất 10m2 và nơi đón tiếp người bệnh (trừ phòng khám tư vấn sức khỏe hoặc phòng tư vấn sức khỏe qua các phương tiện công nghệ thông tin, viễn thông).
Từ đó chúng tôi nhận thấy rằng mặt bằng để setup phòng khám gan mật cần có sự cả tạo và phân chia lại không gian nhằm đáp ứng được các quy định về xây dựng và thiết kế phòng khám chuyên khoa.
Để đáp ứng các tiêu chuẩn thiết kế phòng khám gan mật, Penviet đã thực hiện cải tạo lại sàn nhà bằng việc loại bỏ sàn cũ màu tối khiến không gian bí bách bằng sàn gỗ màu sáng để mở rộng không gian. Tiến hành phân chia lại không gian, dựng khung, vách kính cường lực 10mm kết hợp sử dụng rèm che, gương trang trí để tạo thành các phòng, khu vực chức năng.
Thiết kế phòng khám gan mật phong cách hiện đại kết hợp với nội thất chất liệu gỗ mdf thiết kế đơn giản được các kiến trúc sư tư vấn cho chủ đầu tư nhằm khắc phục hạn chế về diện tích mặt bằng. Bên cạnh đó, penviet cũng lựa chọn màu trắng làm gam màu chủ đạo giúp tạo cảm giác rộng rãi, thông thoáng. Đồng thời, màu sắc này cũng giúp làm nổi bật những chi tiết nhấn nhá màu xanh trong không gian.
Thiết kế phòng lễ tân
Khu vực tiếp đón được chúng tôi bố trí bàn lễ tân cạnh cửa ra vào để có thể tiếp đón khách hàng nhanh nhất chu đáo nhất. Hệ ghế ngồi đợi hiện đại nhằm mang đến cho khách hàng sự thoải mái, dễ chịu khi ngồi chờ đợi đến thăm khám.



Thiết kế phòng khám và tiêm truyền
Khu vực khám chữa bệnh được sắp xếp ở vị trí hợp lý thuận lợi cho khách hàng di chuyển và tìm kiếm. Không gian được bố trí nội thất đơn giản bao gồm bàn làm việc và giường bệnh phục vụ quá trình thăm khám.

Thiết kế phòng nội soi
Thiết kế phòng khám sử dụng hệ thống nội thất gọn gàng, đơn giản vừa tối ưu công năng sử dụng nhưng không gây cản trở, khó khăn cho người bệnh và y bác sỹ.
Kết hợp giữa ánh sáng sáng tự nhiên và nhân tạo có cường độ sáng vừa phải tạo nên nguồn sáng dịu nhẹ không quá chói để tránh gây ảnh hưởng đến thị giác người bệnh và quá trình thăm khám của bác sĩ.


Thiết kế phòng chờ nội soi và trả kết quả

Thiết kế phòng khử khuẩn


Tham khảo:
Thiết kế phòng khám sản phụ khoa Hạnh Tước
Mẫu thiết kế phòng khám nhi khoa Từ Tâm hiện đại
Q: PenViet có nhận thiết kế và thi công trọn gói không hay chỉ chuyên về thiết kế?
A: PenViet nhận thiết kế và thi công trọn gói trên toàn quốc. Các văn phòng, chi nhánh của PenViet được đặt tại nhiều địa điểm nhằm cung cấp các dịch vụ không chỉ tại các trung tâm của cả nước mà còn phục vụ tới cả vùng biên giới, hải đảo xa xôi.
Q: Thời gian thiết kế và thi công bao lâu thì xong?
A: Vâng, đây là yếu tố được nhiều khách hàng quan tâm khi chuẩn bị thiết kế và thi công nội thất. Với những diện tích nhỏ thì thời gian thi công nhanh. Cụ thể như sau:
- Diện tích <100m2:
+ Thời gian thiết kế: từ 5 đến 7 ngày
+ Thời gian thi công: 10 đến 12 ngày
(Áp dụng trên toàn quốc)
- Diện tích >100m2:
+ Thời gian thiết kế: từ 7 đến 10 ngày
+ Thời gian thi công: 10 đến 15 ngày
(Áp dụng trên toàn quốc)
- Diện tích >500m2: Quý khách vui lòng liên hệ trực tiếp để biết thời gian thiết kế và thi công cụ thể.
Q: Giá thi công của PenViet cao hay thấp?
A. PenViet có hệ thống chi nhánh văn phòng và xưởng sản xuất ở nhiều nơi trên toàn quốc, nên giá thành sản phẩm là giá xuất xưởng, cạnh tranh nhằm đảm bảo chất lượng và dịch vụ phục vụ Khách hàng tốt nhất.
Q: PenViet thiết kế và thi công nội thất như thế nào?
A: PenViet cung cấp dịch vụ tới mọi thành phần kinh tế, chúng tôi cung cấp dịch vụ thiết kế, thi công và bán lẻ các mặt hàng nội thất.
- Với các sản phẩm khách hàng đã có bản vẽ 2D hoặc 3D: PenViet sẽ phân tích bản vẽ và báo giá cạnh tranh.
- Với các sản phẩm cần thiết kế chi tiết: PenViet sẽ báo giá từ thiết kế đến thi công.
- Với những khách hàng mua hàng có sẵn với số lượng lớn: vui lòng liên hệ để nhận báo giá cạnh tranh.
- Đối với các Showroom có diện tích trưng bày sản phẩm rộng lớn: PenViet có khung giá phù hợp với ngân sách của khách hàng.
Q: Khách hàng ở xa thì PenViet có nhận thiết kế và thi công không?
Q: PenViet nhận thiết kế và thi công trên toàn quốc. Ngoài ra, chúng tôi còn xuất khẩu cả sang thị trường nước ngoài.
Q: Chế độ bảo hành và bảo trì của PenViet thế nào?
A: Hầu hết các sản phẩm của PenViet được bảo hành từ 1 đến 2 năm (tùy chủng loại) và bảo trì vĩnh viễn (có tính phí khi thực hiện bảo trì).