Thiết kế phòng khám đa khoa, Thiết kế phòng khám, Thiết kế nhà thuốc
Anh Sơn chủ đầu tư dự án hiểu được rằng, một diện mạo mới sẽ mang đến những lợi thế lớn vừa giúp xây dựng hình ảnh thương hiệu, vừa tạo dựng được niềm tin với khách hàng. Vì thế, anh đã quyết định lựa chọn PenViet là đơn vị thiết kế, thi công, thay đổi diện mạo mới cho phòng khám của mình.
Thông qua khảo sát hiện trạng, các kiến trúc sư của chúng tôi đã tư vấn và đưa ra giải pháp thiết kế phòng khám đa khoa Dung Châu nhằm mang đến một diện mạo chuyên nghiệp, tối ưu công năng sử dụng.

Hiện trạng mặt bằng kém thu hút
Cụ thể, giải pháp thiết kế mà PenViet hướng đến là sự hiện đại, chuyên nghiệp, sử dụng màu sắc trang nhã, phù hợp với đặc trưng của ngành y tế tạo cảm giác thân thiện, gần gũi, giảm thiểu sự lo lắng, căng thẳng của người bệnh khi đến thăm khám.
Tuy có diện tích mặt bằng sử dụng khá lớn nhưng hiện trạng mặt bằng của phòng khám Dung Châu chưa thật sự cuốn hút, khó có thể gây được ấn tượng với khách hàng. Chính vì thế, chúng tôi đã tư vấn cho chủ đầu tư dự án lựa chọn phong cách thiết kế hiện đại, cải tạo một số hạng mục đảm bảo sự vận hành theo đúng quy định Thông tư số 41/2011/TT-BYT ngày 14/11/2011 quy định về điều kiện cấp chứng chỉ hành nghề và cấp giấy phép hoạt động đối với cơ sở khám chữa bệnh và Điều 26, Nghị định 109/2016/NĐ-CP của Chính Phủ ký ngày 01/07/2016 về việc Quy định cấp chứng chỉ hành nghề và cấp giấy phép hoạt động đối với cơ sở khám bệnh, chữa bệnh về thiết kế phòng khám.
Mẫu thiết kế phòng khám đa khoa Dung Châu được bố trí thành 3 tầng với những khu vực như sau:
Tầng 1: Sảnh chờ - Phòng khám nội
Tầng 2: Phòng khám - siêu âm - đo monitor - xét nghiệm
Tầng 3: Phòng giám đốc - phòng họp - phòng khám hiếm muộn
Sảnh chờ chính là nơi gây ấn tượng với khách hàng, giúp họ luôn cảm nhận được sự thoải mái, chuyên nghiệp, ân cần khi đến đây thăm khám. Bên cạnh đó, một không gian mới mẻ, ngăn nắp tiện nghi cũng phần nào củng cố thêm niềm tin, giúp cho người bệnh luôn có cảm giác an tâm khi sử dụng các dịch vụ tại đây.

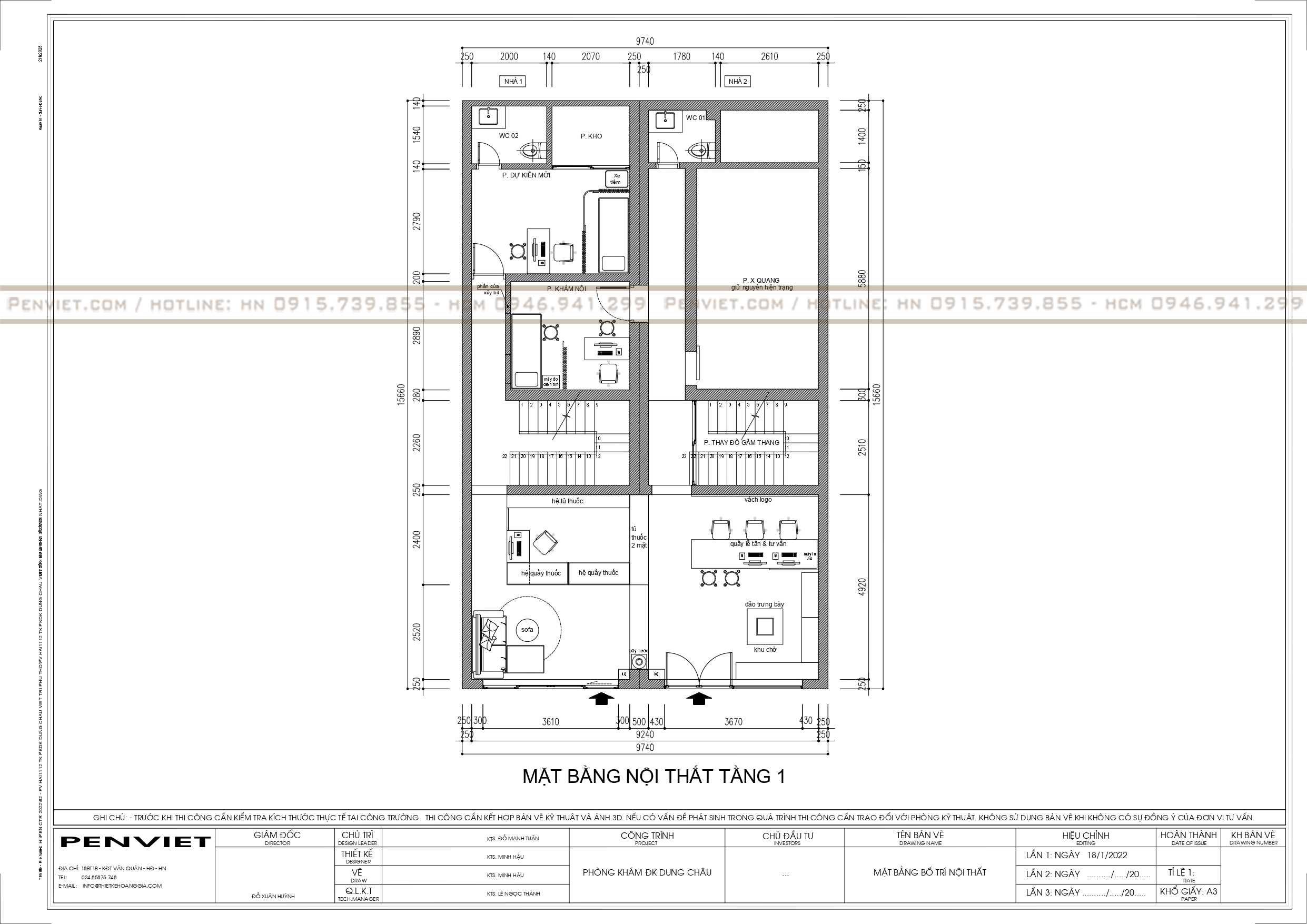
Bố trí mặt bằng tầng 1
Trong mẫu thiết kế phòng khám đa khoa Dung Châu các kiến trúc sư của PenViet lựa chọn bố trí khu vực tiếp đón khách hàng tại vị trí trung tâm để nhân viên đều có thể tiếp nhận và tư vấn tận tình cho từng người bệnh.

Không gian tiếp đón của phòng khám
Mẫu quầy được thiết kế đơn giản với gam màu xanh trắng làm toát lên tinh thần thiết kế.

Màu sắc trang nhã,phù hợp với đặc trưng ngành y tế
Phía sau quầy được setup logo và tên phòng khám bằng bộ chữ Mica in nổi giúp khu vực này cũng trở nên cuốn hút và thân thiện hơn.

Lối thiết kế mở tạo không gian thoáng đãng
Sảnh chờ trong mẫu thiết kế phòng khám đa khoa Dung Châu được bố trí bộ ghế gỗ MDF bọc đệm êm ái với màu xanh bắt mắt. Để tránh sự nhàm chán trong không gian, chúng tôi cũng setup các bức tranh với hình ảnh minh họa cho dịch vụ phòng khám hướng đến.
Hiểu rõ những quy định thiết kế xây dựng các cơ sở y tế, phòng khám, bệnh viện, PenViet đã thực hiện thiết kế phòng khám đa khoa Dung Châu theo đúng Thông tư số 41/2011/TT-BYT ngày 14/11/2011 quy định về điều kiện cấp chứng chỉ hành nghề và cấp giấy phép hoạt động đối với cơ sở khám chữa bệnh và Điều 26, Nghị định 109/2016/NĐ-CP của Chính Phủ ký ngày 01/07/2016 về việc Quy định cấp chứng chỉ hành nghề và cấp giấy phép hoạt động đối với cơ sở khám bệnh, chữa bệnh.
Cụ thể, nhà thuốc trong phòng khám đều đảm bảo quy định về diện tích, quầy kệ, khu vực bảo quản thuốc,...

Khu vực hành lang nhà thuốc

Bàn tư vấn sử dụng thuốc
Khu vực tư vấn nhà thuốc được thiết kế với bàn tư vấn, ghế ngồi bọc đệm tạo cảm giác êm ái, thân thuộc cho bệnh nhân.

Nhà thuốc trong phòng khám đạt tiêu chuẩn GPP

Nhà thuốc trong phòng khám đạt tiêu chuẩn GPP

Lối thiết kế mở tạo cảm giác thân thiện cho người bệnh

Khu vực nhà thuốc được setup tên và logo thương hiệu

Hệ thống quầy kệ nhà thuốc đạt chuẩn

Khu vực hành lang nhà thuốc

Khu vực phòng khám được setup nội thất đơn giản

Diện tích phòng khám đảm bảo quy định của Bộ y tế

Nội thất trang nhã, tạo cảm giác thân thuộc với người bệnh

Phòng khám sử dụng gam màu trang nhã, thân thuộc

Không gian phòng khám đảm bảo sự riêng tư

Lối hành lang lên tầng 2 phòng khám

Biển chỉ dẫn các khu vực quanh phòng khám

Biển chỉ dẫn khu vực lên tầng 2 phòng khám

Lối thiết kế khoa học tạo lối đi rộng rãi trong phòng khám
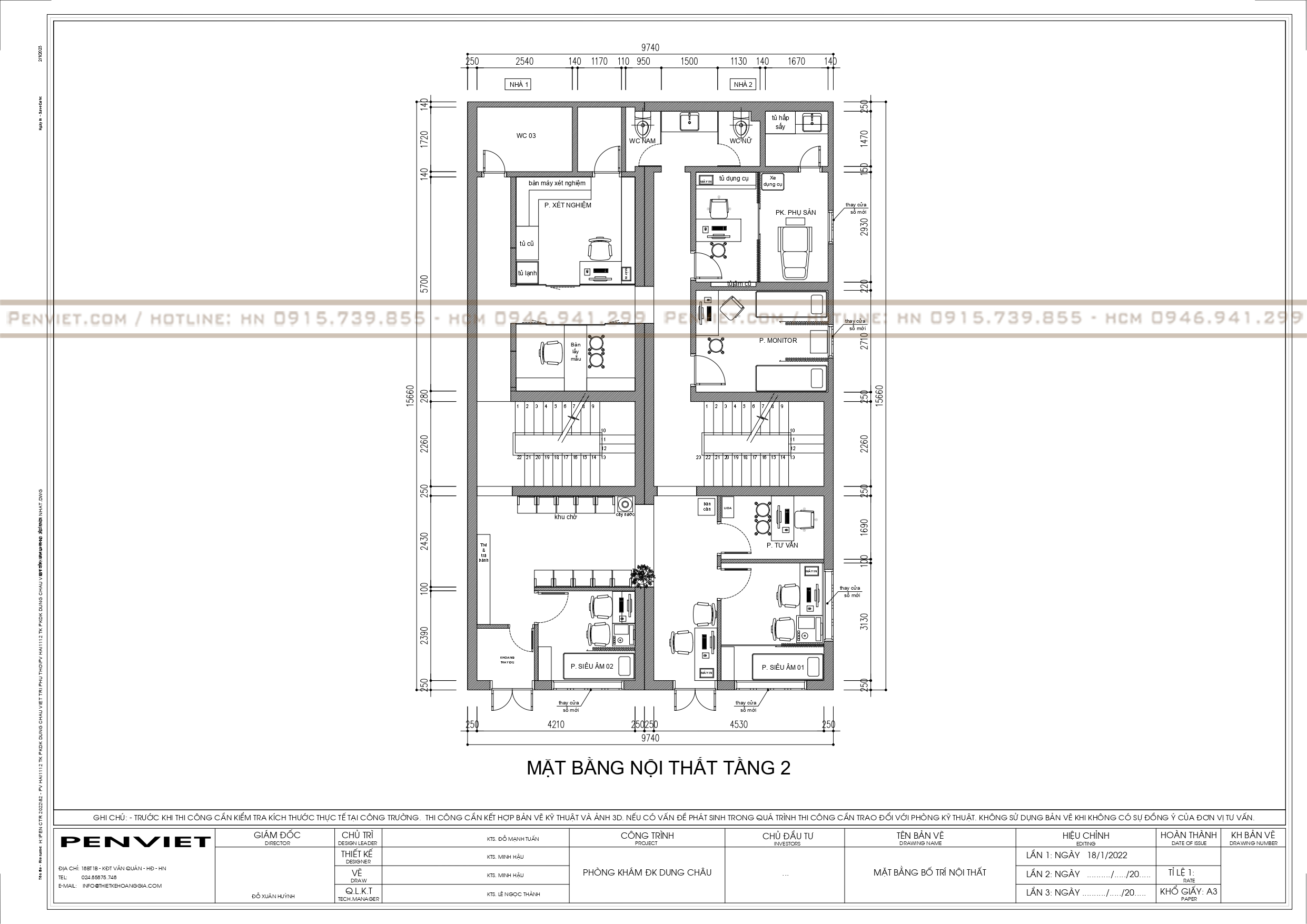
Trong mẫu thiết kế phòng khám đa khoa Dung Châu, khu vực tầng 2 được setup các phòng chức năng với đầy đủ tiện nghi.

Bố trí mặt bằng khu vực tầng 2

Phòng đo monitor được thiết kế với 2 giường song song

Phòng đo monitor được thiết kế với 2 giường song song

Màu sắc trang nhã đảm bảo sự nhất quán trong mẫu thiết kế phòng khám đa khoa

Diện tích phòng đảm bảo tiêu chuẩn quy định
Trong mẫu thiết kế phòng khám đa khoa Dung Châu, phòng khám sản phụ khoa được setup cơ sở vật chất hiện đại, đảm bảo đúng quy trình.

Rèm che đảm bảo sự riêng tư cho khách hàng

Không gian diện tích phòng khám đảm bảo quy định của Bộ Y tế

Nội thất phòng khám khoa học mang đến một không gian khám thân thiện

Nội thất phòng khám khoa học mang đến một không gian khám thân thiện

Màu sắc trang nhã tạo cảm giác an tâm, gần gũi

Khu vực vệ sinh, vô trùng

Khu vực vệ sinh, vô trùng
Trong mẫu thiết kế phòng khám đa khoa Dung Châu, phòng tư vấn và siêu âm được setup tại khu vực tầng 2:

Phòng khám và tư vấn bệnh nhân

Không gian phòng khám đảm bảo sự riêng tư, kín đáo

Không gian phòng khám đảm bảo sự riêng tư, kín đáo

Diện tích phòng khám đảm bảo những quy định của Bộ Y tế

Vẻ đẹp hiện đại, đơn giản tạo nên hình ảnh chuyên nghiệp

Cơ sở vật chất phòng khám khang trang, hiện đại


Khu vực tiếp đón hành lang tầng 2 phòng khám

Khu vực có biển chỉ dẫn giúp người bệnh tìm đúng phòng khám

Hành lang phòng khám có ghế chờ cho bệnh nhân

Hành lang phòng khám có ghế chờ cho bệnh nhân

Hình ảnh minh họa giúp tô điểm thêm cho không gian

Hành lang rộng rãi tạo cảm giác thoải mái cho bệnh nhân

Mỗi khu vực đều có biển chỉ dẫn

Màu sắc trang nhãn đảm bảo sự nhất quán trong mẫu thiết kế phòng khám đa khoa

Phòng xét nghiệm đảm bảo khử khuẩn, vô trùng cao

Phòng xét nghiệm đảm bảo khử khuẩn, vô trùng cao

Phòng xét nghiệm đảm bảo khử khuẩn, vô trùng cao

Hệ thống cơ sở vật chất trang hoàng, hiện đại

Hệ thống cơ sở vật chất trang hoàng, hiện đại

Hệ thống cơ sở vật chất trang hoàng, hiện đại

Bàn tư vấn, lấy mẫu xét nghiệm

Màu sắc trang nhã mang đến hình ảnh chỉn chu, chuyên nghiệp

Không gian hiện đại, ngăn nắp, tiện nghi

Không gian hiện đại, ngăn nắp, tiện nghi

Khu vực vệ sinh hiện đại, sạch sẽ

Khu vực vệ sinh hiện đại, sạch sẽ

Khu vực vệ sinh hiện đại, sạch sẽ

Khu vực hành lang rộng rãi, thông thoáng

Khu vực hành lang rộng rãi, thông thoáng

Khu vực hành lang rộng rãi, thông thoáng

Khu vực hành lang rộng rãi, thông thoáng
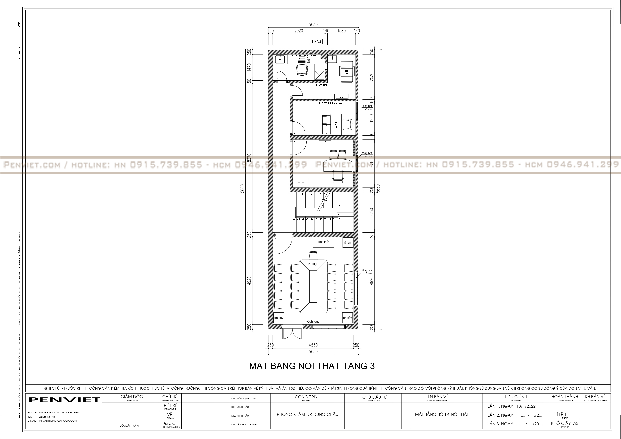
Trong mẫu thiết kế phòng khám đa khoa Dung Châu, khu vực tầng 3 được setup nội thất phòng giám đốc, phòng họp và khu vực khám vô sinh hiếm muộn.

Bố trí mặt bằng nội thất tầng 3

Phòng khám sử dụng màu sắc đồng nhất

Phòng khám được minh họa nội dung dịch vụ
Nội thất trang nhã, tiện nghi, phục vụ công tác khám chữa bệnh

Nội thất trang nhã, tiện nghi, phục vụ công tác khám chữa bệnh

Nội thất trang nhã, tiện nghi, phục vụ công tác khám chữa bệnh

Nội thất trang nhã, tiện nghi, phục vụ công tác khám chữa bệnh

Phòng lọc rửa đảm bảo vô trùng

Phòng lọc rửa đảm bảo vô trùng, tiện nghi

Phòng lọc rửa đảm bảo vô trùng, tiện nghi

Phòng giám đốc sử dụng nội thất đơn giản, tinh tế

Lối thiết kế mở tạo không gian thông thoáng

Lối thiết kế mở tạo không gian thông thoáng

Màu sắc trang nhã, hiện đại

Phòng họp được setup với bộ bàn ghế lớn tiện nghi

Phòng họp được setup với bộ bàn ghế lớn tiện nghi

Không gian xanh mang đến cảm giác thư thái

Không gian xanh mang đến cảm giác thư thái

Không gian xanh mang đến cảm giác thư thái
Việc setup toàn bộ không gian phòng khám đa khoa Dung Châu được chúng tôi tuân thủ triệt để theo Điều 26, Nghị định 109/2016/NĐ-CP của Chính Phủ ký ngày 01/07/2016 về việc Quy định cấp chứng chỉ hành nghề và cấp giấy phép hoạt động đối với cơ sở khám bệnh, chữa bệnh: Phải có phòng khám bệnh, chữa bệnh, nhà thuốc, phòng xét nghiệm, tư vấn, khử trùng…
Với diện tích 380m2 cùng sự am hiểu về những quy định thiết kế, PenViet đã tận dụng triệt để không gian để thực hiện phân chia các khu vực chức năng mang đến một cơ sở khám chữa bệnh tiện nghi, hiện đại, giúp xây dựng niềm tin với khách hàng.














Bạn thấy sao về mẫu thiết kế phòng khám đa khoa này do PenViet thực hiện? Nếu bạn đang tìm kiếm một đơn vị hàng đầu về thiết kế phòng khám, bệnh viện, tnhà thuốc với những ý tưởng sáng tạo tuyệt vời, tối ưu triệt để không gian và đáp ứng đúng theo quy định của Bộ Y tế và Chính phủ quy định thì bạn hãy liên hệ với đội ngũ kiến trúc sư Penviet để được tư vấn và giải đáp ngay nhé! Với sự am hiểu tường tận và kinh nghiệm được đúc rút qua nhiều dự án thì Penviet tự tin sẽ làm khách hàng cảm thấy hài lòng!







A. PenViet có hệ thống chi nhánh văn phòng và xưởng sản xuất ở nhiều nơi trên toàn quốc, nên giá thành sản phẩm là giá xuất xưởng, cạnh tranh nhằm đảm bảo chất lượng và dịch vụ phục vụ Khách hàng tốt nhất.
A: PenViet cung cấp dịch vụ tới mọi thành phần kinh tế, chúng tôi cung cấp dịch vụ thiết kế, thi công và bán lẻ các mặt hàng nội thất.
- Với các sản phẩm khách hàng đã có bản vẽ 2D hoặc 3D: PenViet sẽ phân tích bản vẽ và báo giá cạnh tranh.
- Với các sản phẩm cần thiết kế chi tiết: PenViet sẽ báo giá từ thiết kế đến thi công.
- Với những khách hàng mua hàng có sẵn với số lượng lớn: vui lòng liên hệ để nhận báo giá cạnh tranh.
- Đối với các Showroom có diện tích trưng bày sản phẩm rộng lớn: PenViet có khung giá phù hợp với ngân sách của khách hàng.