Trong bối cảnh nhu cầu vui chơi giải trí ngày càng được chú trọng, không gian quán bida không chỉ cần đảm bảo tính năng thi đấu mà còn cần có nội thất ấn tượng, tạo trải nghiệm mới mẻ. Một ví dụ điển hình về sự kết hợp hài hòa giữa công năng và thẩm mỹ chính là thiết kế quán bida Bạch Đằng ấn tượng, chuyên nghiệp dưới đây.
Thiết kế quán bida Bạch Đằng nổi bật với không gian rộng rãi, bố trí khoa học và ánh sáng tối ưu, mang lại cảm giác thông thoáng ngay từ khi bước chân vào. Tổng thể thiết kế lấy cảm hứng từ vẻ đẹp hiện đại với gam màu chủ đạo là xám tro, nâu gỗ trầm và xanh dương nhạt.
.jpg)
Quán sử dụng trần thạch cao phẳng với hệ thống đèn spotlight âm trần bố trí theo hàng lối đều đặn, góp phần làm nổi bật không gian mà không gây chói mắt người chơi. Ngoài ra, phần sàn trải thảm gạch màu xám họa tiết caro không chỉ tăng tính thẩm mỹ mà còn giúp chống trơn trượt, giảm tiếng ồn trong quá trình di chuyển.
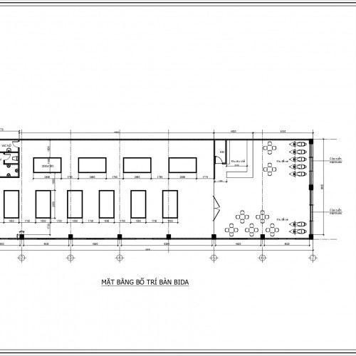
Điểm sáng trong thiết kế quán bida Bạch Đằng chính là cách bố trí bàn bida khoa học. Mỗi bàn được đặt cách nhau một khoảng đủ rộng, đảm bảo người chơi di chuyển thoải mái và không cản trở lẫn nhau. Khoảng cách giữa các bàn được tính toán kỹ lưỡng theo tiêu chuẩn thi đấu chuyên nghiệp, phù hợp cho cả mục đích giải trí và tổ chức các giải đấu phong trào.
.jpg)
Các bàn bida sử dụng gỗ nâu trầm phối kim loại mạ chrome, tạo nên vẻ sang trọng và chắc chắn. Mặt bàn phủ nỉ xanh dương mang đến cảm giác mát mắt và dễ dàng theo dõi đường đi của bi. Hệ thống ánh sáng chiếu thẳng từ đèn thả trần kiểu công nghiệp, mỗi đèn phủ riêng cho từng bàn đảm bảo độ sáng và tạo nên sự tách biệt riêng tư cho từng khu chơi.
Điểm nhấn nghệ thuật rõ rệt trong thiết kế nội thất quán bida Bạch Đằng là bức tranh tường graffiti lớn ở đầu quán. Bức tranh mang phong cách đường phố, trẻ trung và sống động, tạo nên không khí sôi nổi và năng động, rất phù hợp với tinh thần thể thao.
.jpg)
Các mảng tường còn lại được thiết kế tối giản, sơn tường màu xám trung tính kết hợp lam gỗ dọc nửa thân dưới, giúp không gian không bị đơn điệu mà vẫn giữ được nét hiện đại. Hệ thống đèn gắn tường hình lục giác bố trí dọc theo các vách tường, tạo điểm nhấn ánh sáng mềm mại và tăng độ chiều sâu cho không gian.
Thiết kế ghế chờ dọc theo hai bên tường quán cho thấy sự chu đáo trong việc phục vụ người chơi và khách tham quan. Ghế gỗ dài phối cùng bàn nhỏ tiện lợi, giúp người dùng có nơi nghỉ ngơi, trò chuyện hoặc chờ đến lượt chơi. Toàn bộ bàn ghế sử dụng chất liệu gỗ sồi sơn PU, kiểu dáng tối giản, đồng nhất với tổng thể thiết kế chung.
.jpg)
Ngoài ra, các vòm gỗ hình bán nguyệt được thiết kế cách điệu trên tường giúp không gian mềm mại, tránh cảm giác thô cứng thường thấy ở các quán bida thông thường.
Ánh sáng đóng vai trò then chốt trong thiết kế quán bida, và Bạch Đằng đã làm rất tốt điều này. Quán sử dụng song song hai loại chiếu sáng là đèn LED âm trần ánh sáng vàng trung tính, cho ánh sáng dịu nhẹ. Bên cạnh đó là đèn thả trần dạng chụp đen nhám cho từng bàn chơi, tập trung ánh sáng đúng vị trí cần thiết, giảm thiểu đổ bóng và nâng cao độ tập trung.
Ở cuối quán là khu vực lễ tân và tủ trưng bày phụ kiện bida, nơi khách hàng có thể đăng ký, gửi đồ hoặc mua các vật dụng như cơ, phấn, bao tay. Thiết kế khu vực này đồng bộ với toàn bộ không gian chung. Ngoài ra, khu vực WC và phòng nghỉ nhân viên được bố trí kín đáo phía sau.
.jpg)
Dọc theo một bên tường là hệ cửa kính lớn sát trần, giúp tận dụng ánh sáng tự nhiên vào ban ngày và tạo cảm giác gần gũi với không gian bên ngoài. Rèm kéo hai lớp cho phép điều chỉnh ánh sáng linh hoạt, phù hợp với các thời điểm khác nhau trong ngày.
Ngoài ra, việc sử dụng kính cũng giúp mở rộng tầm nhìn, làm không gian trở nên rộng rãi và thoáng đãng hơn rất nhiều.
Thiết kế quán bida Bạch Đằng là sự đầu tư tỉ mỉ về việc lựa chọn màu sắc, vật liệu, cách bố trí không gian đến chi tiết trang trí. Tất cả các yếu tố trên thể hiện gu thẩm mỹ cao cấp và sự thấu hiểu nhu cầu người chơi. Không gian hiện đại, ánh sáng tinh tế, bố trí khoa học là những gì khách hàng sẽ cảm nhận được khi đến với quán bida Bạch Đằng. Nếu quý khách muốn sở hữu không gian kinh doanh ấn tượng như trên, hãy liên hệ ngay PenViet.







A. PenViet có hệ thống chi nhánh văn phòng và xưởng sản xuất ở nhiều nơi trên toàn quốc, nên giá thành sản phẩm là giá xuất xưởng, cạnh tranh nhằm đảm bảo chất lượng và dịch vụ phục vụ Khách hàng tốt nhất.
A: PenViet cung cấp dịch vụ tới mọi thành phần kinh tế, chúng tôi cung cấp dịch vụ thiết kế, thi công và bán lẻ các mặt hàng nội thất.
- Với các sản phẩm khách hàng đã có bản vẽ 2D hoặc 3D: PenViet sẽ phân tích bản vẽ và báo giá cạnh tranh.
- Với các sản phẩm cần thiết kế chi tiết: PenViet sẽ báo giá từ thiết kế đến thi công.
- Với những khách hàng mua hàng có sẵn với số lượng lớn: vui lòng liên hệ để nhận báo giá cạnh tranh.
- Đối với các Showroom có diện tích trưng bày sản phẩm rộng lớn: PenViet có khung giá phù hợp với ngân sách của khách hàng.