Làm đẹp cho mái tóc là một trong những dịch vụ spa phổ biến nhất hiện nay. Để tồn tại trong môi trường cạnh tranh khốc liệt, việc đầu tư cho thiết kế salon tóc đang ngày càng được các chủ đầu tư quan tâm, chú trọng. Cùng chiêm ngưỡng một sự lột xác nhờ những ý tưởng thiết kế sáng tạo của kiến trúc sư Penviet ngay sau đây nhé!
Mặt bằng 25m2 vốn vẫn đang được chủ đầu tư sử dụng để kinh doanh salon tóc. Tuy nhiên, nhận thấy việc bài trí lỗi thời khiến cho cửa tiệm kém thu hút, dần mất đi những lợi thế cạnh tranh so với đối thủ, do đó, chị Liên đã quyết định liên hệ với Penviet để được các chuyên gia tư vấn giải pháp setup nhằm thay đổi diện mạo cho cơ sở kinh doanh của mình.

Setup cửa tiệm lỗi thời làm mất đi lợi thế cạnh tranh
Sau khi tiến hành khảo sát hiện trạng mặt bằng và lắng nghe nguyện vọng của khách hàng về việc muốn tạo dựng một không gian cửa tiệm sang trọng, chuyên nghiệp nhưng cũng không kém phần nhẹ nhàng, tinh tế, hướng đến đối tượng khách hàng tiềm năng là phái đẹp, các kiến trúc sư đã tìm kiếm những phương án phù hợp nhất để khắc phục hạn chế của salon cũng như thỏa mãn yêu cầu từ phía chủ đầu tư.

Hiện trạng mặt bằng kinh doanh
Cửa tiệm với diện tích khá nhỏ, do đó, việc setup không gian rườm rà sẽ càng làm lộ ra những nhược điểm của không gian cũng như tạo cảm giác bí bách. Bởi vậy, tư vấn cho chủ đầu tư thiết kế salon tóc mang phong cách hiện đại, sử dụng gam màu sáng giúp ánh sáng phản xạ và luân chuyển tốt hơn, khiến cửa tiệm có vẻ rộng rãi, thoáng đãng hơn. Bên cạnh đó, những gam màu này cũng đem đến sự nhẹ nhàng, tinh tế cho Salon tóc Ngọc Liên.
Một giải pháp khắc phục hạn chế mặt bằng nhỏ hẹp nữa được Penviet áp dụng tại đây đó là sử dụng cửa kính cường lực cho toàn bộ mặt tiền, tạo không gian mở giúp Hair Salon này trở lên thoáng rộng.
Ngoài ra, chúng tôi còn kết hợp việc lựa chọn nội thất cũng như vật liệu nhằm làm toát lên vẻ đẹp hiện đại và sang trọng cho Salon tóc Ngọc Liên. Điều này góp phần nâng tầm đẳng cấp và hoàn thiện chất lượng dịch vụ tại cửa tiệm.

Không gian hiện đại, sang trọng tại Salon tóc Ngọc Liên
Nhằm mang đến sự thu hút cho cửa tiệm, Penviet thiết kế biển quảng cáo lớn bằng Alu màu hồng Pastel kết hợp khung sắt gia cố tôn lên bộ nhận diện thương hiệu gồm Logo Mica hộp dựng hông nổi cùng tên cửa tiệm bằng Mica chân Formex phát sáng mặt cùng thông tin liên hệ bằng Mica. Diện mạo này không chỉ tạo nên sự thu hút đối với khách hàng bởi sự ngọt ngào, tinh tế mà còn làm toát lên tinh thần của mẫu thiết kế salon tóc.
Để mang đến sự nhất quán, chúng tôi còn tiến hành ốp cột ngoài mặt tiền bằng Alu màu sắc đồng điệu với biển hiệu tạo dựng sự chuyên nghiệp cho Hairsalon Ngọc Liên

Thiết kế mặt tiền hiện đại, thu hút
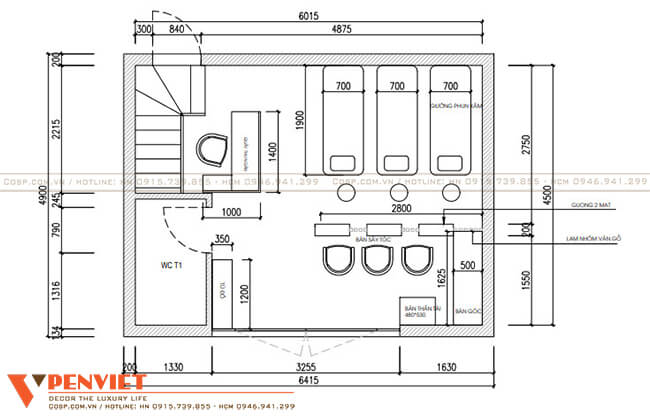
Với diện tích chỉ 25m2, việc bố trí mặt bằng khoa học sẽ mang đến giải pháp không gian tối ưu giúp khắc phục hạn chế mặt bằng. Và điều này đã được các kiến trúc sư Penviet xử lý một cách triệt để nhằm đảm bảo công năng sử dụng cũng như tạo được sự thuận tiện cho người sử dụng.

Bố trí mặt bằng trong thiết kế salon tóc
Ngoài ra, chúng tôi còn kết hợp sử dụng gương 2 mặt dán decal mờ chữ và viền xung quanh để giải quyết vấn đề này, đồng thời đáp ứng nhu cầu sử dụng của khách hàng. Việc lắp đặt các gương trên nền vách gương và ốp trần nhựa giả gỗ này cũng có tác dụng phân chia khu vực làm tóc với khu vực gội đầu, mang đến tính thẩm mỹ cho không gian.
Tại khu vực làm tóc, Penviet bố trí các ghế chân xoay tiện dụng không những mang đến sư thoải mái cho khách hàng mà còn tạo thuận lợi cho nhân viên khi làm việc.
Bộ nhận diện thương hiệu cũng được chúng tôi khéo léo nhấn mạnh trong mẫu thiết kế Salon tóc Ngọc Liên với việc setup vách tường ốp gỗ MDF chống ẩm phủ Laminate làm nổi bật tên cửa hàng bằng Mica truyền sáng kết hợp đèn Led, gây ấn tượng với khách hàng bằng sự hiện đại, độc đáo.
Để khách hàng đến với cửa tiệm luôn cảm nhận được dịch vụ hoàn hảo nhất, Penviet còn tận dụng không gian để bố trí các đôn ngồi khung gỗ MDF chống ẩm, chống mối mọt phủ Melamine, bọc ghế bằng da Simili mang đến sự thoải mái, dễ chịu cho người sử dụng cũng như tạo sự sang trọng cho Hairsalon.
Tủ trưng bày dầu gội bằng gỗ MDF chống ẩm phủ Melamine, trán tủ dán tranh backlist được chúng tôi sử dụng trong mẫu thiết kế salon tóc Ngọc Liên giúp giới thiệu đến khách hàng các sản phẩm chăm sóc tóc chất lượng, từ đó giúp gia tăng doanh số cho cửa hàng. Ngoài ra, các ngăn tủ thấp còn giúp tạo ra không gian lưu trữ cho cửa hàng. Đây là giải pháp hoàn hảo dành cho những cửa tiệm nhỏ.
Thêm vào đó, mẫu tủ kịch trần này cũng hạn chế được tình trạng bám bụi trên nóc tủ, giúp việc vệ sinh được dễ dàng.

Khu vực làm tóc
Khu vực gội đầu sử dụng bàn gội hiện đại nhằm mang đến cho khách hàng dịch vụ và trải nghiệm hoàn hảo. Tại đây, chúng tôi còn sử dụng gương bi mài xiết cạnh ghép hình quả trám mang đến sự sang trọng, thời thượng cho không gian.
Penviet tư vấn cho chủ đầu tư lựa chọn ghế cho nhân viên nhỏ gọn, giúp việc di chuyển và sắp xếp được dễ dàng.

Khu vực gội đầu tại Hair Salon Ngọc Liên
Quầy lễ tân được Penviet bố trí ở cuối cửa hàng nhằm giúp nhân viên dễ dàng bao quát toàn bộ không gian. Thiết kế quầy hiện đại, sử dụng gỗ MDF chống ẩm, mặt ngoài ốp PVC giả đá kết hợp Melamine mang đến sự sang trọng, hiện đại cho Salon tóc Ngọc Liên. Việc sử dụng thêm hệ thống đèn Led càng khiến cho khu vực này trở nên thu hút.
Chúng tôi còn tô điểm cho mẫu thiết kế salon tóc Ngọc Liên bằng việc sử dụng các đèn trang trí hiện đại, đẹp mắt, làm tăng tính thẩm mỹ cho không gian.
Có thể nói, dù mô hình là một spa mini, song, cửa tiệm này cũng đã được các kiến trúc sư của chúng tôi setup nhằm đáp ứng được các tiêu chuẩn do Hiệp hội spa thế giới đặt ra để đánh giá một cơ sở làm đẹp như màu sắc, ánh sáng, đầy đủ phòng, khu vực chức năng, tạo được sự riêng tư cho khách hàng.

Quầy thu ngân được bố trí ở cuối cửa hàng
Những giải pháp được sử dụng đồng bộ đã tạo nên một mẫu thiết kế nội thất salon tóc tối ưu, vừa đáp ứng được công năng sử dụng, vừa đảm tính thẩm mỹ, mang đến sự hài lòng cho khách hàng. Bạn đã cảm thấy hài lòng với ý tưởng setup này chưa? Liên hệ ngay với Penviet để được tư vấn phương án phù hợp nhất cho không gian của bạn nhé!







A. PenViet có hệ thống chi nhánh văn phòng và xưởng sản xuất ở nhiều nơi trên toàn quốc, nên giá thành sản phẩm là giá xuất xưởng, cạnh tranh nhằm đảm bảo chất lượng và dịch vụ phục vụ Khách hàng tốt nhất.
A: PenViet cung cấp dịch vụ tới mọi thành phần kinh tế, chúng tôi cung cấp dịch vụ thiết kế, thi công và bán lẻ các mặt hàng nội thất.
- Với các sản phẩm khách hàng đã có bản vẽ 2D hoặc 3D: PenViet sẽ phân tích bản vẽ và báo giá cạnh tranh.
- Với các sản phẩm cần thiết kế chi tiết: PenViet sẽ báo giá từ thiết kế đến thi công.
- Với những khách hàng mua hàng có sẵn với số lượng lớn: vui lòng liên hệ để nhận báo giá cạnh tranh.
- Đối với các Showroom có diện tích trưng bày sản phẩm rộng lớn: PenViet có khung giá phù hợp với ngân sách của khách hàng.