Thiết kế khu trưng bày pháp phục và phòng họp văn phòng hiện được khá nhiều người quan tâm. Hãy cùng theo chân chúng tôi khám phá không gian này nhé!
Sau khi nhận được những thông tin từ phía khách hàng, PenViet đã cử đội ngũ kiến trúc sư đi khảo sát thực tế mặt bằng và trao đổi với chủ đầu tư về những mong muốn, nguyện vọng,... nhằm đưa ra sự thống nhất chung, tránh xảy ra những sai sót không ảnh hưởng đến chi phí đầu tư. Qua khảo sát, chúng tôi thấy rằng, hiện trạng mặt bằng khá hạn chế, lối thiết kế cũ không thu hút khách hàng cũng như không khoa học cho phòng trưng bày.


Qua quá trình trao đổi, nắm bắt mong muốn của chủ đầu tư, PenViet đã lựa chọn phong cách thiết kế hiện đại, tinh giản tối đa nội thất mang đến không gian rộng rãi, thông thoáng cho khách hàng. Bên cạnh đó, vẫn phải đảm bảo cho chủ đầu tư công năng sử dụng cũng như yếu tố thẩm mỹ.
Với diện tích mặt bằng hạn chế, chúng tôi đã khéo léo setup dự án theo 2 khu vực tách biệt là không gian phòng họp và khu vực trưng bày pháp phục
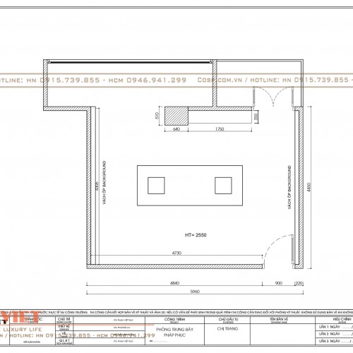
Bố trí mặt bằng phòng họp
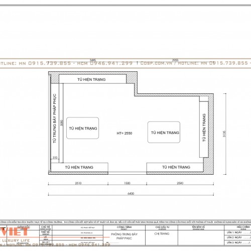
Bố trí mặt bằng không gian trưng bày
Bước vào không gian phòng họp, chúng ta sẽ cảm nhận ngay được sự sang trọng, lịch sự và trang nghiêm. Tại đây, nội thất được tinh giản, chỉ sử dụng máy chiếu, bàn ghế và hệ tủ sát tường phục vụ nhu cầu sử dụng của khách hàng. Điểm nhấn của không gian này chính là những vách trang trí tạo sự chú ý với mọi người.
Tại đây, chúng tôi đã sử dụng vách ốp Background phía trên bằng gỗ MDF cốt xanh chống ẩm phủ melamine màu gỗ kết hợp máy chiếu thuận tiện cho việc trao đổi giữa cuộc họp.
Thiết kế nội thất phòng họp
Tại phía đối diện kiến trúc sư cũng sử dụng vách ốp Background bằng gỗ MDF cốt xanh cùng với bảng trắng ở chính giữa nhằm phục vụ nhu cầu sử dụng của chủ đầu tư.
Thiết kế vách trang trí bắt mắt
Để trang trí cho không gian phòng họp, PenViet đã thiết kế một bản đồ Việt Nam phát sáng nhằm tạo điểm nhấn cho căn phòng. Bản đồ này được làm từ gỗ thông tấm và phủ keo 2 mặt để gắn tường.

Thiết kế phòng họp theo phong cách hiện đại
Bên cạnh đó, Penviet cũng tận dụng chiếc bàn họp hình chữ nhật với vật liệu gỗ cao cấp, kết hợp ghế chân quỳ bọc da đơn giản đã tạo sự thoải mái cho người sử dụng. Không những vậy, mà nó còn tạo nên một không gian có tính hiện đại, trang nghiêm và chuyên nghiệp.
Hệ tủ decor bằng gỗ MDF cốt xanh chống ẩm phủ melamine giúp chủ đầu tư tăng khu vực lưu trữ. Hệ tủ này được thiết kế bắt mắt bởi những vách gỗ được thiết kế tỉ mỉ. Việc bố trí led hắt sáng trong tủ càng làm nổi bật nên vẻ đẹp sang trọng của căn phòng.

Hệ tủ sát đường được áp dụng
Với phòng họp này, kiến trúc sư cũng rất khéo léo trong việc lựa chọn ánh sáng giúp vừa tiết kiệm điện năng vừa đảm bảo nguồn sáng sử dụng. Hệ cửa sổ cũng được chúng tôi lựa chọn hệ kính cường lực nhằm tận dụng nguồn ánh sáng tự nhiên tạo cảm giác dễ chịu cho mọi người trong quá trình trao đổi.
Không gian phòng trưng bày được chúng tôi tìm hiểu rất kỹ và đưa ra những phương án phù hợp, độc đáo và kích thích khách hàng.
Với không gian hạn chế, PenViet đã tận dụng triệt để không gian sao cho căn phòng vừa trưng bày được nhiều sản phẩm, lại vừa tạo được cảm giác thông thoáng, rộng rãi. Cụ thể là chúng tôi đã bố trí và sắp xếp hệ tủ sát tường bằng gỗ MDF cốt xanh chống ẩm phủ melamine kết hợp các đợt gỗ, cắt CNC họa tiết được áp dụng cho không gian. Cùng với đó, chúng tôi cũng sử dụng thêm thanh ray sắt sơn tĩnh điện để trưng bày các mặt hàng được bắt mắt hơn.
Thiết kế không gian khu vực trưng bày
Hệ đèn led hắt sáng vách cũng được sử dụng nhằm tạo điểm nhấn cũng như giúp sản phẩm được lung tinh hơn trong mắt khách hàng.
Trên đây là một số thông tin mà chúng tôi muốn gửi đến quý bạn đọc qua dự án thiết kế khu trưng bày pháp phục và phòng họp văn phòng. Hãy liên hệ ngay với PenViet để có cho mình những không gian ấn tượng, phù hợp với mục đích của mình nhé!







A. PenViet có hệ thống chi nhánh văn phòng và xưởng sản xuất ở nhiều nơi trên toàn quốc, nên giá thành sản phẩm là giá xuất xưởng, cạnh tranh nhằm đảm bảo chất lượng và dịch vụ phục vụ Khách hàng tốt nhất.
A: PenViet cung cấp dịch vụ tới mọi thành phần kinh tế, chúng tôi cung cấp dịch vụ thiết kế, thi công và bán lẻ các mặt hàng nội thất.
- Với các sản phẩm khách hàng đã có bản vẽ 2D hoặc 3D: PenViet sẽ phân tích bản vẽ và báo giá cạnh tranh.
- Với các sản phẩm cần thiết kế chi tiết: PenViet sẽ báo giá từ thiết kế đến thi công.
- Với những khách hàng mua hàng có sẵn với số lượng lớn: vui lòng liên hệ để nhận báo giá cạnh tranh.
- Đối với các Showroom có diện tích trưng bày sản phẩm rộng lớn: PenViet có khung giá phù hợp với ngân sách của khách hàng.