Trong lĩnh vực đào tạo nghệ thuật, một phòng dạy đàn không chỉ cần đủ chức năng mà còn phải mang lại cảm giác thư thái và truyền cảm hứng. Không gian của Chị Mai tại Cổ Nhuế, Hà Nội có diện tích chỉ 18m2 nhưng vẫn trở thành một phòng học đàn đẹp, sang và rất tinh tế. Thiết kế tập trung vào sự gọn gàng, hài hòa và đậm chất nghệ thuật truyền thống, giúp học viên dễ dàng tập trung và cảm nhận âm nhạc một cách trọn vẹn. Đây là lựa chọn thiết kế phù hợp với những chủ đầu tư muốn cải tạo không gian dạy đàn theo hướng bài bản và tinh tế hơn.
Hiện trạng trước thiết kế
.jpg)
.jpg)
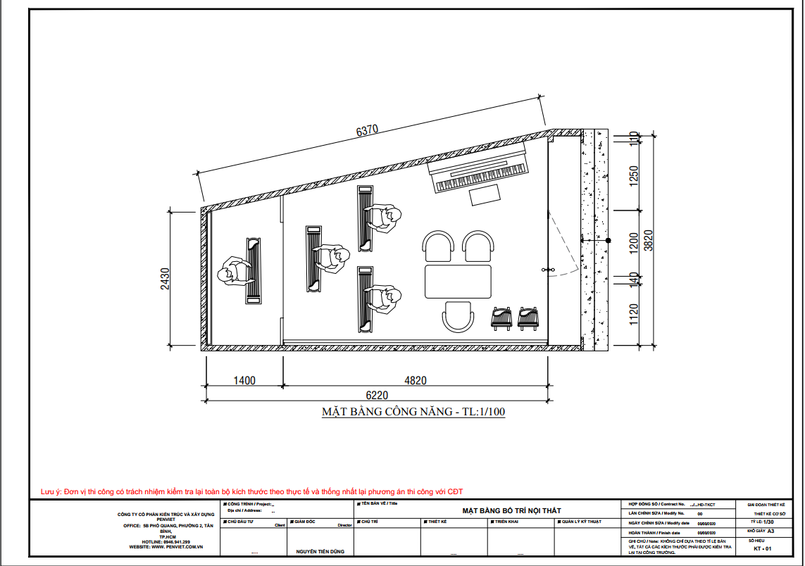
Mặt bằng công năng
.png)
Đối với phòng dạy đàn diện tích nhỏ như 18m2, bài toán đặt ra là tối ưu hóa bố cục nhưng vẫn giữ được sự thoáng và trật tự. Không gian cũng cần đảm bảo tính thẩm mỹ, thể hiện nét đặc trưng của âm nhạc dân tộc và nhạc cụ gảy. Điều này đòi hỏi cách tổ chức hợp lý, màu sắc nhẹ nhàng, ánh sáng phù hợp và vật liệu chọn lọc.
.jpg)
Chị Mai mong muốn một phòng học vừa là nơi đào tạo, vừa là không gian trưng bày nhạc cụ. Vì vậy, thiết kế cần tạo sự cân bằng giữa trưng bày, thực hành và thư giãn. Hình ảnh đính kèm cho thấy toàn bộ ý tưởng được xử lý rất khéo léo, đem lại một tổng thể hài hòa và sang trọng.
Chủ đầu tư: Chị Mai
Địa điểm: Cổ Nhuế, Hà Nội.
Diện tích : 18m2
Nội dung: Thiết kế phòng dạy đàn.
Phần nổi bật nhất của dự án là cách bố trí nhạc cụ thành một mảng trang trí xuyên suốt. Những cây đàn tranh được treo dọc hai bên tường, tạo nên hiệu ứng thị giác gọn gàng và đầy tính nghệ thuật. Dù trưng bày nhiều nhạc cụ, không gian vẫn không bị rối nhờ cách sắp xếp có khoảng cách và bố cục đối xứng.
Khu vực trung tâm đặt bàn trà kiểu Nhật, thấp và mảnh, vừa tạo nơi nghỉ giữa giờ, vừa giữ cảm giác yên tĩnh cho phòng học. Đây là lựa chọn rất khôn ngoan cho không gian hẹp, vì thiết kế chân thấp giúp căn phòng trông thông thoáng hơn.
.jpg)
Phía cuối phòng là góc tập đàn với chiếc gương tròn viền sáng. Chi tiết này giúp mở rộng thị giác, tạo chiều sâu và làm điểm nhấn sang trọng. Gương còn phản chiếu ánh sáng, khiến phòng sáng hơn và dễ chịu hơn khi học.
Ánh sáng được xử lý theo phong cách tinh tế và nhẹ nhàng. Hệ đèn âm trần bố trí đều, mang lại độ sáng đủ để luyện tập đàn mà không gây chói mắt. Dải đèn hắt tường tạo điểm nhấn mềm mại, mô phỏng đường cong của sóng âm, đúng tinh thần nghệ thuật của không gian.
.jpg)
Điểm cộng lớn của thiết kế là sự cân bằng giữa ánh sáng nhân tạo và tự nhiên. Mặt trước phòng dùng kính lớn để đón ánh sáng phố phường. Sự kết hợp này giúp không gian luôn thoáng đãng, không bị bí, đặc biệt phù hợp cho phòng học diện tích nhỏ.
Tông màu chủ đạo là trắng, be, nâu gỗ. Tất cả tạo nên cảm giác ấm, sang và phù hợp tuyệt đối với không gian nghệ thuật. Trắng giúp mở rộng diện tích. Be tạo sự mềm mại và trầm tĩnh. Nâu gỗ từ nhạc cụ và bàn ghế mang đến chiều sâu.
Thiết kế tránh các gam màu mạnh, không gây nhiễu thị giác. Đây là định hướng rất đúng khi tạo không gian học tập yêu cầu sự tập trung cao. Màu sắc hài hòa cũng làm nổi bật vẻ đẹp của các nhạc cụ truyền thống.
Một trong những ưu điểm nổi bật là khả năng tối ưu diện tích. Dù có nhiều đàn tranh, đàn piano và bàn trà, không gian vẫn thoáng và dễ di chuyển. Tất cả đạt được nhờ:
.jpg)
Nhạc cụ treo tường tiết kiệm diện tích.
Nội thất nhỏ gọn, chân thanh thoát.
Không dùng tủ, kệ cồng kềnh.
Bố trí hai hàng ghế đàn tranh theo chiều dọc để giữ lối đi chính rộng rãi.
Thiết kế này đặc biệt phù hợp cho những chủ đầu tư sở hữu mặt bằng nhỏ nhưng muốn đảm bảo đủ công năng dạy, trưng bày, thực hành.
Điểm nhấn mang tính thẩm mỹ cao là vòng tròn lớn cuối phòng, kết hợp đèn LED viền và tranh phong cảnh nhẹ nhàng. Chi tiết này tạo nên cảm giác thiền, rất phù hợp với những người yêu nhạc truyền thống. Chính vòng tròn còn trở thành khung cảnh đẹp cho việc quay video, chụp ảnh trong quá trình dạy và học.
Những câu thư pháp hai bên mang lại cảm giác trang trọng và tinh tế. Chúng không chỉ làm đẹp không gian mà còn truyền tải giá trị văn hóa bên cạnh những giờ học đàn.
Bên phải phòng đặt piano điện màu đen sang trọng. Màu đen tạo điểm nhấn mạnh trong tổng thể màu sáng. Vị trí này rất hợp lý, vì học viên có thể luyện tập mà không bị ảnh hưởng bởi đàn tranh treo tường. Chân ghế và thiết kế tổng thể cũng đồng bộ với phong cách thanh thoát của toàn không gian.
Đi kèm là bình hoa nhỏ trang trí, giúp góc piano trở nên mềm mại và bớt khô cứng. Bố trí này rất phù hợp cho cả học sinh nhỏ tuổi và học viên yêu thích piano lẫn nhạc cụ truyền thống.
Không gian tạo cảm giác êm dịu ngay khi bước vào. Bàn trà ở trung tâm mang đến sự bình yên cần thiết cho những phút giải lao. Cách lựa chọn cây anh đào trang trí ở góc phòng cũng khiến căn phòng tươi sáng và giàu cảm xúc hơn.
Nhờ thiết kế này, học viên không chỉ đến học đàn mà còn được trải nghiệm một môi trường nghệ thuật đúng nghĩa. Điều này đặc biệt quan trọng trong đào tạo, giúp học viên dễ cảm thụ âm nhạc hơn.
Thiết kế phòng dạy đàn 18m2 của Chị Mai tại Cổ Nhuế tuy có diện tích nhỏ vẫn có thể tạo nên không gian nghệ thuật ấn tượng. Phương án bố trí nội thất dựa trên sự tinh giản, sáng tạo và chú trọng trải nghiệm học viên. Không gian đẹp, công năng đầy đủ và dễ vận hành chính là giá trị lớn nhất của dự án này.







A. PenViet có hệ thống chi nhánh văn phòng và xưởng sản xuất ở nhiều nơi trên toàn quốc, nên giá thành sản phẩm là giá xuất xưởng, cạnh tranh nhằm đảm bảo chất lượng và dịch vụ phục vụ Khách hàng tốt nhất.
A: PenViet cung cấp dịch vụ tới mọi thành phần kinh tế, chúng tôi cung cấp dịch vụ thiết kế, thi công và bán lẻ các mặt hàng nội thất.
- Với các sản phẩm khách hàng đã có bản vẽ 2D hoặc 3D: PenViet sẽ phân tích bản vẽ và báo giá cạnh tranh.
- Với các sản phẩm cần thiết kế chi tiết: PenViet sẽ báo giá từ thiết kế đến thi công.
- Với những khách hàng mua hàng có sẵn với số lượng lớn: vui lòng liên hệ để nhận báo giá cạnh tranh.
- Đối với các Showroom có diện tích trưng bày sản phẩm rộng lớn: PenViet có khung giá phù hợp với ngân sách của khách hàng.