Sử dụng màu sắc hot trend trong thiết kế shop mẹ và bé cho thấy sự sáng tạo, nắm bắt kịp thời xu hướng của các kiến trúc sư. Điều này cũng tạo nên một diện mạo ấn tượng, thu hút cho cơ sở kinh doanh. Penviet sẽ mang đến bạn một gợi ý màu sắc trong không gian cửa hàng mẹ và bé Mạnh Hà ngay sau đây nhé!
Sau khi tiếp nhận thông tin của khách hàng, Penviet ngay lập tức đã tiến hành khảo sát để có đánh giá sát thực nhất về tình trạng mặt bằng dự án.

Hình ảnh hiện trạng mặt bằng
Chúng tôi nhận thấy rằng, để có thể đưa vào sử dụng cho mục đích kinh doanh mặt dành cho mẹ và bé cần có những giải pháp toàn diện cho không gian như sơn lại tường, lát sàn, lắp đặt hệ thống anh sáng bên cạnh những phương án thiết kế nội thất.

Đề xuất cải tạo lại các hạng mục thô
Chúng tôi tư vấn cho chủ đầu tư setup showroom theo phong cách hiện đại, sử dụng gam màu sáng để mang đến hình ảnh chuyên nghiệp cũng như tạo hiệu ứng thị giác giúp ăn gian diện tích mặt bằng. Sự kết hợp màu trắng với gam xanh pastel – gam màu hot trend trong thiết kế nội thất nói chung và thiết kế shop mẹ và bé nói riêng được các kiến trúc sư PenViet lựa chọn nhằm mang đến vẻ đẹp trẻ trung, tươi mới cho không gian, phù hợp với sở thích, thị hiếu của nhóm đối tượng khách hàng tiềm năng mà cửa tiệm hướng đến.

Sử dụng màu sắc hot trend cho không gian
Với đặc trưng của lĩnh vực kinh doanh là cần bày bán số lượng sản phẩm lớn, phong phú về chủng loại, thương hiệu, chúng tôi tư vấn sử dụng các loại vật liệu có tính chịu lực cao để đảm bảo độ bền đẹp. Các mẫu nội thất cũng được thiết kế với kiểu dáng hiện đại, tinh giản nhất quán với ý tưởng

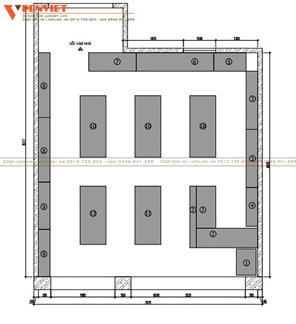
Bố trí mặt bằng nội thất shop mẹ và bé Mạnh Hà
Mặc dù được thiết kế đơn giản, song, màu sắc ấn tượng đã tạo nên sự thu hút cho mặt tiền cửa tiệm. Diện mạo này cũng tạo được sự nhất quán giữa ngoại thất và nội thất cửa tiệm, mang tới hình ảnh chuyên nghiệp, hiện đại cho shop mẹ và bé Mạnh Hà.

Diện mạo thu hút của shop mẹ và bé
Quầy thu ngân bằng gỗ MDF chống ẩm phủ Melamine được đặt ngay gần cửa chính giúp cho việc tiếp đón khách hàng được chu đáo cũng như dễ dàng bao quát toàn bộ cửa tiệm.
Tên cửa hàng bằng Mica chân Fomex cũng được chúng tôi khéo léo lồng ghép nhằm giúp chủ đầu tư tăng cường nhận diện thương hiệu.

Vị trí quầy thu ngân giúp dễ dàng bao quát toàn bộ cửa hàng
Phía sau quầy thu ngân cũng được tận dụng để bố trí kệ hàng nhằm mở rộng không gian trưng bày, giới thiệu sản phẩm.

Tận dụng triệt để không gian
Hệ thống kệ hàng cao bằng gỗ MDF chống ẩm phủ Melamine và khung sắt sơn tĩnh điện được kết hợp phụ kiện linh hoạt để phù hợp với đặc điểm bày bán từng mặt hàng. Các kệ này cũng được đặt sát tường tạo sự ngăn nắp cho cửa tiệm.
Ngoài hệ thống đèn Led bên dưới đợt, chúng tôi cũng thi công tranh dán trên Formex trên trán tủ để tạo sự thu hút cho khu vực trưng bày sản phẩm trong thiết kế shop mẹ và bé Mạnh Hà. PenViet còn kết hợp các bộ chữ Mica cắt CNC cho kệ trưng bày từng loại hàng hóa để tạo sự thuận tiện cho khách hàng.

Các kệ hàng bắt mắt giúp thu hút sự chú ý của khách hàng
Tại vị trí trung tâm của cửa hàng, PenViet bố trí các kệ hàng thấp bằng gỗ MDF chống ẩm phun sơn, khung sắt sơn tĩnh điện, hậu lưới, kệ đầu trang trí kiểu dáng đáng yêu và kệ thấp khung gỗ cốt MDF lõi xanh tấm Thái phủ Melamine, kèm đợt 2 đầu khung sắt bao ngoài thích hợp bày bán những sản phẩm phổ biến, được nhiều người tìm kiếm, lựa chọn với mục đích giúp cửa tiệm gia tăng doanh số.

Thiết kế kệ dễ thương tạo được sự yêu thích cho các bé

Kệ trung tâm thích hợp để bày bán những mặt hàng phổ biến

Các kệ hàng đa dạng về kiểu dáng

Kết hợp vật liệu linh hoạt để phù hợp với đặc trưng bày bán sản phẩm
Thiết kế nội thất shop mẹ và bé Mạnh Hà có cách bài trí không gian khoa học, tạo thành những lối đi thuận thiện, giúp nhân viên và khách hàng di chuyển một cách dễ dàng. Điều này cũng sẽ góp phần hoàn thiện những trải nghiệm mua sắm của người tiêu dùng.
Bố trí những lối đi thuận tiện tại cửa hàng
Không gian cửa hàng cho thấy sự kết hợp hài hòa giữa việc nắm bắt các xu hướng cũng nhưng thỏa mãn thị hiếu của người tiêu dùng, từ đó đảm bảo được các cả các yếu tố về tính thẩm mỹ lẫn công năng sử dụng của công trình.
Tin rằng, đây là gợi ý thú vị cho nhiều bạn đọc. Gọi ngay tới hotline của PenViet để được các chuyên gia của chúng tôi tư vấn và hỗ trợ setup không gian nhé!







A. PenViet có hệ thống chi nhánh văn phòng và xưởng sản xuất ở nhiều nơi trên toàn quốc, nên giá thành sản phẩm là giá xuất xưởng, cạnh tranh nhằm đảm bảo chất lượng và dịch vụ phục vụ Khách hàng tốt nhất.
A: PenViet cung cấp dịch vụ tới mọi thành phần kinh tế, chúng tôi cung cấp dịch vụ thiết kế, thi công và bán lẻ các mặt hàng nội thất.
- Với các sản phẩm khách hàng đã có bản vẽ 2D hoặc 3D: PenViet sẽ phân tích bản vẽ và báo giá cạnh tranh.
- Với các sản phẩm cần thiết kế chi tiết: PenViet sẽ báo giá từ thiết kế đến thi công.
- Với những khách hàng mua hàng có sẵn với số lượng lớn: vui lòng liên hệ để nhận báo giá cạnh tranh.
- Đối với các Showroom có diện tích trưng bày sản phẩm rộng lớn: PenViet có khung giá phù hợp với ngân sách của khách hàng.