Với nhu cầu mua sắm thể hiện cá tính, gu thẩm mỹ của giới trẻ như hiện nay, các sản phẩm quần áo, giày dép thể thao đang trở thành xu hướng Hot. Để thu hút các khách hàng trẻ tuổi, năng động này, ngoài chất lượng, sự đa dạng phong cách thì thiết kế cửa hàng cần có nét độc đáo riêng, gu thẩm mỹ, cá tính mạnh mẽ. Hiểu được tâm lý, nhu cầu khách hàng của mình, chị Lan đã liên hệ Penviet để thiết kế shop thể thao Thắng Lợi theo phong cách hiện đại, năng động. Chúng ta hãy cùng chiêm ngưỡng và khám phá mẫu thiết kế cửa hàng giày dép thời trang này nhé!
·Tên dự án: Thiết kế shop thể thao Thắng Lợi
·Chủ đầu tư: Chị Lan
·Địa chỉ: Phú Mỹ, Mỹ Đình, Nam Từ Niêm, Hà Nội
· Quy mô: 20m2
·Loại công trình: shop thể thao
·Phong cách, ý tưởng: hiện đại
Shop thể thao Thắng Lợi chuyên kinh doanh các sản phẩm quần áo, giày dép thể thao thời trang nam. Với đặc thù sản phẩm, Chị Lan có những yêu cầu thiết kế như sau:
·Thiết kế shop theo phong cách hiện đại, khỏe khoắn.
·Nội thất cửa hàng chắc chắn, đảm bảo độ bền cao.
·Không gian showroom chuyên nghiệp, cách bố trí nội thất khoa học giúp cho việc kinh doanh giày dép trở nên thuận lợi và thu hút khách hàng hơn.
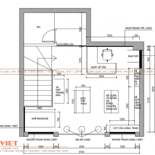
Sau khi khảo sát mặt bằng và lắng nghe những mong muốn của chủ đầu tư, chỉ sau vài ngày KTS Penviet đã đưa ra phương án thiết kế vô cùng hợp lý qua bản vẽ bố trí mặt bằng công năng và phối cảnh 3D.

Diện tích shop thời trang thể thao Thắng Lợi chỉ 20m2, việc tối ưu được công năng chính là điều quan trọng nhất
Khi các shop có cùng một mặt hàng kinh doanh, có giá cả, chất lượng như nhau. Nếu như muốn tạo sự khác biệt, thu hút khách hàng về phía mình thì việc làm tốt nhất đó là cần phải thiết kế thi công shop thể thao sao cho thật bắt mắt và cuốn hút.
Với vô vàn các cửa hàng shop thể thao trên phố thì mặt tiền shop được thiết kế đẹp mắt vẫn có khả năng cao tạo nên sức hút với tất cả mọi người khi đi qua cửa hàng. Là một người có kinh nghiệm kinh doanh, nắm bắt nhanh nhạy xu hướng khách hàng như chị Lan thì không thể bỏ qua mặt tiền shop thể thao Thắng lợi của mình.

Thiết kế mặt tiền hiện đại, sang trọng
Mặt tiền shop thể thao Thắng Lợi được thiết kế theo phong cách hiện đại, với gam màu xanh lam làm chủ đạo thể hiện sự mạnh mẽ, khỏe khoắn. Bảng hiệu chiếm toàn bộ chiều ngang của shop, sử dụng khung hộp sắt ốp alu, gồm cả khung mặt trên, mặt gầm. Bộ logo + chữ " Thành lợi sport" bằng mica phát sáng. Bộ chữ:" Phân phối thiết bị và dụng cụ thể thao chất lượng", logo thương hiệu các hãng bằng alu không phát sáng. Bộ chữ sdt, địa chỉ bằng mica dẹt. Viền cột với thiết kế khung sắt ốp alu.
Cửa chính ra vào được làm bằng kính cường lực trong suốt, giúp không gian bên trong shop thông thoáng hơn, đồng thời thu hút khách hàng khi đi ngang qua có thể xem các mặt hàng bên trong shop.
Xu hướng thiết kế cửa hàng thể thao thời trang nam chú trọng đến sự đơn giản, hiện đại, không quá cầu kỳ nhưng vẫn thể hiện được sự tinh tế. Một shop thời trang thể thao có không gian thông thoáng, bố cục gọn gàng chắc chắn sẽ thu hút được thiện cảm của các bạn nam.
.jpg)
Không gian shop nổi bật với gam màu trắng, xanh lam
Đối tượng khách hàng của shop thể thao Thắng Lợi là các bạn nam trẻ trung, năng động nên Penviet lựa chọn gam màu trắng làm chủ đạo kết hợp cùng màu xanh lam nổi bật, gam màu nâu gỗ của sàn nhà. Các khối màu đan xen thể hiện sự mạnh mẽ, cá tính.
Quầy lễ tân được bố trí ngay vị trí cửa ra vào, có thể dễ dàng quan sát toàn bộ không gian shop, dễ dàng hỗ trợ khách hàng khi cần tư. Quầy được làm bằng gỗ MDF cốt xanh Thái lan chống ẩm phủ melamine vân đá và sơn PU màu xanh, kết hợp khung sắt sơn tĩnh điện kết hợp mica phát sáng. Để làm nổi bật và tạo điểm nhấn, KTS đã thiết kế hệ đèn led chạy quanh thân quầy. Bộ logo thân quầy: bằng mica phát sáng.
.jpg)
Quầy lễ tân thiết kế ấn tượng, độc đáo
Vách sau quầy lễ tân cũng được làm bằng gỗ MDF cốt xanh Thái Lan chống ẩm sơn PU màu xanh lam + xẻ rãnh. Bộ logo + bộ chữ " Thành lợi sport" bằng mica phát sáng. Bộ chữ nhỏ: " Phân phối thiết bị và dụng cụ thể thao chất lượng" bằng alu hoặc mica.
Khu sản phẩm
Tại khu sản phẩm có thiết kế các kệ trưng bày sản phẩm riêng biệt: Kệ bóng phụ kiện, kệ vợt cầu lông tennis, kệ quần áo thể thao, kệ trưng bày phụ kiện thể thao. Các kệ được bố trí khoa học, thuận tiện cho khách hàng tìm kiếm sản phẩm mình muốn mua.
.jpg)
Các kệ trưng bày sản phẩm thể thao bố trí không học, riêng từng chủng loại
Các kệ làm bằng chất liệu gỗ MDF cốt xanh Thái Lan chống ẩm phủ melamine kết hợp khung sắt sơn tĩnh điện, được bố trí màu sắc xen lẫn nhau, có đèn hắt sáng từng đợt, làm nổi bật vẻ đẹp lịch lãm, đẳng cấp cho những sản phẩm thời thượng.
.jpg)
Diện tích 20m2 nhưng vẫn đảm bảo sự thoải mái và tiện nghi
Trên đây là mẫu thiết kế shop thể thao Thắng Lợi mang phong cách trẻ trung, năng động. Nếu bạn cũng đang có nhu cầu thiết kế shop thời trang hãy liên hệ Penviet để được tư vấn thiết kế miễn phí.







A. PenViet có hệ thống chi nhánh văn phòng và xưởng sản xuất ở nhiều nơi trên toàn quốc, nên giá thành sản phẩm là giá xuất xưởng, cạnh tranh nhằm đảm bảo chất lượng và dịch vụ phục vụ Khách hàng tốt nhất.
A: PenViet cung cấp dịch vụ tới mọi thành phần kinh tế, chúng tôi cung cấp dịch vụ thiết kế, thi công và bán lẻ các mặt hàng nội thất.
- Với các sản phẩm khách hàng đã có bản vẽ 2D hoặc 3D: PenViet sẽ phân tích bản vẽ và báo giá cạnh tranh.
- Với các sản phẩm cần thiết kế chi tiết: PenViet sẽ báo giá từ thiết kế đến thi công.
- Với những khách hàng mua hàng có sẵn với số lượng lớn: vui lòng liên hệ để nhận báo giá cạnh tranh.
- Đối với các Showroom có diện tích trưng bày sản phẩm rộng lớn: PenViet có khung giá phù hợp với ngân sách của khách hàng.