Chủ đầu tư: Mr Vũ
Địa chỉ: 76 Nguyễn Hữu Cảnh, khu Phước Hải, Long Thành, Đồng Nai
Quy mô, diện tích: 40m2
Loại công trình: Cửa hàng thời trang
Phong cách, ý tưởng: hiện đại, đơn giản
Thiết kế và thi công: Nội thất Cosp (Penviet)

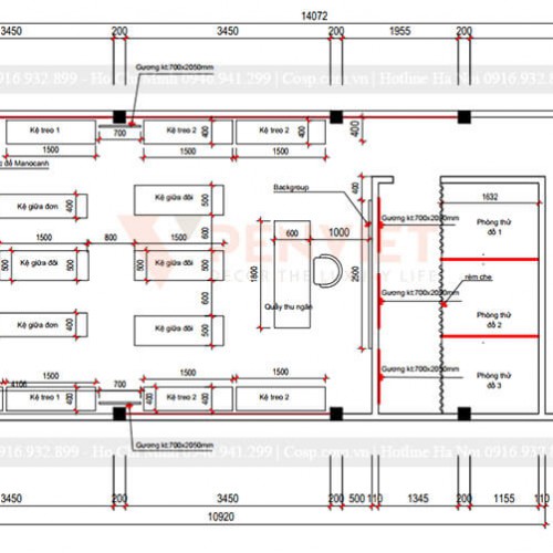
Mặt bằng bố trí shop thời trang 40m2
Quầy thu ngân ( bàn thu ngân) của các shop nói chung là khu vực dành cho việc thanh toán hay là nơi giao dịch giữa nhân viên của shop với khách hàng. Nơi này cần được bố trí đặt tại những vị trí đắc địa nhất trong shop để có thể bao quát được hết không gian của cửa hàng.
Để có thể thiết kế một quầy thu ngân thật chuyên nghiệp và sang trọng nhất, KTS của Cosp đã lựa chọn màu trắng tinh khiết và chất liệu gỗ MDF phủ melamine cho chiếc bàn này. Trên quầy sẽ được trang trí thêm một lọ hoa tươi cùng một chiếc máy tính và các công cụ khác để phục vụ cho công việc của nhân viên thu ngân.

Quầy lễ tân tại shop thời trang của mr Vũ
Phía sau quầy thu ngân có bố trí một vách logo nhằm làm nổi bật thương hiệu của shop để khách hàng dễ dàng nhận diện.

Vách logo tại shop thời trang của mr Vũ
Tại khu vực trưng bày quần áo, chúng tôi đã lựa chọn các kệ quần áo bằng gỗ MDF phủ melamine kết hợp với khung sắt sơn tĩnh điện được bố trí xen lẫn nhau để trang trí cho thiết kế cửa hàng thời trang của anh Vũ. Tùy theo công năng từng khu vực của shop mà KTS của Cosp đã nhiều loại giá, kệ khác nhau giúp tiết kiệm không gian mà vẫn có tính thẩm mỹ cao.

Hệ thống giá, kệ trưng bày sản phẩm tại cửa hàng thời trang của mr Vũ
Cụ thể, đối với vị trí sát tường của cửa hàng thì chúng tôi bố những chiếc giá, kệ trưng bày đơn 1 tầng hoặc 2 tầng. Phí dưới kệ có thêm những tấm ván để những bộ đồ được gấp gọn gàng và ngăn nắp.

Giá treo đơn tại cửa hàng thời trang

Giá treo đơn 2 tầng sát tường tại cửa hàng thời trang
Còn đối với khu vực giữa nhà thì chỉ bố trí kệ trưng bày 1 tầng để không che khuất tầm nhìn của khách hàng. Không chỉ vậy, shop còn được bố trí 3 chiếc kệ, giá treo đôi ở giữa nhà để gia tăng việc trưng bày quần áo. Phía trên những chiếc kệ có thêm những tấm ván để những bộ đồ được gấp gọn gàng và ngăn nắp.

Giá treo đôi tại cửa hàng thời trang
Cửa hàng thời trang của Mr Vũ có trang trí thêm một vài manocanh ở phía ngoài - sát cửa ra vào để khách qua đường có thể dễ dàng trông thấy được. Điều này sẽ giúp cho khách hàng có được cái nhìn tổng quan nhất về những bộ đồ đẹp nhất, hot nhất của shop ở thời điểm đó.

Trưng bày manocanh hợp lý
Ngoài ra, trong cửa hàng còn bố trí một gương thủy bằng khung sắt sơn tĩnh để khách hàng có thể tự ướm thử quần áo dưới con mắt của chính mình. Không chỉ dừng ở đó, cửa hàng thời trang của anh Vũ còn thiết kế thêm ba phòng thay đồ ở phía trong cùng, đằng sau vách logo để khách hàng có thể thoải mái thử quần áo mà không cần phải xếp hàng chờ đợi.

Toàn cảnh không gian cửa hàng thời trang của Mr Vũ tại Đồng Nai
Trên đây là những chia sẻ và hình ảnh thiết kế cửa hàng thời trang theo phong cách hiện đại của Mr Vũ tại Đồng Nai mang tới cảm nhận về sự sang trọng mà lại vô cùng đơn giản. Hy vọng, bạn sẽ tìm được ý tưởng cho không gian cửa tiệm của mình. Đừng ngại liên hệ với chúng tôi để được tư vấn miễn phí.







A. PenViet có hệ thống chi nhánh văn phòng và xưởng sản xuất ở nhiều nơi trên toàn quốc, nên giá thành sản phẩm là giá xuất xưởng, cạnh tranh nhằm đảm bảo chất lượng và dịch vụ phục vụ Khách hàng tốt nhất.
A: PenViet cung cấp dịch vụ tới mọi thành phần kinh tế, chúng tôi cung cấp dịch vụ thiết kế, thi công và bán lẻ các mặt hàng nội thất.
- Với các sản phẩm khách hàng đã có bản vẽ 2D hoặc 3D: PenViet sẽ phân tích bản vẽ và báo giá cạnh tranh.
- Với các sản phẩm cần thiết kế chi tiết: PenViet sẽ báo giá từ thiết kế đến thi công.
- Với những khách hàng mua hàng có sẵn với số lượng lớn: vui lòng liên hệ để nhận báo giá cạnh tranh.
- Đối với các Showroom có diện tích trưng bày sản phẩm rộng lớn: PenViet có khung giá phù hợp với ngân sách của khách hàng.