NHỮNG NÉT CHÍNH DỰ ÁN THIẾT KẾ SHOWROOM CAO NGỌC ĐÀO
Tư vấn ý tưởng thiết kế showroom Cao Ngọc Đào
Tọa lạc tại khu dân cư khá đông đúc của tỉnh Bình Dương nên mẫu thiết kế showroom của chị Đào được nhiều người quan tâm. Theo đó, các kiến trúc sư của PenViet cũng đã có buổi tiến hành khảo sát mặt bằng để đưa ra những ý tưởng thiết kế showroom phù hợp với mong muốn của chủ đầu tư.

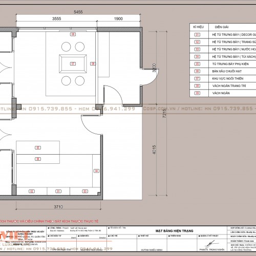
Hiện trạng mặt bằng là phòng khách trong một căn nhà
Hiện trạng mặt bằng của showroom hiện đang được sử dụng là một phòng khách trong một gia đình. Vì thế, để tiết kiệm tối đa chi phí đầu tư, các kiến trúc sư của PenViet đã tư vấn cho chị Đào setup không gian thành 2 khu vực, đó là khu vực trưng bày và khu vực tiếp đón khách hàng.
Trong mẫu thiết kế showroom của chị Đào, chúng tôi lựa chọn gam màu đen làm nền tạo chiều sâu cho không gian kết hợp cùng gam màu trắng kem của phần trần, sàn mang lại hiệu ứng thị giác thu hút khách hàng. Bên cạnh đó, hệ thống đèn led cũng được bố trí trải đều trong toàn bộ không gian phòng trưng bày, từ đó làm tôn lên vẻ đẹp của các sản phẩm trang sức, đá quý,....

Bố trí mặt bằng dự án thiết kế showroom trưng bày
Thực tế, khi chọn gam màu đen là gam màu chủ đạo, các kiến trúc sư của PenViet đã nghiên cứu để kết hợp với ánh sáng để mang đến yếu tố thẩm mỹ cao nhất. Bởi nếu không cung cấp đủ ánh sáng thì mẫu thiết kế showroom trưng bày của chị Đào sẽ trở nên bí bách và chật chội, không thể khắc phục được những nhược điểm về không gian.
Ngoài ra, để mang đến sự chuyên nghiệp và tinh tế cho không gian, chúng tôi cũng kết hợp giữa hệ thống đèn downlight âm trần và hệ đèn pha lê sang trọng.
Thiết kế showroom phòng trưng bày Cao Ngọc Đào
Thiết kế biển hiệu mặt tiền phòng trưng bày
Do có vị trí nằm trong khu dân cư đông đúc nên phòng showroom của chị Đào cần gây được sự ấn tượng và thu hút khách hàng đến cửa tiệm.
Chúng tôi setup hệ biển mặt trước với khung sắt hàn ốp tấm Alu đen bóng, nẹp viền khung sắt ốp Alu bạc dày làm nổi bật bộ chữ bằng Mica trắng.
Việc lựa chọn màu biển hiệu đen không chỉ tạo sự nhất quán trong mẫu thiết kế showroom trưng bày mà còn làm nổi bật bộ chữ BTV bằng Alu vàng gold cắt CNC dựng hông độc đáo.

Biển hiệu trưng bày bắt mắt
Ngoài ra, để gây sự chú ý cho khách hàng qua đường, chúng tôi cũng setup hệ bảng hiệu bên hông với khung sắt gia cố ốp Alu đen bóng, nẹp viền hông nổi vàng gold phát sáng chân vô cùng bắt mắt.
Thiết kế showroom, phòng trưng bày trang sức Cao Ngọc Đào
Hệ tủ trưng bày là những món đồ không thể thiếu trong bất kỳ mẫu thiết kế showroom, phòng trưng bày nào. Chúng tôi setup hệ tủ decor gỗ MDF chống ẩm phủ Melamine, nẹp viền gỗ sơn nhũ vàng mang đến sự hiện đại và sang trọng cho phòng trưng bày. Hệ thống đèn Led bao quanh tạo độ sáng, đồng thời làm tôn lên vẻ đẹp của sản phẩm.

Không gian trưng bày sản phẩm sang trọng với gam màu đen chủ đạo
Trong mẫu thiết kế showroom, hệ tủ trưng bày trang sức, túi xách và nước hoa được setup xung quanh với chất liệu gỗ MDF chống ẩm phủ Melamine, khung cửa kính cường lực 5mm sơn nhũ vàng, hậu ốp gương mang đến sự nhất quán, toát lên sự sang trọng, thời thượng và hiện đại, khiến khách hàng đến đây đều cảm nhận được sự chuyên nghiệp, tinh tế.

Màu sắc nội thất mang đến sự nhất quán trong phong cách thiết kế
Ngày gần khu vực cửa ra vào của mẫu thiết kế showroom, chúng tôi setup hệ tủ trưng bày phụ kiện thấp, giúp khách hàng dễ dàng quan sát và được lắng nghe sự tư vấn.
Hệ tủ gỗ MDF phủ Melamine với kính cường lực dày, nẹp viền Inox vàng không chỉ giúp đảm bảo sự an toàn cho các sản phẩm mà còn tôn lên sự sang trọng của các mặt hàng trang sức xa xỉ.

Không gian tiếp đón khách hàng trong mẫu thiết kế showroom sang trọng, ấm cúng
Để bất kỳ ai đến đây đều có sự ấn tượng với mẫu thiết kế showroom, chúng tôi đã setup khu vực tiếp đón khách hàng theo phong cách Nhật Bản với bộ bàn ghế ngồi bệt.
Chúng tôi tạo vách ngăn không gian với khung xương thạch cao kết hợp với các thanh lam gỗ phủ Melamine làm nổi bật bộ tranh gỗ MDF sơn 2k nhũ vàng hình hoa sen độc đáo.
Phía sau bộ bàn ghế bệt được setup với các vách trang trí gỗ MDF cắt CNC với hoa văn độc đáo. Các kiến trúc sư của PenViet cũng vô cùng tinh tế khi thực hiện setup hệ gương soi kính thủy hậu gỗ MDF giúp tạo chiều sâu, làm không gian phòng trưng bày thêm rộng rãi, cuốn hút, mang đến sự thẩm mỹ, tinh tế.
Dù có diện tích khá nhỏ nhưng mẫu thiết kế showroom trưng bày Cao Ngọc Đào đã khiến cho khách hàng cảm thấy choáng ngợp khi đến trải nghiệm tham quan và mua sắm tại đây.
Bạn thấy sao về mẫu thiết kế showroom trưng bày của chúng tôi? Những ý tưởng của kiến trúc sư PenViet có giúp bạn có thêm gợi ý để setup một không gian kinh doanh cho mình hay bạn có những ý tưởng khác muốn chia sẻ với chúng tôi? Hãy liên hệ với chúng tôi để được tư vấn và giải đáp cụ thể. Với nhiều năm kinh nghiệm, thực hiện thi công hơn 10.000 dự án lớn nhỏ trên cả nước, cùng đội ngũ kiến trúc sư giàu chuyên môn, có ý tưởng sáng tạo độc đáo thì PenViet tin sẽ mang đến sự hài lòng tuyệt đối.







A. PenViet có hệ thống chi nhánh văn phòng và xưởng sản xuất ở nhiều nơi trên toàn quốc, nên giá thành sản phẩm là giá xuất xưởng, cạnh tranh nhằm đảm bảo chất lượng và dịch vụ phục vụ Khách hàng tốt nhất.
A: PenViet cung cấp dịch vụ tới mọi thành phần kinh tế, chúng tôi cung cấp dịch vụ thiết kế, thi công và bán lẻ các mặt hàng nội thất.
- Với các sản phẩm khách hàng đã có bản vẽ 2D hoặc 3D: PenViet sẽ phân tích bản vẽ và báo giá cạnh tranh.
- Với các sản phẩm cần thiết kế chi tiết: PenViet sẽ báo giá từ thiết kế đến thi công.
- Với những khách hàng mua hàng có sẵn với số lượng lớn: vui lòng liên hệ để nhận báo giá cạnh tranh.
- Đối với các Showroom có diện tích trưng bày sản phẩm rộng lớn: PenViet có khung giá phù hợp với ngân sách của khách hàng.