Cuộc sống ngày càng phát triển, nhu cầu mua sắm con người cũng ngày càng được tăng cao. Chính vì vậy nhiều cửa hàng tiện lợi được hình thành. Chính vì vậy tỉ lệ cạnh tranh cao, vậy làm sao để thu hút khách hàng? Hãy cùng PenViet tham khảo ngay dự án thiết kế siêu thị mini của chị Hằng dưới đây nhé!
Chị Hằng sở hữu mặt tiền 32m2 tại một khu đô thị mới cao cấp của Hà Nội. Đây được đánh giá là khu vực có chất lượng cuộc sống, người tiêu dùng có nhu cầu mua sắm cao. Một cơ sở kinh doanh với hình ảnh chuyên nghiệp, trưng bày khoa học và trưng bày tối đa mặt hàng kinh doanh sẽ là yếu tố hàng đầu thu hút khách hàng.

Hiện trạng cửa hàng trước khi được thiết kế
Qua quá trình khảo sát cũng như lắng nghe mong muốn của chủ đầu tư, chúng tôi đã tính toán để đưa ra phương án thiết kế siêu thị mini tối ưu nhất, đảm bảo công năng sử dụng cũng như tính thẩm mỹ cho tiệm.
PenViet lựa chọn setup siêu thị theo phong cách hiện đại, mang lại sự đa dạng của kiểu thiết kế, lựa chọn sắp xếp nội thất cũng như phù hợp với mô hình kinh doanh.

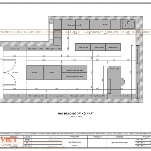
Mặt bằng bố trí siêu thị 32m2
Chúng tôi lựa chọn những mẫu quầy kệ đơn giản, sử dụng vật liệu có tính chịu lực cao, thích hợp cho việc bày bán nhiều mặt hàng để đảm bảo công năng cũng như độ bền của nội thất.
Bên cạnh đó, việc sử dụng những gam màu tươi sáng mang đến cảm giác rộng rãi, thông thoáng cho thiết kế siêu thị mini này. Đồng thời, điều này cũng giúp làm nổi bật các kệ hàng cũng như những chi tiết trang trí trong cửa hàng.
Diện mạo siêu thị được decor đơn giản nhưng vẫn gây sức hút mạnh mẽ nhờ màu sắc thanh lịch. Lối thiết kế mở giúp khách hàng dễ dàng quan sát bên trong cửa hàng, đồng thời, giúp shop tận dụng nguồn ánh sáng tự nhiên tiết kiệm điện năng.

Thiết kế mặt tiền đơn giản cho siêu thị
Biển quảng cáo bằng hộp alu, viền khung sắt gia cố, nền viền sử dụng nan sắt làm nổi bật bộ chữ tên thương hiệu cũng như thông tin cửa hàng bằng mica phát sáng.

Mặt tiền siêu thị mini tại SmartCity
Bên cạnh đó, PenViet cũng thiết kế thêm biển vẫy bằng mica hút nổi tạo sự chú ý với khách hàng cũng như mang đến một cơ sở kinh doanh chuyên nghiệp.
Nhằm mở rộng không gian giới thiệu sản phẩm, chúng tôi sử dụng hệ tủ trưng bày cao sát tường bằng khung sắt hộp sơn màu kết hợp đợt gỗ MDF melamine chống ẩm cốt thái tạo sự ngăn nắp và thông thoáng cho cửa hàng.

Hệ thống tủ trưng bày sát tường đơn giản, tiện lợi
Các kệ rời bằng khung sắt được thiết kế phù hợp với đặc điểm bày bán từng mặt hàng mang đến sự chuyên nghiệp cho không gian.

Bên cạnh đó, PenViet bố trí các kệ trưng bày bằng khung sắt hộp kết hợp gỗ MDF melamine chống ẩm cốt thái để bày bán mặt hàng hoa quả. Các kệ với kiểu dáng, vật liệu sử dụng đa dạng phù hợp với đặc trưng từng sản phẩm.

Lựa chọn kệ trưng bày khung sắt hộp để bày bán hoa quả
Trung tâm siêu thị được chúng chúng setup tủ đông lạnh. Đây là sản phẩm phổ biến, được nhiều khách hàng lựa chọn. Do đó, cách sắp xếp này tạo được sự thuận tiện cho người tiêu dùng, giúp họ dễ dàng tìm được mặt hàng mà mình mong muốn.

Tủ đông lạnh được bố trí giữa cửa hàng
Đặc biệt, PenViet còn thiết kế khu vực ngồi chờ cho khách hàng bằng ghế băng gỗ MDF, có đệm nỉ giúp khách hàng ngồi nghỉ khi chờ thanh toán.

Bố trí ghế chờ băng gỗ MDF giúp khách hàng thoải mái mua sắm
Chúng tôi đẩy vị trí quầy thu ngân về cuối cửa hàng. Điều này không chỉ giúp nhân viên dễ dàng bao quát toàn bộ không gian, mà để tới được đây, khách hàng cần phải đi qua toàn bộ các kệ trưng bày cửa hàng, từ đó kích thích nhu cầu mua sắm của họ.

Bố trí quầy thu ngân ở cuối cửa hàng
Được làm bằng gỗ MDF phủ melamine chống ẩm cốt thái, chúng tôi khéo léo thiết kế hệ quầy chữ I đơn giản, tiết kiệm tối đa không gian nhưng vẫn đảm bảo công năng sử dụng cũng như sự thoải mái cho nhân viên..
Đây được xem là một mẫu nội thất thông minh khi biến mặt trước quầy thành các kệ hàng, phù hợp với việc trưng bày những sản phẩm với giá trị thấp, khiến người tiêu dùng không ngần ngại thêm chúng vào giỏ hàng của mình.
PenViet cũng rất tinh tế trong việc lồng ghép tên cửa hàng bằng cách setup vách logo bằng gỗ melamine làm nổi bật bộ tên thương hiệu bằng mica mặt nổi.

Thiết kế vách logo bằng gỗ melamine ở phía cuối siêu thị
Để tăng khu vực trưng bày, kiến trúc sư cũng thiết kế kệ sau bàn thu ngân bằng khung sắt hộp kết hợp đợt gỗ MDF melamine chống ẩm cốt thái.

Thiết kế hệ trưng bày sản phẩm ở phía sau quầy thu ngân
Bạn thấy sao về mẫu thiết kế siêu thị mini này của PenViet? Mong rằng, những giải pháp thiết kế cửa hàng tiện lợi này sẽ là gợi ý tuyệt vời cho bạn. Đừng ngại liên hệ ngay với Penviet để tư vấn những phương án setup cửa hàng độc đáo nhé!







A. PenViet có hệ thống chi nhánh văn phòng và xưởng sản xuất ở nhiều nơi trên toàn quốc, nên giá thành sản phẩm là giá xuất xưởng, cạnh tranh nhằm đảm bảo chất lượng và dịch vụ phục vụ Khách hàng tốt nhất.
A: PenViet cung cấp dịch vụ tới mọi thành phần kinh tế, chúng tôi cung cấp dịch vụ thiết kế, thi công và bán lẻ các mặt hàng nội thất.
- Với các sản phẩm khách hàng đã có bản vẽ 2D hoặc 3D: PenViet sẽ phân tích bản vẽ và báo giá cạnh tranh.
- Với các sản phẩm cần thiết kế chi tiết: PenViet sẽ báo giá từ thiết kế đến thi công.
- Với những khách hàng mua hàng có sẵn với số lượng lớn: vui lòng liên hệ để nhận báo giá cạnh tranh.
- Đối với các Showroom có diện tích trưng bày sản phẩm rộng lớn: PenViet có khung giá phù hợp với ngân sách của khách hàng.