Dự án thiết kế siêu thị Phan Trí Mart tại quận Ngũ Hành Sơn là ví dụ điển hình cho cách tối ưu diện tích 120m² để tạo nên không gian bán hàng hiện đại, khoa học và thu hút. Công trình không chỉ làm mới hình ảnh thương hiệu mà còn giúp chủ đầu tư nâng cao hiệu suất kinh doanh rõ rệt. Đây là giải pháp phù hợp cho các chủ siêu thị đang tìm kiếm hướng cải tạo bài bản, lâu dài.
Hiện trạng trước thiết kế
.jpg)
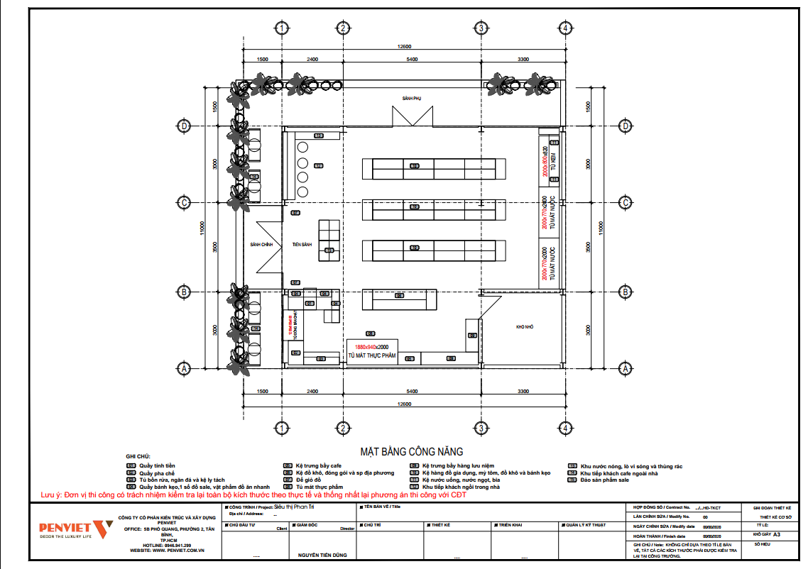
Mặt bằng công năng
.png)
Thiết kế siêu thị 120m² Phan Trí Mart
Diện tích : 120 m2
Khách hàng : anh Phan Trí
Địa chỉ: lô 9 Trường Sa, phường Hoà Hải , quận Ngũ Hành Sơn, Đà Nẵng
Dự án thiết kế siêu thị Phan Trí Mart được triển khai trên mặt bằng 120m² tại lô 9 Trường Sa, phường Hòa Hải, quận Ngũ Hành Sơn, Đà Nẵng. Khu vực này có mật độ dân cư ổn định, lượng khách du lịch và người dân địa phương qua lại thường xuyên. Điều này đặt ra yêu cầu cao về một không gian bán lẻ vừa thân thiện, vừa chuyên nghiệp.
.jpg)
Khách hàng là anh Phan Trí, chủ đầu tư mong muốn cải tạo siêu thị theo hướng hiện đại hơn, dễ nhận diện và tối ưu trưng bày. Không gian cũ chưa khai thác hiệu quả chiều sâu mặt bằng, lối đi còn rối và thiếu điểm nhấn thương hiệu. Vì vậy, thiết kế mới tập trung vào việc tổ chức lại bố cục, nâng cấp hình ảnh và cải thiện trải nghiệm mua sắm.
Từ hình ảnh thực tế, có thể thấy dự án được định hướng theo mô hình siêu thị mini cao cấp. Mọi chi tiết đều được tính toán để phù hợp với diện tích vừa phải nhưng vẫn tạo cảm giác rộng rãi. Đây là mô hình rất đáng tham khảo cho các chủ đầu tư đang có ý định nâng cấp siêu thị quy mô tương tự.
.jpg)
Mặt tiền siêu thị Phan Trí Mart được thiết kế theo phong cách hiện đại, tối giản nhưng nổi bật. Biển hiệu lớn với tên thương hiệu đặt chính giữa giúp tăng khả năng nhận diện từ xa, đặc biệt vào buổi tối. Hệ đèn chiếu sáng mặt đứng được bố trí đều, tạo cảm giác chuyên nghiệp và sạch sẽ.
.jpg)
Tông màu chủ đạo xanh đậm kết hợp cùng vật liệu kim loại và kính mang lại cảm giác vững chắc, tin cậy. Đây là yếu tố quan trọng với mô hình siêu thị, nơi khách hàng luôn ưu tiên sự an tâm khi mua sắm. Phần mái hiên được xử lý gọn gàng, vừa che nắng mưa vừa tạo chiều sâu cho mặt tiền.
Không gian phía trước siêu thị được bố trí thoáng, có cây xanh và khu vực ngồi chờ. Điều này giúp siêu thị trở nên thân thiện hơn với khách bộ hành và khách gia đình. Với các chủ đầu tư đang cải tạo siêu thị, đây là cách nâng tầm hình ảnh mà không cần mở rộng diện tích.
.jpg)
Bước vào bên trong, dễ dàng nhận thấy bố cục không gian được tổ chức rất rõ ràng. Lối đi giữa các dãy kệ được tính toán hợp lý, đảm bảo khách hàng di chuyển thoải mái ngay cả vào giờ cao điểm. Cách sắp xếp này giúp tận dụng tối đa diện tích 120m² mà không gây cảm giác chật chội.
.jpg)
.jpg)
Các dãy kệ trung tâm được bố trí song song, tạo trục di chuyển mạch lạc. Khu vực sát tường được dành cho kệ cao, giúp tăng sức chứa hàng hóa. Điều này đặc biệt phù hợp với các siêu thị cần đa dạng mặt hàng nhưng diện tích hạn chế.
.jpg)
Quầy thanh toán được đặt ở vị trí cuối lối đi chính, thuận tiện kiểm soát và quan sát toàn bộ không gian. Thiết kế này giúp tối ưu vận hành và hạn chế thất thoát. Đây là giải pháp bố cục rất đáng để các chủ đầu tư học hỏi khi cải tạo siêu thị hiện hữu.
.jpg)
Hệ thống trưng bày trong siêu thị Phan Trí Mart được thiết kế đồng bộ và hiện đại. Kệ hàng có chiều cao vừa phải, màu sắc trung tính, làm nổi bật sản phẩm thay vì gây rối mắt. Việc phân chia nhóm hàng rõ ràng giúp khách hàng dễ tìm kiếm và tăng thời gian dừng lại mua sắm.
.jpg)
.jpg)
Ánh sáng là một điểm mạnh nổi bật của dự án. Hệ đèn linear chạy dọc trần kết hợp với đèn rọi giúp không gian luôn sáng đều và sạch sẽ. Ánh sáng trắng trung tính được sử dụng xuyên suốt, phù hợp với môi trường bán lẻ thực phẩm và tiêu dùng nhanh.
Ngoài ra, khu vực trưng bày đặc biệt như đồ uống, thực phẩm chế biến sẵn được nhấn mạnh bằng ánh sáng riêng. Điều này tạo điểm dừng thị giác và kích thích hành vi mua hàng. Với các chủ siêu thị đang cải tạo, đầu tư đúng vào ánh sáng sẽ mang lại hiệu quả kinh doanh rõ rệt.
.jpg)
Phong cách thiết kế siêu thị Phan Trí Mart hướng đến sự hiện đại nhưng không lạnh lẽo. Sự kết hợp giữa màu xanh, vật liệu gỗ và ánh sáng tạo nên cảm giác gần gũi, dễ chịu. Đây là yếu tố quan trọng giúp giữ chân khách hàng quay lại thường xuyên.
.jpg)
.jpg)
Trần nhà được thiết kế mở, để lộ kết cấu kỹ thuật nhưng được xử lý gọn gàng. Cách làm này vừa tiết kiệm chi phí cải tạo, vừa tạo cảm giác không gian cao và thoáng hơn. Đây là giải pháp thông minh cho các mặt bằng cải tạo có chiều cao hạn chế.
.jpg)
Tổng thể thiết kế chú trọng tính bền vững và dễ bảo trì. Vật liệu sử dụng phù hợp với môi trường bán lẻ, dễ vệ sinh và thay thế khi cần. Điều này giúp chủ đầu tư tiết kiệm chi phí vận hành lâu dài sau khi cải tạo.
.jpg)
Dự án thiết kế siêu thị Phan Trí Mart 120m² tại Đà Nẵng làm mới hình ảnh, tối ưu công năng và trải nghiệm mua sắm. Đây là gợi ý đáng giá cho các chủ đầu tư đang tìm kiếm giải pháp nâng cấp siêu thị hiện hữu để kinh doanh bền vững và hiệu quả hơn.







A. PenViet có hệ thống chi nhánh văn phòng và xưởng sản xuất ở nhiều nơi trên toàn quốc, nên giá thành sản phẩm là giá xuất xưởng, cạnh tranh nhằm đảm bảo chất lượng và dịch vụ phục vụ Khách hàng tốt nhất.
A: PenViet cung cấp dịch vụ tới mọi thành phần kinh tế, chúng tôi cung cấp dịch vụ thiết kế, thi công và bán lẻ các mặt hàng nội thất.
- Với các sản phẩm khách hàng đã có bản vẽ 2D hoặc 3D: PenViet sẽ phân tích bản vẽ và báo giá cạnh tranh.
- Với các sản phẩm cần thiết kế chi tiết: PenViet sẽ báo giá từ thiết kế đến thi công.
- Với những khách hàng mua hàng có sẵn với số lượng lớn: vui lòng liên hệ để nhận báo giá cạnh tranh.
- Đối với các Showroom có diện tích trưng bày sản phẩm rộng lớn: PenViet có khung giá phù hợp với ngân sách của khách hàng.