Người tiêu dùng hiện nay dần quan tâm đến việc sử dụng dịch vụ làm đẹp tại những địa chỉ uy tín. Điều này tác động đến nhu cầu thiết kế spa của các chủ đầu tư. Bởi, một cơ sở kinh doanh với hình ảnh chuyên nghiệp sẽ tạo được niềm tin với khách hàng và mang đến cho họ sự an tâm.
Spa H+ Beauty là dự án được anh Huy ấp ủ với định hướng cung cấp những dịch vụ cao cấp cho khách hàng. Bởi vậy, anh cũng có những kỳ vọng lớn cho công trình, làm sao vừa thể hiện được sự chuyên nghiệp, vừa cho thấy sự sang trọng, phù hợp với tính chất sản phẩm, đối tượng khách hàng tiềm năng, đồng thời cũng phải làm nổi bật sự quy mô, bề thế của công trình. Qua tìm hiểu, anh Huy tìm đến với Penviet – đơn vị top 1 trong các lĩnh vực thiết kế spa, cửa hàng, tiệm vàng, phòng khám… để được các chuyên gia của chúng tôi tư vấn và hỗ trợ.
Sau khi lắng nghe nhu cầu của khách hàng và khảo sát hiện trạng mặt bằng, chúng tôi tư vấn cho chủ đầu tư setup spa theo phong cách hiện đại, hướng đến sự sang trọng, sử dụng màu trắng để làm nổi bật tính chuyên nghiệp cũng như giúp tôn lên những chi tiết trang trí màu xanh, nhũ vàng, tạo được sức hút cho H+ Beauty.
Với lợi thế mặt bằng gồm 3 tầng, tổng diện tích lên tới 360m2 cũng như định hướng cung cấp các dịch vụ chăm sóc sắc đẹp toàn diện, chúng tôi đã áp dụng các nguyên tắc thiết kế spa của Hiệp hội spa thế giới để mang đến một cơ sở làm đẹp 5 sao, phục vụ nhóm khách hàng cao cấp. Các yêu cầu trong sử dụng màu sắc, ánh sáng, mùi hương cho đến việc áp dụng các giải pháp cách âm, phân chia không gian để đảm bảo các phòng và khu vực chức năng được Penviet tư vấn và tuân thủ nghiệp ngặt nhằm giúp chủ đầu tư sở hữu một spa ấn tượng, vừa đáp ứng được công năng sử dụng, vừa đảm bảo tính thẩm mỹ. Những điều này không chỉ tạo nên sự khác biệt so với các đối thủ cạnh tranh mà còn góp phần hoàn thiện trải nghiệm của khách hàng khi tới làm đẹp tại H+ Beauty cũng như thu hút họ quay trở lại.
Tuy nhiên, đặc điểm này cũng đòi hỏi kiến trúc sư Penviet cần tìm ra phương án thiết kế spa để tạo nên sự liên kết và nhất quán giữa các không gian.

Vẻ đẹp sang trọng, hiện đại trong thiết kế spa H+ Beauty
H+ Beauty có lợi thế lớn về vị trí khi sở hữu tới 2 mặt tiền. Để phát huy điểm mạnh này, Penivet đã setup hệ thống biển bảng ngoài trời ốp Alu mặt biển, khung xương cố định để thu hút khách hàng.

Thiết kế mặt tiền nhằm phát huy lợi thế về vị trí của spa
Màu sắc cùng những chi tiết trang trí được kết hợp hài hòa giúp làm toát lên tinh thần của mẫu thiết kế spa – vừa sang trọng, vừa hiện đại.

Mặt tiền spa cho thấy sự nhất quán trong phong cách setup spa
Việc sắp xếp bố cục không gian hài hòa, hợp lý mang đến những giải pháp thiết kế tối ưu, tạo được sự thuận tiện cho khách hàng cũng như phát huy hiệu quả sử dụng của mặt bằng. Bởi vậy, tại tầng 1, chúng tôi bố trí khu vực chức năng cơ bản của spa như khu trưng bày sản phẩm, quầy lễ tân, sảnh tiếp khách và khu vực làm nail.

Bố trí mặt bằng tầng 1 thiết kế spa H+ Beauty
Là nơi giới thiệu đến khách hàng những sản phẩm làm đẹp của cửa tiệm, khu vực trưng bày được Penviet và chủ đầu tư đặc biệt chăm chút, từ việc lựa chọn kiểu dáng nội thất cho tới cách kết hợp vật liệu nhằm làm toát lên tinh thần của mẫu thiết kế spa.
Chúng tôi sắp xếp các kệ trưng bày cao bằng gỗ MDF chống ẩm sơn bệt màu trắng khung Inox mạ vàng với các đợt kính cường lực 10 ly sát tường, vừa để bày bán được nhiều mặt hàng, vừa tạo sự ngăn nắp, chuyên nghiệp cho cửa tiệm.

Các tủ trưng bày cao được đặt sát tường
Trong khi đó, hệ kệ trưng bày lửng làm từ gỗ MDF chống ẩm sơn bệt màu trắng kết hợp dán Laminate vân đá và kính siêu trong được chúng tôi bố trí ở vị trí trung tâm, tạo sự thu hút của khách hàng với các sản phẩm chủ lực. Đây là ý đồ của các kiến trúc sư Penviet khi thiết kế spa H+ Beauty.
Kệ trưng bày lửng chân gỗ tự nhiên kết hợp gỗ MDF chống ẩm sơn nhũ vàng, mặt bàn đá nhân tạo vân mây màu trắng cũng mang đến sự đa dạng cho trong giải pháp thiết kế nội thất spa.

Các kệ lửng bố trí ở trung tâm cửa hàng tạo sự thu hút
Ngoài ra, chúng tôi cũng sử dụng thêm mẫu bàn Console trang trí khung sắt sơn tĩnh điện màu vàng, gỗ MDF chống ẩm sơn bệt màu trắng, mặt đá PVC trắng để decor cho không gian.
Penviet còn lắp đặt thêm các tủ locker bằng gỗ MDF chống ẩm sơn bệt phối hợp màu sắc tinh tế cùng tay nắm núm tiện dụng giúp gia tăng không gian trưng bày và lưu trữ cho thiết kế spa H+ Beauty.

Không gian trưng bày sản phẩm tại spa
Chăm sóc nail là một trong số những dịch vụ cơ bản và rất phổ biến hiện nay. Nắm bắt được nhu cầu này, trong thiết kế nội thất spa H+ Beauty, chúng tôi tư vấn cho chủ đầu tư bố trí khu vực làm đẹp này ngay tại tầng 1 nhằm thu hút cũng như tạo sự thuận tiện cho khách hàng. Chúng tôi khéo léo sắp phân chia để mang tới sự riêng biệt cho không gian này. Điều này góp phần tạo nên sự chuyên nghiệp cho cơ sở kinh doanh.

Khu vực làm nail được bố trí ngay tại không gian tầng 1
Thiết kế spa H+ Beauty sử dụng bàn làm nail chân sắt sơn tĩnh điện, khung bàn bằng gỗ MDF lõi xanh chống ẩm soi rãnh, sơn PU, mặt gỗ Melamine mang đến sự trang nhã cho cửa tiệm. Thêm vào đó, Penviet không quên lựa chọn những chiếc ghế khung sắt sơn tĩnh điện, nệm bọc nỉ nhung giúp người dùng luôn cảm thấy thoải mái, dễ chịu.

Thiết kế nội thất spa sang trọng, tinh tế
Việc bố trí các ghế nail khung gỗ tự nhiên, nệm bọc nỉ cao cấp sát tường, bên trên bục nâng sàn khung thép hộp mạ kẽm, nền gỗ MDF chống ẩm phủ Melamine, viền dán V Inox vàng gương kết hợp với đèn Led chẳng những giúp tối ưu diện tích sử dụng của mặt bằng mà còn tạo sự thu hút cho thiết kế spa. Việc lựa chọn và kết hợp vật liệu tinh tế hướng tới việc mang đến cho khách hàng những trải nghiệm tuyệt vời tại cửa tiệm.
Đôn thao tác khung gỗ tự nhiên ghép thanh, đệm ngồi mút bọc nỉ, chân dán Inox vàng gương tiện dụng cũng giúp nhân viên luôn cảm thấy thoải mái trong quá trình làm việc.
Để khu vực dịch vụ này thêm phần lôi cuốn, chúng tôi còn bố trí các tab trang trí chân sắt sơn tĩnh điện, mặt bàn PVC giả đá để đặt những chậu cây nhỏ. Điều này cũng khiến khách hàng cảm thấy thư thái, dễ chịu trong khi làm đẹp.
Vách gỗ MDF chống ẩm bẹt màu trắng nẹp Inox vàng gương kết hợp với gạch Mosaic màu xanh tại đây tạo nên điểm nhấn thú vị cho thiết kế nội thất spa.
Sự thu hút còn được tạo nên thông qua cách phối hợp màu sắc, chi tiết trang trí trong mẫu tủ trưng bày bằng gỗ MDF chống ẩm màu xanh với cánh kính trắng và các đợt kính cường lực. Chúng tôi cũng bố trí thêm hệ thống đèn Led bên trong nhằm tôn lên các sản phẩm được trưng bày.
Hệ bàn trang điểm gỗ MDF màu trắng, chân gỗ MDF sơn nhũ vàng cùng gương Bỉ cao cấp chống ẩm, viền dán kính sóng, khung sắt sơn tĩnh điện cho thấy sự đồng điệu, nhất quán trong tổng thể mẫu thiết kế spa H+ Beauty.

Khu vực làm nail trong thiết kế nội thất spa H+ Beauty
Quầy lễ tân được chúng tôi bố trí ở vị trí phù hợp giúp nhân viên dễ dàng bao quát cửa tiệm và hỗ trợ khách hàng một cách nhanh chóng.
Mẫu quầy hiện đại sử dụng gỗ MDF chống ẩm phun sơn, mặt ngoài dán Laminate vân đá, chân dán Inox vàng gương với những đường nét bo tròn tạo nên sự mềm mại cho thiết kế spa cũng như tránh được sự va đập gây nguy hiểm, ảnh hưởng đến người dùng.

Thiết kế quầy thu ngân hiện đại, trang nhã
Để nhấn mạnh nhận diện thương hiệu, Penviet còn khéo léo setup vách sau quầy bằng gỗ MDF chống ẩm soi rãnh trang trí, gỗ MDF chống ẩm sơn bệt màu xanh kết hợp nhũ vàng làm tôn lên Logo hộp Mica Đài Loan cao cấp phát sáng bề mặt, chân Inox gương vàng gập mặt, nền PVC vân đá sáng màu. Thiết kế này cũng giúp gây ấn tượng với khách hàng cũng như tạo sự thu hút cho khu vực quầy lễ tân.

Nhận diện thương hiệu được tăng cường trong mẫu thiết kế spa
Penviet đặc biệt chú trọng đến việc hoàn thiện chất lượng dịch vụ cho spa, thể hiện qua cách bố trí không gian tiếp đón khách hàng hiện đại tại tầng 1.

Sảnh tiếp khách sang trọng, hiện đại
Chúng tôi sử dụng sofa dài cốt gỗ tự nhiên ghép thanh chân Inox, đệm ngồi mút bọc nỉ sáng màu; đôn trang trí và ghế armchair chân gỗ tự nhiên kết hợp gỗ MDF, đệm ngồi mút bọc nỉ cùng với bàn trà mặt gỗ tự nhiên sơn PU, chân gỗ MDF phủ Veneer, chân đá nhân tạo vân mây mặt kính gương trà dày 10mm, mang đến cảm giác sang trọng cho thiết kế spa.

Sử dụng nội thất mang đến sự thoải mái cho người dùng
Vách trang trí phía sau sofa được tạo nên từ hệ vách nan gỗ MDF chống ẩm phủ Melamine sát tường, hậu vách MDF chống ẩm và hộp Mica Đài Loan cao cấp phát sáng bề mặt, chân Inox gương vàng gấp mặt, nền PVC vân đá sáng màu, mặt Logo Inox gương, chân chữ Mica trắng sữa hắt sáng chân cùng bộ chữ tên cửa tiệm mặt chữ Inox gương vàng, chân chữ Mica trắng sứ hắt sáng giúp tăng cường nhận diện thương hiệu cho H+ Beauty.

Khéo léo setup vách logo nhằm tăng cường nhận diện thương hiệu cho thiết kế spa
Ngoài ra, Penviet cũng sắp xếp các bàn tư vấn với chân và mặt bàn đá nhân tạo trắng vân mây kết hợp dán Inox gương vàng cùng ghế ngồi tiện dụng trong mẫu thiết kế spa này nằm mang đến sự riêng tư, thoải mái cho người sử dụng.
Mẫu tủ 2 mỹ phẩm 2 mặt thoáng khung gỗ MDF chống ẩm phủ Melamine kết hợp sơn PU với các ô thoáng cong được xử lý bằng cách xẻ rãnh bề mặt gỗ sau đó uốn cong, phun sơn, đợt tủ bằng kính, chi tiết vòm gỗ sơn màu vàng, hậu kính được bố trí cạnh tủ mỹ phẩm gắn logo 2 mặt tạo được sự thu hút với khách hàng. Mẫu tủ này được chúng tôi tạo nên từ gỗ MDF chống ẩm sơn bệt màu xanh, hậu gỗ MDF chống ẩm phủ Laminate vân đá trắng, décor bằng gỗ cắt CNC có đèn Led hắt sáng chân tôn lên Logo Mica hộp sáng mặt và tên cửa tiệm bằng Mica dẹp. Sự kết hợp màu sắc, vật liệu một cách khéo léo làm nổi bật sự sang trọng của mẫu thiết kế spa H+ Beauty.

Bố trí khu vực tư vấn khách hàng riêng tư
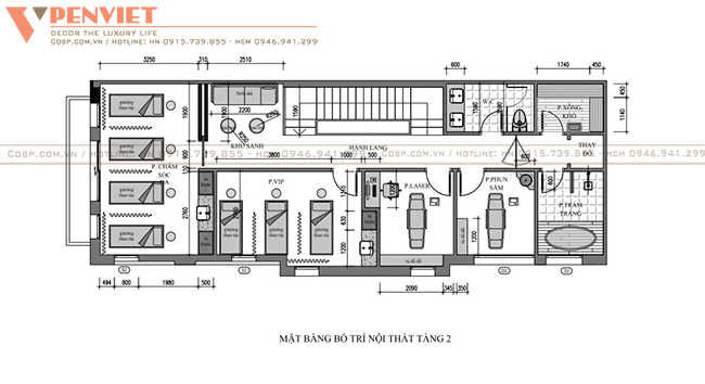
Một trong những tiêu chuẩn quan trọng trong thiết kế spa được Hiệp hội spa thế giới quy định đó là việc bố trí đầy đủ các phòng và khu vực chức năng, đảm bảo sự riêng tư cho khách hàng. Điều này được Penviet tuân thủ khi khéo léo phân chia mặt bằng, tạo thành không gian sảnh tiếp đón khách hàng, phòng chăm sóc da, phòng VIP, phòng Laser, phòng phun xăm, phòng tắm trắng, phòng xông khô.

Bố trí mặt bằng công năng tại tầng 2
Vẫn hướng đến sự sang trọng, hiện đại, khu vực sảnh chờ tầng 2 được Penviet setup ấn tượng sử dụng vách ngăn khung gỗ MDF chống ẩm phủ Melamine, CNC MDF chống ẩm sơn nhũ vàng họa tiết độc đáo tạo nét mới lạ cho không gian.

Sử dụng vách ngăn thiết kế độc đáo tạo sự riêng tư cho sảnh tiếp khách
Tại đây, chúng tôi bố trí ghế sofa dài cốt gỗ tự nhiên ghép thanh, chân Inox, đệm ngồi mút bọc nỉ cùng bàn trà mặt gỗ tự nhiên, chân sắt sơn tĩnh điện mang đến sự nhất quán và làm toát lên tinh thần của mẫu thiết kế spa.
Vách phía sau sofa được Penviet làm từ gỗ MDF chống ẩm soi rãnh trang trí kết hợp với gỗ MDF chống ẩm phủ Melamine sơn bệt màu xanh và nhũ vàng làm nổi bật bộ nhận diện thương hiệu Logo hộp Mica Đài Loan cao cấp phát sáng bề mặt, chân Inox gương vàng, nền PVC vân đá sáng màu; mặt Logo Inox gương, chân chữ Mica trắng sữa hắt sáng; tên spa mặt chữ Inox gương vàng, chân chữ Mica trắng sứ hắt sáng và chữ “Spa & Cosmetic” mặt chữ Inox vàng gương.
Chúng tôi cũng sử dụng thêm vách gỗ MDF chống ẩm phủ Melamine soi rãnh trang trí kết hợp Inox gương vàng để phân chia các không gian, tạo sự riêng biệt cho các khu vực chức năng trong thiết kế spa H+ Beauty.

Không gian khu vực sảnh tiếp khách tại tầng 2
Nhằm mang đến trải nghiệm làm đẹp tuyệt vời cho khách hàng, Penviet lựa chọn các giường trị liệu làm từ khung gỗ tự nhiên với ga, gối đệm cao cấp tại phòng chăm sóc da.
Chúng tôi khéo léo tăng cường nhận diện thương hiệu bằng cách lồng ghép Logo và tên cửa tiệm trong thiết kế vách logo quen thuộc. Điều này cũng tạo nên sự liên kết giữa các không gian.

Thiết kế vách logo được khéo léo lồng ghép trong nhiều phòng chức năng
Vách gỗ trang trí làm từ gỗ MDF chống ẩm sơn bệt màu sắc ăn ý kết hợp với U Inox vàng gương tạo nên vẻ đẹp hiện đại, thời thượng cho thiết kế nội thất spa.

Kết hợp màu sắc ăn ý cho không gian
Tủ khăn bằng gỗ MDF chống ẩm sơn bệt màu xanh, hậu gỗ MDF chống ẩm, chân MDF dán Laminate vân đá, đợt kính cùng đèn Led bố trí bên trong tủ được chúng tôi sắp xếp nhằm mở rộng không gian lưu trữ cho mẫu thiết kế spa.
Bên cạnh đó, tủ Lavabo gỗ MDF chống ẩm sơn bệt màu trắng, mặt đá nhân tạo trắng cùng gương bỉ cao cấp chống ẩm mốc, nền gỗ MDF chống ẩm cũng được lắp đặt để mang tới sự thuận tiện cho nhân viên và khách hàng.

Penviet chăm chút tỉ mỉ cho thiết kế nội thất spa
Để khách hàng được tận hưởng trọn vẹn chất lượng dịch vụ làm đẹp, chúng tôi cũng sử dụng các rèm cản sáng 1 lớp và 2 lớp, giúp mang lại sự thoải mái, riêng tư.

Sử dụng rèm che mang tới cảm giác riêng tư cho khách hàng
Việc sử dụng nội thất và setup tương đồng là một phương pháp hữu hiệu giúp liên kết các không gian, tạo nên sự xuyên suốt và nhất quán cho thiết kế spa. Song, các kiến trúc sư của chúng tôi cũng vô cùng sáng tạo khi tạo nên sự khác biệt cho mỗi phòng chức năng.

Thiết kế spa cho thấy sự xuyên suốt, nhất quán
Mẫu vách gỗ trang trí bằng gỗ MDF chống ẩm sơn bệt kết hợp đèn Led hắt sáng tôn lên Logo cửa tiệm làm từ gỗ MDF chống ẩm dán Inox gương vàng, kính trắng và đèn hắt sáng là một trong những điểm nhấn của phòng VIP.

Khéo léo tạo nên sự khác biệt giữa các không gian

Setup phòng chức năng giúp hoàn thiện trải nghiệm dịch vụ của khách hàng
Là một trong những dịch vụ làm đẹp áp dụng công nghệ tiên tiến, ngoài việc đầu tư cho máy móc, trang thiết bị, chúng tôi cũng setup phòng Laser sao cho vừa phù hợp với loại hình thẩm mỹ, vừa nhất quán với phong cách thiết kế spa.

Setup không gian phù hợp với đặc trưng dịch vụ
Ngoài tủ để đồ bằng gỗ MDF chống ẩm sơn bệt màu xanh, hậu gỗ MDF chống ẩm, chân MDF dán Laminate vân đá, đèn Led hắt sáng giúp tăng không gian lưu trữ cho phòng chức năng, Penviet còn lắp đặt tủ Lavabo kết hợp các loại vật liệu chống nước như gỗ nhựa, mặt đá nhân tạo trắng kết hợp gương bỉ cao cấp chống ẩm mốc, nền gỗ MDF chống ẩm để đảm bảo độ bền và tính thẩm mỹ cho nội thất.
Tại đây, chúng tôi cũng bố trí bàn làm việc bằng gỗ MDF chống ẩm phủ Melamine với chân gỗ tự nhiên sơn màu vàng tạo thành khu vực tư vấn chuyên sâu cho khách hàng.

Không gian phòng Laser trong thiết kế spa H+ Beauty
Phòng phun sắm sử dụng các rèm cản sáng 2 lớp giúp mang đến sự thoải mái cho khách hàng trong quá trình làm đẹp.
Tủ để đồ bằng gỗ MDF chống ẩm sơn bệt màu xanh, mặt đá nhân tạo màu trắng giúp cho căn phòng trở nên gọn gàng, ngăn nắp, tăng tính chuyên nghiệp cho cơ sở làm đẹp.

Hình ảnh chuyên nghiệp của spa H+ Beauty
Căn cứ vào đặc điểm mặt bằng cũng như mang đến sự mới lạ cho từng phòng chức năng, các kiến trúc sư của chúng tôi đã sáng tạo thiết kế vách treo tủ Lavabo bằng gỗ MDF chống ẩm sơn bệt màu xanh, đèn Led hắt sáng, mặt đá nhân tạo màu trắng.

Các phòng chức năng trong thiết kế spa này được setup theo đặc điểm không gian
Không gian phòng tắm trắng được đầu tư để phù hợp với định hướng phát triển dịch vụ của H+ Beauty.

Phòng tắm trắng hiện đại

Không gian phòng tắm trắng
Bên cạnh đó, xông hơi khô cũng là loại hình làm đẹp đang được ưa chuộng những năm gần đây, bởi vậy, thiết kế spa được chủ đầu tư đặc biệt đầu tư, xây dựng với trần tường ốp gỗ thông và hệ khung đỡ ghế thép hộp.

Bố trí mặt bằng tầng 3
Khu vực tiếp khách tại tầng 3 được Penviet sắp xếp ở vị trí trung tâm để khách hàng có thể sử dụng tất cả các dịch vụ một cách thuận tiện nhất.
Sofa dài cốt gỗ tự nhiên ghép thanh, chân gỗ tự nhiên sơn PU sẫm màu, đệm ngồi mút bọc nỉ được thiết kế dạng chữ U được dùng trong thiết kế spa H+ Beauty không chỉ mang đến sự thoải mái cho người sử dụng mà còn giúp tối ưu không gian.
Bàn trà kiểu dáng hiện đại làm từ khung gỗ MDF chống ẩm ốp PVC vân đá tạo cảm giác sang trọng cho không gian.
Vách trang trí gỗ MDF chống ẩm sơn bệt và đèn Led hắt sáng phía sau sofa khéo léo tôn lên bộ nhận diện thương hiệu khung gỗ MDF chống ẩm chấn Inox gương vàng; mặt Mica trắng sữa kết hợp dán Laminate; Logo mặt Inox vàng gương, chân Mica hắt sáng.
Penviet sắp đặt các tủ mỹ phẩm bằng gỗ MDF chống ẩm phun sơn bệt màu xanh, hậu tủ gỗ MDF chống ẩm phủ Laminate vân đá, đợt kính trắng kết hợp đèn Led cho thiết kế spa vừa để tận dụng trưng bày, giới thiệu sản phẩm, vừa khéo léo phân chia các khu vực chức năng.
Đồng thời, các kiến trúc sư của chúng tôi cũng rất thông minh giúp chủ đầu tư tăng cường nhận diện thương hiệu bằng cách lồng ghép logo chân mica sữa hắt sáng trên nền gỗ MDF chống ẩm dán Inox gương vàng, kính trắng.

Khu vực tiếp khách sang trọng tại tầng 3
Ngoài việc bố trí các giường gội cao cấp, mang đến cảm giác thoải mái, dễ chịu cho khách hàng, Penviet cùng không quên tạo sự ghi nhớ cho khách hàng về địa chỉ làm đẹp cao cấp này.

Nội thất cao cấp mang đến sự thoải mái, dễ chịu cho người sử dụng
Điều này được thể hiện thông qua việc thiết kế các vách trang trí bằng gỗ MDF chống ẩm phun sơn bệt kết hợp đèn led tôn lên Logo và tên spa.

Khéo léo tăng cường nhận diện thương hiệu cho thiết kế spa
Penviet cũng sử dụng tranh in PP và các đèn thả trần độc đáo để khiến cho không gian phòng gội đầu thêm phần sinh động, cuốn hút.

Sự sống động trong không gian spa

Không gian phòng gội đầu

Phòng gội đầu tại spa H+ Beauty
Penviet bố trí hệ bàn sấy tóc bằng gỗ MDF chống ẩm sơn bệt màu xanh, chân gỗ MDF chống ẩm sơn nhũ vàng, mặt đá nhân tạo kết hợp gương Bỉ cao cấp chống ẩm mốc với đèn led hắt sáng, nền gỗ MDF chống ẩm để vừa tạo sự thuận tiện cho khách hàng, vừa mang đến vẻ đẹp hiện đại cho mẫu thiết kế spa.

Phòng sấy tóc
Khu vực vệ sinh cũng cho thấy sự nhất quán trong phong cách setup thông qua việc phối hợp màu sắc theo chủ đề cùng như sử dụng nội thất kiểu dáng đơn giản.

Mọi không gian đều thể hiện được sự nhất quán trong phong cách thiết kế spa
Tại đây, chúng tôi sử dụng vách compact HPL sơn bệt màu xanh, phụ kiện Inox cao cấp, tủ Lavabo gỗ MDF chống ẩm sơn bệt, mặt đá nhân tạo và gương Bỉ, cho thấy sự đầu tư chỉn chu cho không gian.

Đầu tư chỉn chu cho không gian



Phòng vệ sinh tại spa H+ Beauty
Với mức đầu tư lớn, Penviet hiểu được những kỳ vọng khách hàng đặt vào dự án thiết kế nội thất spa này. Đây chính là lý do chúng tôi luôn cố gắng để mang đến những giá trị vượt trội và sự hài lòng khi được trao gửi niềm tin. Liên hệ ngay với chúng tôi để được tư vấn và hỗ trợ nhé!







A. PenViet có hệ thống chi nhánh văn phòng và xưởng sản xuất ở nhiều nơi trên toàn quốc, nên giá thành sản phẩm là giá xuất xưởng, cạnh tranh nhằm đảm bảo chất lượng và dịch vụ phục vụ Khách hàng tốt nhất.
A: PenViet cung cấp dịch vụ tới mọi thành phần kinh tế, chúng tôi cung cấp dịch vụ thiết kế, thi công và bán lẻ các mặt hàng nội thất.
- Với các sản phẩm khách hàng đã có bản vẽ 2D hoặc 3D: PenViet sẽ phân tích bản vẽ và báo giá cạnh tranh.
- Với các sản phẩm cần thiết kế chi tiết: PenViet sẽ báo giá từ thiết kế đến thi công.
- Với những khách hàng mua hàng có sẵn với số lượng lớn: vui lòng liên hệ để nhận báo giá cạnh tranh.
- Đối với các Showroom có diện tích trưng bày sản phẩm rộng lớn: PenViet có khung giá phù hợp với ngân sách của khách hàng.