Doanh nghiệp vừa và nhỏ là mô hình đang phổ biến những năm gần đây. Điều này kéo theo nhu cầu thiết kế văn phòng với quy mô phù hợp tăng cao. Vậy, đâu là giải pháp tối ưu cho các chủ đầu tư? Penviet sẽ mang đến bạn một gợi ý ngay sau đây nhé!
Hầu hết các chủ đầu tư có xu hướng thuê lại mặt bằng để setup không gian làm việc nhằm tiết kiệm chi phí. Việc mở văn phòng tại các đô thị lớn sẽ mang đến nhiều sự thuận lợi, song, kèm theo đó là những điểm bất lợi, mà vấn đề phổ biến nhất chính là mặt bằng nhỏ hẹp.

Mặt bằng nhỏ hẹp là vấn đề thường thấy ở các văn phòng tại nhiều đô thị lớn
Cũng gặp phải tình trạng này, bởi vậy, anh Đức – chủ đầu tư đã tìm đến với Penviet để nhận được sự tư vấn, hỗ trợ từ những kiến trúc sư giàu kinh nghiệm.

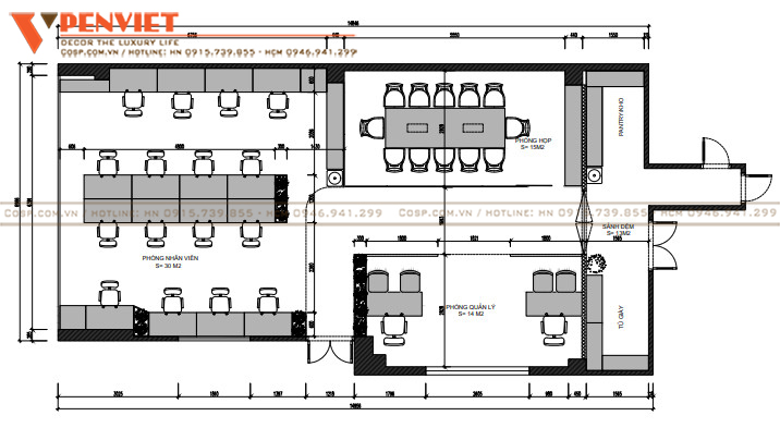
Hiện trạng mặt bằng
Sau khi tiếp nhận thông tin và lắng nghe nguyện vọng của khách hàng, Penviet đã tiến hành khảo sát mặt bằng để có những phương án xác thực, vừa phù hợp với đặc điểm không gian, vừa đáp ứng được nhu cầu của chủ đầu tư.
Theo đó, chúng tôi nhận thấy rằng, diện tích 70m2 thực sự là một hạn chế, đặt ra thách thức lớn đối với kiến trúc sư khi phải đảm bảo vị trí làm việc cho khoảng hơn 20 nhân sự bao gồm cả nhân viên và quản lý. Ngoài ra, chủ đầu tư cũng đưa ra yêu cầu thiết kế văn phòng sao cho đảm bảo được sự riêng tư cho mỗi phòng, khu vực chức năng.
Để giải quyết nhu cầu này, Penviet chú trọng vào việc bài trí không gian khoa học, khéo léo phân chia không gian để vừa đáp ứng được đầy đủ nhu cầu sử dụng, vừa mang đến sự thoải mái cho nhân viên.

Phân chia không gian hợp lý
Chúng tôi tư vấn cho khách hàng setup phòng làm việc theo phong cách hiện đại, sử dụng màu trắng làm gam màu chủ đạo làm nổi bật điểm nhấn màu vàng, đen. Sự kết hợp màu sắc này mang đến sự trẻ trung, ấn tượng cho mẫu thiết kế nội thất văn phòng, từ đó tạo năng lượng làm việc tích cực và kích thích sự sáng tạo của nhân viên.
Ngoài ra, chúng tôi cũng lựa chọn nội thất được thiết kế tinh giản, kích thước nhỏ gọn, phù hợp với không gian. Những điều này cho thấy giải pháp đồng bộ nhằm khắc phục hạn chế mặt bằng.
Nhằm đáp ứng những yêu cầu trong thiết kế, thi công cũng như đảm bảo tính thẩm mỹ cho công trình, Penviet tư vấn cho chủ đầu tư cải tạo lại một số hạng mục thô, bao gồm: dỡ bỏ trần thạch cao khu vực phòng họp, thay thế bằng trần thạch cao khung xương Vĩnh Tường; dựng vách thạch cao, vách kính, cửa kính cường lực để phân chia các phòng, khu vực chức năng; gia cố sắt hộp trên trần cửa kính thủy lực, vách kính ngăn phòng; dán decal mờ; vệ sinh lớp sơn cũ; sơn bả hoàn thiện trần, tường trước khi tiến hành décor.

Sự hiện đại, chuyên nghiệp của văn phòng HTGoods
Ý tưởng setup phòng làm việc HTGoods chắc chắn là giải pháp thiết kế văn phòng giá rẻ mà bạn đang tìm kiếm!
Sảnh văn phòng được chúng tôi bố trí tủ giày bằng gỗ MDF phủ Melamine mang đến sự thuận tiện cho người sử dụng cũng như đảm bảo vệ sinh cho phòng làm việc.
Penviet cũng tận dụng đặt các tủ kho làm từ gỗ MDF phun sơn Inchem để tăng không gian lưu trữ.

Bố trí tủ giày phía ngoài
Chúng tôi dựng các vách ngăn gỗ MDF phủ Melamine kết hợp nhựa kính trong suốt dán decal với chiều cao vừa phải và kệ trồng cây làm từ MDF phủ Melamine để giới hạn khu vực phòng quản lý song vẫn đảm bảo tầm nhìn, giúp quan sát được khu vực làm việc của nhân viên.

Phòng quản lý
Các bàn làm việc cũng được bố trí hợp lý để mang đến sự riêng tư cho người sử dụng.

Đảm bảo sự riêng tư cho người dùng
Vách và cửa kính được chúng tôi sử dụng để giới hạn không gian phòng họp. Điều này vừa đảm bảo tính thẩm mỹ, vừa mang đến sự hiện đại, nhất quán với tinh thần thiết kế văn phòng.
Sự nhất quán trong phong cách thiết kế văn phòng
Penviet bố trí bàn họp khung sắt sơn tĩnh điện, mặt bàn bằng gỗ MDF phủ Melamine cùng các ghế chân xoay mang đến sự thuận tiện, thoải mái cho người dùng.

Sử dụng nội thất mang đến sự thoải mái cho người dùng
Mẫu thiết kế văn phòng này được tăng cường nhận diện thương hiệu nhờ việc setup vách logo khung xương Vĩnh Tường ốp thạch cao tạo background phòng họp kết hợp đèn led viền tôn lên bộ chữ “HTGood” bằng mica dẹp màu đồng và slogan mica dẹp màu đen.

Background phòng họp ấn tượng
Tại đây, chúng tôi còn đặt thêm kệ trang trí làm từ gỗ MDF phủ Melamine, cánh tủ phun sơn Inchem mang đến vẻ hiện đại cho không gian.

Không gian phòng họp
Với diện tích 30m2, các kiến trúc sư của chúng tôi đã khéo léo sắp xếp các bàn làm việc để tối ưu mặt bằng.

Sắp xếp bàn làm việc khoa học nhằm tối ưu không gian
Penviet sử dụng màu đen cho vách tường để tạo chiều sâu và sự phá cách cho không gian cũng như làm nổi bật các chi tiết trang trí và tên văn phòng bằng Mica dẹp màu đồng.
Các kệ trồng cây cốt gỗ MDF phủ Melamine mang đến sự tươi mới cho phòng làm việc.

Không gian phòng làm việc
Việc tạo ra hành lang thông thoáng cũng tạo cảm giác không gian được mở rộng hơn. Đồng thời, nó cũng giúp cho việc di chuyển trong phòng làm việc được dễ dàng, thuận tiện.

Tạo hành lang thông thoáng trong văn phòng
Mặc dù gặp hạn chế lớn về diện tích, tuy nhiên, các kiến trúc sư Penviet đã mang đến ý tưởng thiết kế văn phòng ấn tượng làm hài lòng chủ đầu tư. Nếu bạn cũng đang loay hoay đi tìm giải pháp cho không gian, vậy thì hãy nhấc máy và gọi ngay cho chúng tôi nhé!







A. PenViet có hệ thống chi nhánh văn phòng và xưởng sản xuất ở nhiều nơi trên toàn quốc, nên giá thành sản phẩm là giá xuất xưởng, cạnh tranh nhằm đảm bảo chất lượng và dịch vụ phục vụ Khách hàng tốt nhất.
A: PenViet cung cấp dịch vụ tới mọi thành phần kinh tế, chúng tôi cung cấp dịch vụ thiết kế, thi công và bán lẻ các mặt hàng nội thất.
- Với các sản phẩm khách hàng đã có bản vẽ 2D hoặc 3D: PenViet sẽ phân tích bản vẽ và báo giá cạnh tranh.
- Với các sản phẩm cần thiết kế chi tiết: PenViet sẽ báo giá từ thiết kế đến thi công.
- Với những khách hàng mua hàng có sẵn với số lượng lớn: vui lòng liên hệ để nhận báo giá cạnh tranh.
- Đối với các Showroom có diện tích trưng bày sản phẩm rộng lớn: PenViet có khung giá phù hợp với ngân sách của khách hàng.