Giữa xu hướng kinh doanh ngày càng đề cao trải nghiệm khách hàng, không gian nội thất trở thành yếu tố quan trọng giúp thương hiệu ghi dấu ấn riêng. Dự án thiết kế tiệm kính mắt Minh Quang tại Thái Nguyên mang phong cách tối giản, hiện đại nhưng đầy tinh tế. Với diện tích chỉ 30m2, công trình mang lại cảm giác sang trọng, chuyên nghiệp và tạo thiện cảm cho khách hàng tại Thái Nguyên ngay từ ánh nhìn đầu tiên.
Anh Hải – chủ đầu tư của tiệm kính mắt Minh Quang mong muốn tái tạo lại không gian trưng bày theo hướng hiện đại hơn, dễ gây ấn tượng với khách hàng. Bài toán đặt ra là làm sao để một mặt bằng nhỏ 30m2 vẫn có thể truyền tải được hình ảnh chuyên nghiệp, khoa học và thuận tiện cho việc kinh doanh.
Nhóm thiết kế đã đưa ra giải pháp bố trí nội thất thông minh, tối ưu ánh sáng, kết hợp chất liệu sáng màu để mở rộng cảm giác không gian. Từ đó tạo nên tổng thể hài hòa, vừa đủ sang trọng, vừa thân thiện với khách hàng.
Thông tin dự án
Tên dự án : kính mắt Minh Quang
Chủ đầu tư : Anh Hải
Địa chỉ : Thái Nguyên
Diện tích : 30m2
Phong cách thiết kế : hiện đại
Hiện trạng trước thiết kế
.jpg)
.jpg)
.jpg)
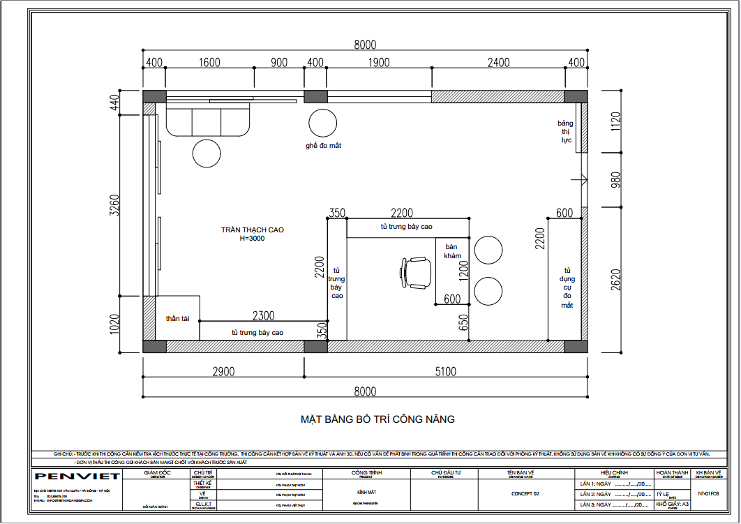
Mặt bằng công năng
.png)
Toàn bộ không gian được xây dựng theo phong cách hiện đại tối giản, gam màu chủ đạo là trắng, xám nhạt. Tông màu này không chỉ giúp làm nổi bật sản phẩm trưng bày mà còn tạo cảm giác tinh khiết, sạch sẽ.
Bố cục được sắp xếp hợp lý, các khu vực chờ, quầy tư vấn và trưng bày đều được phân tách rõ ràng nhưng vẫn đảm bảo sự liên kết trực quan. Cách xử lý ánh sáng và chất liệu phản chiếu nhẹ giúp không gian thêm phần sinh động mà không bị rối mắt.
.jpg)
Không gian trưng bày được bố trí ngay trung tâm tiệm, thiết kế dạng tường âm kết hợp kệ nổi, mang lại hiệu ứng thị giác gọn gàng và chuyên nghiệp. Các khung trưng bày được bố trí cân đối hai bên, kết hợp ánh sáng led trắng chạy viền, giúp tôn vinh từng mẫu kính.
.jpg)
Đặc biệt, bức tường cong với logo thương hiệu “Kính mắt Minh Quang” trở thành điểm nhấn nhận diện thương hiệu rõ nét. Đây là chi tiết thể hiện sự đầu tư kỹ lưỡng về hình ảnh, giúp cửa hàng tạo dấu ấn riêng so với các tiệm kính thông thường.
Bên cạnh khu trưng bày là không gian nhỏ dành cho tư vấn khách hàng. Khu vực này được bố trí bàn tròn nhỏ, ghế đơn tông trắng giúp tạo cảm giác nhẹ nhàng và riêng tư.
.jpg)
Thiết kế tối giản, không nhiều chi tiết nhưng vẫn đầy đủ tiện nghi, giúp nhân viên có thể trò chuyện, tư vấn và trao đổi thông tin với khách một cách thoải mái. Việc lựa chọn bàn ghế dáng cong mềm mại còn giúp không gian bớt khô cứng, tạo cảm giác thân thiện và dễ tiếp cận.
Một góc nhỏ được bố trí ghế băng dài sát tường, kết hợp bàn nhỏ và bình hoa tươi. Cách sắp xếp này vừa tiết kiệm diện tích, vừa tạo cảm giác tinh tế, gọn gàng. Tông màu trắng sáng giúp không gian trở nên sạch sẽ và dễ chịu, trong khi ánh sáng tự nhiên phản chiếu từ mặt tiền kính lớn mang đến sự thông thoáng, tạo cảm giác thoải mái cho khách hàng trong lúc chờ.
.jpg)
Điểm đặc biệt của thiết kế tiệm kính mắt Minh Quang nằm ở cách xử lý ánh sáng trần và ánh sáng điểm. Trần được thiết kế với các mảng sáng hình học kết hợp viền led chạy nổi, vừa đảm bảo công năng chiếu sáng, vừa mang tính thẩm mỹ cao.
.jpg)
Ánh sáng trắng chủ đạo giúp không gian luôn sáng rõ, tôn lên vẻ tinh khiết và hiện đại. Ngoài ra, việc phối hợp các đường led viền còn tạo cảm giác không gian rộng hơn thực tế, mang lại hiệu ứng thị giác mở và cuốn hút.
Với diện tích nhỏ, việc lựa chọn chất liệu đóng vai trò then chốt trong việc mở rộng không gian. Ở dự án này, tường được xử lý bằng sơn nhẵn màu sáng, sàn lát gạch xám đá khói mang lại cảm giác sang trọng mà vẫn dễ vệ sinh.
.jpg)
Các kệ trưng bày sử dụng chất liệu MDF phủ sơn bóng, kết hợp khung nhôm sơn tĩnh điện. Sự phối hợp này không chỉ tăng độ bền mà còn tạo nên tổng thể thống nhất, đồng đều về thẩm mỹ. Nhờ đó, không gian trở nên chuyên nghiệp và hiện đại hơn.
Mặt tiền cửa hàng được bố trí cửa kính cường lực trong suốt, giúp phô diễn toàn bộ không gian nội thất bên trong. Logo thương hiệu được đặt nổi bật ngay trung tâm, kết hợp đèn rọi tạo điểm nhấn vào buổi tối.
.jpg)
Cách thiết kế này giúp khách hàng dễ dàng nhận diện thương hiệu từ xa, đồng thời khơi gợi sự tò mò, thu hút người qua lại dừng chân tham quan. Đây là giải pháp rất hiệu quả đối với những cửa hàng có quy mô nhỏ nhưng muốn tạo sức hút lớn.
Một trong những ưu điểm nổi bật của dự án là sự cân bằng hoàn hảo giữa công năng và thẩm mỹ. Mỗi khu vực đều được tính toán kỹ lưỡng để tối ưu trải nghiệm khách hàng, đồng thời thể hiện rõ hình ảnh thương hiệu.
Không gian vừa đảm bảo yếu tố trưng bày sản phẩm hiệu quả, vừa truyền tải tinh thần chuyên nghiệp, giúp khách hàng cảm nhận được uy tín và sự tận tâm của cửa hàng. Đây cũng chính là giá trị mà anh Hải chủ đầu tư mong muốn hướng đến trong quá trình kinh doanh lâu dài.
Dù chỉ với 30m2, nhưng dự án thiết kế tiệm kính mắt Minh Quang đã cho thấy hiệu quả vượt trội trong cách tổ chức không gian. Mọi chi tiết đều được tinh giản nhưng vẫn tạo nên dấu ấn rõ ràng.
Không gian sáng sủa, hiện đại và dễ tiếp cận giúp nâng cao trải nghiệm khách hàng, đồng thời khẳng định hình ảnh thương hiệu chuyên nghiệp, đáng tin cậy. Đây là mô hình tham khảo lý tưởng cho những chủ đầu tư đang tìm kiếm giải pháp cải tạo cửa hàng nhỏ nhưng vẫn muốn tạo khác biệt.
Thiết kế tiệm kính mắt Minh Quang là minh chứng cho việc một không gian nhỏ vẫn có thể mang lại giá trị thẩm mỹ và thương hiệu lớn nếu được đầu tư đúng hướng. Với phong cách hiện đại, cách bố trí hợp lý và màu sắc tinh tế, công trình không chỉ đáp ứng nhu cầu kinh doanh mà còn nâng tầm hình ảnh cửa hàng. Đây chính là lựa chọn tối ưu cho những chủ đầu tư mong muốn cải tạo không gian kinh doanh.







A. PenViet có hệ thống chi nhánh văn phòng và xưởng sản xuất ở nhiều nơi trên toàn quốc, nên giá thành sản phẩm là giá xuất xưởng, cạnh tranh nhằm đảm bảo chất lượng và dịch vụ phục vụ Khách hàng tốt nhất.
A: PenViet cung cấp dịch vụ tới mọi thành phần kinh tế, chúng tôi cung cấp dịch vụ thiết kế, thi công và bán lẻ các mặt hàng nội thất.
- Với các sản phẩm khách hàng đã có bản vẽ 2D hoặc 3D: PenViet sẽ phân tích bản vẽ và báo giá cạnh tranh.
- Với các sản phẩm cần thiết kế chi tiết: PenViet sẽ báo giá từ thiết kế đến thi công.
- Với những khách hàng mua hàng có sẵn với số lượng lớn: vui lòng liên hệ để nhận báo giá cạnh tranh.
- Đối với các Showroom có diện tích trưng bày sản phẩm rộng lớn: PenViet có khung giá phù hợp với ngân sách của khách hàng.