Một tiệm kính được bố trí khoa học, ánh sáng hợp lý và phong cách hiện đại không chỉ thể hiện sự chuyên nghiệp mà còn nâng tầm giá trị thương hiệu. Dự án thiết kế tiệm mắt kính Âu Việt tại Long Khánh có sự kết hợp hoàn hảo giữa thẩm mỹ và công năng, mang đến một không gian bán hàng tinh tế, nổi bật và thu hút.
Hiện trạng trước thiết kế
.jpg)
.jpg)
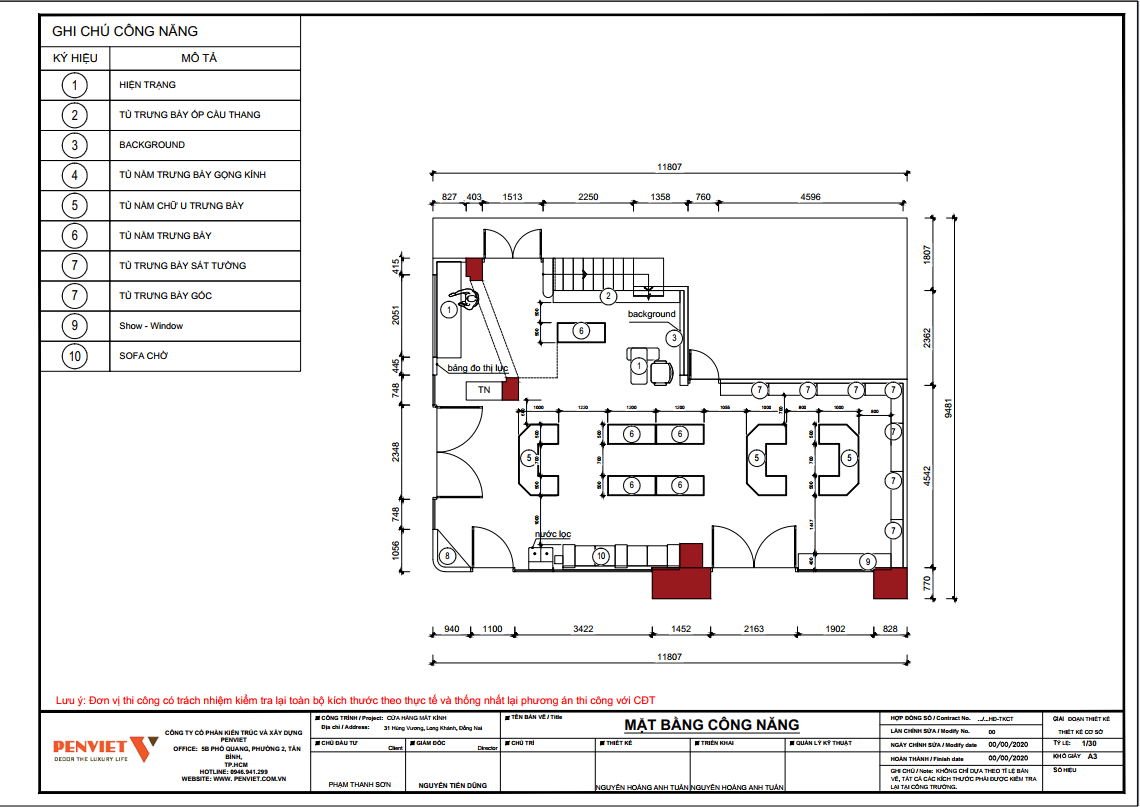
Mặt bằng công năng
.png)
Tên dự án: Tiệm mắt kính Âu Việt
Địa chỉ: Thành phố Long Khánh
Diện tích: 70m²
Phong cách thiết kế: Hiện đại – chuyên nghiệp
Với mặt bằng 70m², chủ đầu tư mong muốn cải tạo lại toàn bộ không gian để tạo nên một diện mạo mới, khác biệt so với những cửa hàng mắt kính truyền thống. Mục tiêu là tạo dựng hình ảnh một thương hiệu mắt kính uy tín, cao cấp, đồng thời tối ưu công năng sử dụng trong một diện tích vừa phải.
.jpg)
Ý tưởng thiết kế tiệm mắt kính Âu Việt được xây dựng dựa trên sự cân bằng giữa tính thẩm mỹ và trải nghiệm người dùng. Kiến trúc sư hướng đến việc tạo nên một không gian mở, thoáng đãng nhưng vẫn giữ được cảm giác ấm cúng và gần gũi.
.jpg)
Điểm đặc trưng của dự án là sự phối hợp hài hòa giữa chất liệu gỗ ấm và kính sáng, mang đến cảm giác sang trọng nhưng không lạnh lẽo. Tông màu vàng, đỏ, nâu gỗ được sử dụng làm chủ đạo, vừa tạo sự nhận diện thương hiệu vừa giúp cửa hàng trở nên nổi bật trên tuyến phố.
Hệ thống ánh sáng được bố trí khéo léo, sử dụng đèn rọi ray hiện đại giúp tôn vinh các sản phẩm kính. Ánh sáng tập trung đúng vị trí trưng bày, phản chiếu qua các mặt kính và tủ trưng bày tạo hiệu ứng lung linh, thu hút ánh nhìn ngay khi khách bước vào.
Mặt tiền là yếu tố quan trọng đầu tiên định hình ấn tượng của khách hàng. Thiết kế mặt tiền tiệm mắt kính Âu Việt tại Long Khánh mang phong cách hiện đại, nổi bật với bảng hiệu lớn cùng gam màu vàng, đen, đỏ chủ đạo.
.jpg)
Biển hiệu được thiết kế theo phong cách tối giản nhưng vẫn thể hiện rõ thông điệp: “Uy tín – Chất lượng”. Phông chữ lớn, rõ ràng, kết hợp hiệu ứng đèn chiếu sáng giúp cửa hàng nổi bật cả ban ngày lẫn ban đêm.
.jpg)
Hai bên mặt kính trưng bày được bố trí các poster hình ảnh sản phẩm kính mắt với phong cách trẻ trung, nghệ thuật. Các khung hình lớn có tông màu rực rỡ vừa giúp tạo hiệu ứng thị giác, vừa thể hiện phong cách thương hiệu hiện đại, năng động.
Bên cạnh đó, khu vực cửa ra vào được thiết kế bằng kính cường lực trong suốt, tạo sự liên kết trực quan giữa không gian bên trong và bên ngoài, giúp khách hàng dễ dàng quan sát các sản phẩm ngay từ ngoài phố.
Khi bước vào bên trong, không gian tiệm mắt kính Âu Việt mang đến cảm giác gọn gàng, ấm cúng và tinh tế. Toàn bộ tủ trưng bày được bố trí theo dạng chữ U, vừa tận dụng được không gian tường, vừa tạo lối đi rộng rãi ở giữa cho khách hàng di chuyển.
.jpg)
Các tủ trưng bày được thiết kế bằng gỗ công nghiệp phủ veneer nâu đỏ, kết hợp kính trong suốt và đèn led âm. Hệ thống này không chỉ giúp làm nổi bật sản phẩm mà còn tăng thêm chiều sâu cho không gian.
Phía dưới mỗi tủ có ngăn kéo lưu trữ giúp nhân viên dễ dàng sắp xếp hàng hóa, giữ không gian luôn gọn gàng. Phần giữa cửa hàng là quầy trưng bày trung tâm với mặt kính bo góc mềm mại, vừa có tính thẩm mỹ, vừa tạo điểm nhấn thị giác.
.jpg)
Gam màu nâu gỗ tạo cảm giác sang trọng, đồng thời giúp làm nổi bật các sản phẩm kính mắt. Ánh sáng vàng ấm giúp tăng trải nghiệm thị giác, mang lại cảm giác cao cấp, gần gũi và chuyên nghiệp.
Hệ thống đèn ray chạy dọc theo trần cho phép điều chỉnh hướng sáng linh hoạt, giúp tủ kính luôn sáng đều và đẹp mắt.
Không gian trưng bày được tính toán kỹ lưỡng để khách hàng có thể dễ dàng di chuyển và trải nghiệm sản phẩm. Khu vực trung tâm là quầy chính để khách xem và thử kính, trong khi hai bên tường là nơi trưng bày đa dạng các dòng sản phẩm từ phổ thông đến cao cấp.
.jpg)
Phía cuối cửa hàng được bố trí gương soi toàn thân và khu vực thử kính, giúp khách hàng có trải nghiệm thực tế trước khi chọn mua. Đây là chi tiết nhỏ nhưng có vai trò quan trọng trong việc nâng cao trải nghiệm và tăng tỷ lệ chốt đơn.
Khu vực thu ngân được bố trí liền kề quầy trưng bày trung tâm, đảm bảo nhân viên có thể vừa tư vấn vừa quản lý không gian bán hàng. Quầy được thiết kế đồng bộ với tổng thể, sử dụng chất liệu gỗ phủ bóng, kết hợp viền vàng ánh kim sang trọng.
.jpg)
Không gian tư vấn được bố trí tinh gọn nhưng đủ riêng tư, tạo cảm giác thoải mái khi khách hàng cần được hướng dẫn chọn kính phù hợp với khuôn mặt, phong cách hay nhu cầu sử dụng.
Ánh sáng là yếu tố được đầu tư kỹ lưỡng trong toàn bộ dự án. Ngoài hệ thống đèn rọi tập trung, ánh sáng nền màu trắng và vàng nhẹ được phối hợp hài hòa giúp tổng thể không gian cân bằng, không gây chói mắt nhưng vẫn đủ rực rỡ để tôn vinh sản phẩm.
.jpg)
Các khu vực trưng bày chính được chiếu sáng mạnh hơn nhằm tạo điểm nhấn thị giác. Đặc biệt, hiệu ứng phản chiếu qua mặt kính làm cho sản phẩm trở nên lấp lánh, thu hút khách hàng ngay từ cái nhìn đầu tiên.
Sự lựa chọn vật liệu đóng vai trò quan trọng trong việc thể hiện phong cách và giá trị của thương hiệu. Tại tiệm mắt kính Âu Việt, các kiến trúc sư ưu tiên sử dụng gỗ công nghiệp chống ẩm, kính cường lực, đèn led âm trần, đèn rọi ray sơn tĩnh điện đều mang tính bền vững, dễ bảo trì và có tuổi thọ cao.
Màu sắc chủ đạo gồm nâu gỗ, vàng ánh kim, trắng sáng, được phối hợp tinh tế để vừa mang đến cảm giác hiện đại, vừa giữ nét ấm áp, gần gũi. Tông màu này cũng giúp sản phẩm trưng bày nổi bật, tạo điểm nhấn cho từng khung kính.
.jpg)
Trong quá trình thi công, đội ngũ thiết kế chú trọng đến yếu tố tiện dụng và tối ưu chi phí cho chủ đầu tư. Các module tủ được thiết kế theo kích thước tiêu chuẩn, dễ dàng lắp đặt, tháo dỡ và thay thế khi cần.
Hệ thống đèn, điện và dây dẫn được ẩn hoàn toàn trong kết cấu trần và tủ, đảm bảo tính thẩm mỹ cao và an toàn cho người sử dụng. Bề mặt vật liệu được xử lý kỹ lưỡng chống trầy xước và ẩm mốc, giúp duy trì độ bền lâu dài trong môi trường hoạt động liên tục.
.jpg)
Sau khi hoàn thiện, tiệm mắt kính Âu Việt đã mang một diện mạo hoàn toàn mới: hiện đại, chuyên nghiệp và thu hút. Không gian sáng, thoáng và được bố trí khoa học giúp tăng khả năng quan sát sản phẩm, tạo sự thuận tiện trong quá trình bán hàng.
.jpg)
Khách hàng khi bước vào cửa hàng cảm nhận được sự chuyên nghiệp và tin cậy, yếu tố rất quan trọng trong ngành mắt kính. Đồng thời, việc thiết kế hợp lý giúp tối ưu trải nghiệm người dùng, giảm tải cho nhân viên tư vấn và tăng doanh thu nhờ hiệu ứng trưng bày bắt mắt.
.jpg)
Dự án thiết kế tiệm mắt kính Âu Việt tại Long Khánh đã góp phần lớn vào xây dựng thương hiệu và thúc đẩy doanh thu. Với diện tích chỉ 70m², nhờ cách bố trí hợp lý, lựa chọn vật liệu tinh tế và xử lý ánh sáng khéo léo, công trình đã trở thành điểm nhấn ấn tượng giữa phố. Nếu bạn là chủ đầu tư đang tìm kiếm giải pháp cải tạo cửa hàng thì Âu Việt chính là gợi ý hoàn hảo.







A. PenViet có hệ thống chi nhánh văn phòng và xưởng sản xuất ở nhiều nơi trên toàn quốc, nên giá thành sản phẩm là giá xuất xưởng, cạnh tranh nhằm đảm bảo chất lượng và dịch vụ phục vụ Khách hàng tốt nhất.
A: PenViet cung cấp dịch vụ tới mọi thành phần kinh tế, chúng tôi cung cấp dịch vụ thiết kế, thi công và bán lẻ các mặt hàng nội thất.
- Với các sản phẩm khách hàng đã có bản vẽ 2D hoặc 3D: PenViet sẽ phân tích bản vẽ và báo giá cạnh tranh.
- Với các sản phẩm cần thiết kế chi tiết: PenViet sẽ báo giá từ thiết kế đến thi công.
- Với những khách hàng mua hàng có sẵn với số lượng lớn: vui lòng liên hệ để nhận báo giá cạnh tranh.
- Đối với các Showroom có diện tích trưng bày sản phẩm rộng lớn: PenViet có khung giá phù hợp với ngân sách của khách hàng.