Giữa lòng khu phố Hàng Bông, Hà Nội là nơi lưu giữ nhịp sống cổ xưa xen lẫn hiện đại, dự án thiết kế nhà hàng của chị Phạm Hải Yến mang đến một không gian đậm chất Á Đông nhưng vẫn tinh gọn và sang trọng. Với diện tích 90m², đội ngũ PenViet đã biến một mặt bằng trống trở thành không gian ẩm thực có chiều sâu thẩm mỹ, cân bằng giữa nghệ thuật truyền thống và công năng vận hành.
Chủ đầu tư: Phạm Hải Yến
Địa điểm: 3B- Ngõ 200 Hàng Bông- Hà Nội
Diện tích : 90m2
Nội dung: Thiết kế nhà hàng
Hiện trạng trước thiết kế
.jpg)
.jpg)
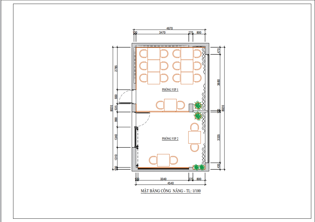
Mặt bằng công năng
.png)
Nằm trong ngõ 200 Hàng Bông, nhà hàng sở hữu vị trí đặc biệt: kín đáo nhưng dễ tìm, yên tĩnh mà vẫn kết nối với nhịp sống đô thị. Khi tiếp cận công trình, đội ngũ thiết kế PenViet nhận thấy mặt bằng ban đầu là một khoảng trống đơn giản, chưa có điểm nhấn và phân khu rõ ràng.
.jpg)
Từ đó, mục tiêu được xác định rõ ràng, tạo dựng một không gian kinh doanh ẩm thực đậm chất văn hóa Việt. Đặc biệt mang tinh thần ấm cúng và sang trọng, phù hợp cho mô hình nhà hàng phục vụ nhóm khách nội thành và khách du lịch.
Ý tưởng chủ đạo được lấy cảm hứng từ nghệ thuật dân gian và màu sắc văn hóa Á Đông. Màu đỏ trầm được chọn làm gam chủ đạo, tượng trưng cho sự may mắn, thịnh vượng. Các mảng tường ốp gỗ sẫm màu giúp trung hòa sắc đỏ, tạo cảm giác ấm cúng, gần gũi.
.jpg)
Những bức tranh trang trí tái hiện hình ảnh truyền thống Việt Nam được bố trí xen kẽ, mang đến nét sinh động, giúp khách hàng cảm nhận sự quen thuộc nhưng không kém phần sang trọng.
Theo kiến trúc sư của PenViet: “Mỗi mảng tường, mỗi sắc độ đều có dụng ý. Chúng tôi không chỉ trang trí mà còn kể câu chuyện văn hóa Việt qua cách phối hợp màu sắc và vật liệu.”
.jpg)
Với diện tích chỉ 90m², việc sắp xếp bàn ghế và khu vực phục vụ được tính toán kỹ lưỡng để đảm bảo lối đi thông thoáng, tầm nhìn mở. Không gian được chia thành hai phần rõ rệt: khu vực bàn ăn chính và khu vực phụ trợ. Các bàn ăn được bố trí theo hàng lối, tạo cảm giác ngay ngắn, tôn trọng trật tự và tính riêng tư của từng nhóm khách.
.jpg)
Lối đi trung tâm rộng, giúp nhân viên dễ dàng di chuyển, phục vụ nhanh chóng mà không ảnh hưởng trải nghiệm của thực khách. Chuyên gia thiết kế của PenViet cho biết: “Với mặt bằng nhỏ, sự ngăn nắp và bố cục hợp lý là yếu tố sống còn. Không gian cần vừa gọn, vừa đủ để tạo sự thoải mái trong từng chuyển động.”
.jpg)
Toàn bộ tone màu chủ đạo gồm đỏ, nâu gỗ và trắng sữa. Màu đỏ không chỉ tạo điểm nhấn mà còn gợi cảm giác ấm áp, kích thích vị giác. Tường được xử lý bằng vật liệu sơn mịn, kết hợp gỗ laminate tạo cảm giác chắc chắn, bền bỉ. Trần nhà sử dụng họa tiết khung gỗ cách điệu, mang hơi hướng cổ điển phương Đông nhưng được giản lược để hợp với xu hướng hiện đại. Ánh sáng vàng ấm từ các đèn downlight và đèn hắt tường được bố trí hợp lý, tạo chiều sâu thị giác, đồng thời làm nổi bật các bức tranh tường nghệ thuật.
.jpg)
Không gian nhà hàng được thổi hồn bằng những bức tranh dân gian đặc sắc. Mỗi bức là một câu chuyện văn hóa, vừa mang tính biểu tượng, vừa tăng tính thẩm mỹ cho toàn bộ không gian.
Các khung tranh được thiết kế bo viền gỗ, kích thước lớn, bố trí cân đối để tạo hiệu ứng đối xứng. Nhờ vậy, khi bước vào, khách hàng có cảm giác được đắm mình trong không gian mang hơi thở Việt.
Chuyên gia thiết kế nhận định: “Tranh tường không chỉ là trang trí. Nó là yếu tố định hình cảm xúc và giúp nhà hàng có bản sắc riêng, khác biệt hoàn toàn giữa thị trường ẩm thực hiện nay.”
Bàn ghế sử dụng chất liệu gỗ công nghiệp phủ veneer, kết cấu vững chắc và dễ vệ sinh. Kiểu dáng ghế mang hơi hướng cổ điển với lưng cao, thanh mảnh, tạo nên dáng vẻ thanh lịch. Mỗi bàn được sắp xếp theo mô hình linh hoạt, có thể ghép nhóm hoặc tách lẻ tùy quy mô khách. Trên bàn phủ khăn trắng tạo điểm sáng, giúp cân bằng sắc đỏ chủ đạo của căn phòng. Vật liệu được lựa chọn không chỉ vì thẩm mỹ mà còn vì tính bền vững và dễ bảo trì.
.jpg)
Bên cạnh đó, hệ thống chiếu sáng được chia thành nhiều lớp. Đèn trần trung tâm có ánh sáng dịu, kết hợp cùng ánh sáng điểm từ các đèn hắt tường tạo nên không gian nhiều tầng sắc độ. Đặc biệt, khu vực tranh treo tường được thiết kế đèn chiếu riêng, giúp các chi tiết mỹ thuật trở nên sống động hơn.
Cách xử lý ánh sáng khéo léo giúp không gian vừa sang trọng, vừa ấm cúng, mang lại cảm giác dễ chịu cho thực khách dù ngồi ở bất kỳ vị trí nào.
.jpg)
Toàn bộ hệ lam gỗ, phào chỉ, tường ốp được thi công bằng vật liệu gỗ công nghiệp cao cấp chống ẩm. Sàn sử dụng gạch men sáng màu, bề mặt bóng nhẹ giúp tăng độ phản chiếu ánh sáng và tạo cảm giác sạch sẽ. Trần thạch cao giật cấp giúp che hệ thống điện chiếu sáng, đồng thời tạo đường nét hình học mạnh mẽ. Sự kết hợp giữa gỗ và gạch trắng vừa mang tính truyền thống, vừa đảm bảo dễ bảo dưỡng, tối ưu chi phí vận hành.
.jpg)
Cây xanh được bố trí có chọn lọc tại các góc tường và lối đi. Những chậu lan trắng nhỏ được đặt trên kệ gỗ, vừa tạo điểm nhấn thị giác, vừa mang ý nghĩa phong thủy. Cây xanh không chỉ làm mềm không gian mà còn cân bằng năng lượng, mang đến cảm giác thư giãn và gần gũi hơn cho thực khách.
.jpg)
Trần nhà được tạo hình theo dạng đường khung gỗ lồng nhau, lấy cảm hứng từ kết cấu mái đình chùa Việt. Chính giữa treo một chùm đèn trần ánh sáng mềm, đóng vai trò điểm nhấn thị giác, giúp cân bằng bố cục tổng thể. Sự xuất hiện của trần trang trí này không chỉ làm tăng chiều sâu không gian mà còn tạo cảm giác sang trọng, trang nhã, phù hợp với phong cách Á Đông hiện đại.
Trước khi thi công, mặt bằng chỉ là khoảng trống đơn giản, không có hệ thống chiếu sáng hay bố cục rõ ràng.
Sau quá trình khảo sát và thiết kế, PenViet đã định hình lại toàn bộ công năng, phân khu hợp lý, bổ sung hệ thống điện nước và thông gió đảm bảo vận hành thực tế.
Từng chi tiết, từ khung tường, bàn ghế đến ánh sáng đều được thi công chính xác theo bản vẽ 3D. Kết quả là một không gian đồng bộ, đẹp mắt và thể hiện rõ phong cách thương hiệu.
Sự hài lòng của chủ đầu tư không chỉ là thành công về mặt thẩm mỹ mà còn khẳng định năng lực thiết kế và thi công thực tế của PenViet.
Kiến trúc sư chủ trì dự án của PenViet nhận định: “Chúng tôi không chỉ tạo ra một không gian đẹp mà còn là không gian vận hành hiệu quả. Với 90m², từng mét vuông đều được tính toán để đảm bảo thẩm mỹ, công năng và quá trình phục vụ khách hàng hợp lý. Sự kết hợp giữa màu đỏ truyền thống và vật liệu gỗ là lựa chọn giúp nhà hàng giữ được cá tính riêng giữa khu phố cổ Hà Nội.”
Dự án thiết kế nhà hàng của chị Phạm Hải Yến thể hiện rõ khả năng sáng tạo và kỹ thuật thi công của PenViet. Đây là giải pháp tham khảo lý tưởng cho các chủ đầu tư đang tìm kiếm phương án cải tạo nhà hàng tại khu vực phố cổ.







A. PenViet có hệ thống chi nhánh văn phòng và xưởng sản xuất ở nhiều nơi trên toàn quốc, nên giá thành sản phẩm là giá xuất xưởng, cạnh tranh nhằm đảm bảo chất lượng và dịch vụ phục vụ Khách hàng tốt nhất.
A: PenViet cung cấp dịch vụ tới mọi thành phần kinh tế, chúng tôi cung cấp dịch vụ thiết kế, thi công và bán lẻ các mặt hàng nội thất.
- Với các sản phẩm khách hàng đã có bản vẽ 2D hoặc 3D: PenViet sẽ phân tích bản vẽ và báo giá cạnh tranh.
- Với các sản phẩm cần thiết kế chi tiết: PenViet sẽ báo giá từ thiết kế đến thi công.
- Với những khách hàng mua hàng có sẵn với số lượng lớn: vui lòng liên hệ để nhận báo giá cạnh tranh.
- Đối với các Showroom có diện tích trưng bày sản phẩm rộng lớn: PenViet có khung giá phù hợp với ngân sách của khách hàng.