Thiết kế tiệm mì cay Busansan tại Hải Phòng được thiết kế dựa trên nhu cầu nâng cấp toàn diện không gian kinh doanh, tạo một diện mạo hiện đại, thu hút và tối ưu công năng cho mô hình ẩm thực Hàn Quốc. Dự án do PenViet triển khai mang đến phong cách nội thất đồng nhất. Đây là giải pháp thiết kế phù hợp với những chủ đầu tư muốn cải tạo không gian để tăng trải nghiệm khách hàng và nâng cao hiệu quả vận hành.
Hiện trạng trước thiết kế
.jpg)
.jpg)
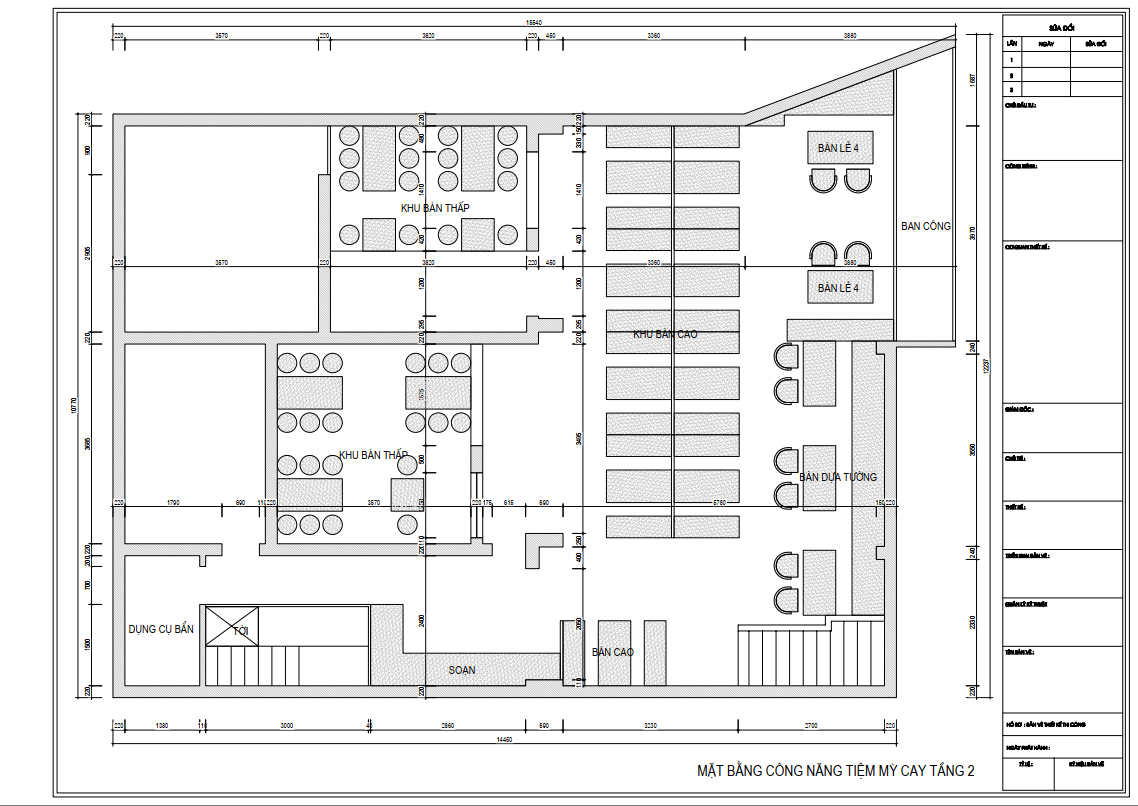
Mặt bằng công năng
.png)
.png)
Mặt bằng 240m2 cho phép bố trí nhiều khu vực chức năng nhưng vẫn đòi hỏi sự mạch lạc trong cách tổ chức. Chủ đầu tư mong muốn có một không gian ấm cúng, dễ nhận diện thương hiệu và tạo cảm giác thân thiện với khách hàng trẻ.
PenViet định hướng thiết kế dựa trên màu sắc thương hiệu kết hợp phong cách tối giản. Điều này giúp tiệm trở nên nổi bật và phù hợp với xu hướng thiết kế ẩm thực hiện nay. Thiết kế cũng ưu tiên tối ưu chỗ ngồi, đảm bảo sự thoải mái trong từng khu vực.
Thông tin dự án
Chủ đầu tư: Anh Đức Duy
Địa điểm: Số 6 Lương Khánh Thiện, Hải Phòng
Diện tích : 240m2
Nội dung: Thiết kế Tiệm Mì Cay.
Mặt tiền tiệm mì cay Busansan được tạo bằng khối hộp hiện đại, đường nét rõ ràng và dễ ghi nhớ. Phần biển bảng màu đen chủ đạo được kết hợp với hệ chữ nổi màu vàng, tạo sự tương phản và thu hút ngay từ xa. Đây là cách làm hiệu quả để gây ấn tượng với khách hàng di chuyển trên phố.
.jpg)
Các mảng kính lớn phía tầng hai mang đến sự thông thoáng và giúp để lộ không gian nội thất bên trong. Điều này khiến tiệm trở nên sống động và có chiều sâu ngay cả khi nhìn từ bên ngoài. Với vị trí mặt đường trung tâm, cách xử lý mặt tiền như vậy giúp thương hiệu tăng độ nhận diện đáng kể.
Bước qua cửa, khách hàng đối diện với khu vực sảnh mang phong cách tinh gọn và hiện đại. Quầy lễ tân được thiết kế với vật liệu gỗ sáng màu và logo nổi bật, giữ đúng tinh thần chuyên nghiệp của một thương hiệu mì cay.
.jpg)
Không gian được bố trí nhiều cây xanh để cân bằng cảm giác và tạo sự gần gũi. Nhờ chiều cao trần thoáng, khu vực sảnh dù không cầu kỳ nhưng vẫn tạo cảm giác rộng rãi và thư thái. Đây là yếu tố quan trọng giúp khách hàng cảm thấy dễ chịu khi bắt đầu trải nghiệm ẩm thực.
Không gian bên trong thiết kế tiệm mì cay Busansan sử dụng tone gỗ sáng kết hợp với các chi tiết màu đỏ thương hiệu. Sự hài hòa này giúp tiệm mì cay giữ được phong cách Hàn Quốc nhưng vẫn mang nét hiện đại cần thiết. Phong cách nội thất được thiết kế gọn gàng, tạo cảm giác sạch sẽ và thuận tiện cho việc vận hành.
.jpg)
.jpg)
Trần nhà được bố trí hệ đèn thả màu đen bên ngoài và đỏ bên trong. Đây là điểm nhấn mạnh mẽ, vừa tạo chiều sâu vừa tạo tính nhận diện kiến trúc. Ánh sáng ấm kết hợp cùng màu gỗ mang lại cảm giác dễ chịu, phù hợp mô hình kinh doanh ẩm thực cay nóng.
Khu vực bàn ghế được chia thành nhiều lớp không gian để phục vụ linh hoạt các nhóm khách hàng. Bàn đơn, bàn đôi và bàn dài được bố trí xen kẽ giúp tăng sức chứa nhưng không tạo cảm giác chật chội. Các dãy bàn ngăn bằng vách mica trong mờ vừa đảm bảo sự riêng tư vừa tạo sự thông thoáng.
.jpg)
.jpg)
Cách chọn ghế gỗ sáng màu kết hợp đệm ngồi hồng nhẹ mang lại cảm giác trẻ trung. Điều này tạo ra sự cân đối thị giác và duy trì phong cách mềm mại của tổng thể. Đây là chi tiết cho thấy sự tinh tế trong thiết kế nhằm nâng cao trải nghiệm khách hàng.
.jpg)
Các mảng tường bên trong thiết kế tiệm mì cay Busansan được xử lý bằng gỗ và tranh quảng cáo món ăn. Những hình ảnh món mì cay và sản phẩm thương hiệu được bố trí đồng đều, giúp thực khách dễ dàng nhận diện đặc trưng của quán. Đây cũng là công cụ marketing trực quan, hỗ trợ tăng sức hút sản phẩm.
.jpg)
Một bảng hiệu điện tử lớn được đặt tại khu vực trung tâm không gian, tạo điểm nhấn sáng và giúp thương hiệu nổi bật hơn. Đây là cách tăng hiệu quả truyền thông ngay trong không gian nội bộ.
Ánh sáng trong dự án thiết kế tiệm mì cay Busansan theo hướng ấm áp, giúp làm nổi bật màu sắc món ăn và tạo cảm giác dễ chịu. Các bóng đèn thả thấp góp phần tăng chiều sâu và giảm trống trải cho không gian rộng. Hệ thống đèn downlight bổ sung giúp ánh sáng được phân bố đều, tránh hiện tượng khu vực tối hoặc chói.
.jpg)
.jpg)
Sự kết hợp giữa ánh sáng nhân tạo và ánh sáng tự nhiên từ cửa kính tạo nên không gian hài hòa. Điều này giúp tiệm tiết kiệm năng lượng và mang lại cảm giác trong lành vào ban ngày.
.jpg)
Một điểm mạnh của dự án là khu vực ban công hướng ra mặt phố. Đây là lợi thế hiếm thấy trong các thiết kế quán mì cay ở khu vực trung tâm. Ban công giúp khách hàng có thêm lựa chọn chỗ ngồi thoáng, phù hợp với nhóm thích không gian mở.
.jpg)
Việc bố trí bàn nhỏ và ghế đơn tạo cảm giác nhẹ nhàng và gần gũi. Đây cũng là vị trí lý tưởng để tạo hình ảnh truyền thông, tăng giá trị cho thương hiệu.
.jpg)
Gỗ công nghiệp phủ melamine là vật liệu chính được dùng sản xuất nội thất. Loại vật liệu này bền, ít cong vênh và phù hợp với môi trường sử dụng nhiều. Bề mặt gỗ dễ lau chùi, giúp tối ưu chi phí bảo trì lâu dài cho chủ đầu tư.
Hệ thống sàn giả gỗ giúp chống trơn, tạo cảm giác ấm và dễ đồng bộ với phong cách thiết kế tổng thể. Các chi tiết kim loại đen dùng ở tay vịn, chân bàn mang đến vẻ cứng cáp nhưng không phá vỡ phong cách tinh gọn của quán.
.jpg)
.jpg)
Đặc biệt hơn, thiết kế chú trọng việc di chuyển của nhân viên phục vụ và khách hàng. Sự rõ ràng trong lối đi giúp quá trình phục vụ nhanh hơn, giảm va chạm trong giờ cao điểm. Việc sắp xếp bàn ghế hợp lý cũng tạo điều kiện để bố trí thêm chỗ ngồi khi cần mở rộng.
Các khu vực chức năng như bếp, kho, quầy thanh toán được phân chia tách biệt để giảm tiếng ồn và tránh ảnh hưởng đến không gian chung. Đây là yếu tố quan trọng cho các mô hình kinh doanh đồ nóng, nhiều mùi như mì cay.
Dự án thiết kế tiệm mì cay Busansan mang lại nhiều giá trị cho chủ đầu tư. Không gian được cải tạo toàn diện giúp tăng sức hút thương hiệu và dễ ghi nhớ. Kiến trúc hiện đại, đồng bộ với phong cách Hàn Quốc giúp quán tạo được lợi thế cạnh tranh trong thị trường ẩm thực. Đây là giải pháp phù hợp cho ai đang tìm kiếm ý tưởng cải tạo không gian kinh doanh chuyên nghiệp và hiệu quả.







A. PenViet có hệ thống chi nhánh văn phòng và xưởng sản xuất ở nhiều nơi trên toàn quốc, nên giá thành sản phẩm là giá xuất xưởng, cạnh tranh nhằm đảm bảo chất lượng và dịch vụ phục vụ Khách hàng tốt nhất.
A: PenViet cung cấp dịch vụ tới mọi thành phần kinh tế, chúng tôi cung cấp dịch vụ thiết kế, thi công và bán lẻ các mặt hàng nội thất.
- Với các sản phẩm khách hàng đã có bản vẽ 2D hoặc 3D: PenViet sẽ phân tích bản vẽ và báo giá cạnh tranh.
- Với các sản phẩm cần thiết kế chi tiết: PenViet sẽ báo giá từ thiết kế đến thi công.
- Với những khách hàng mua hàng có sẵn với số lượng lớn: vui lòng liên hệ để nhận báo giá cạnh tranh.
- Đối với các Showroom có diện tích trưng bày sản phẩm rộng lớn: PenViet có khung giá phù hợp với ngân sách của khách hàng.