Việc đầu tư vào thiết kế không gian phòng khám không chỉ giúp nâng cao trải nghiệm của bệnh nhân mà còn góp phần thể hiện sự chuyên nghiệp của đội ngũ y bác sĩ. Dự án thiết kế phòng khám nhi Tâm An do chủ đầu tư Nguyễn Thị Vân Anh thực hiện tại Đông Anh, Hà Nội có diện tích 69m2 được cải tạo lại theo phong cách hiện đại. Đặc biệt phù hợp với tâm lý trẻ nhỏ, tạo nên một môi trường khám chữa bệnh gần gũi và đáng tin cậy.
Hiện trạng trước thiết kế
.jpg)
.jpg)
.jpg)
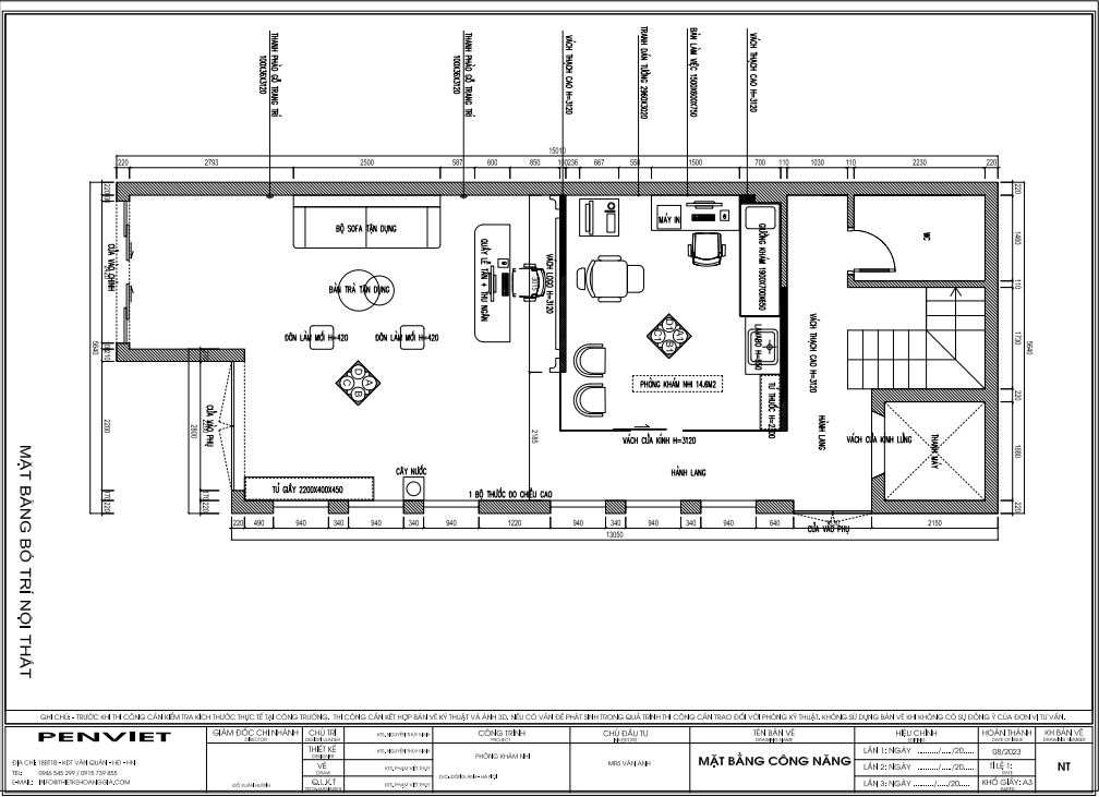
Mặt bằng công năng
.png)
Đối với những không gian phòng khám có diện tích vừa phải như 69m2, bài toán đặt ra là làm sao để bố trí công năng hợp lý, đảm bảo luồng di chuyển thuận tiện mà vẫn giữ được sự thông thoáng. Trong dự án phòng khám nhi Tâm An, nhóm thiết kế đã sử dụng gam màu chủ đạo là trắng, xanh mint, vừa mang cảm giác dịu nhẹ, vừa giúp không gian trở nên rộng mở hơn về mặt thị giác.
.jpg)
Bên cạnh đó, chất liệu kính trong suốt được ứng dụng ở nhiều khu vực, giúp ánh sáng tự nhiên lan tỏa khắp căn phòng. Hệ thống trần và sàn được thiết kế đồng bộ, kết hợp đèn âm trần hiện đại, giúp không gian luôn sáng rõ và sạch sẽ. Tất cả chi tiết đều được cân nhắc kỹ lưỡng để tạo nên một tổng thể hài hòa, giúp phụ huynh và trẻ nhỏ cảm nhận được sự thoải mái ngay khi bước vào.
Chủ đầu tư: Nguyễn Thị Vân Anh
Địa điểm: Đông Anh Hà Nội
Diện tích : 69m2
Nội dung: Thiết kế Phòng Khám Nhi
Phần mặt tiền của phòng khám nhi Tâm An được thiết kế hiện đại, nổi bật với bảng hiệu xanh ngọc nhã nhặn, in rõ tên thương hiệu cùng thông tin bác sĩ phụ trách. Cách phối màu được lựa chọn có chủ đích, vừa thể hiện tính chuyên môn, vừa gợi cảm giác thân thiện đặc trưng của một cơ sở y tế dành cho trẻ nhỏ.
.jpg)
Bảng hiệu được bố trí hệ thống đèn chiếu sáng từ trên cao, đảm bảo khả năng nhận diện vào buổi tối. Cửa kính cường lực khung đen giúp tăng sự sang trọng và hiện đại, đồng thời mở rộng tầm nhìn, cho phép người đi đường có thể quan sát được bên trong phòng khám. Hai chậu cây xanh đặt ở hai bên cửa tạo điểm nhấn nhẹ nhàng, góp phần cân bằng không gian và mang lại cảm giác gần gũi hơn.
Tổng thể mặt tiền vừa thể hiện rõ bản sắc thương hiệu, vừa tạo ấn tượng chuyên nghiệp ngay từ cái nhìn đầu tiên, điều mà bất kỳ chủ đầu tư nào cũng mong muốn khi cải tạo hoặc mở mới một cơ sở khám chữa bệnh.
Bước vào bên trong, khu vực lễ tân được xem là “bộ mặt” chính của phòng khám, nơi ghi dấu ấn đầu tiên với khách hàng. Không gian được thiết kế với quầy lễ tân màu xanh pastel kết hợp các đường viền vàng nhạt, tạo cảm giác tươi mới và dễ chịu. Logo thương hiệu được đặt ở trung tâm bức tường phía sau quầy, với ánh sáng hắt nhẹ tạo hiệu ứng sang trọng mà không quá phô trương.
.jpg)
Phía trước quầy là khu vực chờ dành cho phụ huynh và trẻ nhỏ. Bộ sofa dài màu xám sáng cùng bàn tròn chân kim loại vàng mang lại cảm giác hiện đại, chỉn chu. Điểm đặc biệt là các chi tiết trang trí tường như hình máy bay, khinh khí cầu và mây trắng giúp không gian trở nên vui tươi, giảm bớt tâm lý lo lắng thường gặp ở trẻ khi đến khám bệnh.
Ánh sáng tự nhiên kết hợp cùng hệ thống đèn âm trần giúp khu vực lễ tân luôn sáng sủa, sạch sẽ, tạo ấn tượng chuyên nghiệp và ấm áp cho toàn bộ không gian.
.jpg)
Hành lang kết nối giữa các khu vực trong phòng khám được thiết kế rộng, lát gạch bóng sáng để tăng cảm giác không gian. Hai bên tường được trang trí bằng những hình vẽ đáng yêu như hươu cao cổ đo chiều cao hoặc họa tiết mây trời, giúp trẻ cảm thấy thích thú khi di chuyển trong phòng khám.
Hệ thống cửa sổ dọc hành lang sử dụng rèm cuốn hai lớp hiện đại, cho phép điều chỉnh ánh sáng linh hoạt trong suốt cả ngày. Dọc theo lối đi, các chậu cây xanh được bố trí khéo léo nhằm tăng tính thẩm mỹ và giúp không gian trở nên dễ chịu hơn. Từng chi tiết nhỏ đều được chú trọng để mang lại cảm giác nhẹ nhàng, tươi sáng, tạo nên một hành lang không chỉ là lối đi mà còn là phần quan trọng trong tổng thể trải nghiệm của khách hàng.
Khu vực khám bệnh được bố trí hợp lý, đảm bảo công năng và quy trình làm việc của bác sĩ. Nội thất trong phòng được sắp xếp gọn gàng với bàn làm việc, ghế xoay, tủ thiết bị và ghế khám hiện đại. Màu sắc chủ đạo vẫn là tông trắng kết hợp ghi sáng, giúp không gian luôn sạch sẽ và chuyên nghiệp.
.jpg)
Một điểm nổi bật trong thiết kế là mảng tường lớn phía sau bàn khám được trang trí bằng hình ảnh phi hành gia và tàu vũ trụ, tạo cảm giác sinh động và kích thích trí tưởng tượng của trẻ nhỏ. Nhờ cách phối hợp màu sắc nhẹ nhàng, các chi tiết trang trí không làm rối mắt mà ngược lại còn khiến không gian trở nên gần gũi, giúp bé giảm căng thẳng khi thăm khám.
.jpg)
Hai bức tranh treo tường mang chủ đề động vật tự nhiên vừa là điểm nhấn trang trí, vừa tạo nên cảm giác ấm áp cho căn phòng. Thiết kế này thể hiện rõ định hướng của chủ đầu tư khi mong muốn mang đến cho bệnh nhân nhí một trải nghiệm khám bệnh nhẹ nhàng, vui vẻ hơn.
Phòng khám nhi Tâm An tận dụng tối đa ánh sáng tự nhiên thông qua hệ thống cửa sổ lớn và vách kính ngăn. Nhờ vậy, không gian luôn tràn ngập ánh sáng dịu nhẹ, giúp giảm tiêu thụ điện năng đồng thời tạo cảm giác thoáng mát, sạch sẽ.
.jpg)
Hệ thống đèn LED âm trần được bố trí hợp lý để đảm bảo đủ độ sáng cho mọi khu vực, đặc biệt là tại quầy lễ tân và bàn khám. Ngoài ra, việc lắp đặt quạt trần kết hợp điều hòa giúp không khí được lưu thông tốt hơn, đảm bảo môi trường thoáng mát quanh năm. Đây là một yếu tố quan trọng đối với những phòng khám có lưu lượng khách ra vào thường xuyên.
Không gian phòng khám sử dụng bảng màu gồm trắng, xanh pastel và ghi sáng mang đặc trưng của sự sạch sẽ, tin cậy và thân thiện. Màu xanh nhạt không chỉ giúp giảm bớt căng thẳng mà còn kích thích cảm giác an toàn, phù hợp với tâm lý trẻ em.
Về chất liệu, nhóm thiết kế ưu tiên sử dụng các vật liệu dễ lau chùi, chống bám bẩn như sơn tường chống khuẩn, gạch lát bóng, kính cường lực và inox mạ vàng. Nhờ vậy, phòng khám không chỉ duy trì được vẻ đẹp thẩm mỹ mà còn đảm bảo yếu tố vệ sinh.
Sự phối hợp giữa vật liệu và màu sắc được thực hiện tinh tế, giúp không gian vừa hiện đại vừa ấm cúng. Đây cũng là một trong những yếu tố khiến dự án được đánh giá cao về mặt thiết kế.
Không chỉ dừng lại ở việc cải thiện thẩm mỹ, dự án thiết kế phòng khám nhi Tâm An còn mang lại giá trị thực tế trong vận hành. Bố cục hợp lý giúp quy trình tiếp đón, khám chữa bệnh diễn ra thuận tiện, tiết kiệm thời gian cho cả bác sĩ và bệnh nhân.
Không gian được tối ưu ánh sáng và thông gió tự nhiên, giúp tiết kiệm điện năng trong khi vẫn đảm bảo sự thoải mái. Đặc biệt, cách bố trí khu vực chờ và trang trí tường sáng tạo giúp giảm tâm lý sợ hãi ở trẻ nhỏ.
Với sự kết hợp hài hòa giữa yếu tố thẩm mỹ và công năng, phòng khám nhi Tâm An không chỉ là nơi khám chữa bệnh, mà còn là không gian chăm sóc sức khỏe tràn đầy yêu thương.
Dự án thiết kế phòng khám nhi Tâm An tại Đông Anh, Hà Nội là sự đầu tư nghiêm túc trong việc tạo dựng hình ảnh chuyên nghiệp của cơ sở y tế dành cho trẻ nhỏ. Với diện tích chỉ 69m2 nhưng được khai thác tối đa công năng, kết hợp màu sắc nhẹ nhàng, cách bố trí khoa học, công trình đã mang lại một không gian khám chữa bệnh hiện đại, đầy tính nhân văn. Đây chính là hướng đi phù hợp cho các chủ đầu tư đang có nhu cầu cải tạo hoặc xây mới phòng khám.







A. PenViet có hệ thống chi nhánh văn phòng và xưởng sản xuất ở nhiều nơi trên toàn quốc, nên giá thành sản phẩm là giá xuất xưởng, cạnh tranh nhằm đảm bảo chất lượng và dịch vụ phục vụ Khách hàng tốt nhất.
A: PenViet cung cấp dịch vụ tới mọi thành phần kinh tế, chúng tôi cung cấp dịch vụ thiết kế, thi công và bán lẻ các mặt hàng nội thất.
- Với các sản phẩm khách hàng đã có bản vẽ 2D hoặc 3D: PenViet sẽ phân tích bản vẽ và báo giá cạnh tranh.
- Với các sản phẩm cần thiết kế chi tiết: PenViet sẽ báo giá từ thiết kế đến thi công.
- Với những khách hàng mua hàng có sẵn với số lượng lớn: vui lòng liên hệ để nhận báo giá cạnh tranh.
- Đối với các Showroom có diện tích trưng bày sản phẩm rộng lớn: PenViet có khung giá phù hợp với ngân sách của khách hàng.