Tổng quan
Thiết kế phòng khám mắt và showroom kính mắt Dr. Cường
Chủ đầu tư: A. Cường
Địa chỉ: Nghệ An
Diện tích: 200m2
Phong cách thiết kế : hiện đại
Hạng mục:
- Thiết kế mặt tiền
- Thiết kế nội thất phòng trưng bày mắt kính
- Thiết kế phòng khám mắt
Hiện trạng phòng khám và showroom kính mắt Dr.Cường
Hiện trạng mặt bằng showroom còn thô sơ từ mặt tiền cho đến không gian bên trong. Để mang đến một showroom kính mắt được hoàn hảo, các kiến trúc sư tư vấn cho khách hàng tiến hành cải tạo toàn diện.



Ý tưởng thiết kế phòng khám mắt và showroom kính mắt Dr. Cường
Sở hữu một bằng thô khá rộng lên tới 200m2, mặt tiền khá rộng, thiết kế showroom kính mắt Dr Cường được phân làm 2 giai đoạn cải tạo bao gồm cải tạo mặt tiền và cải tạo nội thất.
Với mục tiêu nâng tầm thương hiệu và phù hợp mức đầu tư của khách hàng, chủ đầu tư mong muốn lựa chọn phong cách hiện đại nhưng không kém phần sang trọng với những gam màu trắng và xanh nổi bật.
Đồ nội thất được sử dụng trong thiết kế showroom kính mắt Dr. Cường chủ yếu với chất liệu gỗ công nghiệp được gia công kỹ càng, thiết kế vững chức với đường nét hiện đại, vuông vức.
Chi tiết thiết kế phòng khám mắt và showroom kính mắt Dr. Cường
Thiết kế mặt tiền showroom kính mắt Dr. Cường
Showroom kính mắt mặt tiền khá rộng rãi, chính vì vậy chủ đầu tư mong muốn thiết kế tỉ mỉ để phù hợp với không gian showroom bên trong. Lựa chọn gam màu xanh làm chủ đạo, kết hợp các điểm nhấn màu trắng đã mang tới sự nổi bật cho dự án.


Phong cách setup mặt tiền đơn giản nhưng vẫn nổi bật bộ nhận diện thương hiệu và cung cấp đầy đủ đến khách hàng những thông tin về showroom và dịch vụ thăm khám mắt. Bên cạnh đó, hệ thống cửa ra vào được sử dụng kính cường lực vừa tạo không gian mở cho tiệm cũng như thu hút khách hàng đi đường.

Thiết kế nội thất phòng khám mắt và showroom kính mắt Dr. Cường
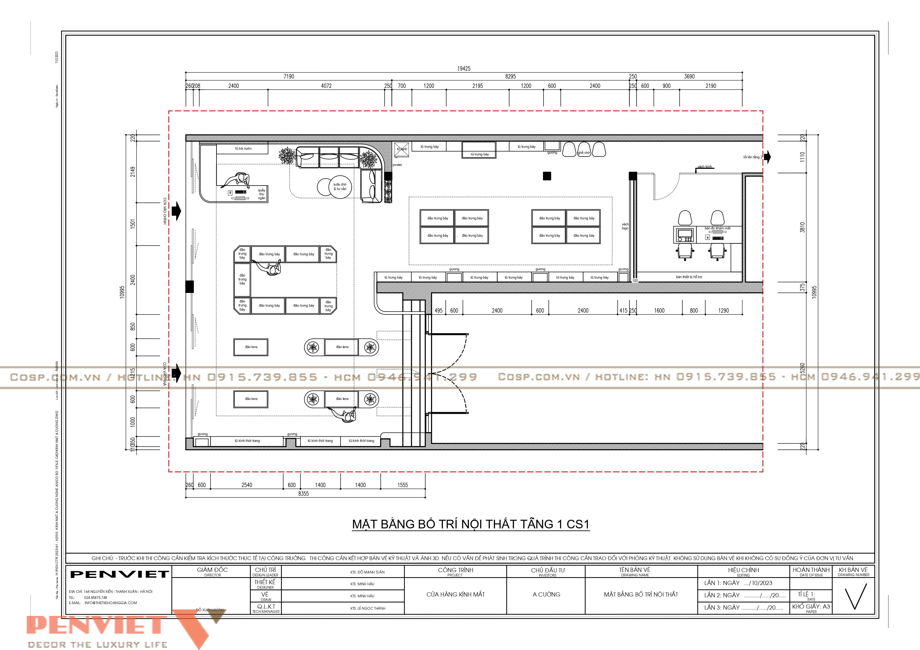
Thiết kế showroom kính mắt được KTS đưa ra phương án bố trí mặt bằng công năng vô cùng hợp lý. Mặt bằng 200m2 được bố trí đầy đủ khu vực lễ tân, trưng bày mắt kính và phòng khám mắt. Phương án bố trí nội thất đã chiếm được sự hài lòng tuyệt đối từ chủ đầu tư.

Thiết kế khu vực lễ tân showroom kính mắt Dr. Cường
Khu vực lế tân trong mẫu thiết kế showoom kính mắt được bố trí cạnh cửa ra vào để tiện đón tiếp khách hàng ngay từ đầu. Tại đây, chúng tôi setup khu vực quầy lễ tân và khu vực sofa tư vấn và chờ đợi.


Quầy lễ tân được thiết kế đơn giản với gỗ MDF chống ẩm phủ sơn cao cấp chống trầy xước, kết hợp màu sắc trắng xanh ấn tượng.

Không gian tư vấn cho khách hàng sử dụng bộ sofa nỉ mềm mại cao cấp với khung gỗ đã giúp showroom trở nên chuyên nghiệp trong mắt khách hàng. Kiến trúc sư sắp đặt khu vực này đối diện khu trưng bày sản phẩm, giúp khách hàng có thể nghỉ ngơi, ngắm nhìn thêm các sản phẩm kính mắt được trưng bày.


Để tăng độ nhận diện thương hiệu và có thể tạo dấu ấn sâu đậm trong lòng khách hàng, Penviet đã setup vách logo thương hiệu ngay phía sau khu vực tư vấn. Khu vực này trở nên nổi bật với việc sử dụng bộ nhận diện thương hiệu bằng mica tạo sự đẳng cấp và sang trọng.

Thiết kế khu vực trưng bày kính mắt Dr.Cường
Thiết kế khu vực trưng bày sản phẩm kính mắt, chúng tôi bố trí các hệ tủ quầy kệ đa dạng bao gồm giữa nhà và sát tường nhằm tận dụng tối đa không gian trưng bày và mang đến sự sinh động cho không gian.




Các tủ kính giữa nhà có chiều cao vừa với tầm mắt của khách hàng, tích hợp đèn led để làm nổi bật giá trị thẩm mỹ của sản phẩm. Penviet còn khéo léo tích hợp logo thương hiệu mặt trước của tủ để tăng độ nhận diện thương hiệu.






Các kệ cao sát tường được đặt sát tường vừa tận dụng tốt không gian vừa tạo lối đi lại rộng thoáng cho khách hàng tham quan, lựa chọn sản phẩm. Một số loại kính cao cấp như burberry, Lacoste, Pull & Bear…. được thiết kế tủ trưng bày riêng để chủ đầu tư dễ phân loại, khách hàng dễ dàng tìm kiếm.





Chất liệu làm tủ và kệ được lựa chon kỹ càng. Tất cả hệ tủ đều được thiết kế đồng điệu về kiểu dáng hiện đại và chất liệu gỗ công nghiệp cao cấp kết hợp kính cường lực. Các chi tiết nhỏ như đèn led, tay nắm,khay nhỏ trong tủ đều được chăm chút tỉ mỉ mang đến sự hoàn hảo cho mẫu thiết kế showroom kính mắt này.




Hệ thống ánh sáng nhân tạo trong cửa hàng được tạo nên từ sự lựa chọn đa dạng về chủng loại, thiết kế, cũng như màu sắc việc của các loại đèn phù hợp với phong cách thiết kế showroom kính mắt. Phối hợp tinh tế giữa màu sắc chủ đạo và ánh sáng đã góp phần tăng sức hấp dẫn của sản phẩm, góp phần mang lại hiệu quả kinh doanh cao cho cửa hàng.







Thiết kế phòng khám mắt
Phòng khám mắt được thiết kế khép kín với đầy đủ trang thiết bị máy móc và nội thất hiện đại đảm bảo quá trình thăm khám diễn ra thuận lợi.


Nội thất phòng khám mắt được bố trí bàn làm việc của bác sĩ và tủ tài liệu bằng gỗ MDF cao cấp, chống chầy xước, ẩm mốc để không gian luôn sạch sẽ và tươi mới.


Q: PenViet có nhận thiết kế và thi công trọn gói không hay chỉ chuyên về thiết kế?
A: PenViet nhận thiết kế và thi công trọn gói trên toàn quốc. Các văn phòng, chi nhánh của PenViet được đặt tại nhiều địa điểm nhằm cung cấp các dịch vụ không chỉ tại các trung tâm của cả nước mà còn phục vụ tới cả vùng biên giới, hải đảo xa xôi.
Q: Thời gian thiết kế và thi công bao lâu thì xong?
A: Vâng, đây là yếu tố được nhiều khách hàng quan tâm khi chuẩn bị thiết kế và thi công nội thất. Với những diện tích nhỏ thì thời gian thi công nhanh. Cụ thể như sau:
- Diện tích <100m2:
+ Thời gian thiết kế: từ 5 đến 7 ngày
+ Thời gian thi công: 10 đến 12 ngày
(Áp dụng trên toàn quốc)
- Diện tích >100m2:
+ Thời gian thiết kế: từ 7 đến 10 ngày
+ Thời gian thi công: 10 đến 15 ngày
(Áp dụng trên toàn quốc)
- Diện tích >500m2: Quý khách vui lòng liên hệ trực tiếp để biết thời gian thiết kế và thi công cụ thể.
Q: Giá thi công của PenViet cao hay thấp?
A. PenViet có hệ thống chi nhánh văn phòng và xưởng sản xuất ở nhiều nơi trên toàn quốc, nên giá thành sản phẩm là giá xuất xưởng, cạnh tranh nhằm đảm bảo chất lượng và dịch vụ phục vụ Khách hàng tốt nhất.
Q: PenViet thiết kế và thi công nội thất như thế nào?
A: PenViet cung cấp dịch vụ tới mọi thành phần kinh tế, chúng tôi cung cấp dịch vụ thiết kế, thi công và bán lẻ các mặt hàng nội thất.
- Với các sản phẩm khách hàng đã có bản vẽ 2D hoặc 3D: PenViet sẽ phân tích bản vẽ và báo giá cạnh tranh.
- Với các sản phẩm cần thiết kế chi tiết: PenViet sẽ báo giá từ thiết kế đến thi công.
- Với những khách hàng mua hàng có sẵn với số lượng lớn: vui lòng liên hệ để nhận báo giá cạnh tranh.
- Đối với các Showroom có diện tích trưng bày sản phẩm rộng lớn: PenViet có khung giá phù hợp với ngân sách của khách hàng.
Q: Khách hàng ở xa thì PenViet có nhận thiết kế và thi công không?
Q: PenViet nhận thiết kế và thi công trên toàn quốc. Ngoài ra, chúng tôi còn xuất khẩu cả sang thị trường nước ngoài.
Q: Chế độ bảo hành và bảo trì của PenViet thế nào?
A: Hầu hết các sản phẩm của PenViet được bảo hành từ 1 đến 2 năm (tùy chủng loại) và bảo trì vĩnh viễn (có tính phí khi thực hiện bảo trì).