Dự án thiết kế phòng khám sản của bác sĩ Trang tại Bản Mo, Phù Yên, Sơn La là phương án tối ưu hóa không gian nhỏ. Đặc biệt cách bố trí nội thất mang lại cảm giác nhẹ nhàng, tinh tế nhưng vẫn đảm bảo đầy đủ công năng.
Hiện trạng trước thiết kế
.jpg)
.jpg)
.jpg)
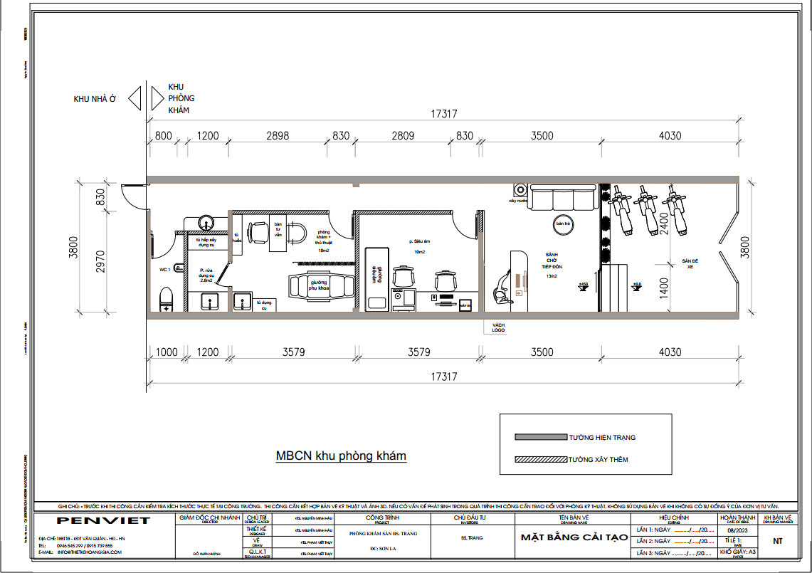
Mặt bằng công năng
.png)
Phòng khám sản được thiết kế trên diện tích 50m2, với mục tiêu tạo nên một không gian sạch sẽ, gọn gàng và dễ chịu cho mẹ bầu trong quá trình thăm khám. Đội ngũ thiết kế tập trung vào việc bố trí khoa học, sử dụng màu sắc nhẹ nhàng và ánh sáng tự nhiên, giúp mang đến cảm giác thư thái, giảm bớt lo lắng cho bệnh nhân.
Không gian được chia bố cục hợp lý, với các khu vực chức năng rõ ràng: khu làm việc của bác sĩ, khu thăm khám, giường bệnh và khu vực đặt máy siêu âm. Mọi chi tiết đều được tính toán để tạo nên sự liền mạch và thuận tiện trong quá trình sử dụng.
.jpg)
Thông tin dự án
Chủ đầu tư: Lý Thị Hiền Trang
Địa điểm: Bản Mo, Phù Yên, Sơn La
Diện tích : 50m2
Nội dung: Thiết kế phòng khám sản
Với diện tích khiêm tốn 50m2, việc sắp xếp các khu vực chức năng là yếu tố quyết định đến trải nghiệm của người dùng. Bàn làm việc, máy tính, máy in được bố trí sát tường, tận dụng tối đa chiều dài phòng để giữ không gian trung tâm thông thoáng.
.jpg)
.jpg)
Khu vực giường bệnh được đặt cạnh máy siêu âm, giúp quá trình thăm khám diễn ra thuận tiện, đảm bảo khoảng cách di chuyển ngắn giữa các thiết bị. Đồng thời, ghế xoay và bàn khám được lựa chọn với kích thước vừa vặn, giúp tối ưu diện tích mà vẫn tạo cảm giác thoải mái khi sử dụng.
Việc sử dụng vách ngăn kính mờ giúp phân tách nhẹ nhàng giữa các khu vực mà không gây cảm giác chật chội. Giải pháp này không chỉ giúp giữ được sự riêng tư cần thiết mà còn làm tăng tính thẩm mỹ cho toàn bộ phòng khám.
.jpg)
Tông màu chủ đạo của phòng khám là trắng và hồng pastel, mang lại cảm giác nhẹ nhàng, tinh tế và gần gũi. Màu hồng nhạt được sử dụng như một điểm nhấn, vừa tạo sự ấm áp vừa mang tính nhận diện đặc trưng cho phòng khám sản.
.jpg)
Ánh sáng trong phòng được xử lý kỹ lưỡng, với hệ thống đèn trần âm trần ánh sáng trắng dịu, giúp không gian luôn sáng rõ, sạch sẽ và dễ chịu cho mắt. Sự kết hợp giữa ánh sáng nhân tạo và tông màu nhẹ giúp tạo nên một không gian vừa hiện đại, vừa thân thiện, phù hợp với tâm lý bệnh nhân nữ.
Ngoài ra, trên tường những bức tranh trang trí đơn giản với hình ảnh mẹ và bé được sắp đặt khéo léo. Nhờ đó giúp không gian trở nên mềm mại, giàu cảm xúc mà vẫn giữ được nét chuyên nghiệp vốn có của phòng khám.
.jpg)
Mỗi món nội thất trong phòng khám đều được chọn lựa kỹ để phù hợp với công năng và phong cách tổng thể. Bàn làm việc thiết kế đơn giản, có nhiều ngăn kéo lưu trữ giúp bác sĩ dễ dàng sắp xếp hồ sơ và dụng cụ y tế.
.jpg)
.jpg)
Giường bệnh được bố trí gọn gàng, có tay vịn an toàn, bọc nệm êm với tông hồng nhẹ tạo sự thoải mái cho bệnh nhân. Ghế bác sĩ và ghế bệnh nhân được chọn loại có thể xoay, điều chỉnh độ cao linh hoạt, phù hợp cho quá trình thăm khám.
.jpg)
Đặc biệt, thiết bị siêu âm hiện đại được đặt ở vị trí trung tâm, thuận tiện cho thao tác chuyên môn. Khu vực đặt thiết bị này được bố trí cạnh tường để đảm bảo kết nối điện và đường dây gọn gàng, không gây vướng víu trong quá trình sử dụng.
Thiết kế phòng khám sản không chỉ là bài toán về thẩm mỹ mà còn là sự kết hợp hài hòa giữa công năng và cảm xúc. Trong không gian giới hạn, đội ngũ thiết kế đã chú trọng từng chi tiết nhỏ, từ hướng ánh sáng, cách bố trí bàn ghế đến màu sắc của chăn ga, tạo nên một tổng thể hài hòa.
.jpg)
.jpg)
Không gian mở, ít chi tiết thừa giúp bệnh nhân cảm thấy thoải mái và tin tưởng hơn khi bước vào. Từng khu vực được bố trí thuận tiện, giúp quy trình thăm khám diễn ra nhanh chóng và an toàn.
Đặc biệt, cách phối màu tinh tế và ánh sáng dịu mắt còn giúp xua tan cảm giác căng thẳng của sản phụ trong quá trình khám thai.
Phòng khám được thiết kế theo tiêu chuẩn an toàn và vệ sinh y tế. Các bề mặt như sàn, tường, bàn làm việc đều dễ lau chùi, chống bám bẩn, đảm bảo môi trường luôn sạch sẽ và an toàn cho bệnh nhân.
.jpg)
Ngoài yếu tố kỹ thuật, tính thẩm mỹ cũng được chăm chút. Những chi tiết bo tròn ở cạnh bàn, giường và ghế vừa đảm bảo an toàn vừa mang lại cảm giác mềm mại, nữ tính. Không gian tuy nhỏ nhưng nhờ cách xử lý tinh tế, phòng khám vẫn toát lên vẻ hiện đại, trang nhã và thân thiện.
.jpg)
Dự án này không chỉ là một không gian thăm khám mà còn thể hiện tầm nhìn của chủ đầu tư chị Lý Thị Hiền Trang trong việc xây dựng thương hiệu phòng khám chuyên nghiệp tại khu vực Phù Yên.
Thiết kế giúp tối ưu chi phí đầu tư, bởi mọi chi tiết đều được tính toán kỹ để vừa tiết kiệm diện tích vừa đảm bảo hiệu quả vận hành. Không gian nhỏ nhưng tinh tế giúp nâng tầm hình ảnh chuyên nghiệp, góp phần thu hút và giữ chân bệnh nhân.
.jpg)
.jpg)
Đây là minh chứng rõ ràng rằng, với một thiết kế hợp lý và đội ngũ chuyên môn cao, mọi không gian dù nhỏ cũng có thể trở nên ấn tượng và tiện nghi.
Dự án thiết kế phòng khám sản bác sĩ Trang tại Phù Yên, Sơn La có không gian 50m2 nhưng đã trở thành nơi khám chữa bệnh hiện đại, chuyên nghiệp. Nếu bạn là chủ đầu tư đang muốn cải tạo hoặc xây mới phòng khám sản, nhi, hay đa khoa hãy liên hệ với chúng tôi ngay hôm nay.







A. PenViet có hệ thống chi nhánh văn phòng và xưởng sản xuất ở nhiều nơi trên toàn quốc, nên giá thành sản phẩm là giá xuất xưởng, cạnh tranh nhằm đảm bảo chất lượng và dịch vụ phục vụ Khách hàng tốt nhất.
A: PenViet cung cấp dịch vụ tới mọi thành phần kinh tế, chúng tôi cung cấp dịch vụ thiết kế, thi công và bán lẻ các mặt hàng nội thất.
- Với các sản phẩm khách hàng đã có bản vẽ 2D hoặc 3D: PenViet sẽ phân tích bản vẽ và báo giá cạnh tranh.
- Với các sản phẩm cần thiết kế chi tiết: PenViet sẽ báo giá từ thiết kế đến thi công.
- Với những khách hàng mua hàng có sẵn với số lượng lớn: vui lòng liên hệ để nhận báo giá cạnh tranh.
- Đối với các Showroom có diện tích trưng bày sản phẩm rộng lớn: PenViet có khung giá phù hợp với ngân sách của khách hàng.