Dự án thiết kế phòng khám sản khoa ung bướu Anh Huy – Bắc Giang có tổng diện tích 100m2. Công trình được đội ngũ thiết kế triển khai theo phong cách hiện đại, tối ưu từng chi tiết nội thất và màu sắc, mang đến hình ảnh chuyên nghiệp, thân thiện và chuẩn y khoa.
1. Tên dự án: Phòng khám sản khoa ung bướu anh Huy - Bắc Giang
2: Chủ đầu tư: Anh Huy
3. Địa chỉ: Hà Nội
4. Diện tích: 100m2
5. Phong cách thiết kế : Hiện đại
Hiện trạng trước thi công
.jpg)
.jpg)
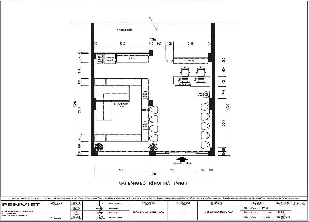
Mặt bằng công năng
.png)
.png)
Chủ đầu tư anh Huy mong muốn cải tạo lại toàn bộ không gian phòng khám sản khoa hiện có, hướng đến một diện mạo mới hiện đại, tinh tế hơn, đồng thời nâng cao tiện ích phục vụ bệnh nhân. Không chỉ đảm bảo công năng của từng khu vực như phòng khám sản, phòng siêu âm, khu tiêm chủng và khu vực chờ, anh còn đặt ra yêu cầu cao về thẩm mỹ, nhận diện thương hiệu và sự thoải mái cho khách hàng khi đến khám.
.jpg)
Với tổng thể 3 tầng chính và 1 tầng lửng, công trình được bố trí lại khoa học:
Tầng 1: Phòng tiêm chủng, khu vực đón tiếp và biển bảng quảng cáo ngoài mặt tiền.
Tầng lửng: Khu vực chờ khám sản rộng thoáng, tích hợp ghế ngồi và khu vui chơi trẻ em.
Tầng 2: Phòng khám và siêu âm sản phụ khoa, khu hành chính nhỏ gọn phía sau.
Đội ngũ thiết kế đã tận dụng toàn bộ diện tích sàn, hướng đến việc cải tạo không gian hiệu quả, vừa đảm bảo quy trình khám chữa bệnh thuận tiện vừa tạo được ấn tượng chuyên nghiệp với khách hàng.
Ngay từ phần mặt tiền, phòng khám sản khoa ung bướu Anh Huy đã tạo được dấu ấn mạnh mẽ. Biển bảng quảng cáo được thiết kế với gam màu trắng, hồng, xanh ngọc, vừa dịu mắt vừa thể hiện sự gần gũi đặc trưng của lĩnh vực y tế sản phụ.
.jpg)
Phần logo thương hiệu được đặt nổi bật ở trung tâm bảng hiệu, kết hợp cùng dòng chữ “Phụ sản & ung bướu” rõ ràng, giúp khách hàng dễ dàng nhận diện ngay từ xa. Chất liệu bảng hiệu sử dụng mica nổi và đèn LED viền, giúp không gian vẫn nổi bật vào buổi tối, đồng thời đảm bảo độ bền và tính thẩm mỹ lâu dài.
Không gian mặt tiền được bố trí kính cường lực trong suốt, tạo cảm giác rộng rãi, sang trọng và hiện đại. Cửa ra vào hai cánh trượt thuận tiện cho người lớn tuổi, phụ nữ mang thai hoặc trẻ nhỏ. Thiết kế bậc tam cấp thấp, có lối lên cho xe đẩy, thể hiện sự tinh tế trong từng chi tiết hướng đến người dùng.
Bước vào tầng 1, không gian được phân chia hợp lý giữa phòng tiêm chủng và khu vực lễ tân. Màu sắc chủ đạo vẫn là hồng pastel kết hợp xanh nhạt, gợi cảm giác nhẹ nhàng, an tâm cho cả trẻ em lẫn người lớn.
.jpg)
.jpg)
.jpg)
Phòng tiêm chủng được thiết kế sáng sủa, thông thoáng, đảm bảo tiêu chuẩn vệ sinh và quy trình y tế. Bề mặt sàn lát gạch men sáng bóng giúp dễ dàng lau chùi, hạn chế vi khuẩn bám dính. Bàn ghế, tủ lưu mẫu, xe tiêm đều được bố trí gọn gàng sát tường để tạo khoảng trống di chuyển.
.jpg)
.jpg)
.jpg)
.jpg)
Khu vực lễ tân đón tiếp khách gây ấn tượng với quầy làm việc nhỏ gọn, bố trí đối diện cửa ra vào. Ngay cạnh đó là khu vui chơi mini cho trẻ em, được thiết kế bằng vật liệu an toàn, bo tròn các góc cạnh. Sự kết hợp này giúp cha mẹ có thể dễ dàng theo dõi con nhỏ trong khi chờ đợi. Từ trần, tường đến nội thất đều được lựa chọn tông màu đồng bộ, tạo nên sự hài hòa tổng thể, vừa đạt thẩm mỹ vừa nâng cao trải nghiệm dịch vụ.
Tầng lửng được thiết kế như một phòng chờ mở rộng, nơi khách hàng có thể nghỉ ngơi, trò chuyện và thư giãn trong khi chờ khám. Không gian này được xem là điểm nhấn nổi bật của toàn bộ dự án, khi mang lại cảm giác ấm cúng, gần gũi nhưng vẫn giữ nét chuyên nghiệp.
.jpg)
.jpg)
.jpg)
Ghế ngồi được bố trí dọc theo hai bên tường, chất liệu da công nghiệp dễ lau chùi, màu hồng phấn dịu nhẹ giúp không gian thêm thân thiện. Xen kẽ giữa các dãy ghế là bàn tròn nhỏ để khách đặt nước hoặc tài liệu.
.jpg)
Phía trước, tường được trang trí bằng logo nổi bật, đi kèm mảng tường xanh ngọc viền trắng mềm mại, gợi liên tưởng đến hình ảnh dịu dàng của người phụ nữ.
Ngoài ra, khu vực chờ được tích hợp thêm cây xanh, quạt trần và máy lọc nước, giúp tạo cảm giác thoải mái và đảm bảo tiện ích cho khách hàng. Ánh sáng trắng dịu, được bố trí đồng đều trên trần thạch cao phẳng, giúp không gian luôn sáng rõ, thân thiện và sạch sẽ.
Lên tầng 2, khu vực phòng khám sản và phòng siêu âm được bố trí song song, giúp bác sĩ và y tá di chuyển linh hoạt trong quá trình làm việc.
.jpg)
.jpg)
.jpg)
.jpg)
Phòng khám chính được thiết kế với tone màu hồng, trắng chủ đạo, nội thất sắp xếp khoa học để đảm bảo luồng di chuyển hợp lý giữa bệnh nhân, bác sĩ và thiết bị y tế. Ghế khám được đặt ở vị trí trung tâm, hướng thẳng ra cửa, giúp bác sĩ dễ thao tác và bệnh nhân cảm thấy an tâm. Mảng tường phía sau ghế được tạo điểm nhấn bằng họa tiết bo tròn mềm mại, vừa thẩm mỹ vừa giúp không gian không bị khô cứng.
Phòng siêu âm được thiết kế liền kề, sử dụng vách kính mờ cách âm, tạo sự riêng tư cho khách hàng. Bên trong, bàn làm việc, máy siêu âm và giường bệnh đều được bố trí theo tiêu chuẩn, đảm bảo khoảng cách thao tác an toàn. Đặc biệt, tường được trang trí bằng hình minh họa sinh học sản khoa tinh tế, giúp bệnh nhân dễ dàng hiểu quy trình khám hơn.
.jpg)
.jpg)
.jpg)
.jpg)
.jpg)
Vật liệu nội thất được lựa chọn tỉ mỉ, từ gạch lát sàn chống trơn, đèn chiếu sáng y khoa, đến thiết bị inox y tế, tất cả đều đáp ứng tiêu chuẩn về an toàn và vệ sinh.
.jpg)
.jpg)
Một trong những điểm mạnh lớn nhất của dự án là cách phối hợp màu sắc và ánh sáng. Đội ngũ thiết kế đã lựa chọn tông pastel nhẹ nhàng làm chủ đạo, kết hợp giữa hồng, trắng và xanh ngọc, tạo nên cảm giác dễ chịu, giảm bớt căng thẳng cho bệnh nhân.
Hệ thống ánh sáng được bố trí đều khắp, chủ yếu là đèn LED âm trần ánh sáng trắng, đảm bảo đủ sáng cho quá trình khám chữa bệnh nhưng không gây chói mắt. Một số khu vực được bổ sung đèn hắt tường, giúp tạo hiệu ứng mềm mại, tăng tính thẩm mỹ cho không gian.
Ngoài ra, ánh sáng tự nhiên cũng được tận dụng tối đa qua các mảng kính lớn ở mặt tiền và cửa sổ phụ, giúp phòng luôn thoáng, giảm phụ thuộc vào điều hòa và tiết kiệm năng lượng.
Với chủ đầu tư đang có nhu cầu cải tạo hoặc mở rộng phòng khám, dự án này mang lại nhiều gợi ý giá trị. Phân tầng chức năng rõ ràng giúp quản lý hiệu quả và thuận tiện trong vận hành. Tận dụng gam màu dịu nhẹ để tạo không khí thân thiện, giảm lo lắng cho bệnh nhân. Thiết kế linh hoạt cho phép mở rộng, điều chỉnh công năng mà không ảnh hưởng kết cấu tổng thể. Tích hợp khu vui chơi trẻ em và khu chờ tiện nghi, tăng trải nghiệm khách hàng, nâng cao hình ảnh thương hiệu.
Dự án phòng khám sản khoa ung bướu Anh Huy – Bắc Giang phối hợp hài hòa giữa màu sắc, ánh sáng, công năng và nhận diện thương hiệu. Đây cũng là gợi ý hoàn hảo dành cho các chủ đầu tư đang tìm giải pháp cải tạo phòng khám.







A. PenViet có hệ thống chi nhánh văn phòng và xưởng sản xuất ở nhiều nơi trên toàn quốc, nên giá thành sản phẩm là giá xuất xưởng, cạnh tranh nhằm đảm bảo chất lượng và dịch vụ phục vụ Khách hàng tốt nhất.
A: PenViet cung cấp dịch vụ tới mọi thành phần kinh tế, chúng tôi cung cấp dịch vụ thiết kế, thi công và bán lẻ các mặt hàng nội thất.
- Với các sản phẩm khách hàng đã có bản vẽ 2D hoặc 3D: PenViet sẽ phân tích bản vẽ và báo giá cạnh tranh.
- Với các sản phẩm cần thiết kế chi tiết: PenViet sẽ báo giá từ thiết kế đến thi công.
- Với những khách hàng mua hàng có sẵn với số lượng lớn: vui lòng liên hệ để nhận báo giá cạnh tranh.
- Đối với các Showroom có diện tích trưng bày sản phẩm rộng lớn: PenViet có khung giá phù hợp với ngân sách của khách hàng.