Phòng khám Thiện Tâm có cách bố trí nội thất hiện đại, tiện nghi tăng giá trị nhận diện thương hiệu. Với hai tầng chức năng riêng biệt, mỗi khu vực đều được bố trí tối ưu để phục vụ các nhu cầu khác nhau, từ bán thuốc và tiếp đón bệnh nhân đến thực hiện các dịch vụ y tế chuyên sâu như khám sản khoa và tai mũi họng. Hãy cùng tìm hiểu chi tiết thiết kế phòng khám Thiện Tâm này qua nội dung dưới đây.
.jpg)
Thiện Tâm nổi bật giữa phố xá với gam màu xanh dương ấn tượng và thu hút người nhìn. Biển bảng quảng cáo khung sắt phủ Alu xanh kích thước lớn với hệ chữ mica màu trắng nổi bật. Trên bảng có đầy đủ thông tin cần thiết về dịch vụ của phòng khám đảm bảo sự uy tín thương hiệu.
.jpg)
Màu trắng và xanh được lựa chọn làm màu chủ đạo xuyên suốt không gian phòng khám, mang đến cảm giác sạch sẽ, chuyên nghiệp. Đây cũng là gam màu thường thấy tại các cơ sở y tế, giúp tạo dựng lòng tin với bệnh nhân.
Hệ thống ánh sáng tự nhiên và nhân tạo được phối hợp hài hòa. Cửa sổ lớn và ánh sáng trắng dịu nhẹ từ đèn LED đảm bảo không gian luôn sáng sủa, thân thiện và dễ chịu.
Các chất liệu được sử dụng chủ yếu là gỗ công nghiệp chống ẩm, kính cường lực và đá nhân tạo. Chúng không chỉ bền đẹp mà còn dễ dàng vệ sinh, rất phù hợp với môi trường y tế.
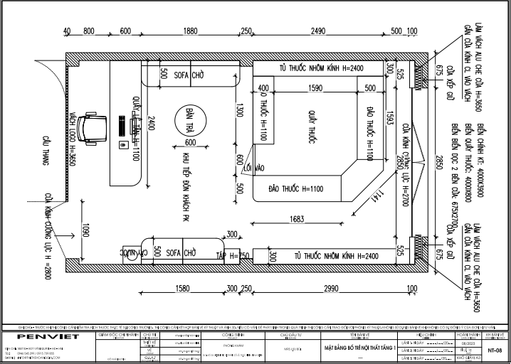
Tầng 1 của phòng khám Thiện Tâm được thiết kế để tối ưu hóa sự tiện lợi và tạo ấn tượng đầu tiên tốt đẹp với khách hàng. Các yếu tố thiết kế chủ đạo khu vực tầng 1 của công trình bao gồm:

Khu vực quầy bán thuốc được bố trí dọc theo hai bên tường với hệ thống kệ tủ cao sát trần. Màu trắng chủ đạo kết hợp với viền xanh lá mang lại cảm giác sạch sẽ, tươi mới và tạo sự tin tưởng cho bệnh nhân. Các tủ trưng bày được làm từ kính trong suốt, giúp dễ dàng quan sát các loại thuốc, sản phẩm chăm sóc sức khỏe và đồng thời tăng tính thẩm mỹ.
.jpg)
.jpg)
Hệ thống chiếu sáng được bố trí hợp lý với ánh sáng trắng dịu nhẹ, không gây chói mắt nhưng vẫn đủ sáng để khách hàng và nhân viên dễ dàng trao đổi và tìm kiếm sản phẩm. Ngoài ra, các ngăn tủ phía dưới được thiết kế có khóa để bảo quản các loại thuốc quan trọng và đặc biệt.
Nằm ngay trung tâm tầng 1, quầy lễ tân được thiết kế nổi bật với logo phòng khám Thiện Tâm được gắn trên bức tường nền ốp đá marble màu trắng vân nhẹ. Logo được chiếu sáng bằng hệ thống đèn LED ẩn, tạo điểm nhấn sang trọng và chuyên nghiệp. Quầy lễ tân được làm từ chất liệu gỗ công nghiệp kết hợp mặt đá, với chiều cao vừa tầm để tạo sự thoải mái khi giao tiếp.
.jpg)
Khu vực lễ tân còn được bố trí một bộ bàn ghế chờ cho bệnh nhân và người nhà, với ghế bọc nệm êm ái và bàn nhỏ để tiện đặt tài liệu, nước uống. Sắc xanh nhạt được sử dụng để trang trí không gian, đồng bộ với phong cách tổng thể.
.jpg)
.jpg)
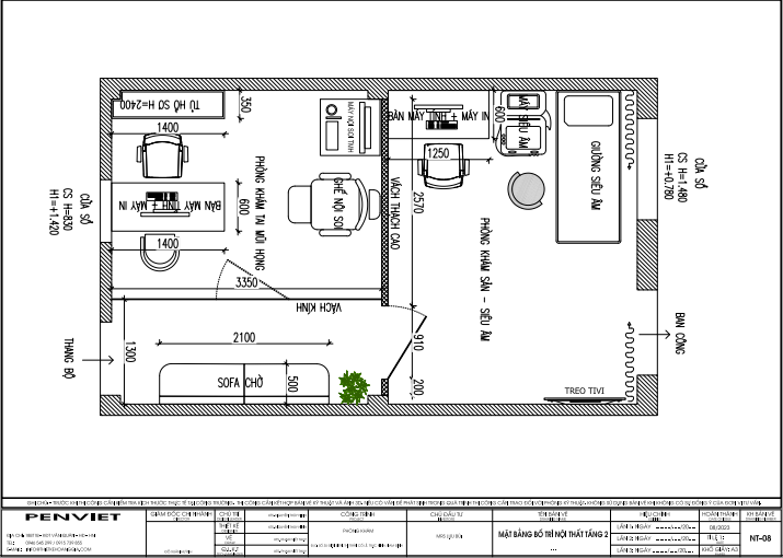
Tầng 2 là khu vực chuyên môn, nơi các dịch vụ khám và điều trị được thực hiện. Thiết kế tại đây tập trung vào tính tiện nghi, riêng tư và sạch sẽ, đồng thời đảm bảo tính thẩm mỹ.

Phòng khám sản khoa được thiết kế rộng rãi và thoáng đãng với ánh sáng tự nhiên được tận dụng tối đa nhờ hệ thống cửa sổ lớn. Rèm cửa hai lớp giúp điều chỉnh ánh sáng linh hoạt, tạo không gian riêng tư khi cần thiết..jpg)
Trang thiết bị trong phòng được sắp xếp gọn gàng, bao gồm một giường khám sản cao cấp với thiết kế tiện nghi, máy siêu âm hiện đại, và bàn làm việc cho bác sĩ. Màu sắc trong phòng kết hợp giữa xanh lá và trắng, mang đến cảm giác dịu mát, thư giãn cho bệnh nhân. Các chi tiết như tranh treo tường cung cấp các thông tin y tế cần thiết được bố trí hợp lý, giúp tăng thêm sự chuyên nghiệp.
.jpg)
Phòng khám tai mũi họng được thiết kế với không gian tối ưu hóa cho các hoạt động kiểm tra, chẩn đoán và điều trị. Hệ thống máy móc như máy nội soi tai mũi họng được bố trí cạnh giường bệnh, trong khi bàn làm việc của bác sĩ được đặt ngay cạnh, thuận tiện cho việc lưu trữ và tra cứu hồ sơ bệnh nhân.
.jpg)
.jpg)
Phòng khám Thiện Tâm là sự kết hợp hoàn hảo giữa thiết kế hiện đại, tiện nghi và chuyên nghiệp. Từ tầng 1 với quầy bán thuốc và sảnh lễ tân, đến tầng 2 với các phòng khám chuyên khoa, mọi chi tiết đều được chăm chút để mang lại trải nghiệm tốt nhất cho bệnh nhân. Đây chính là không gian lý tưởng cho cả việc chăm sóc sức khỏe và nâng cao sự hài lòng của khách hàng. Hãy liên hệ PenViet ngay hôm nay để được tư vấn kỹ hơn về các phương án thiết kế không gian khác.







A. PenViet có hệ thống chi nhánh văn phòng và xưởng sản xuất ở nhiều nơi trên toàn quốc, nên giá thành sản phẩm là giá xuất xưởng, cạnh tranh nhằm đảm bảo chất lượng và dịch vụ phục vụ Khách hàng tốt nhất.
A: PenViet cung cấp dịch vụ tới mọi thành phần kinh tế, chúng tôi cung cấp dịch vụ thiết kế, thi công và bán lẻ các mặt hàng nội thất.
- Với các sản phẩm khách hàng đã có bản vẽ 2D hoặc 3D: PenViet sẽ phân tích bản vẽ và báo giá cạnh tranh.
- Với các sản phẩm cần thiết kế chi tiết: PenViet sẽ báo giá từ thiết kế đến thi công.
- Với những khách hàng mua hàng có sẵn với số lượng lớn: vui lòng liên hệ để nhận báo giá cạnh tranh.
- Đối với các Showroom có diện tích trưng bày sản phẩm rộng lớn: PenViet có khung giá phù hợp với ngân sách của khách hàng.