Tiệm vàng Xuyến Ngọc tại Hà Tĩnh được cải tạo để phù hợp với nhu cầu vận hành hiện đại, nâng cao hình ảnh thương hiệu. Không gian mới mang phong cách Luxury với gam màu đỏ, vàng đặc trưng, hệ nội thất sang trọng và cách tổ chức công năng khoa học. Dự án thiết kế tiệm vàng Xuyến Ngọc hướng đến những chủ đầu tư đang tìm giải pháp cải tạo cửa hàng theo tiêu chuẩn chuyên nghiệp và bền vững.
Hiện trạng trước thiết kế
.jpg)
.jpg)
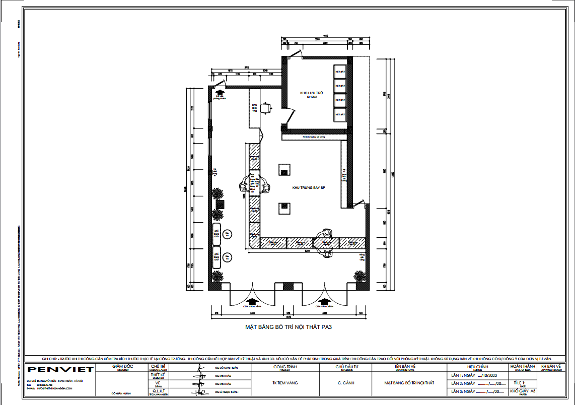
Mặt bằng công năng
.png)
Tiệm vàng Xuyến Ngọc hoạt động lâu năm tại Hà Tĩnh, sở hữu lượng khách hàng ổn định và uy tín lớn tại khu vực. Tuy nhiên, không gian cũ bắt đầu lạc nhịp so với xu hướng hiện đại, khiến trải nghiệm trưng bày và mua sắm chưa thực sự nổi bật.
.jpg)
Chủ đầu tư mong muốn nâng cấp toàn bộ diện mạo theo phong cách Luxury, tạo sự khác biệt, tăng tính nhận diện và cải thiện công năng vận hành. Không gian cần thể hiện rõ giá trị thương hiệu, đồng thời tối ưu hành trình khách hàng từ lúc bước vào đến khi giao dịch. Dự án được triển khai trên diện tích 88m2, đủ để tạo một layout khoa học và đồng bộ.
Thông tin dự án
1. Tên dự án: tiệm vàng Xuyến Ngọc
2: Chủ đầu tư: anh Đặng Hồng Anh
3. Địa chỉ: Hà Tĩnh
4. Diện tích: 88m2
5. Phong cách thiết kế : Luxury
.jpg)
Mặt tiền tiệm vàng là nơi tạo ấn tượng nhanh nhất với khách vãng lai, vì vậy thiết kế được xử lý đầy mạnh mẽ và chỉn chu. Hình ảnh cho thấy lớp mặt tiền đỏ chủ đạo kết hợp bảng hiệu lớn giúp thu hút ngay từ xa.
Logo Xuyến Ngọc đặt ở vị trí trung tâm giúp tăng nhận diện thương hiệu. Hệ thống đèn chiếu sáng được bố trí đều phía trên, làm bảng hiệu nổi bật cả ngày lẫn đêm. Màu sắc mặt tiền phù hợp với mảng kinh doanh vàng bạc, mang đến cảm giác uy tín và thịnh vượng.
Bước vào bên trong, khách hàng dễ dàng cảm nhận tinh thần Luxury thông qua cách phối màu và lựa chọn vật liệu. Sàn đá bóng sáng, trần trắng và hệ vách đỏ làm nổi bật toàn bộ khu vực trưng bày.
.jpg)
Nội thất được thiết kế theo tông kem nhã nhặn kết hợp viền vàng ánh kim. Đây là yếu tố giúp thể hiện sự đẳng cấp đặc trưng của ngành trang sức. Hệ tủ và quầy được bố trí theo đường thẳng, tạo nên không gian gọn gàng và dễ quan sát. Sự đồng bộ màu sắc giúp tiệm vàng nổi bật nhưng vẫn tinh tế.
Trong hình ảnh, hệ quầy trưng bày chiếm phần lớn diện tích và được thiết kế đồng bộ. Mỗi quầy đều có mặt kính cường lực trong suốt, khung kim loại mạ vàng và khay trưng bày dạng mô-đun dễ thay đổi. Thiết kế này giúp nhân viên thao tác nhanh, đồng thời tôn lên vẻ đẹp của từng mặt hàng.
.jpg)
Chiều cao quầy phù hợp với tầm nhìn của khách, giúp việc chọn sản phẩm diễn ra dễ dàng. Các góc cạnh được bo mềm, đảm bảo an toàn trong quá trình vận hành. Điều này rất phù hợp cho các chủ đầu tư muốn cải tạo không gian theo tiêu chuẩn hiện đại mà vẫn giữ được tính sang trọng.
.jpg)
Ánh sáng là yếu tố quan trọng nhất trong một tiệm vàng. Dự án sử dụng ánh sáng trắng cao cấp, phân bổ đều từ trần đến từng quầy trưng bày. Mục tiêu là làm nổi bật độ sáng của kim loại và đá quý.
Hệ thống đèn rọi tường kết hợp đèn downlight giúp không gian thêm lung linh. Màu sắc ánh sáng không thay đổi sắc độ của vàng, đảm bảo khách quan khi khách lựa sản phẩm. Cách bố trí ánh sáng khoa học giúp không gian sáng rộng hơn 88m2 thực tế.
.jpg)
Khu vực backdrop sử dụng nền trắng kết hợp logo đặt nổi bật ở trung tâm. Đây là khu vực mang tính biểu tượng, giúp khách hàng dễ ghi nhớ thương hiệu. Phông nền trắng tạo sự sang trọng, đồng thời làm nổi bật logo đỏ đặc trưng.
Cách xử lý khung viền ánh kim quanh backdrop giúp đồng bộ hóa phong cách Luxury của toàn cửa hàng. Khu vực này phù hợp đặt ở vị trí dễ nhìn để tăng hiệu quả nhận diện.
.jpg)
Không gian rộng 88m2 được tổ chức hợp lý nhờ cách bố trí quầy theo hình chữ U. Cách sắp xếp này tạo dòng di chuyển tự nhiên cho khách hàng, đồng thời giúp nhân viên quản lý khu vực hiệu quả hơn.
Khoảng cách giữa các lối đi vừa đủ để khách đứng xem sản phẩm thoải mái. Mặt đá sàn bóng sáng giúp không gian trông rộng và sạch sẽ hơn. Đây là giải pháp phù hợp cho những chủ đầu tư muốn tiết kiệm diện tích mà vẫn tạo được sự sang trọng.
.jpg)
Dựa vào hình ảnh, vật liệu chính của dự án gồm đá nhân tạo, kính cường lực, inox mạ vàng và gỗ công nghiệp chuẩn chất lượng. Những chất liệu này có độ bền cao, ít phai màu và dễ lau chùi.
Việc lựa chọn đúng chất liệu giúp tiết kiệm chi phí bảo trì lâu dài. Đồng thời, bề mặt vật liệu bóng sang còn góp phần tôn lên tổng thể Luxury của cửa hàng.
.jpg)
.jpg)
Màu đỏ được sử dụng làm tông chủ đạo, đại diện cho sự may mắn và thịnh vượng trong ngành vàng bạc. Màu đỏ kết hợp ánh kim tạo nên cảm giác quyền quý, đúng tinh thần của thương hiệu.
Cách phối màu này giúp khách hàng dễ nhận ra cửa hàng từ xa, đồng thời khẳng định sự khác biệt của thương hiệu Xuyến Ngọc tại khu vực Hà Tĩnh.
Một tiệm vàng cần đảm bảo an toàn tuyệt đối. Quầy trưng bày của Xuyến Ngọc sử dụng kính cường lực dày, khóa an toàn và bố trí camera tại các góc quan trọng.
Lối ra vào chính có cửa kính cường lực lớn, dễ quan sát từ bên ngoài. Việc bố trí ít góc khuất giúp tránh tình trạng mất kiểm soát không gian. Đây là điểm quan trọng với bất kỳ chủ đầu tư nào đang chuẩn bị cải tạo tiệm vàng.
.jpg)
Không gian đẹp luôn thúc đẩy tỷ lệ chuyển đổi khách hàng. Hình ảnh dự án cho thấy Xuyến Ngọc sở hữu không gian sáng, sang và hiện đại. Khách vào cửa hàng sẽ có cảm giác tin tưởng hơn khi xem sản phẩm.
Nội thất đồng bộ giúp quá trình tư vấn dễ dàng và tăng giá trị cảm xúc. Đây là lý do nhiều chủ đầu tư chọn thiết kế theo phong cách Luxury khi cải tạo tiệm vàng.
Với cách tổ chức công năng hợp lý, mặt tiền nổi bật và không gian Luxury, Xuyến Ngọc là ví dụ điển hình về một mô hình hiệu quả. Chủ đầu tư có thể tham khảo để áp dụng cho cửa hàng của mình, đặc biệt khi cần nâng cao nhận diện và cải thiện chất lượng phục vụ.
Dự án phù hợp với các cửa hàng có diện tích từ 60 đến 100m2. Đây là mức diện tích dễ triển khai các layout trưng bày tương tự.
Mẫu thiết kế tiệm vàng Xuyến Ngọc là minh chứng cho việc cải tạo đúng hướng sẽ mang lại hiệu quả vượt mong đợi. Không gian Luxury sang trọng giúp tăng giá trị thương hiệu, nâng cao trải nghiệm khách hàng và hỗ trợ hoạt động kinh doanh dài hạn. Đây là mô hình phù hợp để chủ đầu tư tham khảo khi muốn nâng tầm cửa hàng vàng bạc theo tiêu chuẩn chuyên nghiệp.







A. PenViet có hệ thống chi nhánh văn phòng và xưởng sản xuất ở nhiều nơi trên toàn quốc, nên giá thành sản phẩm là giá xuất xưởng, cạnh tranh nhằm đảm bảo chất lượng và dịch vụ phục vụ Khách hàng tốt nhất.
A: PenViet cung cấp dịch vụ tới mọi thành phần kinh tế, chúng tôi cung cấp dịch vụ thiết kế, thi công và bán lẻ các mặt hàng nội thất.
- Với các sản phẩm khách hàng đã có bản vẽ 2D hoặc 3D: PenViet sẽ phân tích bản vẽ và báo giá cạnh tranh.
- Với các sản phẩm cần thiết kế chi tiết: PenViet sẽ báo giá từ thiết kế đến thi công.
- Với những khách hàng mua hàng có sẵn với số lượng lớn: vui lòng liên hệ để nhận báo giá cạnh tranh.
- Đối với các Showroom có diện tích trưng bày sản phẩm rộng lớn: PenViet có khung giá phù hợp với ngân sách của khách hàng.