Dự án thiết kế spa anh Bách được triển khai trên diện tích 60m2 là một minh chứng rõ ràng cho tư duy thiết kế hiện đại, tinh tế và tối ưu công năng. Bài viết dưới đây phân tích chuyên sâu các điểm mạnh của phương án thiết kế, hướng đến những chủ đầu tư đang tìm kiếm giải pháp cải tạo spa hiệu quả, bền vững và phù hợp xu hướng.
Hiện trạng trước thiết kế
.jpg)
.jpg)
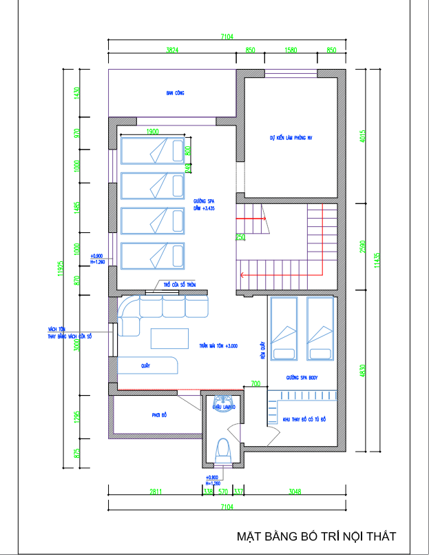
Mặt bằng công năng
.png)
Chủ đầu tư: Anh Bách
Địa điểm : Hà Tĩnh
Diện tích : 60m2
Nội dung : Thiết kế spa
Không gian spa được xây dựng theo phong cách nhẹ nhàng, tập trung vào cảm giác thư giãn và riêng tư. Tổng thể sử dụng gam màu trung tính như kem, be, nâu nhạt giúp không gian trở nên dịu mắt và dễ chịu. Với diện tích 60m2, phương án thiết kế ưu tiên sự thông thoáng, hạn chế chia cắt cứng nhắc. Đây là định hướng phù hợp cho các chủ đầu tư muốn cải tạo spa theo hướng cao cấp nhưng vẫn gần gũi.
.jpg)
Thiết kế không chạy theo xu hướng phô trương mà chú trọng vào trải nghiệm lâu dài của khách hàng. Mỗi khu vực đều được tính toán để mang lại cảm giác cân bằng và yên tĩnh. Điều này giúp spa dễ dàng giữ chân khách hàng trung thành. Với các chủ spa tại khu vực Hà Tĩnh, đây là hướng đi phù hợp với thị hiếu và thói quen tiêu dùng địa phương.
Mặt bằng spa được phân chia rõ ràng giữa khu lễ tân, khu chờ và khu phòng trị liệu. Lối di chuyển được tổ chức mạch lạc, tránh giao thoa giữa khách và nhân viên trong quá trình vận hành. Điều này giúp không gian luôn gọn gàng và chuyên nghiệp trong mắt khách hàng. Đối với chủ đầu tư, đây là yếu tố quan trọng khi cải tạo spa đang hoạt động hoặc nâng cấp mô hình kinh doanh.
Khu vực giường trị liệu được bố trí song song, sử dụng rèm mềm để đảm bảo sự riêng tư nhưng vẫn linh hoạt. Giải pháp này giúp tối ưu diện tích mà không tạo cảm giác chật chội. Nội thất được thiết kế đồng bộ, hạn chế chi tiết rườm rà. Cách tổ chức này phù hợp cho spa chăm sóc da, body và trị liệu chuyên sâu.
.jpg)
Khu lễ tân được thiết kế gọn gàng với quầy tiếp đón bo cong mềm mại, tạo cảm giác thân thiện ngay khi khách bước vào. Ánh sáng gián tiếp kết hợp hình khối kiến trúc cong giúp không gian trở nên sang trọng nhưng không nặng nề. Đây là khu vực đóng vai trò quan trọng trong việc xây dựng hình ảnh thương hiệu spa. Chủ đầu tư có thể dễ dàng tạo thiện cảm và sự tin tưởng từ khách hàng mới.
.jpg)
.jpg)
Không gian chờ được bố trí sofa dài áp tường, kết hợp bàn trà nhỏ, tạo sự thoải mái trong thời gian chờ dịch vụ. Cách sắp xếp này giúp tận dụng diện tích hiệu quả mà vẫn giữ được sự thông thoáng. Đối với các spa cải tạo từ nhà ở, giải pháp này đặc biệt phù hợp. Không gian chờ trở thành điểm cộng lớn trong trải nghiệm tổng thể của khách hàng.
Phòng trị liệu được thiết kế theo hướng tối giản, giảm thiểu tiếng ồn và kích thích thị giác. Hệ rèm mềm kết hợp ánh sáng dịu giúp khách hàng dễ dàng thả lỏng tinh thần. Giường spa được bố trí khoa học, đảm bảo khoảng cách cần thiết cho thao tác của kỹ thuật viên. Đây là yếu tố then chốt giúp nâng cao chất lượng dịch vụ.
.jpg)
Vật liệu sử dụng trong phòng trị liệu ưu tiên bề mặt mềm, màu sắc ấm áp và dễ vệ sinh. Ánh sáng trần được bố trí đều, tránh gây chói mắt trong quá trình trị liệu. Đối với chủ đầu tư đang cải tạo spa quy mô vừa, đây là giải pháp cân bằng giữa chi phí và hiệu quả sử dụng. Không gian trị liệu trở thành điểm nhấn cốt lõi của toàn bộ dự án.
.jpg)
Dự án spa anh Bách được thiết kế với tư duy linh hoạt, dễ dàng nâng cấp hoặc điều chỉnh theo nhu cầu kinh doanh sau này. Hệ nội thất âm tường và bố cục mở giúp không gian không bị lỗi thời theo thời gian. Đây là lợi thế lớn cho các chủ đầu tư muốn đầu tư lâu dài nhưng vẫn kiểm soát chi phí cải tạo ban đầu. Thiết kế hướng đến tính bền vững trong vận hành.
.jpg)
Việc áp dụng phương án thiết kế đồng bộ giúp quá trình thi công bám sát ý tưởng ban đầu. Chủ đầu tư dễ dàng quản lý chất lượng và tiến độ công trình. Với mô hình spa tại khu vực giải pháp này giúp nâng tầm hình ảnh kinh doanh một cách bài bản.
Phương án cải tạo, thiết kế spa anh Bách kết hợp hài hòa giữa thẩm mỹ, công năng và trải nghiệm khách hàng. Mô hình tham khảo giá trị này thích hợp cho các chủ đầu tư đang tìm kiếm giải pháp cải tạo spa hiệu quả, bền vững và phù hợp xu hướng hiện nay.







A. PenViet có hệ thống chi nhánh văn phòng và xưởng sản xuất ở nhiều nơi trên toàn quốc, nên giá thành sản phẩm là giá xuất xưởng, cạnh tranh nhằm đảm bảo chất lượng và dịch vụ phục vụ Khách hàng tốt nhất.
A: PenViet cung cấp dịch vụ tới mọi thành phần kinh tế, chúng tôi cung cấp dịch vụ thiết kế, thi công và bán lẻ các mặt hàng nội thất.
- Với các sản phẩm khách hàng đã có bản vẽ 2D hoặc 3D: PenViet sẽ phân tích bản vẽ và báo giá cạnh tranh.
- Với các sản phẩm cần thiết kế chi tiết: PenViet sẽ báo giá từ thiết kế đến thi công.
- Với những khách hàng mua hàng có sẵn với số lượng lớn: vui lòng liên hệ để nhận báo giá cạnh tranh.
- Đối với các Showroom có diện tích trưng bày sản phẩm rộng lớn: PenViet có khung giá phù hợp với ngân sách của khách hàng.