Không gian spa nhỏ thường gặp bài toán thiếu diện tích, khó tạo điểm nhấn và dễ gây cảm giác bí bách. Tuy nhiên, dự án thiết kế spa BOTANIC 36m2 của chủ đầu tư Nguyễn Thị Ngân tại Hải Phòng đã chứng minh điều ngược lại. Với tư duy thiết kế tinh gọn, sang trọng và hiệu quả, đội ngũ thiết kế đã biến một mặt bằng hạn chế thành spa chuyên nghiệp, hiện đại và đầy thư thái. Bài viết này sẽ giúp chủ đầu tư đang muốn cải tạo cơ sở spa của mình nhìn rõ những ưu điểm nổi bật trong phương án thiết kế này.
Hiện trạng trước thiết kế
.jpg)
.jpg)
.jpg)
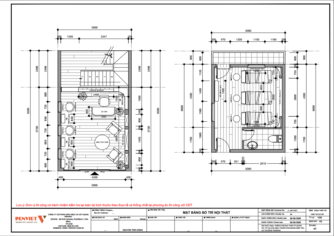
Mặt bằng công năng
.png)
Dự án spa 36m2 được định hướng theo phong cách tối giản, ấm áp và mang dấu ấn tự nhiên. Mục tiêu chính của chủ đầu tư là tạo ra một không gian vừa gọn gàng, vừa sang trọng và đủ đầy công năng cho quá trình vận hành spa.
.jpg)
Nhìn vào hình ảnh có thể thấy thiết kế ưu tiên ánh sáng dịu, màu sắc nhẹ và bố cục sạch sẽ. Không gian được chia hợp lý giữa khu lễ tân, khu trưng bày sản phẩm và khu trị liệu. Dù diện tích không lớn, toàn bộ bố trí đều mang lại cảm giác thoáng, rộng và đảm bảo tương tác khách hàng tốt.
Đây chính là điều mà nhiều chủ đầu tư mong muốn ở một spa hiện đại: đẹp, tinh tế và có điểm nhấn thương hiệu rõ ràng.
Thông tin dự án
Chủ đầu tư: Nguyễn Thị Ngân
Địa chỉ: Hải Phòng
Diện tích: 36m2
Nội dung: Thiết kế spa
Khu vực lễ tân của spa là nơi định hình cảm xúc khách hàng ngay khi bước vào. Thiết kế sử dụng gam màu kem, gỗ làm chủ đạo, mang đến cảm giác ấm áp và cao cấp. Mảng tường logo được tạo hình từ các chi tiết hình tròn lặp lại, vừa độc đáo vừa thu hút ánh nhìn.
.jpg)
Bàn lễ tân thiết kế bo tròn nhẹ, tạo cảm giác mềm mại và thân thiện. Bên cạnh đó, bộ ghế tiếp khách mang dáng hình bầu giúp tăng sự thoải mái. Tông màu sáng khiến khu vực này trở nên rộng mở hơn so với diện tích thực tế.
Kệ trưng bày sản phẩm bố trí hai bên tường, sử dụng dáng cong và ánh sáng gián tiếp. Điều này không chỉ tôn sản phẩm mà còn làm nổi bật phong cách tinh tế của spa. Với những chủ đầu tư muốn nâng cấp hình ảnh spa, cách xử lý chiếu sáng và bố cục trưng bày như thế này rất đáng tham khảo.
Một trong những yếu tố quan trọng trong kinh doanh spa là gia tăng tỷ lệ bán hàng từ sản phẩm chăm sóc da. Thiết kế của dự án này dành riêng một mảng lớn không gian để trưng bày.
.jpg)
Tủ trưng bày cao sát trần với hệ gương phản chiếu giúp không gian sâu hơn. Ánh sáng vàng nhẹ khiến sản phẩm trở nên lung linh và nổi bật. Kệ gỗ bo cong tạo cảm giác mềm mại, hài hòa với tổng thể.
Việc đặt khu trưng bày ngay cạnh lễ tân giúp khách dễ quan sát, đồng thời tăng tính chuyên nghiệp cho thương hiệu. Với một spa diện tích nhỏ, đây là cách tối ưu diện tích nhưng vẫn mang lại hiệu quả kinh doanh rất cao.
Phòng trị liệu là khu vực quan trọng nhất của spa. Ở dự án này, tone trắng nâu được áp dụng để mang lại cảm giác dịu nhẹ và thư thái. Ánh sáng âm trần được bố trí đều, không gây chói và tạo không khí êm dịu.
.jpg)
Ba giường trị liệu được sắp xếp song song, tạo lối đi thuận tiện cho kỹ thuật viên. Việc sử dụng rèm hoặc bảng phân chia mềm có thể dễ dàng áp dụng mà không phá vỡ bố cục hiện có.
Điểm nhấn ấn tượng nhất trong phòng là mảng tường gỗ với họa tiết cây sinh mệnh. Chi tiết nghệ thuật này tạo chiều sâu, tăng sự sang trọng và mang ý nghĩa cân bằng năng lượng.
.jpg)
Hệ tủ kệ công cụ trị liệu được đặt sát tường, tiết kiệm diện tích và đảm bảo vận hành gọn gàng. Những thiết bị công nghệ được bố trí hợp lý, giúp quá trình điều trị mượt mà và chuyên nghiệp.
Không gian sử dụng chủ yếu các vật liệu như gỗ nâu nhẹ, đá màu kem và kính. Đây là bộ ba vật liệu phổ biến trong thiết kế spa cao cấp vì mang lại cảm giác thanh sạch và hiện đại.
Ánh sáng là điểm cộng lớn của dự án. Ánh sáng gián tiếp được dùng ở các hốc tường, sau logo, sau hệ kệ trưng bày và quanh trần. Các vùng sáng mềm giúp thư giãn mắt, đồng thời làm nổi bật kiến trúc. Với spa 36m2, xử lý ánh sáng tốt là yếu tố quyết định để tạo sự rộng rãi và sang trọng.
Các góc cong được áp dụng xuyên suốt: từ tường, cánh cửa, kệ, đến chi tiết nội thất. Điều này giúp không gian trở nên mềm mại và tinh tế hơn, phù hợp với phong cách spa hiện đại mà nhiều chủ đầu tư đang hướng tới.
.jpg)
Diện tích 36m2 khá hạn chế, nhưng nhờ bố trí bài bản, tất cả công năng của spa đều được đảm bảo. Thiết kế tận dụng toàn bộ chiều cao tường để tăng khả năng lưu trữ. Đây là giải pháp thực tế và hiệu quả cho những chủ đầu tư sở hữu spa có diện tích hạn chế.
Sự phân vùng không gian rõ ràng nhưng không tạo cảm giác bị chia nhỏ. Tone màu thống nhất giúp spa liền mạch và thư giãn hơn.
.jpg)
Dự án không chỉ đẹp ở phần nội thất mà còn giúp tăng nhận diện thương hiệu. Logo được đặt ở vị trí trung tâm của các mảng tường quan trọng như lễ tân và phòng trị liệu.
Hệ kệ với các sản phẩm được sắp xếp đồng bộ theo màu sắc làm nổi bật phong cách của spa. Đây là chi tiết mà nhiều spa cũ hoặc đang muốn cải tạo thường bỏ qua. Một không gian thể hiện rõ bản sắc thương hiệu sẽ giúp khách hàng ghi nhớ lâu hơn.
Những chi tiết này góp phần tạo nên trải nghiệm cao cấp. Đây là điều mà khách hàng ngày nay rất quan tâm, đặc biệt khi spa trở thành nơi chăm sóc tâm lý chứ không chỉ chăm sóc da.
Từ dự án thiết kế spa BOTANIC này, các chủ đầu tư có thể rút ra nhiều kinh nghiệm để cải tạo không gian spa của mình. Ưu tiên tone màu sáng và trung tính để mở rộng không gian. Dùng ánh sáng gián tiếp để tạo cảm giác thư giãn. Tận dụng tường để trưng bày sản phẩm và tối ưu lưu trữ. Dùng đường cong để tạo nét mềm mại và sang trọng. Những giải pháp này phù hợp với cả spa nhỏ và spa muốn nâng cấp hình ảnh.
Dự án thiết kế spa BOTANIC 36m2 của chủ đầu tư Nguyễn Thị Ngân tại Hải Phòng tuy có diện tích nhỏ vẫn có thể tạo nên không gian chuyên nghiệp. Với bố cục tinh gọn, ánh sáng hợp lý, điểm nhấn thẩm mỹ ấn tượng, spa trở thành nơi thư giãn đúng nghĩa và nâng tầm thương hiệu.







A. PenViet có hệ thống chi nhánh văn phòng và xưởng sản xuất ở nhiều nơi trên toàn quốc, nên giá thành sản phẩm là giá xuất xưởng, cạnh tranh nhằm đảm bảo chất lượng và dịch vụ phục vụ Khách hàng tốt nhất.
A: PenViet cung cấp dịch vụ tới mọi thành phần kinh tế, chúng tôi cung cấp dịch vụ thiết kế, thi công và bán lẻ các mặt hàng nội thất.
- Với các sản phẩm khách hàng đã có bản vẽ 2D hoặc 3D: PenViet sẽ phân tích bản vẽ và báo giá cạnh tranh.
- Với các sản phẩm cần thiết kế chi tiết: PenViet sẽ báo giá từ thiết kế đến thi công.
- Với những khách hàng mua hàng có sẵn với số lượng lớn: vui lòng liên hệ để nhận báo giá cạnh tranh.
- Đối với các Showroom có diện tích trưng bày sản phẩm rộng lớn: PenViet có khung giá phù hợp với ngân sách của khách hàng.