Dự án cải tạo Spa chị Thủy tại Thanh Hóa do PenViet triển khai có kết hợp yếu tố công năng và thẩm mỹ. Với diện tích 120m2, đội ngũ thiết kế đã mang đến một không gian thư giãn hiện đại, sang trọng, và gần gũi với thiên nhiên, giúp chủ đầu tư định hình rõ nét phong cách thương hiệu của mình.
Hiện trạng trước thiết kế
.jpg)
.jpg)
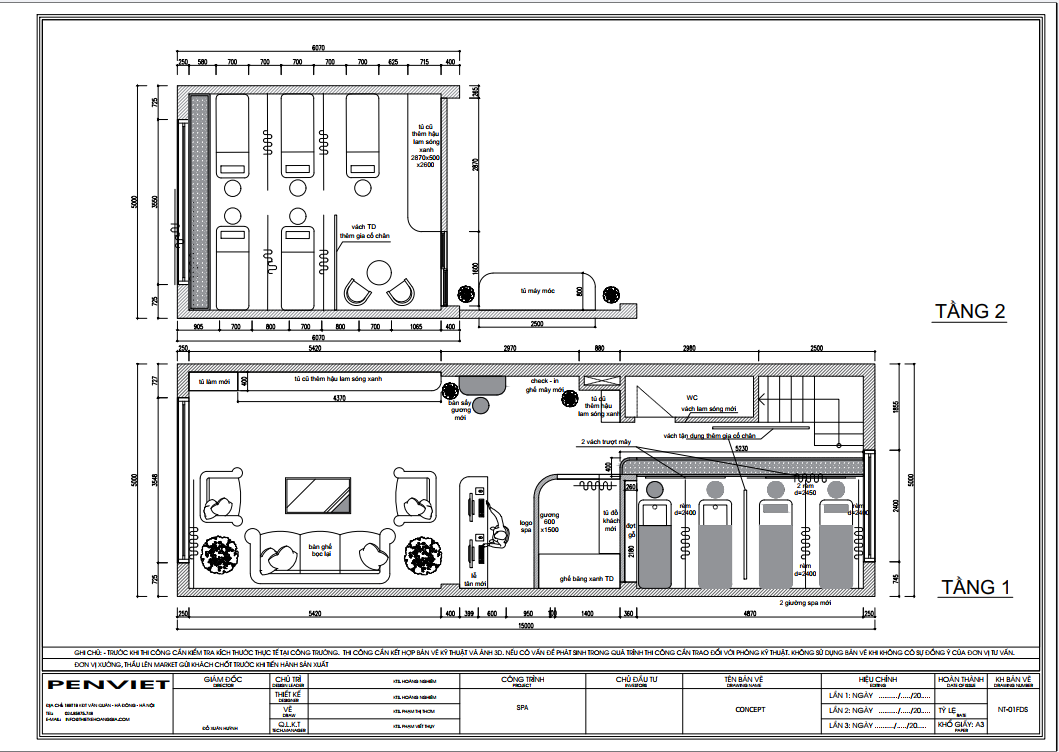
Mặt bằng công năng
.png)
Dự án Spa chị Thủy được triển khai với mục tiêu tái cấu trúc toàn bộ không gian cũ, nâng cấp hệ thống nội thất và bố cục ánh sáng nhằm mang đến diện mạo mới cho thương hiệu. Yêu cầu đặt ra từ chủ đầu tư là tạo nên một Spa hiện đại, tinh tế, mang màu sắc riêng nhưng vẫn giữ được cảm giác thư giãn và dễ chịu.
.jpg)
Không gian được quy hoạch lại gồm khu lễ tân, khu chờ và khu trị liệu. Mỗi khu vực đều được tính toán kỹ lưỡng về diện tích, lối di chuyển, ánh sáng và vật liệu, đảm bảo vừa tối ưu công năng vừa gia tăng giá trị thẩm mỹ.
Thông tin dự án
Tên dự án : SPA
Chủ đầu tư : CHỊ THỦY
Địa chỉ : THANH HÓA
Diện tích : 120M2
Phong cách thiết kế : HIỆN ĐẠI
Ngay khi bước vào, khách hàng sẽ cảm nhận được không khí tươi mới, dịu nhẹ mà tông màu xanh lá kết hợp trắng ngọc trai mang lại. Gam màu chủ đạo này vừa tạo cảm giác thư giãn, vừa thể hiện thông điệp xanh tự nhiên mà Spa muốn hướng đến.
.jpg)
Thiết kế logo “Angia Spa” nổi bật trên nền gỗ vân sáng, được chiếu sáng bằng đèn hắt led âm tường tạo hiệu ứng chiều sâu. Không gian sảnh được điểm xuyết bằng ghế sofa bọc da xanh pastel, bàn trà inox mạ vàng cùng lọ hoa tươi, giúp khu vực đón tiếp trở nên sang trọng mà vẫn gần gũi.
.jpg)
.jpg)
Điểm nhấn đặc biệt trong khu vực này là hệ thống trần giật cấp kết hợp đèn led âm trần mang lại ánh sáng nhẹ nhàng, tạo cảm giác thư giãn ngay từ giây phút đầu tiên bước vào.
.jpg)
Một trong những yếu tố giúp Spa chị Thủy trở nên khác biệt chính là việc đưa yếu tố thiên nhiên vào từng góc nhỏ của không gian. Bức tường cây xanh được bố trí tại hành lang vừa là điểm nhấn trang trí vừa giúp không khí trở nên trong lành, dễ chịu.
.jpg)
Các chậu cây cảnh nhỏ, lọ hoa tươi và vật liệu gỗ sáng màu tạo nên sự cân bằng về thị giác, mang lại cảm giác thư thái cho khách hàng. Sự kết hợp giữa ánh sáng tự nhiên và đèn vàng ấm áp giúp toàn bộ không gian trở nên mềm mại và gần gũi hơn.
.jpg)
Không gian trị liệu được thiết kế tinh tế, chia thành nhiều khu vực nhỏ bằng rèm voan trắng mềm mại. Điều này vừa tạo cảm giác riêng tư, vừa giữ được sự liên kết giữa các khu. Màu trắng và xanh lá tiếp tục được sử dụng xuyên suốt, khẳng định phong cách nhận diện thương hiệu.
.jpg)
.jpg)
Các giường massage được sắp xếp khoa học, tạo lối đi rộng rãi cho nhân viên và khách hàng. Mỗi giường đều có khăn phủ và gối tựa đồng bộ về màu sắc, giúp tổng thể thêm hài hòa. Ánh sáng trong phòng được điều chỉnh ở mức dịu nhẹ, tạo không khí ấm cúng và dễ chịu, hỗ trợ khách hàng dễ dàng thả lỏng, nghỉ ngơi.
.jpg)
Ngoài ra, việc bố trí đèn âm trần cùng hệ thống chiếu sáng khu vực đầu giường giúp không gian thêm sang trọng và tiện lợi trong quá trình sử dụng.
Điểm nổi bật của dự án thiết kế spa này nằm ở cách kết hợp vật liệu và đường nét trang trí. Từ bàn ghế, kệ trưng bày đến tay vịn và khung ghế đều sử dụng kim loại mạ vàng, tạo cảm giác cao cấp. Các mảng tường được trang trí bằng phào chỉ nhẹ, gương bo cong và đèn treo nghệ thuật, giúp không gian trở nên mềm mại và nữ tính hơn.
.jpg)
Trần nhà được xử lý bằng tone trắng kem, kết hợp ánh sáng vàng nhẹ từ đèn chùm và đèn hắt, tạo nên bầu không khí ấm áp và sang trọng. Hệ thống sàn gạch vân đá sáng bóng không chỉ giúp không gian sạch sẽ, mà còn phản chiếu ánh sáng tốt, tạo cảm giác rộng hơn thực tế.
Thiết kế spa được tính toán để dễ dàng vận hành và tối ưu công năng. Khu vực khách chờ, tiếp đón, chăm sóc và hành lang di chuyển được sắp xếp khoa học, đảm bảo lưu thông thuận tiện. Không gian vừa đủ để tạo cảm giác thoáng đãng nhưng không lãng phí diện tích.
.jpg)
Nhờ cách chia tách khu vực bằng rèm, vách nhẹ và hệ thống ánh sáng khác nhau, Spa có thể linh hoạt phục vụ từng nhóm khách hoặc cá nhân một cách hiệu quả. Đây là điểm cộng lớn trong việc vận hành mô hình Spa quy mô vừa như dự án của chị Thủy.
Màu xanh là gam chủ đạo xuyên suốt toàn bộ dự án. Nó đại diện cho sự tươi mới, an nhiên và cân bằng, đồng thời cũng là màu mang tính nhận diện thương hiệu cao. Kết hợp với sắc trắng và vàng ánh kim, không gian mang đến cảm giác hiện đại nhưng không xa cách, sang trọng nhưng vẫn thân thiện.
Hệ thống chiếu sáng trong dự án được đầu tư tỉ mỉ. Các loại đèn âm trần, đèn chùm pha lê và đèn tường đều được lựa chọn theo tiêu chí mềm, dịu và tập trung vào khu vực chức năng.
.jpg)
Ánh sáng vàng nhẹ giúp tôn lên vẻ đẹp của nội thất, đồng thời tạo cảm giác thư thái, ấm cúng. Bên cạnh đó, cửa kính lớn và gương phản chiếu được tận dụng tối đa để lấy sáng tự nhiên, tiết kiệm năng lượng và mở rộng không gian.
.jpg)
Toàn bộ dự án sử dụng vật liệu thân thiện và có độ bền cao như da công nghiệp, gỗ MDF phủ melamine, kính cường lực, và inox mạ vàng. Những chất liệu này không chỉ đảm bảo tính thẩm mỹ mà còn dễ dàng vệ sinh, phù hợp môi trường Spa có yêu cầu cao về vệ sinh và độ bền màu.
Việc phối hợp giữa chất liệu mềm mại và kim loại sáng bóng tạo nên sự cân bằng, vừa nhẹ nhàng vừa hiện đại, phù hợp với phong cách phục vụ chuyên nghiệp mà chị Thủy hướng đến.
Dự án cải tạo Spa chị Thủy tại Thanh Hóa là một ví dụ điển hình về cách thiết kế không gian nhỏ nhưng hiệu quả và đẳng cấp. Từng chi tiết được tính toán cẩn trọng để mang lại sự hài hòa giữa công năng và cảm xúc.
.jpg)
Không chỉ giúp Spa có diện mạo mới, dự án còn nâng cao trải nghiệm khách hàng, góp phần xây dựng hình ảnh thương hiệu chuyên nghiệp hơn. Sự thay đổi trong không gian giúp gia tăng giá trị thẩm mỹ, đồng thời tạo động lực phát triển bền vững cho chủ đầu tư.
Dự án thiết kế spa chị Thủy tại Thanh Hóa kết hợp giữa hiện đại, không gian thư giãn và nhận diện thương hiệu chuyên nghiệp. Nếu bạn là chủ đầu tư đang tìm kiếm giải pháp cải tạo không gian spa, dự án này sẽ là gợi ý lý tưởng để tham khảo.







A. PenViet có hệ thống chi nhánh văn phòng và xưởng sản xuất ở nhiều nơi trên toàn quốc, nên giá thành sản phẩm là giá xuất xưởng, cạnh tranh nhằm đảm bảo chất lượng và dịch vụ phục vụ Khách hàng tốt nhất.
A: PenViet cung cấp dịch vụ tới mọi thành phần kinh tế, chúng tôi cung cấp dịch vụ thiết kế, thi công và bán lẻ các mặt hàng nội thất.
- Với các sản phẩm khách hàng đã có bản vẽ 2D hoặc 3D: PenViet sẽ phân tích bản vẽ và báo giá cạnh tranh.
- Với các sản phẩm cần thiết kế chi tiết: PenViet sẽ báo giá từ thiết kế đến thi công.
- Với những khách hàng mua hàng có sẵn với số lượng lớn: vui lòng liên hệ để nhận báo giá cạnh tranh.
- Đối với các Showroom có diện tích trưng bày sản phẩm rộng lớn: PenViet có khung giá phù hợp với ngân sách của khách hàng.