Dự án thiết kế spa Phương Hồng được triển khai tại Bắc Ninh trên diện tích 101m². Bài toán đặt ra là tạo không gian thư giãn chuyên nghiệp, dễ vận hành và có dấu ấn thương hiệu rõ ràng. Phương án thiết kế tập trung vào trải nghiệm khách hàng, tối ưu công năng và nâng tầm giá trị đầu tư cho chủ spa đang có nhu cầu cải tạo không gian.
Hiện trạng trước thiết kế
.jpg)
.jpg)
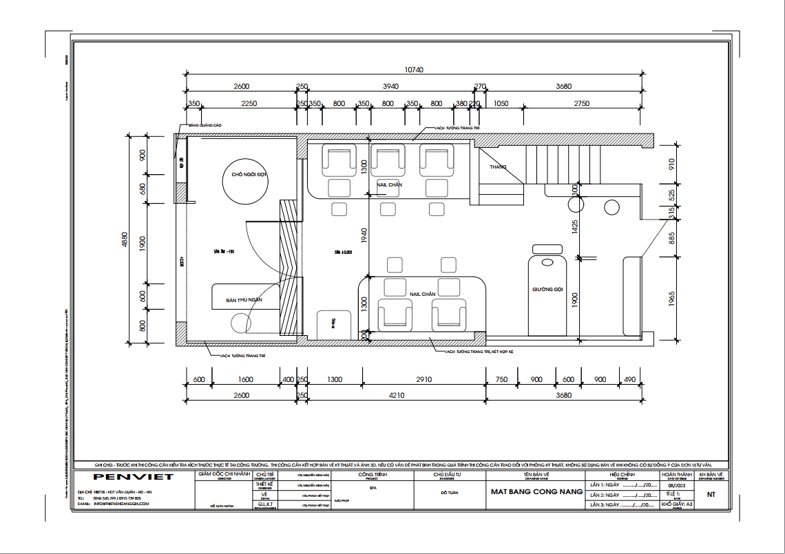
Mặt bằng công năng
.png)
Chủ đầu tư: chị Phượng
Địa điểm: Bắc Ninh
Diện tích: 101m2
Nội dung: thiết kế spa
Không gian được định hướng theo phong cách ấm áp, nhẹ nhàng. Gam màu trung tính kết hợp sắc nâu và be tạo cảm giác thư giãn ngay từ ánh nhìn đầu tiên. Đường cong kiến trúc được sử dụng xuyên suốt để làm mềm không gian.
.jpg)
.jpg)
Thiết kế ưu tiên sự liền mạch giữa các khu vực chức năng. Ánh sáng được bố trí đều, hạn chế chói gắt. Vật liệu hoàn thiện thân thiện, dễ bảo trì và phù hợp với spa vận hành lâu dài.
Dấu ấn thương hiệu Phương Hồng được thể hiện tinh tế. Logo và bảng hiệu được đặt tại các vị trí dễ nhận diện nhưng không gây rối mắt. Tổng thể mang lại cảm giác chuyên nghiệp và tin cậy cho khách hàng.
Khu vực ghế ngâm chân được bố trí ngay phía ngoài. Cách sắp xếp hàng ghế thẳng giúp tối ưu diện tích sử dụng. Mỗi ghế đều có bồn ngâm riêng, đảm bảo tiện nghi và riêng tư tương đối.
.jpg)
Ghế da tông nâu đậm tạo cảm giác chắc chắn và cao cấp. Bệ bồn sử dụng vật liệu terrazzo sáng màu giúp không gian nhẹ hơn. Phía sau ghế là hệ tranh trang trí, truyền tải thông điệp thư giãn rõ ràng.
Khu vực này phù hợp với dịch vụ chăm sóc nhanh. Dễ tiếp cận, dễ vận hành và tăng khả năng xoay vòng khách. Đây là điểm mạnh giúp chủ đầu tư tối ưu doanh thu trên cùng diện tích.
.jpg)
.jpg)
.jpg)
Khu massage được thiết kế yên tĩnh hơn. Giường massage bố trí song song, đảm bảo lối đi thông thoáng. Khoảng cách giữa các giường vừa đủ để kỹ thuật viên thao tác thuận tiện.
.jpg)
.jpg)
Hệ tủ phía sau giường giúp lưu trữ khăn và mỹ phẩm gọn gàng. Ánh sáng gián tiếp được sử dụng để tạo cảm giác dễ chịu. Trần bo cong kết hợp đèn hắt giúp không gian sâu và mềm hơn.
Vách tường trang trí họa tiết nhẹ nhàng, tránh cảm giác nặng nề. Không gian này hướng đến trải nghiệm thư giãn trọn vẹn. Phù hợp với các liệu trình dài và khách hàng cần sự riêng tư.
.jpg)
.jpg)
Mặt bằng 101m² được phân chia hợp lý, không có diện tích thừa. Các khu chức năng liên kết mạch lạc, giảm thời gian di chuyển. Nhân sự vận hành dễ kiểm soát và phục vụ khách đồng đều.
Thiết kế chú trọng độ bền và tính thực tế. Nội thất lựa chọn theo tiêu chí sử dụng lâu dài. Phong cách không lỗi thời, phù hợp cải tạo hoặc mở rộng trong tương lai.
.jpg)
.jpg)
.jpg)
.jpg)
Với bố cục này, spa dễ nâng cấp dịch vụ mà không cần thay đổi lớn. Chủ đầu tư tiết kiệm chi phí cải tạo về sau. Giá trị thương hiệu được xây dựng bền vững ngay từ giai đoạn thiết kế.
Dự án thiết kế spa Phương Hồng tại Bắc Ninh là giải pháp phù hợp cho chủ đầu tư chị Phượng khi cải tạo không gian 101m². Thiết kế cân bằng giữa thẩm mỹ, công năng và hiệu quả kinh doanh.







A. PenViet có hệ thống chi nhánh văn phòng và xưởng sản xuất ở nhiều nơi trên toàn quốc, nên giá thành sản phẩm là giá xuất xưởng, cạnh tranh nhằm đảm bảo chất lượng và dịch vụ phục vụ Khách hàng tốt nhất.
A: PenViet cung cấp dịch vụ tới mọi thành phần kinh tế, chúng tôi cung cấp dịch vụ thiết kế, thi công và bán lẻ các mặt hàng nội thất.
- Với các sản phẩm khách hàng đã có bản vẽ 2D hoặc 3D: PenViet sẽ phân tích bản vẽ và báo giá cạnh tranh.
- Với các sản phẩm cần thiết kế chi tiết: PenViet sẽ báo giá từ thiết kế đến thi công.
- Với những khách hàng mua hàng có sẵn với số lượng lớn: vui lòng liên hệ để nhận báo giá cạnh tranh.
- Đối với các Showroom có diện tích trưng bày sản phẩm rộng lớn: PenViet có khung giá phù hợp với ngân sách của khách hàng.