Không gian spa ngày nay không chỉ đơn thuần để chăm sóc sức khỏe mà còn là điểm đến giúp khách thư giãn tinh thần và tái tạo năng lượng. Với diện tích 64m2, thiết kế spa Sương Lam được định hướng theo phong cách dưỡng sinh thuần Việt để tạo sự khác biệt tại Hà Nội. Thiết kế lần này tập trung vào yếu tố tự nhiên, mộc mạc và sự thư thái sâu bên trong không gian. Dự án mang lại một diện mạo mới nhẹ nhàng, tinh tế và phù hợp với mô hình dịch vụ chăm sóc chuyên sâu.
Hiện trạng trước thiết kế
.jpg)
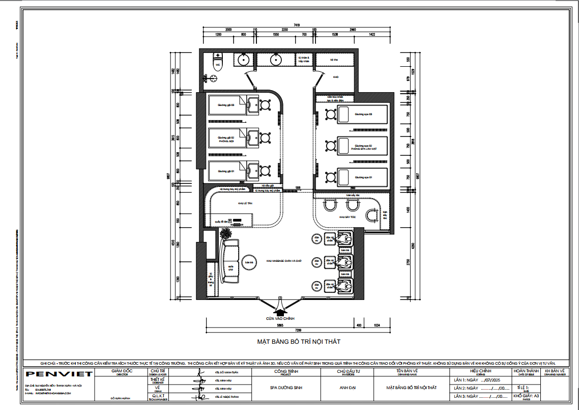
Mặt bằng công năng
.png)
Sương Lam Spa được triển khai với mục tiêu tạo nên một không gian chăm sóc dưỡng sinh đúng nghĩa. Chủ đầu tư hướng tới cảm giác yên bình, mềm mại và mang đậm bản sắc Việt. Diện tích 64m2 không quá lớn, nhưng nhờ cách tổ chức mặt bằng khéo léo, spa được chia thành nhiều khu vực chức năng rõ ràng.
Thiết kế ưu tiên các đường cong, vật liệu gỗ, ánh sáng dịu và hoa văn truyền thống. Đây là nền tảng giúp spa đạt sự cân bằng giữa thẩm mỹ và công năng. Hình ảnh phối cảnh và mặt bằng 3D cho thấy không gian được xử lý chặt chẽ, đảm bảo tối ưu diện tích và giữ trọn sự thoải mái của khách hàng trong mỗi dịch vụ.
.jpg)
1. Tên dự án: Sương Lam spa
2: Chủ đầu tư: anh Đại
3. Địa chỉ: Hà Nội
4. Diện tích: 64m2
5. Phong cách thiết kế : dưỡng sinh thuần Việt
Mặt tiền Sương Lam Spa được tạo dựng với bảng hiệu chữ nổi màu nâu đậm. Gam màu này tạo cảm giác ấm, sạch và phù hợp với phong cách dưỡng sinh truyền thống.
.jpg)
Thiết kế mặt tiền sử dụng kính cường lực toàn bộ. Đây là cách mở tầm nhìn hiệu quả, giúp khách dễ dàng quan sát không gian bên trong. Dải rèm dây mềm giúp tạo độ riêng tư nhưng vẫn giữ sự thoáng đãng. Ánh sáng vàng nhẹ xuyên qua các lớp rèm tạo hiệu ứng rất ấm mắt.
Việc bố trí mô hình logo tròn ở một bên càng nhấn mạnh sự chuyên nghiệp. Đây là yếu tố quan trọng khi chủ đầu tư muốn phát triển thương hiệu lâu dài.
Sảnh tiếp đón của Sương Lam Spa mang đến cảm giác thư thái ngay khi bước vào. Khu vực này sử dụng sofa màu cam pastel, mềm mại và gần gũi. Tông màu này hòa hợp với nền gỗ, giúp khách dễ chịu ngay từ ánh nhìn đầu tiên.
.jpg)
Tường trưng bày sản phẩm được thiết kế theo dạng nan gỗ kết hợp kệ âm. Cách bố trí này giúp không gian gọn, đẹp và tạo điểm nhấn về dịch vụ chăm sóc.
Đèn treo và các chi tiết cây xanh được sử dụng vừa phải, không gây rối mắt nhưng vẫn đủ làm sảnh nổi bật. Thiết kế sảnh chuẩn mực là yếu tố giúp spa giữ chân khách từ những giây đầu tiên.
Quầy lễ tân sử dụng đường cong lớn, tạo cảm giác thân thiện và mềm mại. Màu xanh lá cây và nâu gỗ được phối hài hòa. Đây là hai tông màu mang tính tự nhiên, rất phù hợp với phong cách dưỡng sinh. Phía sau quầy là mảng tường trưng bày sản phẩm với bố cục nhịp nhàng, giúp khách dễ quan sát và tăng cơ hội bán hàng.
.jpg)
Khu vực này được định hình như điểm kết nối giữa khách và spa. Thiết kế quầy lễ tân đẹp sẽ góp phần nâng cao độ tin cậy của spa khi khách mới trải nghiệm dịch vụ lần đầu.
.jpg)
Khu vực gội dưỡng sinh là một trong các điểm nhấn rõ nhất khi xem bản mặt bằng 3D. Không gian được bố trí ba giường gội riêng biệt với vách ngăn mềm. Cách bố trí này tạo sự riêng tư mà vẫn giữ được sự thoáng của toàn phòng. Giường gội tông nâu kết hợp ánh sáng vàng dịu mang đến cảm giác ấm và dễ chịu. Đây là yếu tố cần khi khách trải nghiệm dịch vụ có thời gian kéo dài.
.jpg)
.jpg)
Khu gội cũng được thiết kế gần quầy lễ tân để thuận tiện điều phối nhân sự. Đồng thời, hệ thống lưu trữ đồ dùng được tổ chức âm tường, giúp không gian luôn gọn và chuyên nghiệp.
.jpg)
.jpg)
Phòng massage body được chia thành hai giường với rèm phân chia mềm mại. Màu nâu be trở thành tông màu chủ đạo, tạo sự ấm áp theo đúng tinh thần spa dưỡng sinh. Bức tranh treo tường và đèn trang trí dạng quầng sáng giúp căn phòng có cảm giác thiền hơn. Đây là giải pháp giúp khách dễ đạt trạng thái thư giãn sâu.
.jpg)
Khu vực này được đặt cuối không gian để đảm bảo độ yên tĩnh tuyệt đối, hạn chế mọi tiếng ồn từ bên ngoài. Đây là một điểm rất quan trọng với bất kỳ spa chuyên nghiệp nào.
.jpg)
.jpg)
Khu massage chân được bố trí ở phần mặt tiền, cạnh khu vực tiếp khách. Thiết kế sử dụng ghế ngồi thấp, màu cam đất hòa quyện với nền gỗ sáng. Không gian này có vai trò khởi động cảm giác thư giãn cho khách trước khi bước vào dịch vụ chính. Ánh sáng tự nhiên từ mặt tiền giúp khu ngâm chân luôn sáng và dễ chịu. Đây là một trong các khu vực được khách chụp ảnh nhiều, giúp tăng hiệu quả truyền thông cho spa.
.jpg)
.jpg)
Khu vệ sinh được bố trí phía sau cùng. Nội thất sử dụng vật liệu đá và gỗ giúp tạo cảm giác sang trọng. Gương tròn và ánh sáng vàng khiến khu này hài hòa với tổng thể spa. Dù diện tích nhỏ nhưng cách xử lý bố cục khéo léo giúp không gian không bị bí và vẫn rất thẩm mỹ.
.jpg)
Mặt bằng dự án cho thấy sự tính toán chi tiết. Không gian được chia thành các khu vực riêng nhưng vẫn liên kết thông suốt. Đường đi rộng, dễ di chuyển, thuận tiện cho cả nhân viên và khách.
Cách tổ chức mặt bằng này giúp Sương Lam Spa vừa phục vụ tốt lượng khách trong ngày, vừa duy trì sự yên tĩnh cần thiết cho dịch vụ dưỡng sinh. Dự án Sương Lam Spa mang lại nhiều kinh nghiệm thực tế cho các chủ đầu tư.
.jpg)
Đầu tiên là khả năng tối ưu hóa diện tích. Với 64m2, spa vẫn có thể bố trí đầy đủ các phòng chức năng quan trọng. Tiếp theo là việc áp dụng phong cách dưỡng sinh thuần Việt giúp tạo khác biệt giữa vô số spa mang phong cách hiện đại. Cuối cùng là hiệu quả kinh doanh. Một không gian đẹp, đúng tinh thần dịch vụ sẽ giúp spa dễ thu hút khách, giữ chân khách và tạo lợi thế cạnh tranh lâu dài.
Bên cạnh đó là sự đồng bộ trong vật liệu giúp spa không bị rối, không bị chia nhỏ cảm giác. Vật liệu gỗ, mây, vải và ánh sáng vàng là những yếu tố xuyên suốt trong toàn bộ dự án. Khi khách bước vào, họ cảm nhận sự thống nhất từ sảnh, quầy lễ tân đến phòng trị liệu. Đây là tiêu chí mà nhiều chủ đầu tư mong muốn nhưng không phải dự án nào cũng thực hiện trọn vẹn.
Ánh sáng được chia thành nhiều lớp như ánh sáng thả, ánh sáng hắt và ánh sáng chức năng. Từng vị trí được bố trí đúng công năng, làm nổi bật không gian mà không gây chói. Ánh sáng vàng chủ đạo giúp mang lại cảm giác ấm, thư giãn, phù hợp với dịch vụ dưỡng sinh. Khi khách cảm nhận không gian dễ chịu, họ sẽ ở lại lâu hơn và quay lại spa nhiều lần.
Dự án Sương Lam Spa là ví dụ tốt cho trường hợp cải tạo spa diện tích nhỏ. Không gian cũ có thể được thay đổi mạnh mẽ chỉ bằng cách xử lý mặt tiền, bố trí lại mặt bằng và áp dụng phong cách rõ ràng. Sự kết hợp vật liệu tự nhiên và ánh sáng hợp lý giúp spa trở nên mới mẻ nhanh chóng.
Chủ đầu tư không cần phá bỏ nhiều hạng mục mà vẫn đạt hiệu quả cao về thẩm mỹ và trải nghiệm khách hàng.
Mẫu thiết kế spa Sương Lam là minh chứng cho thấy một không gian nhỏ vẫn có thể đạt hiệu quả cao khi áp dụng phong cách đúng và bố trí hợp lý. Thiết kế dưỡng sinh thuần Việt mang lại sự khác biệt và giúp spa tạo dấu ấn tại Hà Nội. Đây là mô hình lý tưởng cho các chủ đầu tư muốn cải tạo hoặc mở spa với chi phí tối ưu nhưng hiệu quả lớn.







A. PenViet có hệ thống chi nhánh văn phòng và xưởng sản xuất ở nhiều nơi trên toàn quốc, nên giá thành sản phẩm là giá xuất xưởng, cạnh tranh nhằm đảm bảo chất lượng và dịch vụ phục vụ Khách hàng tốt nhất.
A: PenViet cung cấp dịch vụ tới mọi thành phần kinh tế, chúng tôi cung cấp dịch vụ thiết kế, thi công và bán lẻ các mặt hàng nội thất.
- Với các sản phẩm khách hàng đã có bản vẽ 2D hoặc 3D: PenViet sẽ phân tích bản vẽ và báo giá cạnh tranh.
- Với các sản phẩm cần thiết kế chi tiết: PenViet sẽ báo giá từ thiết kế đến thi công.
- Với những khách hàng mua hàng có sẵn với số lượng lớn: vui lòng liên hệ để nhận báo giá cạnh tranh.
- Đối với các Showroom có diện tích trưng bày sản phẩm rộng lớn: PenViet có khung giá phù hợp với ngân sách của khách hàng.