Thiết kế phòng khám hiện nay đang được nhiều chủ đầu tư chú ý hơn với mong muốn mang đến một không gian khám chữa bệnh chuyên nghiệp, sự an tâm, tin cậy cho bệnh nhân và người nhà của họ. Chúng ta ngày càng có điều kiện để quan tâm, bảo vệ sức khỏe của bản thân, gia đình cũng như có nhiều cơ hội lựa chọn các cơ sở khám chữa bệnh uy tín, đây cũng là một yếu tố khiến cho các cơ sở y tế cần được đầu tư đúng mức cho trang thiết bị, hạ tầng, thiết kế phòng khám nhằm thu hút khách hàng đến thăm khám.
Chính điều này đã tạo cho Nội thất Penviet có cơ hội làm việc và trao đổi với đại diện Trung tâm Y khoa Pasteur Đà Lạt về dự án Thiết kế phòng khám Pasteur để thấu hiểu mong muốn, nguyện vọng của khách hàng trong việc tạo dựng không gian khám chữa bệnh chuyên nghiệp.
Qua khảo sát thực tế, Nội thất Penviet nhận thấy rằng mặt bằng hiện có cần được cải tạo nhiều hạng mục không gian để có thể hoàn toàn lột xác, trở thành một phòng khám hiện đại, chuyên nghiệp đón tiếp bệnh nhân và người nhà đến khám, chữa bệnh.

Hiện trạng mặt bằng
Hiện trạng mặt bằng thực chất là 2 tòa nhà có kiến trúc khác biệt được cải tạo thành một tổng thể thống nhất. Phía trước là tòa nhà bao gồm 4 tầng và một tầng hầm, phía sau là tòa nhà 3 tầng và tầng thượng với mái.
Do đang được sử dụng với mục đích kinh doanh kết hợp không gian sinh hoạt của gia đình, bởi vậy, cách bố trí không gian, đặc điểm của mặt bằng hoàn toàn không đáp ứng được nhu cầu sử dụng của chủ đầu tư cũng như những tiêu chuẩn của thiết kế phòng khám. Đây chính là một thách thức lớn đối với các kiến trúc sư của Nội thất Penviet.

Khảo sát mặt bằng trước khi thiết kế phòng khám Pasteur
Yêu cầu từ phía chủ đầu tư là xây dựng một phòng khám đáp ứng đầy đủ tiêu chuẩn do Bộ Y tế quy định, đồng thời tạo được những nét đột phá với thiết kế ấn tượng, không chỉ thực hiện chức năng khám chữa bệnh mà còn bao gồm các dịch vụ bổ trợ, khiến đây trở thành một tổ hợp phòng khám đẳng cấp.
Ngoài ra, để tối ưu công năng sử dụng của mặt bằng cũng như đem đến sự thuận tiện cho cán bộ nhân viên, bệnh nhân đến khám chữa bệnh, chủ đầu tư yêu cầu Nội thất Penviet tìm giải pháp cải tạo tầng hầm có sẵn trở thành nhà để xe, kho lạnh và xây dựng bể chứa nước mưa, nước thải y tế. Tuy nhiên, khó khăn ở chỗ, phần tầng hầm này chưa có lối vào, cũng như không có các thông tin liên quan đến kết cấu móng, gây trở ngại lớn cho việc thiết kế, thi công.

Tầng hầm chưa có lối vào cần được cải tạo lại
Bên cạnh đó, do đây không phải là một khối kiến trúc nhất quán ngay từ đầu cũng như đặc điểm cải tạo để phù hợp với việc kinh doanh, bán và sửa chữa xe gắn máy dẫn đến việc các sàn có sự chênh lệch độ cao; bậc thang dẫn và dốc có kích thước chưa phù hợp với thiết kế phòng khám. Vậy, làm thế nào để khắc phục triệt để những hạn chế về mặt không gian? Cùng xem những giải pháp đến từ các kiến trúc sư của Penviet nhé!
Với hiện trạng mặt bằng như thế này, để có thể thực hiện đúng ý đồ thiết kế phòng khám, đáp ứng yêu cầu từ chủ đầu tư, Nội thất Penviet buộc phải tiến hành đục phá để mở lối cho tầng hầm cũng như tính phương án xây dựng các hạng mục theo yêu cầu trong không gian.

Tòa nhà chưa có lối đi xuống hầm cho xe cộ
Mặt tiền rộng tới 6m, do đó, chúng tôi đưa ra phương án đẩy các bể chứa nước mưa và nước thải y tế về phía trước, bên cạnh lối xuống tầng hầm để tối ưu được phần không gian bên trong.
Do không có được những thông tin cần thiết về nền, móng, bởi vậy, việc thiết kế cũng phải được điều chỉnh để phù hợp với thực tế thi công. Thật may, sự nhanh nhạy và kinh nghiệm của các kiến trúc sư Penviet khiến cho quá trình này được diễn ra thuận lợi.
Đục phá nền bê tông cốt thép, đục nền gạch, thi công móng gia cường sau khi đập phá, thi công xây dựng các bể chứa, thi công bê tông cốt thép, đắp đất ram dốc, cán nền bê tông đá mi, xây dựng phòng lạnh, phòng kỹ thuật là những hạng mục được chúng tôi thực hiện cho phần cải tạo tầng hầm này.

Hiện trạng tầng hầm của tòa nhà

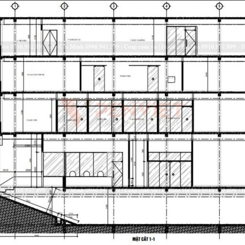
Mặt cắt phía trước bản thiết kế phòng khám Pasteur

Mặt cắt phía sau bản thiết kế phòng khám Pasteur
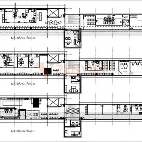
Nhằm hướng đến việc xây dựng một phòng khám hiện đại, đầy đủ chức năng, đáp ứng được nhu cầu khám chữa bệnh của người dân, Nội thất Penviet bố trí không gian một cách khoa học. Các phòng chức năng, phòng tiểu phẫu, khu vực lễ tân hay các phòng hỗ trợ đều được sắp xếp một cách hợp lý, đảm bảo diện tích theo quy định thiết kế phòng khám của Bộ Y tế.

Bản vẽ mặt bằng công năng phòng khám Pasteur

Bố trí không gian khoa học
Để thực hiện được điều này, chúng tôi tiến hành cải tạo dốc lên và bậc thang nối có kích thước không phù hợp tại tầng 1 để thuận lợi cho việc di chuyển giường bệnh, bệnh nhân cấp cứu, bệnh nhân khuyết tật…

Kích thước dốc, bậc thang chưa đáp ứng tiêu chuẩn thiết kế phòng khám
Vấn đề mặt sàn không được bằng phẳng cũng được các kiến trúc sư đưa ra phương án giải quyết là tôn nền, lát lại sàn để khắc phục. Bên cạnh đó, Penviet cũng tiến hành tháo dỡ các vách kính cường lực có sẵn, vá sàn khu giếng trời, bóc gạch tường, xây dựng thêm tường, trát và hoàn thiện tường, thi công các vách thạch cao, trần thạch cao, lắp các vách kích để thay đổi hoàn toàn diện mạo cho mặt bằng.

Mặt sàn không đồng nhất
Mặt bằng tầng 2 và tầng 3 bỏ trống, nhưng thiết kế ban đầu chưa đáp ứng đúng tiêu chuẩn về không gian, hành lang di chuyển cũng được chúng tôi cải tạo, mở rộng để thuận tiện cho việc di chuyển cũng như quá trình khám chữa bệnh.

Hành lang quá nhỏ chưa phù hợp với thiết kế phòng khám

Cần cải tạo toàn bộ không gian để phù hợp với ý đồ thiết kế phòng khám
Đặc biệt, khu vực sân thượng nối hai tòa nhà được lợp mái nhưng đã có dấu hiệu xuống cấp, phần mái khá thấp, tạo cảm giác lụp xụp, ảnh hưởng đến mỹ quan. Điều này được Penviet khắc phục bằng cách tôn cao và cải tạo để tổng thể thiết kế phòng khám Pasteur mang vẻ đẹp hiện đại, thể hiện sự chuyên nghiệp.

Phần mái đã xuống cấp của tòa nhà
Việc bố trí, sắp xếp không gian với mục đích làm nhà ở và kinh doanh khiến cho mặt bằng bị chia nhỏ, thiếu tính thẩm mỹ cũng là một thử thách lớn cho các kiến trúc sư của Nội thất Penviet.

Tầng 4 được dùng làm không gian sinh hoạt của gia đình
Với mong muốn mang đến sự tiện nghi, chuyên nghiệp cho thiết kế phòng khám, Ngoài việc bố trí mặt bằng công năng một cách khoa học, tạo sự thuận tiện cho các y bác sĩ, bệnh nhân Nội thất Penviet còn phối hợp màu sắc, nội thất cho thấy sự hiện đại, phù hợp với mức đầu tư, trang thiết bị và cơ sở hạ tầng của phòng khám Pasteur.
Sử dụng màu trắng – màu sắc đặc trưng của ngành y làm gam màu chủ đạo trong thiết kế nội thất phòng khám Pasteur, chúng tôi muốn mang đến hình ảnh quen thuộc của những cơ sở y tế nhưng cũng khiến nó trở nên tươi mới, đầy sức sống với các đường nét nhấn nhá màu xanh lá cây nổi bật.

Không gian vừa quen thuộc, vừa mới mẻ của phòng khám Pasteur
Với mặt bằng lên tới 1.050m2, chia làm 4 tầng và một tầng hầm, thử thách mang đến cho Nội thất Penviet chính là làm sao tạo được sự liên kết, cho thấy sự liền mạch, xuyên suốt trong tổng thể không gian.
Song, nhờ kinh nghiệm và sự tài hoa của các kiến trúc sư, việc sắp xếp, décor tại mỗi phòng, khu vực chức năng đều đã làm toát lên tinh thần của thiết kế phòng khám.

Sự chuyên nghiệp thể hiện trong từng không gian
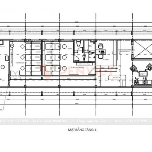
Bên cạnh đó, Penviet còn nâng tầm đẳng cấp của phòng khám với thiết kế spa sang trọng, tiện nghi, mang đến cho khách hàng sự chăm sóc toàn diện.

Hoàn thiện dịch vụ với thiết kế spa bên trong không gian phòng khám
Không gian các tầng 1, 2, 3 được bố trí quầy thuốc và các phòng khám chuyên khoa, thực hiện chức năng chính của một cơ sở y tế. Mỗi tầng đều được sắp xếp quầy lễ tân, đón tiếp để đảm bảo việc hỗ trợ bệnh nhân và người nhà được chu đáo.
Để thiết kế phòng khám được khoa học, hợp lý, Penviet sử dụng tầng 1 cho các khu vực chức năng như quầy thuốc, phòng cấp cứu, phòng hành chính, chụp X-Quang và các phòng khám sản. Điều này mang đến sự thuận tiện cho cả bệnh nhân và các y bác sỹ trong quá trình thăm khám, điều trị.
Quầy lễ tân và phòng cấp cứu được bố trí ở khu vực trung tâm giúp nhân viên dễ dàng quan sát, xử lý tình huống và hỗ trợ bệnh nhân nhanh chóng, kịp thời. Việc sử dụng vách kính cường lực mờ thay thế cho vách thạch cao giúp cho thiết kế phòng khám trở nên chuyên nghiệp, hiện đại hơn.
Quầy lễ tân được thiết kế đơn giản, sử dụng gỗ MDF cốt xanh chống ẩm phun sơn 2K phối màu tinh tế, hài hòa với tổng thể không gian. Penviet cũng sử dụng thêm cánh cửa với chiều cao vừa phải tại đây để phân tách không gian, tạo sự riêng tư cho khu vực làm việc của nhân viên. Khu vực này sử dụng thêm tranh backlist dán ngoài kết hợp với hệ thống đèn led khiến chúng càng trở nên nổi bật, tạo sự chú ý, giúp bệnh nhân và người nhà của họ dễ dàng nhận biết khi cần tìm sự hỗ trợ từ nhân viên phòng khám.
Vách logo bằng gỗ MDF phun sơn 2K kết hợp hài hòa với các nan gỗ melamine ốp trần, mang đến hiệu ứng chuyển màu độc đáo, cân bằng được màu sắc trong không gian. Background này cũng làm nổi bật hộp logo mica và bộ chữ mica phát sáng nhận diện thương hiệu của phòng khám Pasteur Đà Lạt.

Quầy lễ tân bố trí ở khu vực trung tâm
Việc sử dụng các nan gỗ ốp trần, tường, tủ trưng bày bằng gỗ MDF cùng màu một cách linh hoạt tạo nên sự kết nối không gian trong thiết kế phòng khám Pasteur.

Màu sắc và vật liệu tạo nên sự liên kết không gian
Nhằm mang lại sức sống cho không gian, Nội thất Penviet thiết kế những tủ trưng bày bằng gỗ Melamine với khung sắt sơn tĩnh điện và các bồn làm từ gỗ tự nhiên để trồng và trưng bày cây cảnh. Điều này giúp khách hàng đến đây khám chữa bệnh cảm nhận được những năng lượng tích cực, đồng thời khiến cho không gian trở nên sinh động, tươi mới.
Chúng tôi cũng không quên bố trí dãy ghế chờ khung inox có lót đệm, mang lại sự thoải mái cho bệnh nhân trong thời gian đợi thăm khám.

Bố trí dãy ghế chờ thuận tiện cho bệnh nhân và người nhà
Quầy thuốc được bố trí ngay gần sảnh và cửa ra vào, thuận tiện cho cả bệnh nhân lẫn các khách hàng vàng lại đến mua thuốc. Tại đây, Penviet sử dụng đá marble trắng trong thiết kế quầy tạo sự sang trọng và đảm bảo độ bền, tính thẩm mỹ cho sản phẩm.

Sử dụng đá Marble trắng trong thiết kế quầy trả thuốc
Để các dược sĩ có một không gian làm việc thoải mái, chúng tôi thiết kế những bàn làm việc bằng gỗ MDF phun sơn 2K kết hợp với khung sắt sơn tĩnh điện và các ghế xoay tiện lợi.
Bên trong quầy trả thuốc cũng bố trí chậu rửa tay với thiết bị vệ sinh cao cấp, tủ gỗ MDF chống ẩm kết hợp mặt đá marble vân mây sang trọng mang đến sự tiện lợi cho nhân viên.

Bàn làm việc và ghế xoay mang lại sự thuận tiện cho các dược sĩ
Tủ thuốc bằng kính và gỗ MDF phun sơn 2K với các đợt kính dày 8mm được sử dụng để trưng bày sản phẩm trong quầy bán hàng và kho thuốc. Hệ tủ này cũng được thiết kế các ngăn tủ ở vị trí thấp giúp tăng thêm không gian lưu trữ sản phẩm.

Tủ trưng bày sản phẩm làm từ gỗ MDF và kính
Các tủ này được bố trí sát tường nhằm tối ưu không gian sử dụng.

Bố trí tủ trưng bày khoa học
Tầng 1 cũng được bố trí những phòng làm việc với thiết kế hiện đại và sắp xếp thông minh giúp tận dụng tối đa diện tích mặt bằng, thể hiện qua việc sử dụng những giá treo tường bằng gỗ MDF chống ẩm phun sơn 2K để tài liệu hay kê các bàn làm việc sát tường.

Bố trí không gian khoa học để tận dụng tối đa diện tích mặt bằng
Cũng với chất liệu gỗ MDF chống ẩm quen thuộc nhưng những mẫu thiết kế nội thất và cách xử lý bề mặt phủ khác nhau lại mang đến nét riêng cho từng không gian phòng làm việc.

Các mẫu thiết kế nội thất đa dạng được dùng trong không gian phòng làm việc
Sự thống nhất trong phong cách là điều mà bất kỳ ai cũng cảm nhận được trong mẫu thiết kế phòng khám này. Nội thất tối giản, tập trung vào trải nghiệm của người dùng cho thấy sự tinh tế của các kiến trúc sư Penviet.

Tập trung vào việc mang đến cho người dùng sự thoải mái, dễ chịu
Quầy lễ tân tại tầng 1 và tầng 2 mang nhiều nét tương đồng, song vẫn cho thấy những điểm khác biệt. Không sử dụng những màu sắc và điểm nhấn ấn tượng như tại không gian tầng 1, khu vực lễ tân tầng 2 toát lên sự hiện đại, trang nhã nhưng vẫn vô thu hút bởi thiết kế tinh tế, tôn lên logo phát sáng dán tranh PP.
Vách ốp tường, trần bằng gỗ MDF chống ẩm phủ Melamine màu sắc nhẹ nhàng mang lại cảm giác thân thiện, gần gũi cho bệnh nhân và người nhà.

Thiết kế quầy lễ tân nhẹ nhàng, tạo cảm giác gần gũi
Với đặc điểm thiết kế phòng khám gồm các phòng chức năng như phòng khám nội, điện tim, điện não, lấy máu, xét nghiệm, siêu âm tập trung nhiều bệnh nhân, do đó Penviet bố trí nhiều dãy ghế chờ để đáp ứng được nhu cầu sử dụng và đảm bảo việc phục vụ chu đáo.

Ghế chờ bên ngoài phòng bệnh

Những dãy ghế chờ được bố trí để phục vụ bệnh nhân
Bên ngoài hành lang, phía trước mỗi phòng chức năng đều được sắp xếp ghế chờ thoải mái cho bệnh nhân và người nhà.

Các dãy ghế chờ ngoài cửa phòng bệnh
Vách, cửa kính được dùng như một giải pháp hữu hiệu giúp phân chia khu vực làm việc của cán bộ nhân viên và khu vực chờ làm dịch vụ của khách hàng, đồng thời vẫn giữ được sự kết nối trong toàn bộ không gian.

Vách kính phân chia khu vực chức năng hiệu quả nhưng vẫn giữ được sự kết nối không gian
Các phòng làm việc cũng được bố trí khoa học đem đến sự thuận tiện cho đội ngũ y bác sĩ.

Khu vực phòng làm việc của cán bộ nhân viên
Ngoài ra, tầng 2 cũng được Penviet bố trí một phòng họp lớn với sức chứa hơn 20 người phục vụ cho những buổi gặp gỡ, giao ban, họp chuyên môn của cán bộ nhân viên.

Phòng họp lớn có sức chứa trên 20 người
Sự thống nhất, chuyên nghiệp được thể hiện qua cách thức bài trí không gian, sử dụng màu sắc và vật liệu thống nhất. Vách tường và tủ trưng bày bằng gỗ MDF phủ melamine cho thấy sự tương đồng với nhiều khu vực trong tổng thể thiết kế phòng khám Pasteur.

Mỗi phòng chức năng đều cho thấy sự thống nhất với tổng thể không gian
Quầy lễ tân chữ L bằng gỗ MDF chống ẩm phun sơn 2K ở vị trí thuận tiện cho thấy sự tinh tế của Penviet trong thiết kế không gian. Những vật liệu quen thuộc được sáng tạo đa dạng khiến cho tổng thể phòng khám không có sự nhàm chán.

Bố trí quầy lễ tân ở tất cả các tầng
Tầng 3 bao gồm nhiều phòng khám, tiêm chủng, do đó chúng tôi bố trí các dãy ghế chờ để bệnh nhân và người nhà luôn cảm thấy thoải mái, dễ chịu.

Bố trí nhiều ghế chờ ở hành lang
Điểm sáng của khu vực khám chữa bệnh chính là khu vui chơi dành cho trẻ em. Ý đồ của Nội thất Penviet là tạo nên không gian để các bé có thể thỏa thích chơi đùa, xua đi cảm giác sợ sệt khi đến một cơ sở chăm sóc sức khỏe, từ đó mang đến tâm lý thoải mái cho cả các bệnh nhân nhí lẫn người nhà của các bé.
Chúng tôi lựa chọn thi công tranh tường ấn tượng để mang đến những màu sắc sinh động cho không gian.

Thế giới đầy màu sắc trong khu vui chơi trẻ em
Khu vực này được bao quanh bởi thiết kế ghế dài bằng gỗ MDF lót đệm với các ngăn, đợt có thể tận dụng để lưu trữ các món đồ chơi nhỏ.

Toàn cảnh khu vui chơi trong thiết kế phòng khám Pasteur
Nhằm thể hiện tinh thần của thiết kế và làm nổi bật nét riêng trong không gian phòng khám tầng 3, tại đây, Penviet sử dụng nhiều tranh tường, ghế chờ màu sắc nổi bật để tạo cảm giác tươi mới.

Không gian đầy màu sắc tại tầng 3
Ghế chờ độc đáo làm từ gỗ MDF lõi xanh chống ẩm phủ Melamine và đệm mang đến điểm nhấn cho thiết kế phòng khám nhưng vẫn tạo được sự liên kết với tổng thể.

Thiết kế ghế chờ độc đáo
Thiết kế nội thất văn phòng nhất quán cho thấy sự hiện đại, chuyên nghiệp mà Penviet mang đến cho phòng khám Pasteur.

Không gian văn phòng hiện đại, chuyên nghiệp
Sử dụng những mẫu nội thất tương đồng, song, chúng tôi đã sáng tạo trong thiết kế, thi công, khiến cho mỗi không gian lại mang dấu ấn riêng nổi bật.

Tạo nét riêng độc đáo cho không gian

Mang thế giới trẻ thơ vào thiết kế phòng khám
Khác với sự vui tươi trong thiết kế khu vực khám bệnh, khu vui chơi trẻ em, phòng giám đốc tại tầng 3 mang đến cảm nhận về sự sang trọng, lịch sự. Căn cứ vào vị trí và hướng, Nội thất Penviet lựa chọn căn phòng này làm phòng giám đốc. Để đảm bảo yếu tố phong thủy phù hợp với chị Thủy – Giám đốc Trung tâm y khoa Pasteur, chúng tôi cũng bố trí bàn làm việc tựa lưng vào hướng bắc, mặt hướng về hướng nam với mong muốn mang đến sự thuận lợi, hanh thông trong công việc của chị.

Tận dụng góc cạnh để thể hiện ý đồ thiết kế không gian
Màu nâu trầm tạo cảm giác sang trọng được sử dụng trong thiết kế bàn làm việc bằng gỗ MDF chống ẩm phủ Melamine. Sự kết hợp màu sắc và vật liệu ăn ý giữa gỗ tự nhiên với da cao cấp trong mẫu sofa, bàn trà làm toát lên sự quyền uy cho phòng làm việc.
Kệ để đồ trang trí bằng gỗ MDF phủ Melamine kết hợp với khung sắt sơn tĩnh điện vừa có thể dùng làm kệ để tài liệu, vừa tận dụng để trưng bày cây cảnh, mang không gian xanh đến với thiết kế văn phòng.

Phòng giám đốc sang trọng, lịch sự
Có thể nói, ý tưởng thiết kế spa bên trong không gian khám chữa bệnh đã góp phần hoàn thiện và nâng tầm đẳng cấp cho tổ hợp phòng khám Pasteur.
Một không gian sang trọng, mang đến cho khách hàng những trải nghiệm dịch vụ mới mẻ, tuyệt vời là điều mà Penviet và chủ đầu tư mong muốn. Bởi vậy, không khó nhận ra sự phá cách và khác biệt tại đây so với những không gian khác trong mẫu thiết kế phòng khám này.
Mang phong cách hiện đại, song những đường nét trang trí, vật liệu, màu sắc kết hợp tinh tế lại làm toát lên vẻ sang trọng, ấm áp cho Spa Pasteur.
Sử dụng sofa dài khung sắt sơn tĩnh điện kết hợp đệm mút bọc vải cỏ may và đôn, bàn trà đôi khung inox mạ si vàng, mặt đá marble vân mây tinh tế, Penviet mang đến sự trang nhã cho không gian cũng như cảm giác thoải mái, dễ chịu cho mỗi khách hàng đến sử dụng dịch vụ spa tại đây.
Khu vực tiếp khách cũng được chúng tôi lồng ghép logo khéo léo như một cách nhắc nhớ thương hiệu với khách hàng. Giấy dán tường họa tiết nhẹ nhàng được sử dụng cho background này để làm tôn lên bộ chữ logo với tên thương hiệu bằng inox mạ si vàng. Hệ thống đèn hắt, đèn downlight khiến cho khu vực này càng trở nên nổi bật.

Khu vực tiếp khách sang trọng tại Spa Pasteur

Lồng ghép logo thương hiệu trong thiết kế spa
Nhằm mang đến sự đột phá nhưng vẫn giữ được sự nhất quán trong thiết kế phòng khám Pasteur, Penviet sử dụng chung một mẫu quầy lễ tân nhưng thay đổi cách kết hợp màu sắc để phù hợp với không gian và những tiêu chuẩn thiết kế spa.

Thiết kế quầy thu ngân vừa lạ, vừa quen tại khu vực dịch vụ spa
Khu vực phòng khám bố trí tủ tài liệu kết hợp với trưng bày cây cảnh bằng gỗ MDF chống ẩm phun sơn 2K đơn giản, phối màu ăn ý giúp cân bằng màu sắc cho không gian. Thêm vào đó, Nội thất Penviet cũng sử dụng tranh trang trí để làm nổi bật các dịch vụ tại Spa Pasteur.

Thiết kế phòng làm việc chuyên nghiệp
Thiết kế spa gồm nhiều phòng chức năng riêng biệt, song, đều cho thấy sự sang trọng thể hiện qua màu sắc và cách bài trí không gian. Dù các khu vực chăm sóc da, body sử dụng nội thất giống nhau, dùng gỗ MDF chống ẩm phủ Melamine cho tủ đựng đồ, gỗ cao su tự nhiên cho các giường trị liệu, tuy nhiên, cách sắp xếp, décor lại tạo nên những điểm nhấn riêng độc đáo.

Thiết kế spa với đầy đủ các phòng trị liệu, phòng chức năng
Một lần nữa, logo thương hiệu bằng inox mạ xi vàng được lồng ghép tinh tế đồng điệu với thiết kế không gian sang trọng, gần gũi, giúp khách hàng luôn nhớ tới Spa Pasteur.
Vách trang trí bằng gỗ MDF cắt CNC họa tiết sắc nét sử dụng công nghệ sơn 2K mang lại sự trang nhã cho thiết kế spa. Các vách tường này cũng được thiết kế thêm các đợt kính trưng bày như một cách quảng bá sản phẩm cho spa.

Bài trí không gian bên trong spa
Để không gian trở nên sinh động, Nội thất Penviet sử dụng tranh in PP hậu gỗ MDF và những món đồ decor độc đáo để trang trí. Sự nhẹ nhàng, tính tế trong các phòng chức năng chắc chắn sẽ giúp cho khách hàng cảm thấy thư giãn và dễ chịu.

Mỗi phòng chức năng đều mang những nét đẹp riêng
Để tận dụng và phát huy thế mạnh trong khám chữa bệnh, thiết kế phòng khám Pasteur cũng bao gồm phòng thẩm mỹ công nghệ hiện đại, phục vụ nhu cầu làm đẹp cao cấp, phức tạp của khách hàng.

Phòng thẩm mỹ công nghệ cao trang bị máy móc hiện đại
Một điểm cũng vô cùng quan trọng được các kiến trúc sư hết sức lưu tâm trong thiết kế phòng khám Pasteur là việc bố trí hệ thống ánh sáng hợp lý, phù hợp với nhu cầu sử dụng. Nếu như với khu vực dịch vụ y tế, các phòng, khu vực chức năng được bố trí ánh sáng đầy đủ, đảm bảo việc khám chữa bệnh thì trong không gian spa, ánh sáng lại được thiết kế với màu sắc, cường độ đáp ứng được tiêu chuẩn của thiết kế spa, mang lại sự dễ chịu, thoải mái cho khách hàng.
Đây thực sự là một tổ hợp phòng khám hoàn thiện và đẳng cấp với nhiều dịch vụ bổ trợ chất lượng cao, mang đến cho khách hàng những trải nghiệm hoàn hảo.
Liệu rằng thiết kế phòng khám này có mang lại cho bạn ý tưởng đột phá nào không? Liên hệ ngay với Nội thất Penviet để được tư vấn phương án phù hợp nhất cho không gian của bạn nhé!







A. PenViet có hệ thống chi nhánh văn phòng và xưởng sản xuất ở nhiều nơi trên toàn quốc, nên giá thành sản phẩm là giá xuất xưởng, cạnh tranh nhằm đảm bảo chất lượng và dịch vụ phục vụ Khách hàng tốt nhất.
A: PenViet cung cấp dịch vụ tới mọi thành phần kinh tế, chúng tôi cung cấp dịch vụ thiết kế, thi công và bán lẻ các mặt hàng nội thất.
- Với các sản phẩm khách hàng đã có bản vẽ 2D hoặc 3D: PenViet sẽ phân tích bản vẽ và báo giá cạnh tranh.
- Với các sản phẩm cần thiết kế chi tiết: PenViet sẽ báo giá từ thiết kế đến thi công.
- Với những khách hàng mua hàng có sẵn với số lượng lớn: vui lòng liên hệ để nhận báo giá cạnh tranh.
- Đối với các Showroom có diện tích trưng bày sản phẩm rộng lớn: PenViet có khung giá phù hợp với ngân sách của khách hàng.