Tổng quan
Chủ đầu tư: Chị Dung
Địa chỉ: Hải Dương
Diện tích: 57m2
Phong cách: Hiện đại
Hạng mục thiết kế thi công:
Mặt tiền
Quầy lễ tân và thuốc
Phòng tư vấn
Phòng khám chung
Cải tạo phần thô phòng khám đa khoa Trường Sơn
Hiện trạng phòng khám đa khoa Trường Sơn

List công việc tháo dỡ:
- Tháo dỡ cửa chính cũ, cửa sổ thay lớp cửa mới
- Di chuyển điều hòa, lắp vị trí mới, bơm bình ga
- Xây tường bịt cửa sổ
List công việc cải tạo thô:
- Sơn bả hoàn thiện và dựng vách thạch cao phía ngoài và cửa ra vào
- Lắp đặt vách kính mới dán decal cửa lùa
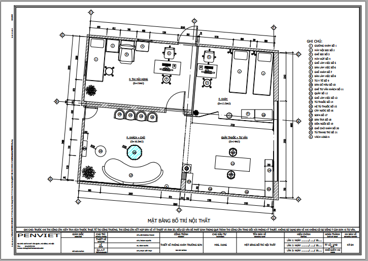
Thiết kế phòng khám đa khoa Trường Sơn
Theo Nghị định 109 Nghị định số 109/2016/NĐ-CP, Việc mở phòng khám đa khoa có rất nhiều điều khoản nghiêm ngặt cần tuân thủ. Trong đó, những điều kiện về cơ sở vật chất cũng rất đa dạng. Vì thế kiến trúc sư Penviet đã nghiên cứu hiện trạng rất kỹ càng để đưa ra phương án thiết kế phòng khám đa khoa cụ thể như sau:
| Quy định |
Phòng khám đa khoa Trường Sơn |
| Có ít nhất 02 trong 04 chuyên khoa nội, ngoại, sản, nhi |
Phòng khám đa khoa Trường Sơn với 2 chuyên khoa chính là tai mũi họng và khám sản phụ khoa |
| Phòng khám chuyên khoa và Phòng tiểu phẩu (nếu có thực hiện tiểu phẫu) có diện tích ít nhất 10m2 đáp ứng điều kiện về vệ sinh an toàn thủ thuật. |
Phòng khám tai mũi họng diện tích 15m2
Phòng khám sản phụ khoa diện tích 12,5m2 |
| Phải có tủ thuốc cấp cứu gồm danh mục thuốc cấp cứu thiết yếu. |
Thiết kế phòng thuốc và tư vấn diện tích 14m2 |

Thiết kế phòng khám đa khoa theo phong cách hiện đại sẽ giúp cho không gian phòng khám trở nên rộng rãi, gọn gàng, ngăn nắp hơn. Do phong cách này chỉ sử dụng những vật dụng cần thiết và chúng được thiết kế hiện đại, không cầu kỳ chi tiết.
Tông màu chủ đạo của phòng khám là trắng và xanh da trời . Đây là 2 tông màu thường được sử dụng rất nhiều trong thiết kế phòng khám. Màu trắng là màu biểu tượng của ngàng y mang lại cảm giác nhẹ nhàng và an toàn cho người bệnh. Màu xanh giúp không gian thêm sinh động, mang lại cảm giác thanh bình và yên bình.
Thiết kế phòng khám đa khoa – hạng mục mặt tiền
Mặt tiền phòng khám về cơ bản chúng tôi không thay đổi quá nhiều. Bên cạnh việc thay lớp kính cũ bằng kính cường lực sáng trong, thì chúng tôi sử dụng tranh vải căng khung sắt xi với nội dung về các dịch vụ thăm khám chính ở biển hông.

Thiết kế phòng khám đa khoa – hạng mục quầy thuốc và lễ tân
Do diện tích phòng khám nhỏ, kiến trúc sư đã thiết kế kết hợp phòng lễ tân và quầy thuốc. Thiết kế quầy thuốc đạt chuẩn GPP có tính thẩm mỹ và chuyên nghiệp. Thiết kế không gian có sự thông thoáng, lối đi rộng rãi, tiện lợi cho việc tìm kiếm sản phẩm thuốc

Thiết kế tủ thuốc tây có đợt kính trưng bày, đảm bảo nhân viên dễ tìm, dễ kiểm tra và quản lý. Lựa chọn chất liệu gỗ MDF cốt xanh chống ẩm, phủ melamin phối màu trắng và xanh dương dễ dàng cho công việc vệ sinh tủ thuốc và tẩy trùng khi cần thiết.
Quầy lễ tân được thiết kế với tông màu xanh trắng, có viền soi rãnh dán alu vàng gương toát lên vẻ sang trọng. Nổi bật trên quầy lễ tân là bộ chữ “ Phòng khám Trường Sơn” bằng mica màu trắng.

Thiết kế phòng khám đa khoa – hạng mục phòng tư vấn
Thiết kế khu vực phòng tư vấn được trang bị với nhiều tiện nghi như bàn ghế sofa mềm mại, tạp chí…Khu vực tư vấn thiết kế hiện đại khoa học cung cấp môi trường an toàn, sạch sẽ và thoải mái cho bệnh nhân và gia đình.
Vách logo phía sau sofa tiếp khách được cải tạo với sự kết hợp của 3 bộ vách đó là ốp gỗ melamin, ốp PVC vân đá, ốp lam nhựa.

Thiết kế phòng khám đa khoa – hạng mục phòng khám tai mũi họng
Thiết kế phòng khám tai mũi họng chuyên nghiệp được trang bị đầy đủ thiết bị tạo một không gian ấn tượng và thoải mái cho khách hàng trong quá trình khám chữa bệnh. Cụ thể, bố cục nội thất khoa học, được chăm chút tỉ mỉ và ngăn nắp để giúp người đến khám luôn cảm thấy thông thoáng và sạch sẽ.

Thiết kế phòng khám đa khoa – hạng mục phòng khám sản phụ khoa
Bố cục nội thất phòng khám sản phụ khoa đơn giản, không sử dụng nhiều đồ dùng gây lãng phí, chỉ sử dụng những đồ thiết yếu để phục vụ công tác chuyên môn. Bố trí nội thất hợp lý giúp bệnh nhân thuận tiên khi di chuyển.



Bằng kinh nghiệm và sư sáng tạo, Penviet đã mang đến một sự thay đổi ngoạn mục cho phòng khám đa khoa Trường Sơn. Nếu bạn cần thiết kế phòng khám đa khoa theo diện tích thực tế của mặt bằng của mình. Hãy liên hệ ngay với Penviet để nhận tư vấn và báo giá cho mình tham khảo ạ
Xem thêm:
Thiết kế phòng khám đa khoa Nam Cao
Thiết kế phòng khám đa khoa Dung Châu - Phú Thọ
Q: PenViet có nhận thiết kế và thi công trọn gói không hay chỉ chuyên về thiết kế?
A: PenViet nhận thiết kế và thi công trọn gói trên toàn quốc. Các văn phòng, chi nhánh của PenViet được đặt tại nhiều địa điểm nhằm cung cấp các dịch vụ không chỉ tại các trung tâm của cả nước mà còn phục vụ tới cả vùng biên giới, hải đảo xa xôi.
Q: Thời gian thiết kế và thi công bao lâu thì xong?
A: Vâng, đây là yếu tố được nhiều khách hàng quan tâm khi chuẩn bị thiết kế và thi công nội thất. Với những diện tích nhỏ thì thời gian thi công nhanh. Cụ thể như sau:
- Diện tích <100m2:
+ Thời gian thiết kế: từ 5 đến 7 ngày
+ Thời gian thi công: 10 đến 12 ngày
(Áp dụng trên toàn quốc)
- Diện tích >100m2:
+ Thời gian thiết kế: từ 7 đến 10 ngày
+ Thời gian thi công: 10 đến 15 ngày
(Áp dụng trên toàn quốc)
- Diện tích >500m2: Quý khách vui lòng liên hệ trực tiếp để biết thời gian thiết kế và thi công cụ thể.
Q: Giá thi công của PenViet cao hay thấp?
A. PenViet có hệ thống chi nhánh văn phòng và xưởng sản xuất ở nhiều nơi trên toàn quốc, nên giá thành sản phẩm là giá xuất xưởng, cạnh tranh nhằm đảm bảo chất lượng và dịch vụ phục vụ Khách hàng tốt nhất.
Q: PenViet thiết kế và thi công nội thất như thế nào?
A: PenViet cung cấp dịch vụ tới mọi thành phần kinh tế, chúng tôi cung cấp dịch vụ thiết kế, thi công và bán lẻ các mặt hàng nội thất.
- Với các sản phẩm khách hàng đã có bản vẽ 2D hoặc 3D: PenViet sẽ phân tích bản vẽ và báo giá cạnh tranh.
- Với các sản phẩm cần thiết kế chi tiết: PenViet sẽ báo giá từ thiết kế đến thi công.
- Với những khách hàng mua hàng có sẵn với số lượng lớn: vui lòng liên hệ để nhận báo giá cạnh tranh.
- Đối với các Showroom có diện tích trưng bày sản phẩm rộng lớn: PenViet có khung giá phù hợp với ngân sách của khách hàng.
Q: Khách hàng ở xa thì PenViet có nhận thiết kế và thi công không?
Q: PenViet nhận thiết kế và thi công trên toàn quốc. Ngoài ra, chúng tôi còn xuất khẩu cả sang thị trường nước ngoài.
Q: Chế độ bảo hành và bảo trì của PenViet thế nào?
A: Hầu hết các sản phẩm của PenViet được bảo hành từ 1 đến 2 năm (tùy chủng loại) và bảo trì vĩnh viễn (có tính phí khi thực hiện bảo trì).