Chủ đầu tư: Anh Thái
Địa chỉ: Kiến Hưng, Hà Đông
Quy mô: 34m2
Phong cách, ý tưởng : Hiện Đại
Hạng mục công việc
Cải tạo phần thô
Thiết kế nội thất phòng khám
Anh Thái – bác sĩ kiêm chủ đầu tư dự án mong muốn có cho mình một phòng khám nha khoa hiện đại, chuyên nghiệp, góp phần hoàn thiện chất lượng, dịch vụ khám chữa bệnh. Qua tìm hiểu, Penviet đã được chủ đầu tư lựa chọn là đơn vị thực hiện thiết kế phòng khám nha khoa cho mình.

Sau khi lắng nghe nguyện vọng của khách hàng kết hợp với việc khảo sát hiện trạng mặt bằng, Nhận thấy mặt bằng còn nhiều hạn chế để thiết kế phòng khám nha khoa đạt chuẩn. Chính vì thế, chúng tôi đã tư vấn cải tạo phần thô trước khi tiến hành cải tạo nội thất cho phòng khám.
Đầu tiên chúng tôi nhận thấy tường phòng khám màu sắc bị cũ, bong tróc sơn và không còn phù hợp. Kiến trúc sư đã cho tiến hành sơn tường màu trắng Jotun cao cấp để giúp mở rộng không gian tạo tiền đề cho việc bố cục màu sắc và bố trí nội thất phòng khám.
Vách kính cũ được thay bằng vách kính bằng Vách khung nhôm kính Việt Pháp dày hiện đại và hợp thời hơn. Ngoài ra, chúng tôi tiến hành lắp đặt điều hòa, cải tạo đường điện và đường nước phòng khám.
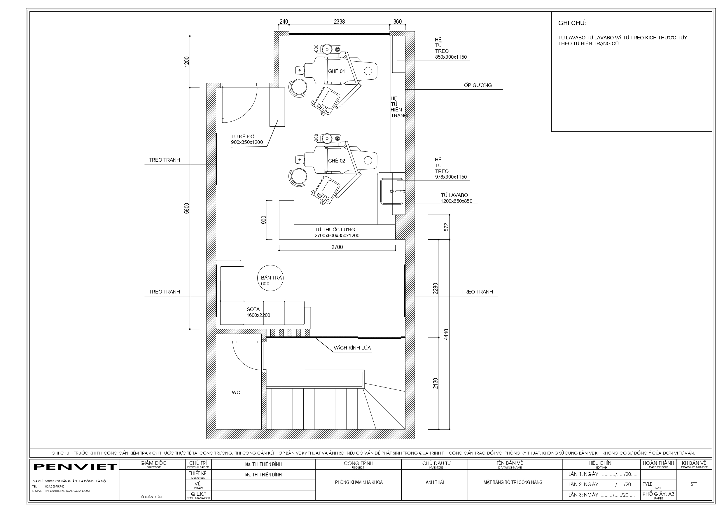
Với tổng diện tích 34m2, việc thiết kế bố cục không gian sao cho vừa đảm bảo yếu tố thẩm mỹ vừa phải đạt các tiêu chuẩn của y tế cũng là vấn đề nan giải mà các kiến trúc Penviet gặp phải.
Kiến trúc sư Penviet sau khi đã nghiên cứu kỹ càng đã lựa chọn phong cách thiết kế phòng khám nha khoa hiện đại với màu sắc trắng và nâu chủ đạo. Màu trắng sẽ mang đến sự mở rộng không gian, giúp phòng khám được thông thoáng và rộng rãi hơn diện tích thực. Màu nâu gỗ được kết hợp sẽ mang đến sự ấm cúng, thân thuộc với khách hàng hàng.
Bố cục nội thất phòng khám nha khoa đảm bảo tuân thủ các tiêu chuẩn của bộ y tế về yếu tố cơ sở vật chất của phòng khám nha khoa bao gồm: có phòng tiếp tân, có phòng điều trị răng miệng lớn hơn 10m2, 2 ghế nha khoa với diện tích mỗi ghế lớn hơn 5m2.

Khu vực tiếp đón khách hàng được Penviet setup giản đáp ứng công năng sử dụng, thiết kế phòng lễ tân sử dụng bàn trà với kiểu dáng bắt mắt và ghế sofa khung gỗ tự nhiên bọc nỉ, bàn trà khung sơn sắt tĩnh điện kết hợp với mặt bàn bằng gỗ mang đến sự thoải mái cho người sử dụng.

Thiết kế phòng khám nha khoa chúng tôi lắp đặt các tủ thuốc và tủ để đồ Gỗ MDF cốt xanh Thái Lan chống ẩm phủ melamin sát tường để tối ưu không gian. Tủ thấp giữa 2 ghế răng vừa đóng vai trò phân chia, mang tới cảm giác riêng tư, thoải mái cho khách hàng, vừa giúp mở rộng khu vực lưu trữ cho thiết kế phòng khám nha khoa.

Tại đây cũng được chúng tôi lắp đặt thêm Lavabo để đáp ứng nhu cầu sử dụng cũng như mang tới sự thuận tiện cho người dùng.
Khu vực điều trị răng miệng, được setup hệ tủ treo tường bằng gỗ MDF nhằm tận dụng không gian để dụng cụ y tế. Hệ gương Hồng Phúc ốp tường vát cạnh được đặt chính giữa vừa có nhiệm vụ trang trí phòng khám vừa có thể để khách hàng có thể quan sát bác sĩ làm việc giúp họ thêm phần yên tâm hơn.

Mặc dù thiết kế phòng khám nha khoa nhỏ, nhưng kiến trúc sư vẫn bố trí đầy đủ không gian chức năng cần thiết. Mỗi không gian chức năng luôn đồng điệu trong setup,bài trí không gian và sử dụng nội thất đã mang tới sự nhất quán, chuyên nghiệp cho cơ sở y tế tư nhân này.

Trên đây là toàn bộ mẫu thiết kế phòng khám nha khoa 34m2 được Penviet thực hiện. Nếu bạn cần tư vấn và báo giá thiết kế phòng khám, hãy liên hệ ngay với Penviet bạn nhé.
Tham khảo:
Thiết kế phòng khám nha khoa Ngọc Sứ
Thiết kế phòng khám răng hàm mặt Lan Hương







A. PenViet có hệ thống chi nhánh văn phòng và xưởng sản xuất ở nhiều nơi trên toàn quốc, nên giá thành sản phẩm là giá xuất xưởng, cạnh tranh nhằm đảm bảo chất lượng và dịch vụ phục vụ Khách hàng tốt nhất.
A: PenViet cung cấp dịch vụ tới mọi thành phần kinh tế, chúng tôi cung cấp dịch vụ thiết kế, thi công và bán lẻ các mặt hàng nội thất.
- Với các sản phẩm khách hàng đã có bản vẽ 2D hoặc 3D: PenViet sẽ phân tích bản vẽ và báo giá cạnh tranh.
- Với các sản phẩm cần thiết kế chi tiết: PenViet sẽ báo giá từ thiết kế đến thi công.
- Với những khách hàng mua hàng có sẵn với số lượng lớn: vui lòng liên hệ để nhận báo giá cạnh tranh.
- Đối với các Showroom có diện tích trưng bày sản phẩm rộng lớn: PenViet có khung giá phù hợp với ngân sách của khách hàng.