Tổng quan
Thiết kế phòng khám nói chung hay thiết kế phòng khám sản nói riêng đều phải cân bằng giữa yếu tố công năng và thẩm mỹ. Sắp xếp công năng phòng khám khoa học đạt các tiêu chuẩn y tế thì dù với diện tích lớn hay nhỏ vẫn sẽ mang đến không gian chuyên nghiệp và ấn tượng. Yếu tố thẩm mỹ cần chú trọng để mang đến mẫu thiết kế thi công phòng khám có những ấn tượng nổi bật với khách hàng, tăng độ nhận diện thương hiệu phòng khám.
Nếu bạn đang tìm kiếm mẫu thiết kế phòng khám sản với diện tích dưới 70m2 cân bằng được 2 yếu tố này. Đây chắc chắn sẽ là gợi ý tuyệt vời cho bạn!
Tên chủ đầu tư: Anh Đức Anh
Địa chỉ: Tây Mỗ
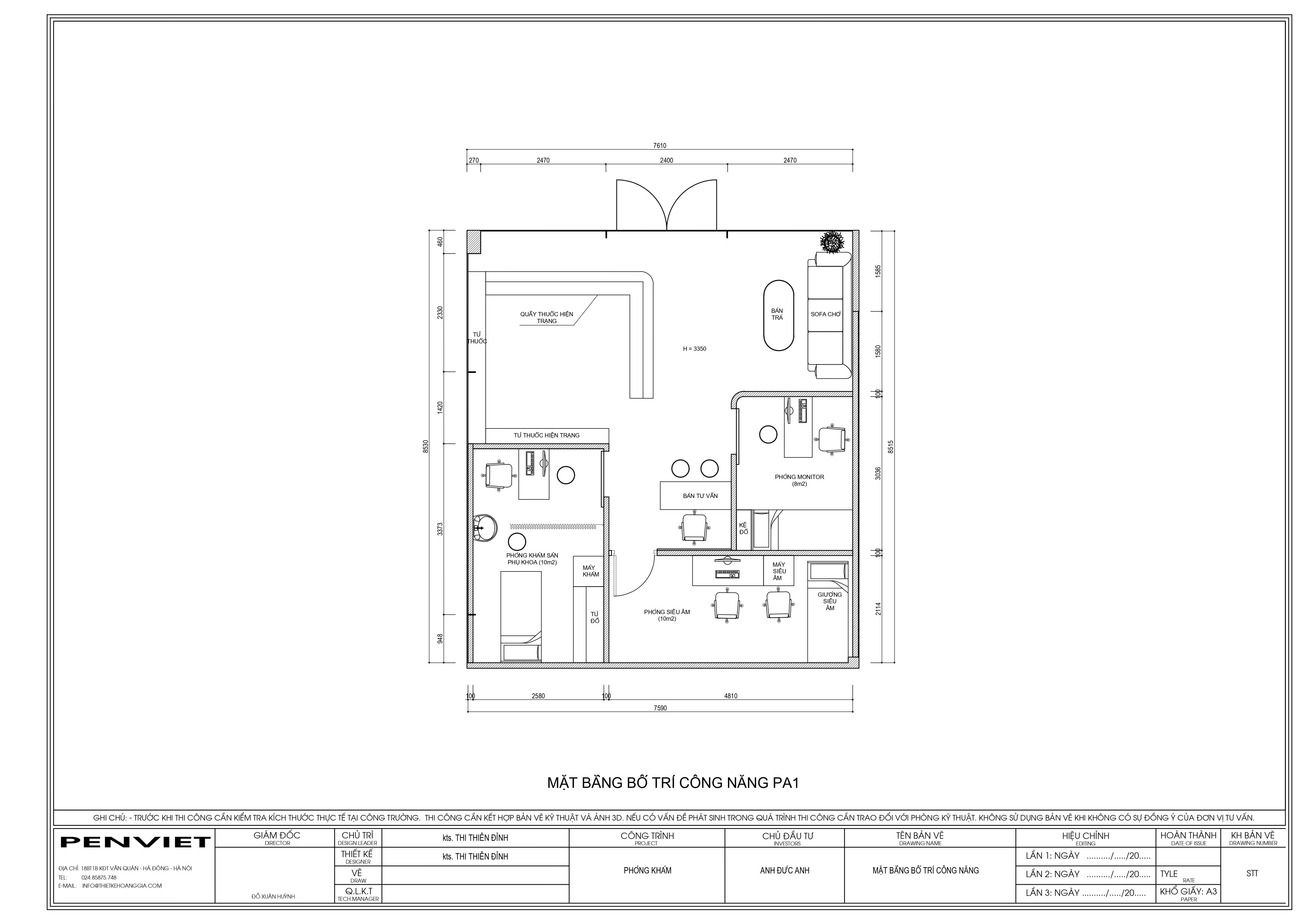
Diện tích: 65m2
Phong cách: HIện Đại, Sang trọng
Hạng mục:
- Thiết kế phòng lễ tân
- Thiết kế nhà thuốc
- Thiết kế phòng tư vấn
- Thiết phòng khám sản phụ khoa
- Thiết kế phòng monitor
- Thiết kế phòng siêu âm
Chi tiết thiết kế phòng khám sản phụ khoa Vũ Anh Clinic
Với mặt bằng 65m2, Chủ đầu tư mong muốn thiết kế phòng khám đầy đủ các dịch vụ y tế cơ bản của loại hình sản phụ khoa. Đây thực sự là thử thách đối với mỗi kiến trúc sư.
Tuy nhiên với kinh nghiệm và sự sáng tạo không ngừng, kiến trúc sư Penviet đã đưa ra phương án bố cục công năng khoa học hợp lý khiến chủ đầu tư vô cùng hài lòng.
Các phòng chức năng có mối liên kết chặt chẽ với khoảng diện tích phù hợp đạt tiêu chuẩn y tế hiện hành.
Ngăn cách giữa các phòng chức năng, penviet sử dụng phương án sử dụng vách thạch cao. Vách thạch cao vừa đảm bảo độ bền chắc vừa mang đến vẻ đẹp hiện đại và hợp thời hơn những vách tường gạch hay gỗ.

Thiết kế phòng khám sản phụ khoa phong cách hiện đại với tông màu trắng và xanh lá chủ đạo. Tông màu tươi sáng nhưng nhã nhặn sẽ không chỉ giúp không gian sáng và thoáng hơn so với diện tích thực mà nó còn mang đến cho khách hàng sự thoải mái dễ chịu.
Thiết kế sảnh đón khách
Thiết kế phòng khám sản phụ khoa hạng mục sảnh đón khách được ưu tiên tính tiện dụng và tối ưu diện tích.
Ghế sofa khung gỗ tự nhiên bọc nỉ mềm mại, cùng với bàn trà tinh giản khung sơn sắt nhũ vàng, mặt kính cường lực đen nên khu vực tiếp khách sang trọng trong thiết kế phòng khám sản phụ khoa.
Khu vực này trở nên đặc biệt thu hút nhờ vách logo màu sắc trang nhã với sự kết hợp nền ốp gỗ MDF cốt xanh Thái Lan chống ẩm phủ melamin và PVC vân đá tôn lên bộ nhận diện thương hiệu bằng Mica phát sáng.

Thiết kế nhà thuốc trong phòng khám
Trong khoảng không gian chỉ hơn 10m2, Penviet đã đưa ra phương án bố trí quầy tủ kệ khoa học để vừa mang đến hình ảnh chuyên nghiệp và sự thuận tiện cho nhân viên, vừa đảm bảo đầy đủ các không gian cần có nhu khu vực tư vấn khách hàng, khu vực ra lẻ các thuốc không có bao bì, các khu vực trưng bày sản phẩm riêng biệt, đáp ứng được tiêu chuẩn GPP trong thiết kế, thi công nhà thuốc.


Thiết kế phòng tư vấn bệnh nhân
Hướng tới việc đem lại sự thoải mái và thuận tiện cho khách hàng cũng như cung cấp những giải pháp mặt bằng tối ưu, các kiến trúc sư PenViet đã tận dụng những đặc điểm kiến trúc sẵn có để bố trí nội thất một cách khoa học. Theo đó, khu vực khoảng trống giữa các phòng chức năng được tận dụng setup bộ bàn ghế làm việc thiết kế đơn giản biến không gian này thành phòng tư vấn cho khách hàng.

Vách tường phía sau cũng được làm mới bằng việc sơn Jotun mịn làm nổi bật bộ nhận diện thương hiệu chân fomex mặt alu in UV không phát sáng và mica dẹt.
Thiết kế phòng khám sản phụ khoa
Khu vực phòng khám được setup đảm bảo sự nhất quán và liên kết giữa các không gian.
Tại đây, PenViet bố trí bàn làm việc bằng Gỗ MDF cốt xanh Thái Lan chống ẩm phủ melamin và ghế ngồi tạo sự thuận tiện cho người dùng. Tủ dụng cụ làm bằng gỗ MDF chống ẩm phủ Melamine, được đặt sát tường và kết hợp kệ gỗ treo tường đã giúp tối ưu diện tích và tăng không gian lưu trữ cho thiết kế phòng khám.

Hệ bồn rửa gắn gương Việt Nhật được sử dụng giúp bác sĩ và người bệnh vệ sinh tay chân sau quá trình thăm khám. Rèm vải được sử dụng với mục tiêu mang đến cho khách hàng sự thoải mái, đảm bảo sự riêng tư khi thăm khám.


Thiết kế phòng siêu âm
Thiết kế phòng siêu âm được đảm bảo sự riêng tư, bố trí nội thất gọn gàng với đầy đủ chức năng thuận tiện cho y bác sĩ khi làm việc. Tại đây, được bố trí bàn làm việc và giường thăm khám bằng chất liệu gỗ tốt, có khả năng chống ẩm cao.

Thiết kế phòng monitor
Phòng monitor tuy có diện tích hạn chế (8m2) nhưng được kết hợp màu sắc và ánh sáng tốt kết hợp bố cục không gian phù hợp khiến không gian trở nên rộng rãi hơn.
Thêm vào đó, thiết kế phòng khám sản phụ khoa Vũ Anh clinic, kiến trúc sư sử dụng hệ cửa phòng chức năng bằng gỗ MDF cốt canh Thái Lan. Bộ chữ biển phòng bằng alu 3mm in UV hướng dẫn khách hàng dễ dàng tìm kiếm.

Trên đây là toàn bộ mẫu thiết kế phòng khám sản phụ khoa Vũ Anh Clinic được Penviet thực hiện. Nếu bạn cần tư vấn hoặc hỗ trợ về chi phí thiết kế và thi công phòng khám, có thể liên hệ ngay với Penviet bạn nhé!
Tham khảo:
Thiết kế phòng khám sản phụ khoa Hạnh Tước
Thiết kế phòng khám sản phụ khoa Vân Yến



Q: PenViet có nhận thiết kế và thi công trọn gói không hay chỉ chuyên về thiết kế?
A: PenViet nhận thiết kế và thi công trọn gói trên toàn quốc. Các văn phòng, chi nhánh của PenViet được đặt tại nhiều địa điểm nhằm cung cấp các dịch vụ không chỉ tại các trung tâm của cả nước mà còn phục vụ tới cả vùng biên giới, hải đảo xa xôi.
Q: Thời gian thiết kế và thi công bao lâu thì xong?
A: Vâng, đây là yếu tố được nhiều khách hàng quan tâm khi chuẩn bị thiết kế và thi công nội thất. Với những diện tích nhỏ thì thời gian thi công nhanh. Cụ thể như sau:
- Diện tích <100m2:
+ Thời gian thiết kế: từ 5 đến 7 ngày
+ Thời gian thi công: 10 đến 12 ngày
(Áp dụng trên toàn quốc)
- Diện tích >100m2:
+ Thời gian thiết kế: từ 7 đến 10 ngày
+ Thời gian thi công: 10 đến 15 ngày
(Áp dụng trên toàn quốc)
- Diện tích >500m2: Quý khách vui lòng liên hệ trực tiếp để biết thời gian thiết kế và thi công cụ thể.
Q: Giá thi công của PenViet cao hay thấp?
A. PenViet có hệ thống chi nhánh văn phòng và xưởng sản xuất ở nhiều nơi trên toàn quốc, nên giá thành sản phẩm là giá xuất xưởng, cạnh tranh nhằm đảm bảo chất lượng và dịch vụ phục vụ Khách hàng tốt nhất.
Q: PenViet thiết kế và thi công nội thất như thế nào?
A: PenViet cung cấp dịch vụ tới mọi thành phần kinh tế, chúng tôi cung cấp dịch vụ thiết kế, thi công và bán lẻ các mặt hàng nội thất.
- Với các sản phẩm khách hàng đã có bản vẽ 2D hoặc 3D: PenViet sẽ phân tích bản vẽ và báo giá cạnh tranh.
- Với các sản phẩm cần thiết kế chi tiết: PenViet sẽ báo giá từ thiết kế đến thi công.
- Với những khách hàng mua hàng có sẵn với số lượng lớn: vui lòng liên hệ để nhận báo giá cạnh tranh.
- Đối với các Showroom có diện tích trưng bày sản phẩm rộng lớn: PenViet có khung giá phù hợp với ngân sách của khách hàng.
Q: Khách hàng ở xa thì PenViet có nhận thiết kế và thi công không?
Q: PenViet nhận thiết kế và thi công trên toàn quốc. Ngoài ra, chúng tôi còn xuất khẩu cả sang thị trường nước ngoài.
Q: Chế độ bảo hành và bảo trì của PenViet thế nào?
A: Hầu hết các sản phẩm của PenViet được bảo hành từ 1 đến 2 năm (tùy chủng loại) và bảo trì vĩnh viễn (có tính phí khi thực hiện bảo trì).