Thiết kế phòng khám nha khoa, Thiết kế phòng khám, Thiết kế phòng khám răng hàm mặt
Những mẫu thiết kế phòng khám nha khoa là một trong những từ khóa được tìm kiếm nhiều nhất hiện nay cho thấy mức quan tâm của chủ đầu tư và khách hàng lựa chọn dịch vụ này vô cùng lớn. Hãy cùng xem những ý tưởng độc đáo nào của kiến trúc sư Penviet được đưa vào thiết kế phòng khám Nha khoa Hoàng Minh để gây ấn tượng và thu hút khách hàng nhé!
Ấp ủ về ý tưởng thiết kế phòng khám nha khoa chuyên nghiệp theo đúng quy định của Bộ Y tế, đồng thời đảm bảo công năng và thẩm mỹ tại thị xã Tân Uyên, chị Thịnh - chủ đầu tư đã lựa chọn Penviet – đơn vị đã có nhiều năm kinh nghiệm trong việc thiết kế các phòng khám chuyên khoa, đa khoa, bệnh viện… để được tư vấn và có những giải pháp không gian tối ưu mang đến cho khách hàng những trải nghiệm tuyệt vời.

Mặt bằng hiện trạng cửa tiệm rộng rãi, phù hợp làm thiết kế phòng khám
Sau khi khảo sát mặt bằng và trao đổi với chủ đầu tư, các kiến trúc sư của chúng tôi đã lên ý tưởng và đề xuất mẫu thiết kế phòng khám theo phong cách hiện đại, đơn giản với gam màu chủ đạo là màu xanh lá, giúp khách hàng cảm nhận được sự thư thái, gần gũi. Màu sắc này cũng phần nào giảm bớt sự căng thẳng, lo lắng nên đây là một lựa chọn tuyệt vời khi thiết kế phòng khám nói chung và thiết kế phòng khám nha khoa nói riêng.Thực tế, đây cũng chính là yếu tố quan trọng tạo nên nét đẹp của một phòng khám, bởi trong khâu thiết kế các kiến trúc sư đã tận dụng và phối hợp hài hòa giữa các màu sắc. Chúng tôi dựa trên các nguyên lý phối hợp màu sắc để chọn lựa các vật liệu, nội thất và trong cùng điều kiện ánh sáng sẽ được áp dụng tạo một không gian thống nhất, hài hòa cả về cảnh quan và màu sắc.
Về hiện trạng mặt bằng, Penviet nhận thấy rằng, mặt bằng để setup phòng khám nha khoa tại đây có rất nhiều lợi thế mà không cần thực hiện cải tạo thô nhiều, có thể tận dụng được nhiều chi tiết nên chi phí đầu tư cho dự án này cũng được giảm bớt. Tuy nhiên, việc thiết kế phòng khám nha khoa vẫn cần tuân thủ theo đúng Thông tư số 41/2011/TT-BYT ngày 14/11/2011 quy định về điều kiện cấp chứng chỉ hành nghề và cấp giấy phép hoạt động đối với cơ sở khám chữa bệnh. Theo đó:
Điểm A, Khoản 1 quy định:
Điểm B, Khoản 2 quy định:
“Phòng khám chuyên khoa phải có buồng khám bệnh, chữa bệnh có diện tích ít nhất là 10m2 và nơi đón tiếp người bệnh, trừ phòng tư vấn khám bệnh qua điện thoại, phòng tư vấn chăm sóc sức khỏe qua các phương tiện công nghệ thông tin, viễn thông và thiết bị y tế. Riêng đối với phòng khám chuyên khoa ngoại, phòng khám chuyên khoa phẫu thuật thẩm mỹ phải có thêm buồng lưu người bệnh có diện tích ít nhất 12m2; phòng khám phục hồi chức năng phải có thêm buồng phục hồi chức năng có diện tích ít nhất là 10 m2”.
Ngoài ra, tùy phạm vi hoạt động chuyên môn khi thực hiện đăng ký kinh doanh mà việc setup phòng khám còn phải tuân theo Điều 26, Nghị định 109/2016/NĐ-CP của Chính Phủ ký ngày 01/07/2016 về việc Quy định cấp chứng chỉ hành nghề và cấp giấy phép hoạt động đối với cơ sở khám bệnh, chữa bệnh, cụ thể như sau:

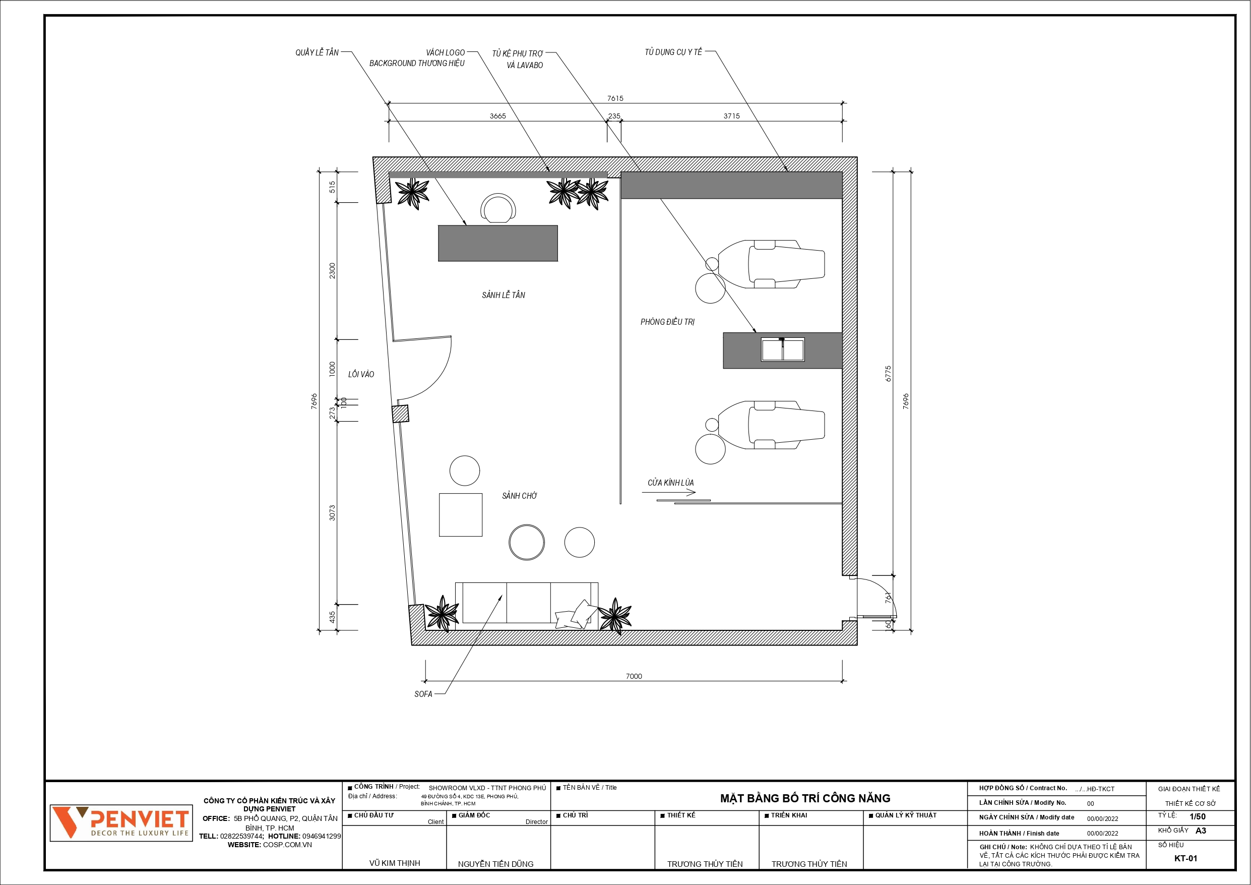
Bản vẽ bố trí không gian phòng khám nha khoa Hoàng Minh
Qua bản vẽ trên có thể thấy, các kiến trúc sư của Penviet có kinh nghiệm và sự am hiểu về các quy định thiết kế phòng khám. Bản vẽ trên không chỉ tận dụng được tối ưu diện tích mà còn đáp ứng được đúng tiêu chuẩn quy định, đảm bảo công năng và giúp phòng khám vận hành trơn tru.
Vốn dĩ ngành y tế là ngành vô cùng đặc thù nên ngoài đảm bảo yêu cầu về thiết kế theo quy chuẩn của Bộ Y tế thì vấn đề thẩm mỹ, không gian sạch sẽ, thoải mái cũng cần được chú trọng hàng đầu. Việc thiết kế phòng khám nha khoa phải gây được sự ấn tượng mạnh mẽ thể hiện sự chuyên nghiệp, chỉn chu sẽ giúp khách hàng cảm thấy an tâm và tin tưởng, phần nào quyết định “ngầm” đến sự trung thành tuyệt đối với phòng khám.
Chúng tôi lựa chọn thiết kế mẫu quầy thu ngân gam màu xanh lá với chất liệu gỗ MDF phủ melamine bắt mắt, mẫu quầy này cũng có tuổi thọ cao và đảm bảo sự bền bỉ trong suốt quá trình vận hành. Để tăng cường nhận diện thương hiệu vách logo PVC họa tiết vân đá được đặt ngay sau quầy thu ngân làm nổi bật bộ chữ thương hiệu mica phát sáng.

Quầy thu ngân gam màu xanh lá tạo sự thân thiện, gần gũi
Để giúp khách hàng luôn được tiếp đón nồng hậu, chúng tôi bố trí khéo léo, sử dụng bàn ghế sofa chân sắt sơn tĩnh điện, bọc nỉ êm ái kết hợp với bàn tròn mặt đá nhân tạo moka tạo sự êm ái, thoải mái cho khách hàng đến trải nghiệm dịch vụ.
Nhằm làm tăng sự sinh động, Penviet cũng tô điểm thêm cho không gian bằng những chậu cây và hệ thống tranh in trong mẫu thiết kế phòng khám nha khoa Hoàng Minh.

Phòng tiếp đón khách hàng được trang bị ghế sofa êm ái
Nhằm tạo không gian riêng tư cũng như đảm bảo quy định về thiết kế phòng khám chuyên khoa theo Điều 26, Nghị định 109/2016/NĐ-CP của Chính Phủ ký ngày 01/07/2016 về việc Quy định cấp chứng chỉ hành nghề và cấp giấy phép hoạt động đối với cơ sở khám bệnh, chữa bệnh: Phải có phòng khám bệnh, chữa bệnh có diện tích ít nhất là 10m2 và nơi đón tiếp người bệnh, chúng tôi đã sử dụng hệ vách nhôm kính với khung nhôm sơn, kính cường lực dày được dán decal mờ giúp các bác sĩ yên tâm thực hiện thăm khám, tư vấn điều trị, đồng thời cũng giúp khách hàng giải tỏa được áp lực, căng thẳng khi ngồi chờ trị liệu.

Phòng khám được thiết kế phòng riêng đảm bảo sự riêng tư
Thiết kế phòng khám nha khoa Hoàng Minh được thiết kế với diện tích hơn 20m2 và được bố trí 2 ghế răng, điều này vượt qua những tiêu chuẩn tại Điều 26, Nghị định 109/2016/NĐ-CP của Chính Phủ ký ngày 01/07/2016. Từ đó cho thấy định hướng rõ ràng về việc cung cấp những dịch vụ chất lượng của chủ đầu tư dự án.

Phòng trị liệu được thiết kế hệ tủ và 2 ghế trị liệu
Để quá trình vận hành trơn chu, chúng tôi lắp đặt hệ tủ dụng cụ gỗ MDF chống ẩm phun sơn 2K với bản lề và ray kéo áp sát tường giúp các bác sĩ và nhân viên thực hiện trị liệu thuận tiện, chuẩn bị dụng cụ một cách đầy đủ nhất.

Hệ tủ được đặt áp tường giúp nhân viên chuẩn bị dụng cụ
Tủ lavabo mặt đá và bồn rửa được thiết thế tối giản phù hợp với đặc điểm mặt bằng giúp mở rộng khu vực lưu trữ cho phòng khám, đồng thời đảm bảo quy định về vệ sinh dụng cụ, mang đến một không gian đầy đủ tiện nghi để giúp khách hàng luôn cảm thấy an tâm và thoải mái nhất.

Tủ lavabo mặt đá và bồn rửa đặt sát ghế trị liệu







A. PenViet có hệ thống chi nhánh văn phòng và xưởng sản xuất ở nhiều nơi trên toàn quốc, nên giá thành sản phẩm là giá xuất xưởng, cạnh tranh nhằm đảm bảo chất lượng và dịch vụ phục vụ Khách hàng tốt nhất.
A: PenViet cung cấp dịch vụ tới mọi thành phần kinh tế, chúng tôi cung cấp dịch vụ thiết kế, thi công và bán lẻ các mặt hàng nội thất.
- Với các sản phẩm khách hàng đã có bản vẽ 2D hoặc 3D: PenViet sẽ phân tích bản vẽ và báo giá cạnh tranh.
- Với các sản phẩm cần thiết kế chi tiết: PenViet sẽ báo giá từ thiết kế đến thi công.
- Với những khách hàng mua hàng có sẵn với số lượng lớn: vui lòng liên hệ để nhận báo giá cạnh tranh.
- Đối với các Showroom có diện tích trưng bày sản phẩm rộng lớn: PenViet có khung giá phù hợp với ngân sách của khách hàng.